Property
Account |
| Property ID: | 10843 | Abbreviated Legal Description: | HENDERSON TAX 5 BLK 50 |
| Parcel Number: | 360729684005 | Agent Code: | |
| Type: | Real | | |
| Tax Area: | 1 - OL-140-F | Land Use Code | 11 |
| Open Space: | N | DFL | N |
| Historic Property: | N | Remodel Property: | N |
| Multi-Family Redevelopment: | N | | |
| Township: | 7 | Section: | 29 |
| Range: | 36 |
Location |
| Address: | 136 ORCHARD ST WA 99362 | Mapsco: | |
| Neighborhood: | Fair Res | Map ID: | |
| Neighborhood CD: | 612011 |
Owner |
| Name: | LUCERO JOSHUA & MELISSA | Owner ID: | 70003 |
| Mailing Address: | 136 ORCHARD ST WALLA WALLA, WA 99362 | % Ownership: | 100.0000000000% |
| | | Exemptions: | |
Taxes and Assessment Details
Values
| (+) Improvement Homesite Value: | + | $0 | |
| (+) Improvement Non-Homesite Value: | + | $225,320 | |
| (+) Land Homesite Value: | + | $0 | |
| (+) Land Non-Homesite Value: | + | $56,160 | |
| (+) Curr Use (HS): | + | $0 | $0 |
| (+) Curr Use (NHS): | + | $0 | $0 |
| | | -------------------------- | |
| (=) Market Value: | = | $281,480 | |
| (–) Productivity Loss: | – | $0 | |
| | | -------------------------- | |
| (=) Subtotal: | = | $281,480 | |
| (+) Senior Appraised Value: | + | $0 | |
| (+) Non-Senior Appraised Value: | + | $281,480 | |
| | | -------------------------- | |
| (=) Total Appraised Value: | = | $281,480 | |
| (–) Senior Exemption Loss: | – | $0 | |
| (–) Exemption Loss: | – | $0 | |
| | | -------------------------- | |
| (=) Taxable Value: | = | $281,480 | |
Taxing Jurisdiction
| Owner: | LUCERO JOSHUA & MELISSA | | |
| % Ownership: | 100.0000000000% | | |
| Total Value: | $281,480 | | |
| Tax Area: | 1 - OL-140-F |
| CERFD | CURRENT EXPENSE REFUND 010 | 0.0000000000 | $281,480 | $281,480 | $0.00 | | |
| CURREXP | CURRENT EXPENSE 010 | 1.0175366760 | $281,480 | $281,480 | $286.42 | | |
| HUMNSERV | HUMAN SERVICES 119 | 0.0250000000 | $281,480 | $281,480 | $7.04 | | |
| SLDREL | SOLDIERS RELIEF 121 | 0.0155990005 | $281,480 | $281,480 | $4.39 | | |
| EMERGSER | EMS 147 | 0.3792580840 | $281,480 | $281,480 | $106.75 | | |
| EMSRFD | EMS REFUND 147 | 0.0000000000 | $281,480 | $281,480 | $0.00 | | |
| PORTRFD | PORT REFUND 640 | 0.0000000000 | $281,480 | $281,480 | $0.00 | | |
| PORTWWGEN | PORT OF WW 640 | 0.2460186015 | $281,480 | $281,480 | $69.25 | | |
| SD140BOND | SD #140 BOND 764 | 0.8342371393 | $281,480 | $281,480 | $234.82 | | |
| SD140GEN | SD #140 GENERAL 760 | 2.0646500647 | $281,480 | $281,480 | $581.16 | | |
| ST2 | STATE SCHOOL PART 2 600 | 0.8131451643 | $281,480 | $281,480 | $228.88 | | |
| STATESCHL | STATE SCHOOL 600 | 1.5158548041 | $281,480 | $281,480 | $426.68 | | |
| STREFUND | STATE REFUND LEVY 603 | 0.0000000000 | $281,480 | $281,480 | $0.00 | | |
| CWWBOND | C OF WW BOND 643 | 0.2760494372 | $281,480 | $281,480 | $77.70 | | |
| CWWGEN | CITY OF WW 631 | 1.6100204973 | $281,480 | $281,480 | $453.19 | | |
| CWWRFD | CITY OF WALLA WALLA REFUND 631 | 0.0000000000 | $281,480 | $281,480 | $0.00 | | |
| | Total Tax Rate: | 8.7973694689 | | | | | |
| | | | | Taxes w/Current Exemptions: | $2,476.28 | | |
| | | | | Taxes w/o Exemptions: | $2,476.28 | | |
Improvement / Building
| Improvement #1: | RESIDENTIAL | State Code: | 11 | 1050.0 sqft | Value: | $225,320 |
| Exterior Wall: | METAL/STEEL | Foundation: | SLAB FOUNDATION | | Heating/Cooling: | WARM & COOLED AIR | Number of Bathrooms: | 1 | | Number of Bedrooms: | 2 | Plumbing: | 7 | | Roof Covering: | COMP SHINGLE |   |   |
|
| | Type | Description | Class CD | Sub Class CD | Year Built | Area |
| | MA | Main Area | 1 | 25 | 1955 | 1050.0 |
| | SI1 | SITE IMPROVEMENT | 1 | 25 | 1955 | 1.0 |
| | ATG | Attached Garage | 1 | 25 | 1955 | 300.0 |
| | CPC | COVERED CARPORT/PATIO | 1 | 25 | 1955 | 330.0 |
| | RPO | OPEN PORCH W/ROOF | 1 | 25 | 2006 | 66.0 |
Sketch
Property Image
Land
| 1 | RES 1 | Converted: Residential | 0.1612 | 7020.00 | 0.00 | 0.00 | 1.00 | $56,160 | $0 |
Roll Value History
| 2026 | N/A | N/A | N/A | N/A | N/A |
| 2025 | $210,800 | $70,200 | $0 | $281,000 | $281,000 |
| 2024 | $225,320 | $56,160 | $0 | $281,480 | $281,480 |
| 2023 | $225,320 | $56,160 | $0 | $281,480 | $281,480 |
| 2022 | $225,320 | $43,880 | $0 | $269,200 | $269,200 |
| 2021 | $140,820 | $43,880 | $0 | $184,700 | $184,700 |
| 2020 | $128,020 | $43,880 | $0 | $171,900 | $171,900 |
| 2019 | $128,020 | $43,880 | $0 | $171,900 | $171,900 |
| 2018 | $98,560 | $42,100 | $0 | $140,660 | $140,660 |
| 2017 | $93,870 | $42,100 | $0 | $135,970 | $135,970 |
| 2016 | $78,230 | $42,100 | $0 | $120,330 | $120,330 |
| 2015 | $78,230 | $42,100 | $0 | $120,330 | $120,330 |
| 2014 | $74,500 | $42,100 | $0 | $116,600 | $116,600 |
| 2013 | $74,500 | $42,100 | $0 | $116,600 | $116,600 |
| 2012 | $74,500 | $42,100 | $0 | $0 | $0 |
| 2011 | $63,900 | $42,100 | $0 | $0 | $0 |
| 2010 | $82,600 | $42,100 | $0 | $0 | $0 |
| 2009 | $96,500 | $42,100 | $0 | $0 | $0 |
| 2008 | $96,500 | $42,100 | $0 | $0 | $0 |
| 2007 | $71,100 | $14,000 | $0 | $0 | $0 |
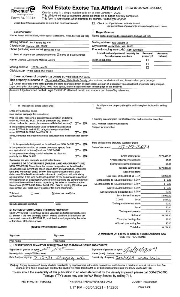
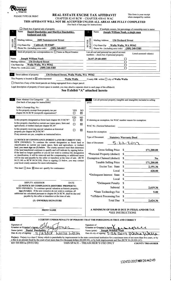
Deed and Sales History
| 1 | 08/04/2021 | SWD | STATUTORY WARRANTY DEED | NOAH JOSEPH WILLIAM | LUCERO JOSHUA & MELISSA | | | $279,000.00 | 142208 | 2021-09479 |
| 2 | 05/24/2017 | SWD | STATUTORY WARRANTY DEED | DASCHOFSKY DANIEL & MARILYN | NOAH JOSEPH WILLIAM | | | $171,200.00 | 132453 | 2017-03926 |
| 3 | 12/10/1993 | WARRANTY D | WARRANTY DEED | | | | | $42,000.00 | 80623 | 2149-313063 |
Payout Agreement
| No payout information available.. |