Property
Account |
| Property ID: | 10839 | Abbreviated Legal Description: | HENDERSON TAX 6 BLK 39 |
| Parcel Number: | 360729683906 | Agent Code: | |
| Type: | Real | | |
| Tax Area: | 1 - OL-140-F | Land Use Code | 11 |
| Open Space: | N | DFL | N |
| Historic Property: | N | Remodel Property: | N |
| Multi-Family Redevelopment: | N | | |
| Township: | 7 | Section: | 29 |
| Range: | 36 |
Location |
| Address: | 1018 S 4TH AVE WA 99362 | Mapsco: | |
| Neighborhood: | Fair Res | Map ID: | |
| Neighborhood CD: | 612011 |
Owner |
| Name: | BALBINO AMBALONG | Owner ID: | 59530 |
| Mailing Address: | 1018 S 4TH AVE WALLA WALLA, WA 99362 | % Ownership: | 100.0000000000% |
| | | Exemptions: | |
Taxes and Assessment Details
Property Tax Information as of
02/21/2026
Click on "Statement Details" to expand or collapse a tax statement.
* Please enter a valid date ** Please enter a valid date *
Statement Details |
| | TOTAL: | $0.00 | $0.00 | $0.00 | $0.00 | $0.00 | $0.00 |
|
| | $0.00 | $0.00 | $0.00 | $0.00 | $0.00 | $0.00 |
Values
| (+) Improvement Homesite Value: | + | $0 | |
| (+) Improvement Non-Homesite Value: | + | $195,930 | |
| (+) Land Homesite Value: | + | $0 | |
| (+) Land Non-Homesite Value: | + | $46,660 | |
| (+) Curr Use (HS): | + | $0 | $0 |
| (+) Curr Use (NHS): | + | $0 | $0 |
| | | -------------------------- | |
| (=) Market Value: | = | $242,590 | |
| (–) Productivity Loss: | – | $0 | |
| | | -------------------------- | |
| (=) Subtotal: | = | $242,590 | |
| (+) Senior Appraised Value: | + | $0 | |
| (+) Non-Senior Appraised Value: | + | $242,590 | |
| | | -------------------------- | |
| (=) Total Appraised Value: | = | $242,590 | |
| (–) Senior Exemption Loss: | – | $0 | |
| (–) Exemption Loss: | – | $0 | |
| | | -------------------------- | |
| (=) Taxable Value: | = | $242,590 | |
Taxing Jurisdiction
| Owner: | BALBINO AMBALONG | | |
| % Ownership: | 100.0000000000% | | |
| Total Value: | $242,590 | | |
| Tax Area: | 1 - OL-140-F |
| CERFD | CURRENT EXPENSE REFUND 010 | 0.0000000000 | $242,590 | $242,590 | $0.00 | | |
| CURREXP | CURRENT EXPENSE 010 | 1.0175366760 | $242,590 | $242,590 | $246.84 | | |
| HUMNSERV | HUMAN SERVICES 119 | 0.0250000000 | $242,590 | $242,590 | $6.06 | | |
| SLDREL | SOLDIERS RELIEF 121 | 0.0155990005 | $242,590 | $242,590 | $3.78 | | |
| EMERGSER | EMS 147 | 0.3792580840 | $242,590 | $242,590 | $92.00 | | |
| EMSRFD | EMS REFUND 147 | 0.0000000000 | $242,590 | $242,590 | $0.00 | | |
| PORTRFD | PORT REFUND 640 | 0.0000000000 | $242,590 | $242,590 | $0.00 | | |
| PORTWWGEN | PORT OF WW 640 | 0.2460186015 | $242,590 | $242,590 | $59.68 | | |
| SD140BOND | SD #140 BOND 764 | 0.8342371393 | $242,590 | $242,590 | $202.38 | | |
| SD140GEN | SD #140 GENERAL 760 | 2.0646500647 | $242,590 | $242,590 | $500.86 | | |
| ST2 | STATE SCHOOL PART 2 600 | 0.8131451643 | $242,590 | $242,590 | $197.26 | | |
| STATESCHL | STATE SCHOOL 600 | 1.5158548041 | $242,590 | $242,590 | $367.73 | | |
| STREFUND | STATE REFUND LEVY 603 | 0.0000000000 | $242,590 | $242,590 | $0.00 | | |
| CWWBOND | C OF WW BOND 643 | 0.2760494372 | $242,590 | $242,590 | $66.97 | | |
| CWWGEN | CITY OF WW 631 | 1.6100204973 | $242,590 | $242,590 | $390.57 | | |
| CWWRFD | CITY OF WALLA WALLA REFUND 631 | 0.0000000000 | $242,590 | $242,590 | $0.00 | | |
| | Total Tax Rate: | 8.7973694689 | | | | | |
| | | | | Taxes w/Current Exemptions: | $2,134.13 | | |
| | | | | Taxes w/o Exemptions: | $2,134.13 | | |
Improvement / Building
| Improvement #1: | RESIDENTIAL | State Code: | 11 | 998.0 sqft | Value: | $195,930 |
| Exterior Wall: | VINYL | Heating/Cooling: | BASEBOARD ELECTRIC | | Number of Bathrooms: | 1 | Number of Bedrooms: | 2 | | Plumbing: | 7 | Roof Covering: | COMP SHINGLE |
|
| | Type | Description | Class CD | Sub Class CD | Year Built | Area |
| | MA | Main Area | 1 | 25 | 1915 | 998.0 |
| | SI1 | SITE IMPROVEMENT | 1 | 25 | 1915 | 1.0 |
| | RPO | OPEN PORCH W/ROOF | 1 | 25 | 1915 | 96.0 |
| | SWP | Solid Wall Porch | 1 | 25 | 1915 | 80.0 |
Sketch
Property Image
Land
| 1 | RES 1 | Converted: Residential | 0.1339 | 5832.00 | 0.00 | 0.00 | 1.00 | $46,660 | $0 |
Roll Value History
| 2026 | N/A | N/A | N/A | N/A | N/A |
| 2025 | $186,550 | $58,320 | $0 | $244,870 | $244,870 |
| 2024 | $195,930 | $46,660 | $0 | $242,590 | $242,590 |
| 2023 | $195,930 | $46,660 | $0 | $242,590 | $242,590 |
| 2022 | $195,930 | $36,450 | $0 | $232,380 | $232,380 |
| 2021 | $130,620 | $36,450 | $0 | $167,070 | $167,070 |
| 2020 | $108,850 | $36,450 | $0 | $145,300 | $145,300 |
| 2019 | $108,850 | $36,450 | $0 | $145,300 | $145,300 |
| 2018 | $118,660 | $35,000 | $0 | $153,660 | $153,660 |
| 2017 | $103,180 | $35,000 | $0 | $138,180 | $138,180 |
| 2016 | $103,180 | $35,000 | $0 | $138,180 | $138,180 |
| 2015 | $93,800 | $35,000 | $0 | $128,800 | $128,800 |
| 2014 | $67,000 | $35,000 | $0 | $102,000 | $102,000 |
| 2013 | $67,000 | $35,000 | $0 | $102,000 | $102,000 |
| 2012 | $67,000 | $35,000 | $0 | $0 | $0 |
| 2011 | $57,700 | $35,000 | $0 | $0 | $0 |
| 2010 | $74,100 | $35,000 | $0 | $0 | $0 |
| 2009 | $86,200 | $35,000 | $0 | $0 | $0 |
| 2008 | $86,200 | $35,000 | $0 | $0 | $0 |
| 2007 | $53,700 | $11,700 | $0 | $0 | $0 |
Deed and Sales History
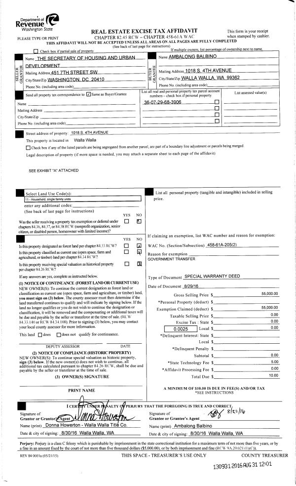
| 1 | 08/31/2016 | SWP | Special Warranty Deed | SECRETARY OF HOUSING & URBAN DEVELOPMENT | BALBINO AMBALONG | | | $55,000.00 | 130931 | 2016-07041 |
| 2 | 06/10/2016 | SWP | Special Warranty Deed | PENNYMAC LOAN SERVICES LLC | SECRETARY OF HOUSING & URBAN DEVELOPMENT | | | $94,400.00 | 130381 | 2016-04372 |
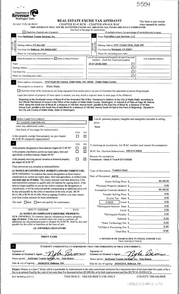
| 3 | 04/06/2016 | TRUSTEES D | TRUSTEE'S DEED | HARVEY CHASE O | PENNYMAC LOAN SERVICES LLC | | | $90,160.00 | 129968 | 2016-02518 |
| 4 | 07/06/2010 | WARRANTY D | WARRANTY DEED | BURGUENO, ALFREDO F & MARIA | HARVEY, CHASE O | | | $103,000.00 | 118714 | 2010-05207 |
| 5 | 11/29/1999 | WARRANTY D | WARRANTY DEED | | | | | $43,000.00 | 94080 | 2929-913458 |
Payout Agreement
| No payout information available.. |