Property
Account |
| Property ID: | 10831 | Abbreviated Legal Description: | HENDERSON TAX 4 BLK 36 |
| Parcel Number: | 360729683604 | Agent Code: | |
| Type: | Real | | |
| Tax Area: | 1 - OL-140-F | Land Use Code | 11 |
| Open Space: | N | DFL | N |
| Historic Property: | N | Remodel Property: | N |
| Multi-Family Redevelopment: | N | | |
| Township: | 7 | Section: | 29 |
| Range: | 36 |
Location |
| Address: | 205 W MORTON ST WA 99362 | Mapsco: | |
| Neighborhood: | Fair Res | Map ID: | |
| Neighborhood CD: | 612011 |
Owner |
| Name: | GIVENS KEVIN ELDON | Owner ID: | 51511 |
| Mailing Address: | 453 BLALOCK DR WALLA WALLA, WA 99362 | % Ownership: | 100.0000000000% |
| | | Exemptions: | |
Taxes and Assessment Details
Property Tax Information as of
02/21/2026
Click on "Statement Details" to expand or collapse a tax statement.
* Please enter a valid date ** Please enter a valid date *
Statement Details |
| | TOTAL: | $0.00 | $0.00 | $0.00 | $0.00 | $0.00 | $0.00 |
|
| | $0.00 | $0.00 | $0.00 | $0.00 | $0.00 | $0.00 |
Values
| (+) Improvement Homesite Value: | + | $0 | |
| (+) Improvement Non-Homesite Value: | + | $148,100 | |
| (+) Land Homesite Value: | + | $0 | |
| (+) Land Non-Homesite Value: | + | $40,000 | |
| (+) Curr Use (HS): | + | $0 | $0 |
| (+) Curr Use (NHS): | + | $0 | $0 |
| | | -------------------------- | |
| (=) Market Value: | = | $188,100 | |
| (–) Productivity Loss: | – | $0 | |
| | | -------------------------- | |
| (=) Subtotal: | = | $188,100 | |
| (+) Senior Appraised Value: | + | $0 | |
| (+) Non-Senior Appraised Value: | + | $188,100 | |
| | | -------------------------- | |
| (=) Total Appraised Value: | = | $188,100 | |
| (–) Senior Exemption Loss: | – | $0 | |
| (–) Exemption Loss: | – | $0 | |
| | | -------------------------- | |
| (=) Taxable Value: | = | $188,100 | |
Taxing Jurisdiction
| Owner: | GIVENS KEVIN ELDON | | |
| % Ownership: | 100.0000000000% | | |
| Total Value: | $188,100 | | |
| Tax Area: | 1 - OL-140-F |
| CERFD | CURRENT EXPENSE REFUND 010 | 0.0000000000 | $188,100 | $188,100 | $0.00 | | |
| CURREXP | CURRENT EXPENSE 010 | 1.0175366760 | $188,100 | $188,100 | $191.40 | | |
| HUMNSERV | HUMAN SERVICES 119 | 0.0250000000 | $188,100 | $188,100 | $4.70 | | |
| SLDREL | SOLDIERS RELIEF 121 | 0.0155990005 | $188,100 | $188,100 | $2.93 | | |
| EMERGSER | EMS 147 | 0.3792580840 | $188,100 | $188,100 | $71.34 | | |
| EMSRFD | EMS REFUND 147 | 0.0000000000 | $188,100 | $188,100 | $0.00 | | |
| PORTRFD | PORT REFUND 640 | 0.0000000000 | $188,100 | $188,100 | $0.00 | | |
| PORTWWGEN | PORT OF WW 640 | 0.2460186015 | $188,100 | $188,100 | $46.28 | | |
| SD140BOND | SD #140 BOND 764 | 0.8342371393 | $188,100 | $188,100 | $156.92 | | |
| SD140GEN | SD #140 GENERAL 760 | 2.0646500647 | $188,100 | $188,100 | $388.36 | | |
| ST2 | STATE SCHOOL PART 2 600 | 0.8131451643 | $188,100 | $188,100 | $152.95 | | |
| STATESCHL | STATE SCHOOL 600 | 1.5158548041 | $188,100 | $188,100 | $285.13 | | |
| STREFUND | STATE REFUND LEVY 603 | 0.0000000000 | $188,100 | $188,100 | $0.00 | | |
| CWWBOND | C OF WW BOND 643 | 0.2760494372 | $188,100 | $188,100 | $51.92 | | |
| CWWGEN | CITY OF WW 631 | 1.6100204973 | $188,100 | $188,100 | $302.84 | | |
| CWWRFD | CITY OF WALLA WALLA REFUND 631 | 0.0000000000 | $188,100 | $188,100 | $0.00 | | |
| | Total Tax Rate: | 8.7973694689 | | | | | |
| | | | | Taxes w/Current Exemptions: | $1,654.77 | | |
| | | | | Taxes w/o Exemptions: | $1,654.77 | | |
Improvement / Building
| Improvement #1: | RESIDENTIAL | State Code: | 11 | 665.0 sqft | Value: | $148,100 |
| Exterior Wall: | SIDING | Foundation: | POST & PIER | | Heating/Cooling: | STOVE-NO HEAT | Number of Bathrooms: | 1 | | Number of Bedrooms: | 1 | Plumbing: | 7 | | Roof Covering: | COMP SHINGLE |   |   |
|
| | Type | Description | Class CD | Sub Class CD | Year Built | Area |
| | MA | Main Area | 1 | 20 | 1900 | 665.0 |
| | SI1 | SITE IMPROVEMENT | 1 | 20 | 1900 | 1.0 |
| | WDR | WOOD DECK W/ROOF | 1 | 20 | 1900 | 132.0 |
| | SWP | Solid Wall Porch | 1 | 20 | 1900 | 77.0 |
| | GSTO | GARAGE STORAGE-NO VALUE | 1 | 20 | 1900 | 162.0 |
| | GSTO | GARAGE STORAGE-NO VALUE | 1 | 20 | 1900 | 130.0 |
| | GSTO | GARAGE STORAGE-NO VALUE | 1 | 20 | 1900 | 100.0 |
Sketch
Property Image
Land
| 1 | RES 1 | Converted: Residential | 0.1148 | 5000.00 | 0.00 | 0.00 | 1.00 | $40,000 | $0 |
Roll Value History
| 2026 | N/A | N/A | N/A | N/A | N/A |
| 2025 | $145,260 | $50,000 | $0 | $195,260 | $195,260 |
| 2024 | $148,100 | $40,000 | $0 | $188,100 | $188,100 |
| 2023 | $148,100 | $40,000 | $0 | $188,100 | $188,100 |
| 2022 | $148,100 | $31,250 | $0 | $179,350 | $179,350 |
| 2021 | $82,280 | $31,250 | $0 | $113,530 | $113,530 |
| 2020 | $54,850 | $31,250 | $0 | $86,100 | $86,100 |
| 2019 | $54,850 | $31,250 | $0 | $86,100 | $86,100 |
| 2018 | $44,440 | $30,000 | $0 | $74,440 | $74,440 |
| 2017 | $40,400 | $30,000 | $0 | $70,400 | $70,400 |
| 2016 | $40,400 | $30,000 | $0 | $70,400 | $70,400 |
| 2015 | $20,200 | $30,000 | $0 | $50,200 | $50,200 |
| 2014 | $20,200 | $30,000 | $0 | $50,200 | $50,200 |
| 2013 | $20,200 | $30,000 | $0 | $50,200 | $50,200 |
| 2012 | $41,100 | $30,000 | $0 | $0 | $0 |
| 2011 | $41,100 | $30,000 | $0 | $0 | $0 |
| 2010 | $41,100 | $30,000 | $0 | $0 | $0 |
| 2009 | $53,200 | $30,000 | $0 | $0 | $0 |
| 2008 | $53,200 | $30,000 | $0 | $0 | $0 |
| 2007 | $29,100 | $10,000 | $0 | $0 | $0 |
Deed and Sales History
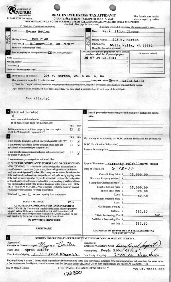
| 1 | 07/10/2012 | QCD | QUIT CLAIM DEED | OTIS, GLORIA | GIVENS, KEVIN ELDON | | | $0.00 | 122321 | 2012-05837 |
| 2 | 07/10/2012 | WARRANTY D | WARRANTY DEED | BUTLER, MYRNA | GIVENS, KEVIN ELDON | | | $25,000.00 | 122320 | 2012-05838 |
| 3 | 10/27/2004 | QCD | QUIT CLAIM DEED | BLAND, VIOLET MAY | OTIS, GLORIA A & MYRNA BUTLER | | | | 106059 | 2004-12418 |
| 4 | 10/27/2002 | QCD | QUIT CLAIM DEED | BUOY, WAYLAND | OTIS, GLORIA A & MYRNA BUTLER | | | | 106058 | 2004-12417 |
| 5 | 12/06/1977 | WARRANTY D | WARRANTY DEED | | | | | $8,250.00 | 0 | 7205-71388 |
Payout Agreement
| No payout information available.. |