Property
Account |
| Property ID: | 10823 | Abbreviated Legal Description: | HENDERSON TAX 2 BLK 35 |
| Parcel Number: | 360729683502 | Agent Code: | |
| Type: | Real | | |
| Tax Area: | 1 - OL-140-F | Land Use Code | 11 |
| Open Space: | N | DFL | N |
| Historic Property: | N | Remodel Property: | N |
| Multi-Family Redevelopment: | N | | |
| Township: | 7 | Section: | 29 |
| Range: | 36 |
Location |
| Address: | 241 W MORTON ST WA 99362 | Mapsco: | |
| Neighborhood: | Fair Res | Map ID: | |
| Neighborhood CD: | 612011 |
Owner |
| Name: | NELSON LAUREN M | Owner ID: | 68391 |
| Mailing Address: | 241 W MORTON ST WALLA WALLA, WA 99362 | % Ownership: | 100.0000000000% |
| | | Exemptions: | SNR/DSBL |
Taxes and Assessment Details
Property Tax Information as of
02/21/2026
Click on "Statement Details" to expand or collapse a tax statement.
* Please enter a valid date ** Please enter a valid date *
Statement Details |
| | TOTAL: | $0.00 | $0.00 | $0.00 | $0.00 | $0.00 | $0.00 |
|
| | $0.00 | $0.00 | $0.00 | $0.00 | $0.00 | $0.00 |
Values
| (+) Improvement Homesite Value: | + | $185,720 | |
| (+) Improvement Non-Homesite Value: | + | $0 | |
| (+) Land Homesite Value: | + | $43,200 | |
| (+) Land Non-Homesite Value: | + | $0 | |
| (+) Curr Use (HS): | + | $0 | $0 |
| (+) Curr Use (NHS): | + | $0 | $0 |
| | | -------------------------- | |
| (=) Market Value: | = | $228,920 | |
| (–) Productivity Loss: | – | $0 | |
| | | -------------------------- | |
| (=) Subtotal: | = | $228,920 | |
| (+) Senior Appraised Value: | + | $176,610 | |
| (+) Non-Senior Appraised Value: | + | $0 | |
| | | -------------------------- | |
| (=) Total Appraised Value: | = | $176,610 | |
| (–) Senior Exemption Loss: | – | $105,966 | |
| (–) Exemption Loss: | – | $0 | |
| | | -------------------------- | |
| (=) Taxable Value: | = | $70,644 | |
Taxing Jurisdiction
| Owner: | NELSON LAUREN M | | |
| % Ownership: | 100.0000000000% | | |
| Total Value: | $228,920 | | |
| Tax Area: | 1 - OL-140-F |
| CERFD | CURRENT EXPENSE REFUND 010 | 0.0000000000 | $228,920 | $70,644 | $0.00 | | |
| CURREXP | CURRENT EXPENSE 010 | 1.0175366760 | $228,920 | $70,644 | $71.88 | | |
| HUMNSERV | HUMAN SERVICES 119 | 0.0250000000 | $228,920 | $70,644 | $1.77 | | |
| SLDREL | SOLDIERS RELIEF 121 | 0.0155990005 | $228,920 | $70,644 | $1.10 | | |
| EMERGSER | EMS 147 | 0.3792580840 | $228,920 | $70,644 | $26.79 | | |
| EMSRFD | EMS REFUND 147 | 0.0000000000 | $228,920 | $70,644 | $0.00 | | |
| PORTRFD | PORT REFUND 640 | 0.0000000000 | $228,920 | $70,644 | $0.00 | | |
| PORTWWGEN | PORT OF WW 640 | 0.2460186015 | $228,920 | $70,644 | $17.38 | | |
| SD140BOND | SD #140 BOND 764 | 0.0000000000 | $228,920 | $0 | $0.00 | | |
| SD140GEN | SD #140 GENERAL 760 | 0.0000000000 | $228,920 | $0 | $0.00 | | |
| ST2 | STATE SCHOOL PART 2 600 | 0.0000000000 | $228,920 | $0 | $0.00 | | |
| STATESCHL | STATE SCHOOL 600 | 1.5158548041 | $228,920 | $70,644 | $107.09 | | |
| STREFUND | STATE REFUND LEVY 603 | 0.0000000000 | $228,920 | $70,644 | $0.00 | | |
| CWWBOND | C OF WW BOND 643 | 0.0000000000 | $228,920 | $0 | $0.00 | | |
| CWWGEN | CITY OF WW 631 | 1.6100204973 | $228,920 | $70,644 | $113.74 | | |
| CWWRFD | CITY OF WALLA WALLA REFUND 631 | 0.0000000000 | $228,920 | $70,644 | $0.00 | | |
| | Total Tax Rate: | 4.8092876634 | | | | | |
| | | | | Taxes w/Current Exemptions: | $339.75 | | |
| | | | | Taxes w/o Exemptions: | $2,013.89 | | |
Improvement / Building
| Improvement #1: | RESIDENTIAL | State Code: | 11 | 805.0 sqft | Value: | $185,720 |
| Exterior Wall: | PLYWOOD | Heating/Cooling: | BASEBOARD ELECTRIC | | Number of Bathrooms: | 1 | Number of Bedrooms: | 2 | | Plumbing: | 7 | Roof Covering: | COMP SHINGLE |
|
| | Type | Description | Class CD | Sub Class CD | Year Built | Area |
| | MA | Main Area | 1 | 25 | 1949 | 805.0 |
| | SI1 | SITE IMPROVEMENT | 1 | 25 | 1949 | 1.0 |
| | BASE | BASEMENT | 1 | 25 | 1949 | 805.0 |
| | BMF | BASEMENT - MIN FINISH | 1 | 25 | 1949 | 400.0 |
| | DTG | Detached Garage | 1 | 25 | 1949 | 540.0 |
| | RPS | PORCH W/STEPS,ROOF | 1 | 25 | 1949 | 20.0 |
| | WOD | Wood Deck | 1 | 25 | 1949 | 228.0 |
Sketch
Property Image
Land
| 1 | RES 1 | Converted: Residential | 0.1240 | 5400.00 | 0.00 | 0.00 | 1.00 | $43,200 | $0 |
Roll Value History
| 2026 | N/A | N/A | N/A | N/A | N/A |
| 2025 | $196,720 | $54,000 | $0 | $250,720 | $70,644 |
| 2024 | $195,000 | $43,200 | $0 | $238,200 | $70,644 |
| 2023 | $185,720 | $43,200 | $0 | $228,920 | $70,644 |
| 2022 | $185,720 | $33,750 | $0 | $219,470 | $70,644 |
| 2021 | $142,860 | $33,750 | $0 | $176,610 | $70,644 |
| 2020 | $119,050 | $33,750 | $0 | $152,800 | $152,800 |
| 2019 | $119,050 | $33,750 | $0 | $152,800 | $152,800 |
| 2018 | $91,890 | $32,400 | $0 | $124,290 | $124,290 |
| 2017 | $70,690 | $32,400 | $0 | $103,090 | $103,090 |
| 2016 | $64,260 | $32,400 | $0 | $96,660 | $96,660 |
| 2015 | $64,260 | $32,400 | $0 | $96,660 | $96,660 |
| 2014 | $71,400 | $32,400 | $0 | $103,800 | $103,800 |
| 2013 | $71,400 | $32,400 | $0 | $103,800 | $103,800 |
| 2012 | $71,400 | $32,400 | $0 | $0 | $0 |
| 2011 | $71,400 | $32,400 | $0 | $0 | $0 |
| 2010 | $71,400 | $32,400 | $0 | $0 | $0 |
| 2009 | $82,900 | $32,400 | $0 | $0 | $0 |
| 2008 | $82,900 | $32,400 | $0 | $0 | $0 |
| 2007 | $55,200 | $10,800 | $0 | $0 | $0 |
Deed and Sales History
| 1 | 12/10/2020 | DPR | DEED OF PERSONAL REPRESENTATIVE | NELSON MARSHA J | NELSON LAUREN M | | | | 140528 | 2020-13090 |
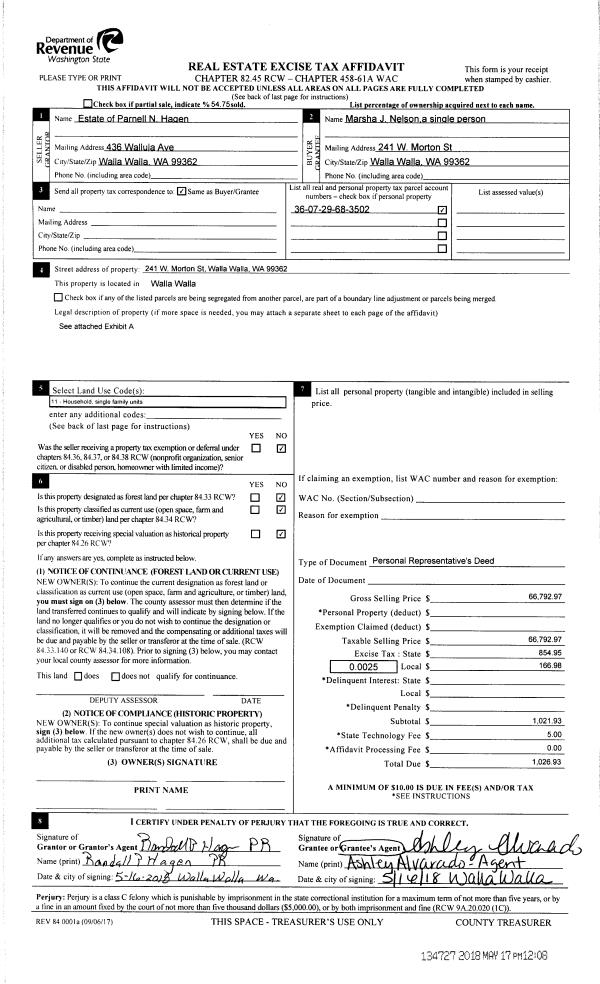
| 2 | 05/17/2018 | DPR | DEED OF PERSONAL REPRESENTATIVE | HAGEN PARNELL N ESTATE OF | NELSON MARSHA J | | | $66,793.00 | 134727 | 2018-03886 |
| 3 | 05/14/2018 | DPR | DEED OF PERSONAL REPRESENTATIVE | HAGEN PARNELL N ESTATE OF | HAGEN PARNELL N ESTATE OF | | | $0.00 | 134702 | 2018-03779 |
| 4 | 06/27/1991 | WARRANTY D | WARRANTY DEED | | | | | $48,000.00 | 0 | 1909-104185 |
Payout Agreement
| No payout information available.. |