Property
Account |
| Property ID: | 10817 | Abbreviated Legal Description: | HENDERSON TAX 4 BLK 33 |
| Parcel Number: | 360729683304 | Agent Code: | |
| Type: | Real | | |
| Tax Area: | 1 - OL-140-F | Land Use Code | 11 |
| Open Space: | N | DFL | N |
| Historic Property: | N | Remodel Property: | N |
| Multi-Family Redevelopment: | N | | |
| Township: | 7 | Section: | 29 |
| Range: | 36 |
Location |
| Address: | 222 W MORTON ST WA 99362 | Mapsco: | |
| Neighborhood: | Fair Res | Map ID: | |
| Neighborhood CD: | 612011 |
Owner |
| Name: | GIBSON MICHAEL D | Owner ID: | 67741 |
| Mailing Address: | 222 W MORTON ST WALLA WALLA, WA 99362 | % Ownership: | 100.0000000000% |
| | | Exemptions: | SNR/DSBL |
Taxes and Assessment Details
Values
| (+) Improvement Homesite Value: | + | $266,460 | |
| (+) Improvement Non-Homesite Value: | + | $0 | |
| (+) Land Homesite Value: | + | $48,000 | |
| (+) Land Non-Homesite Value: | + | $0 | |
| (+) Curr Use (HS): | + | $0 | $0 |
| (+) Curr Use (NHS): | + | $0 | $0 |
| | | -------------------------- | |
| (=) Market Value: | = | $314,460 | |
| (–) Productivity Loss: | – | $0 | |
| | | -------------------------- | |
| (=) Subtotal: | = | $314,460 | |
| (+) Senior Appraised Value: | + | $268,200 | |
| (+) Non-Senior Appraised Value: | + | $0 | |
| | | -------------------------- | |
| (=) Total Appraised Value: | = | $268,200 | |
| (–) Senior Exemption Loss: | – | $70,000 | |
| (–) Exemption Loss: | – | $0 | |
| | | -------------------------- | |
| (=) Taxable Value: | = | $198,200 | |
Taxing Jurisdiction
| Owner: | GIBSON MICHAEL D | | |
| % Ownership: | 100.0000000000% | | |
| Total Value: | $314,460 | | |
| Tax Area: | 1 - OL-140-F |
| CERFD | CURRENT EXPENSE REFUND 010 | 0.0000000000 | $314,460 | $198,200 | $0.00 | | |
| CURREXP | CURRENT EXPENSE 010 | 1.0175366760 | $314,460 | $198,200 | $201.68 | | |
| HUMNSERV | HUMAN SERVICES 119 | 0.0250000000 | $314,460 | $198,200 | $4.96 | | |
| SLDREL | SOLDIERS RELIEF 121 | 0.0155990005 | $314,460 | $198,200 | $3.09 | | |
| EMERGSER | EMS 147 | 0.3792580840 | $314,460 | $198,200 | $75.17 | | |
| EMSRFD | EMS REFUND 147 | 0.0000000000 | $314,460 | $198,200 | $0.00 | | |
| PORTRFD | PORT REFUND 640 | 0.0000000000 | $314,460 | $198,200 | $0.00 | | |
| PORTWWGEN | PORT OF WW 640 | 0.2460186015 | $314,460 | $198,200 | $48.76 | | |
| SD140BOND | SD #140 BOND 764 | 0.0000000000 | $314,460 | $0 | $0.00 | | |
| SD140GEN | SD #140 GENERAL 760 | 0.0000000000 | $314,460 | $0 | $0.00 | | |
| ST2 | STATE SCHOOL PART 2 600 | 0.0000000000 | $314,460 | $0 | $0.00 | | |
| STATESCHL | STATE SCHOOL 600 | 1.5158548041 | $314,460 | $198,200 | $300.44 | | |
| STREFUND | STATE REFUND LEVY 603 | 0.0000000000 | $314,460 | $198,200 | $0.00 | | |
| CWWBOND | C OF WW BOND 643 | 0.0000000000 | $314,460 | $0 | $0.00 | | |
| CWWGEN | CITY OF WW 631 | 1.6100204973 | $314,460 | $198,200 | $319.11 | | |
| CWWRFD | CITY OF WALLA WALLA REFUND 631 | 0.0000000000 | $314,460 | $198,200 | $0.00 | | |
| | Total Tax Rate: | 4.8092876634 | | | | | |
| | | | | Taxes w/Current Exemptions: | $953.21 | | |
| | | | | Taxes w/o Exemptions: | $2,766.42 | | |
Improvement / Building
| Improvement #1: | RESIDENTIAL | State Code: | 11 | 2072.0 sqft | Value: | $266,460 |
| Exterior Wall: | SHINGLE | Heating/Cooling: | WARM & COOLED AIR | | Number of Bathrooms: | 2 | Number of Bedrooms: | 6 | | Plumbing: | 9 | Roof Covering: | COMP SHINGLE |
|
| | Type | Description | Class CD | Sub Class CD | Year Built | Area |
| | MA | Main Area | 4 | 30 | 1902 | 2072.0 |
| | UPFL | Upper Floor (included in main area) | 4 | 30 | 1902 | 800.0 |
| | SI1 | SITE IMPROVEMENT | 4 | 30 | 1902 | 2.5 |
| | BASE | BASEMENT | 4 | 30 | 1902 | 525.0 |
| | WDR | WOOD DECK W/ROOF | 4 | 30 | 1902 | 120.0 |
| | PRC | PORCH W STEPS, ROOF,CEILED | 4 | 30 | 1902 | 18.0 |
Sketch
Property Image
Land
| 1 | RES 1 | Converted: Residential | 0.1377 | 6000.00 | 0.00 | 0.00 | 1.00 | $48,000 | $0 |
Roll Value History
| 2026 | N/A | N/A | N/A | N/A | N/A |
| 2025 | $278,120 | $60,000 | $0 | $338,120 | $198,200 |
| 2024 | $293,110 | $48,000 | $0 | $341,110 | $198,200 |
| 2023 | $266,460 | $48,000 | $0 | $314,460 | $198,200 |
| 2022 | $266,460 | $37,500 | $0 | $303,960 | $268,200 |
| 2021 | $242,240 | $37,500 | $0 | $279,740 | $268,200 |
| 2020 | $230,700 | $37,500 | $0 | $268,200 | $268,200 |
| 2019 | $120,800 | $37,500 | $0 | $158,300 | $158,300 |
| 2018 | $97,460 | $36,000 | $0 | $133,460 | $133,460 |
| 2017 | $97,460 | $36,000 | $0 | $133,460 | $133,460 |
| 2016 | $88,600 | $36,000 | $0 | $124,600 | $124,600 |
| 2015 | $88,600 | $36,000 | $0 | $124,600 | $124,600 |
| 2014 | $88,600 | $36,000 | $0 | $124,600 | $124,600 |
| 2013 | $88,600 | $36,000 | $0 | $124,600 | $124,600 |
| 2012 | $88,400 | $36,000 | $0 | $0 | $0 |
| 2011 | $88,400 | $36,000 | $0 | $0 | $0 |
| 2010 | $88,400 | $36,000 | $0 | $0 | $0 |
| 2009 | $102,300 | $36,000 | $0 | $0 | $0 |
| 2008 | $102,300 | $36,000 | $0 | $0 | $0 |
| 2007 | $81,000 | $12,000 | $0 | $0 | $0 |
Deed and Sales History
| 1 | 08/05/2020 | SWD | STATUTORY WARRANTY DEED | HERNANDEZ SALVADOR R | GIBSON MICHAEL D | | | $285,000.00 | 139655 | 2020-07631 |
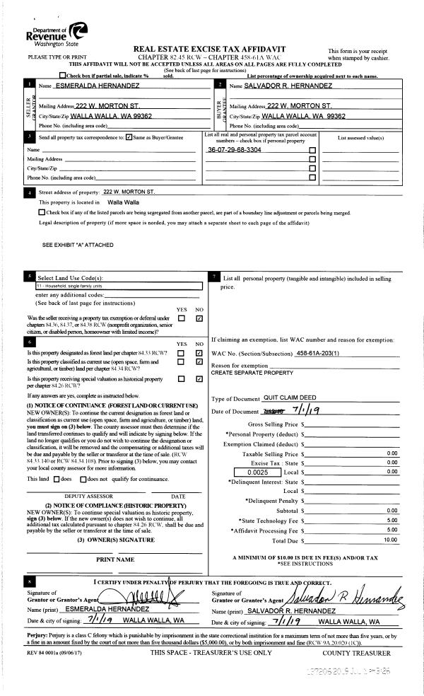
| 2 | 07/01/2019 | QCD | QUIT CLAIM DEED | HERNANDEZ ESMERALDA | HERNANDEZ SALVADOR R | | | | 137206 | 2019-04722 |
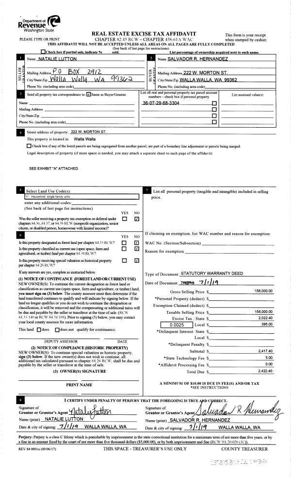
| 3 | 07/01/2019 | SWD | STATUTORY WARRANTY DEED | LUTTON NATALIE | HERNANDEZ SALVADOR R | | | $158,000.00 | 137205 | 2019-04721 |
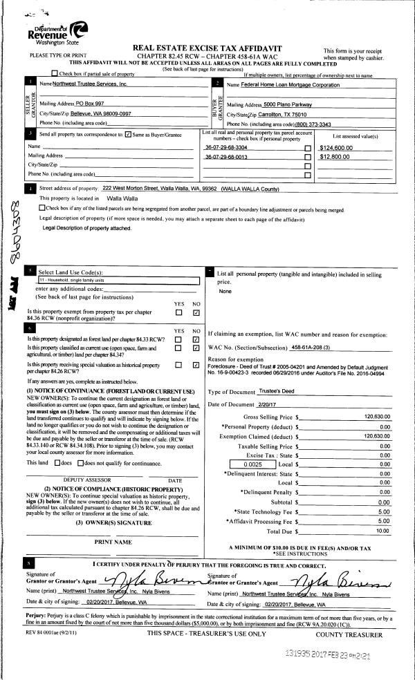
| 4 | 10/09/2017 | SWD | STATUTORY WARRANTY DEED | FEDERAL HOME LOAN MORTGAGE CORP | LUTTON NATALIE | | | $0.00 | 133394 | 2017-08114 |
| 5 | 02/23/2017 | TRUSTEES D | TRUSTEE'S DEED | KINCHELOE PATRICK D & ALANA S | FEDERAL HOME LOAN MORTGAGE CORP | | 2-PARCLES | $130,630.00 | 131935 | 2017-01455 |
|   | |
| 6 | 09/27/1996 | WARRANTY D | WARRANTY DEED | | | | | $89,000.00 | 86937 | 2449-609854 |
|   | |
Payout Agreement
| No payout information available.. |