Property
Account |
| Property ID: | 10809 | Abbreviated Legal Description: | HENDERSON TAX 3 BLK 32 |
| Parcel Number: | 360729683203 | Agent Code: | |
| Type: | Real | | |
| Tax Area: | 1 - OL-140-F | Land Use Code | 11 |
| Open Space: | N | DFL | N |
| Historic Property: | N | Remodel Property: | N |
| Multi-Family Redevelopment: | N | | |
| Township: | 7 | Section: | 29 |
| Range: | 36 |
Location |
| Address: | 248 W MORTON ST WA 99362 | Mapsco: | |
| Neighborhood: | Fair Res | Map ID: | |
| Neighborhood CD: | 612011 |
Owner |
| Name: | LUENGAS MAYA MARISOL | Owner ID: | 72231 |
| Mailing Address: | 933 OLYMPIA DR WALLA WALLA, WA 99362 | % Ownership: | 100.0000000000% |
| | | Exemptions: | |
Taxes and Assessment Details
Property Tax Information as of
02/21/2026
Click on "Statement Details" to expand or collapse a tax statement.
* Please enter a valid date ** Please enter a valid date *
Statement Details |
| | TOTAL: | $0.00 | $0.00 | $0.00 | $0.00 | $0.00 | $0.00 |
|
| | $0.00 | $0.00 | $0.00 | $0.00 | $0.00 | $0.00 |
Values
| (+) Improvement Homesite Value: | + | $0 | |
| (+) Improvement Non-Homesite Value: | + | $224,800 | |
| (+) Land Homesite Value: | + | $0 | |
| (+) Land Non-Homesite Value: | + | $49,920 | |
| (+) Curr Use (HS): | + | $0 | $0 |
| (+) Curr Use (NHS): | + | $0 | $0 |
| | | -------------------------- | |
| (=) Market Value: | = | $274,720 | |
| (–) Productivity Loss: | – | $0 | |
| | | -------------------------- | |
| (=) Subtotal: | = | $274,720 | |
| (+) Senior Appraised Value: | + | $0 | |
| (+) Non-Senior Appraised Value: | + | $274,720 | |
| | | -------------------------- | |
| (=) Total Appraised Value: | = | $274,720 | |
| (–) Senior Exemption Loss: | – | $0 | |
| (–) Exemption Loss: | – | $0 | |
| | | -------------------------- | |
| (=) Taxable Value: | = | $274,720 | |
Taxing Jurisdiction
| Owner: | LUENGAS MAYA MARISOL | | |
| % Ownership: | 100.0000000000% | | |
| Total Value: | $274,720 | | |
| Tax Area: | 1 - OL-140-F |
| CERFD | CURRENT EXPENSE REFUND 010 | 0.0000000000 | $274,720 | $274,720 | $0.00 | | |
| CURREXP | CURRENT EXPENSE 010 | 1.0175366760 | $274,720 | $274,720 | $279.54 | | |
| HUMNSERV | HUMAN SERVICES 119 | 0.0250000000 | $274,720 | $274,720 | $6.87 | | |
| SLDREL | SOLDIERS RELIEF 121 | 0.0155990005 | $274,720 | $274,720 | $4.29 | | |
| EMERGSER | EMS 147 | 0.3792580840 | $274,720 | $274,720 | $104.19 | | |
| EMSRFD | EMS REFUND 147 | 0.0000000000 | $274,720 | $274,720 | $0.00 | | |
| PORTRFD | PORT REFUND 640 | 0.0000000000 | $274,720 | $274,720 | $0.00 | | |
| PORTWWGEN | PORT OF WW 640 | 0.2460186015 | $274,720 | $274,720 | $67.59 | | |
| SD140BOND | SD #140 BOND 764 | 0.8342371393 | $274,720 | $274,720 | $229.18 | | |
| SD140GEN | SD #140 GENERAL 760 | 2.0646500647 | $274,720 | $274,720 | $567.20 | | |
| ST2 | STATE SCHOOL PART 2 600 | 0.8131451643 | $274,720 | $274,720 | $223.39 | | |
| STATESCHL | STATE SCHOOL 600 | 1.5158548041 | $274,720 | $274,720 | $416.44 | | |
| STREFUND | STATE REFUND LEVY 603 | 0.0000000000 | $274,720 | $274,720 | $0.00 | | |
| CWWBOND | C OF WW BOND 643 | 0.2760494372 | $274,720 | $274,720 | $75.84 | | |
| CWWGEN | CITY OF WW 631 | 1.6100204973 | $274,720 | $274,720 | $442.30 | | |
| CWWRFD | CITY OF WALLA WALLA REFUND 631 | 0.0000000000 | $274,720 | $274,720 | $0.00 | | |
| | Total Tax Rate: | 8.7973694689 | | | | | |
| | | | | Taxes w/Current Exemptions: | $2,416.83 | | |
| | | | | Taxes w/o Exemptions: | $2,416.83 | | |
Improvement / Building
| Improvement #1: | RESIDENTIAL | State Code: | 11 | 1008.0 sqft | Value: | $224,800 |
| Exterior Wall: | HARDBOARD | Heating/Cooling: | BASEBOARD ELECTRIC | | Number of Bathrooms: | 1 | Number of Bedrooms: | 3 | | Plumbing: | 7 | Roof Covering: | COMP SHINGLE |
|
| | Type | Description | Class CD | Sub Class CD | Year Built | Area |
| | MA | Main Area | 1 | 25 | 1954 | 1008.0 |
| | SI1 | SITE IMPROVEMENT | 1 | 25 | 0 | 1.0 |
| | BASE | BASEMENT | 1 | 25 | 1954 | 576.0 |
| | BPF | BASEMENT -PARTITIONED FINISH | 1 | 25 | 1954 | 400.0 |
| | WOD | Wood Deck | 1 | 25 | 1954 | 192.0 |
| | CPC | COVERED CARPORT/PATIO | 1 | 25 | 1954 | 121.0 |
| | DTG | Detached Garage | 1 | 25 | 1954 | 216.0 |
| | DTG | Detached Garage | 1 | 25 | 2015 | 720.0 |
Sketch
Property Image
Land
| 1 | RES 1 | Converted: Residential | 0.1433 | 6240.00 | 0.00 | 0.00 | 1.00 | $49,920 | $0 |
Roll Value History
| 2026 | N/A | N/A | N/A | N/A | N/A |
| 2025 | $225,830 | $62,400 | $0 | $288,230 | $288,230 |
| 2024 | $224,800 | $49,920 | $0 | $274,720 | $274,720 |
| 2023 | $224,800 | $49,920 | $0 | $274,720 | $274,720 |
| 2022 | $224,800 | $39,000 | $0 | $263,800 | $263,800 |
| 2021 | $172,920 | $39,000 | $0 | $211,920 | $211,920 |
| 2020 | $157,200 | $39,000 | $0 | $196,200 | $196,200 |
| 2019 | $140,100 | $39,000 | $0 | $179,100 | $179,100 |
| 2018 | $115,330 | $37,400 | $0 | $152,730 | $152,730 |
| 2017 | $104,840 | $37,400 | $0 | $142,240 | $142,240 |
| 2016 | $95,310 | $37,400 | $0 | $132,710 | $132,710 |
| 2015 | $81,310 | $37,400 | $0 | $118,710 | $118,710 |
| 2014 | $70,700 | $37,400 | $0 | $108,100 | $108,100 |
| 2013 | $70,700 | $37,400 | $0 | $108,100 | $108,100 |
| 2012 | $69,700 | $37,400 | $0 | $0 | $0 |
| 2011 | $69,700 | $37,400 | $0 | $0 | $0 |
| 2010 | $69,700 | $37,400 | $0 | $0 | $0 |
| 2009 | $81,600 | $37,400 | $0 | $0 | $0 |
| 2008 | $81,600 | $37,400 | $0 | $0 | $0 |
| 2007 | $64,100 | $12,500 | $0 | $0 | $0 |
Deed and Sales History
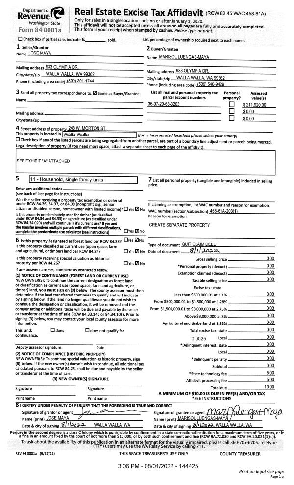
| 1 | 08/01/2022 | QCD | QUIT CLAIM DEED | MAYA JOSE | LUENGAS MAYA MARISOL | | | $0.00 | 144425 | 2022-06452 |
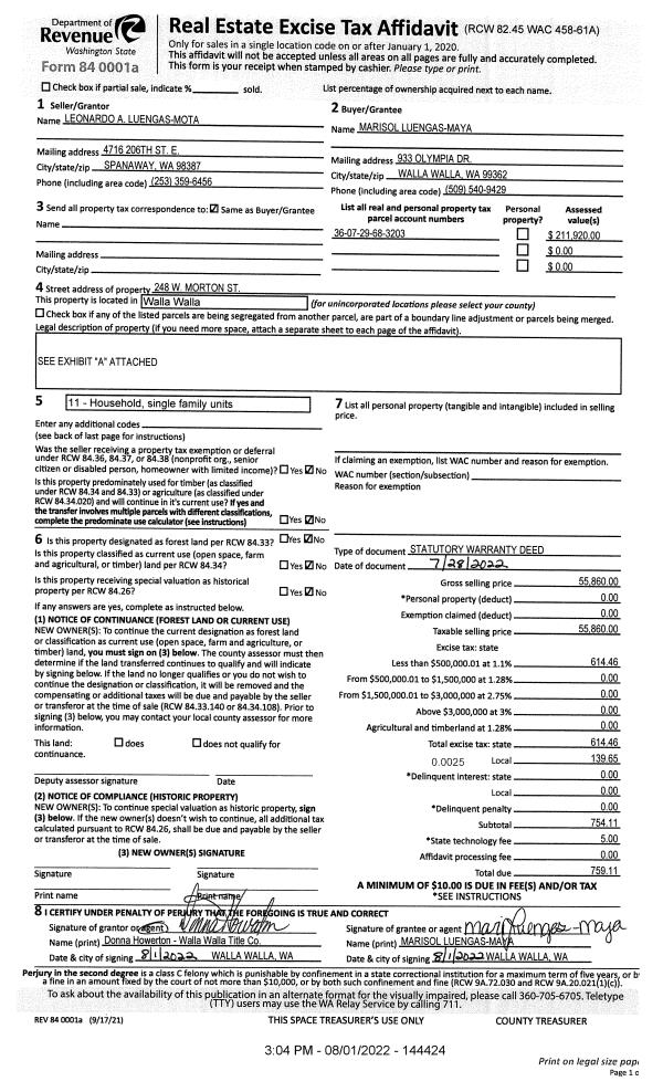
| 2 | 07/28/2022 | SWD | STATUTORY WARRANTY DEED | LUENGAS MOTA LEONARDO A | LUENGAS MAYA MARISOL | | | $55,860.00 | 144424 | 2022-06451 |
| 3 | 07/27/2022 | LOPA | LACK OF PROBATE AFFIDAVIT | LUENGAS LEONARDO A | LUENGAS MOTA LEONARDO A | | | $0.00 | 144423 | 2022-06450 |
| 4 | 12/06/2001 | WARRANTY D | WARRANTY DEED | | | | | $79,900.00 | 98494 | 3240-13358 |
Payout Agreement
| No payout information available.. |