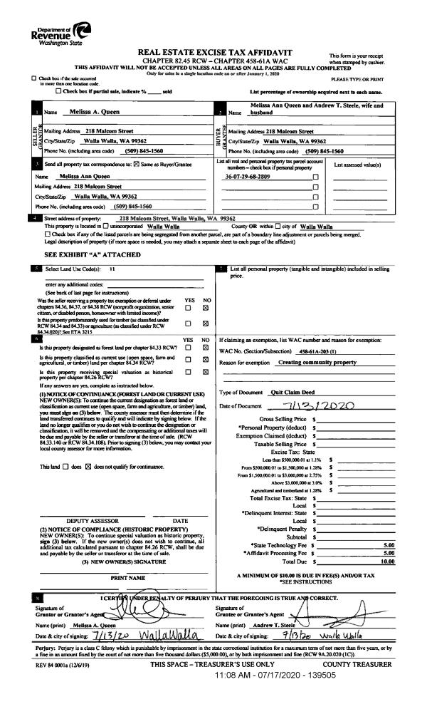
Property
Account |
| Property ID: | 10794 | Abbreviated Legal Description: | HENDERSON LOT 9 BLK A |
| Parcel Number: | 360729682809 | Agent Code: | |
| Type: | Real | | |
| Tax Area: | 1 - OL-140-F | Land Use Code | 11 |
| Open Space: | N | DFL | N |
| Historic Property: | N | Remodel Property: | N |
| Multi-Family Redevelopment: | N | | |
| Township: | 7 | Section: | 29 |
| Range: | 36 |
Location |
| Address: | 218 MALCOLM ST WA 99362 | Mapsco: | |
| Neighborhood: | Fair Res | Map ID: | |
| Neighborhood CD: | 612011 |
Owner |
| Name: | QUEEN MELISSA A & ANDREW T STEELE | Owner ID: | 67575 |
| Mailing Address: | 111 MEADOW ST WALLA WALLA, WA 99362 | % Ownership: | 100.0000000000% |
| | | Exemptions: | |
Taxes and Assessment Details
Property Tax Information as of
02/21/2026
Click on "Statement Details" to expand or collapse a tax statement.
* Please enter a valid date ** Please enter a valid date *
Statement Details |
| | TOTAL: | $0.00 | $0.00 | $0.00 | $0.00 | $0.00 | $0.00 |
|
| | $0.00 | $0.00 | $0.00 | $0.00 | $0.00 | $0.00 |
Values
| (+) Improvement Homesite Value: | + | $0 | |
| (+) Improvement Non-Homesite Value: | + | $160,400 | |
| (+) Land Homesite Value: | + | $0 | |
| (+) Land Non-Homesite Value: | + | $40,000 | |
| (+) Curr Use (HS): | + | $0 | $0 |
| (+) Curr Use (NHS): | + | $0 | $0 |
| | | -------------------------- | |
| (=) Market Value: | = | $200,400 | |
| (–) Productivity Loss: | – | $0 | |
| | | -------------------------- | |
| (=) Subtotal: | = | $200,400 | |
| (+) Senior Appraised Value: | + | $0 | |
| (+) Non-Senior Appraised Value: | + | $200,400 | |
| | | -------------------------- | |
| (=) Total Appraised Value: | = | $200,400 | |
| (–) Senior Exemption Loss: | – | $0 | |
| (–) Exemption Loss: | – | $0 | |
| | | -------------------------- | |
| (=) Taxable Value: | = | $200,400 | |
Taxing Jurisdiction
| Owner: | QUEEN MELISSA A & ANDREW T STEELE | | |
| % Ownership: | 100.0000000000% | | |
| Total Value: | $200,400 | | |
| Tax Area: | 1 - OL-140-F |
| CERFD | CURRENT EXPENSE REFUND 010 | 0.0000000000 | $200,400 | $200,400 | $0.00 | | |
| CURREXP | CURRENT EXPENSE 010 | 1.0175366760 | $200,400 | $200,400 | $203.91 | | |
| HUMNSERV | HUMAN SERVICES 119 | 0.0250000000 | $200,400 | $200,400 | $5.01 | | |
| SLDREL | SOLDIERS RELIEF 121 | 0.0155990005 | $200,400 | $200,400 | $3.13 | | |
| EMERGSER | EMS 147 | 0.3792580840 | $200,400 | $200,400 | $76.00 | | |
| EMSRFD | EMS REFUND 147 | 0.0000000000 | $200,400 | $200,400 | $0.00 | | |
| PORTRFD | PORT REFUND 640 | 0.0000000000 | $200,400 | $200,400 | $0.00 | | |
| PORTWWGEN | PORT OF WW 640 | 0.2460186015 | $200,400 | $200,400 | $49.30 | | |
| SD140BOND | SD #140 BOND 764 | 0.8342371393 | $200,400 | $200,400 | $167.18 | | |
| SD140GEN | SD #140 GENERAL 760 | 2.0646500647 | $200,400 | $200,400 | $413.76 | | |
| ST2 | STATE SCHOOL PART 2 600 | 0.8131451643 | $200,400 | $200,400 | $162.95 | | |
| STATESCHL | STATE SCHOOL 600 | 1.5158548041 | $200,400 | $200,400 | $303.78 | | |
| STREFUND | STATE REFUND LEVY 603 | 0.0000000000 | $200,400 | $200,400 | $0.00 | | |
| CWWBOND | C OF WW BOND 643 | 0.2760494372 | $200,400 | $200,400 | $55.32 | | |
| CWWGEN | CITY OF WW 631 | 1.6100204973 | $200,400 | $200,400 | $322.65 | | |
| CWWRFD | CITY OF WALLA WALLA REFUND 631 | 0.0000000000 | $200,400 | $200,400 | $0.00 | | |
| | Total Tax Rate: | 8.7973694689 | | | | | |
| | | | | Taxes w/Current Exemptions: | $1,762.99 | | |
| | | | | Taxes w/o Exemptions: | $1,762.99 | | |
Improvement / Building
| Improvement #1: | RESIDENTIAL | State Code: | 11 | 868.0 sqft | Value: | $160,400 |
| Exterior Wall: | SIDING | Heating/Cooling: | FORCED AIR | | Number of Bathrooms: | 1 | Number of Bedrooms: | 1 | | Plumbing: | 7 | Roof Covering: | COMP SHINGLE |
|
| | Type | Description | Class CD | Sub Class CD | Year Built | Area |
| | MA | Main Area | 1 | 25 | 1902 | 868.0 |
| | SI1 | SITE IMPROVEMENT | 1 | 25 | 1902 | 1.0 |
| | BASE | BASEMENT | 1 | 25 | 1902 | 96.0 |
| | SWP | Solid Wall Porch | 1 | 25 | 1902 | 70.0 |
| | WDR | WOOD DECK W/ROOF | 1 | 25 | 1902 | 84.0 |
Sketch
Property Image
Land
| 1 | RES 1 | Converted: Residential | 0.1148 | 5000.00 | 0.00 | 0.00 | 1.00 | $40,000 | $0 |
Roll Value History
| 2026 | N/A | N/A | N/A | N/A | N/A |
| 2025 | $151,070 | $50,000 | $0 | $201,070 | $201,070 |
| 2024 | $160,400 | $40,000 | $0 | $200,400 | $200,400 |
| 2023 | $160,400 | $40,000 | $0 | $200,400 | $200,400 |
| 2022 | $160,400 | $31,250 | $0 | $191,650 | $191,650 |
| 2021 | $114,570 | $31,250 | $0 | $145,820 | $145,820 |
| 2020 | $63,650 | $31,250 | $0 | $94,900 | $94,900 |
| 2019 | $63,650 | $31,250 | $0 | $94,900 | $94,900 |
| 2018 | $64,900 | $30,000 | $0 | $94,900 | $94,900 |
| 2017 | $64,900 | $30,000 | $0 | $94,900 | $94,900 |
| 2016 | $64,900 | $30,000 | $0 | $94,900 | $94,900 |
| 2015 | $64,900 | $30,000 | $0 | $94,900 | $94,900 |
| 2014 | $64,900 | $30,000 | $0 | $94,900 | $94,900 |
| 2013 | $64,900 | $30,000 | $0 | $94,900 | $94,900 |
| 2012 | $67,400 | $30,000 | $0 | $0 | $0 |
| 2011 | $67,400 | $30,000 | $0 | $0 | $0 |
| 2010 | $67,400 | $30,000 | $0 | $0 | $0 |
| 2009 | $78,200 | $30,000 | $0 | $0 | $0 |
| 2008 | $90,200 | $30,000 | $0 | $0 | $0 |
| 2007 | $41,000 | $10,000 | $0 | $0 | $0 |
Deed and Sales History
| 1 | 07/17/2020 | QCD | QUIT CLAIM DEED | QUEEN MELISSA A | QUEEN MELISSA A & ANDREW T STEELE | | | | 139505 | 2020-06862 |
| 2 | 02/12/2019 | SWD | STATUTORY WARRANTY DEED | SEIDL DAVID | QUEEN MELISSA A | | | $85,000.00 | 136382 | 2019-00955 |
| 3 | 05/18/2004 | WARRANTY D | WARRANTY DEED | EKLUND, DAISY | SEIDL, DAVID R | | | $60,000.00 | 104786 | 2004-05362 |
| 4 | 09/29/2000 | QCD | QUIT CLAIM DEED | | | | | $0.00 | 95903 | 3030-009343 |
Payout Agreement
| No payout information available.. |