Property
Account |
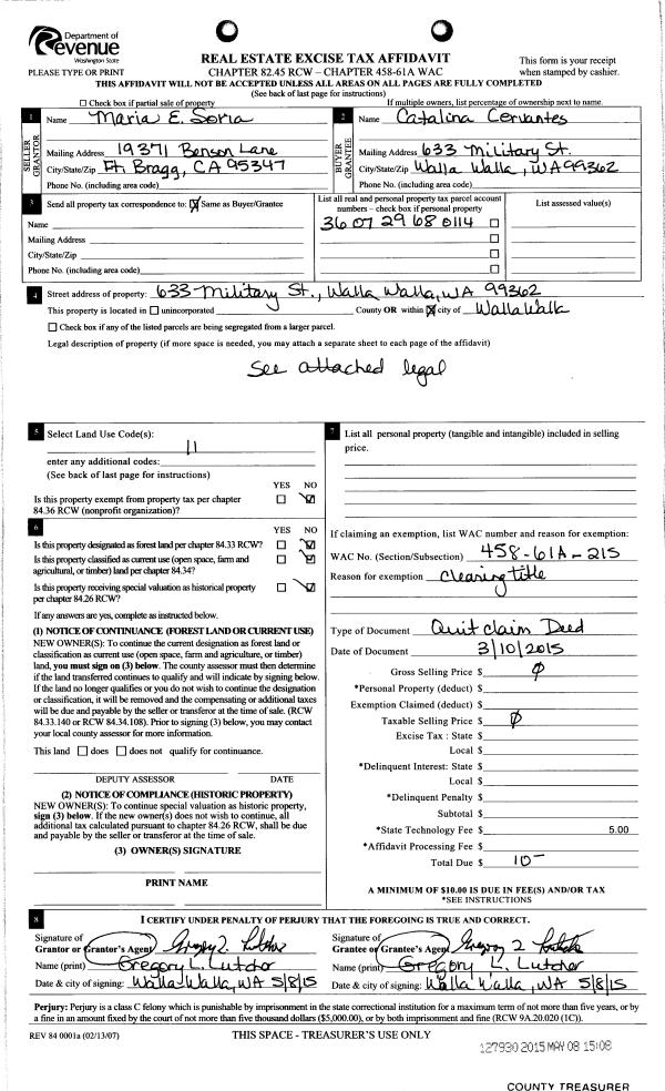
| Property ID: | 10768 | Abbreviated Legal Description: | HENDERSON (LESS TAX 1) LOT 10 BLK 1 W 44' OF (LESS TAX 1) LOT 11BLK 1 |
| Parcel Number: | 360729680114 | Agent Code: | |
| Type: | Real | | |
| Tax Area: | 1 - OL-140-F | Land Use Code | 11 |
| Open Space: | N | DFL | N |
| Historic Property: | N | Remodel Property: | N |
| Multi-Family Redevelopment: | N | | |
| Township: | 7 | Section: | 29 |
| Range: | 36 |
Location |
| Address: | 633 MILITARY ST WA 99362 | Mapsco: | |
| Neighborhood: | Fair Res | Map ID: | |
| Neighborhood CD: | 612011 |
Owner |
| Name: | SANDOVAL JAVIER C | Owner ID: | 65573 |
| Mailing Address: | 622 SPRING ST WALLA WALLA, WA 99362 | % Ownership: | 100.0000000000% |
| | | Exemptions: | |
Taxes and Assessment Details
Property Tax Information as of
02/21/2026
Click on "Statement Details" to expand or collapse a tax statement.
* Please enter a valid date ** Please enter a valid date *
Statement Details |
| | TOTAL: | $0.00 | $0.00 | $0.00 | $0.00 | $0.00 | $0.00 |
|
| | $0.00 | $0.00 | $0.00 | $0.00 | $0.00 | $0.00 |
Values
| (+) Improvement Homesite Value: | + | $0 | |
| (+) Improvement Non-Homesite Value: | + | $203,880 | |
| (+) Land Homesite Value: | + | $0 | |
| (+) Land Non-Homesite Value: | + | $36,000 | |
| (+) Curr Use (HS): | + | $0 | $0 |
| (+) Curr Use (NHS): | + | $0 | $0 |
| | | -------------------------- | |
| (=) Market Value: | = | $239,880 | |
| (–) Productivity Loss: | – | $0 | |
| | | -------------------------- | |
| (=) Subtotal: | = | $239,880 | |
| (+) Senior Appraised Value: | + | $0 | |
| (+) Non-Senior Appraised Value: | + | $239,880 | |
| | | -------------------------- | |
| (=) Total Appraised Value: | = | $239,880 | |
| (–) Senior Exemption Loss: | – | $0 | |
| (–) Exemption Loss: | – | $0 | |
| | | -------------------------- | |
| (=) Taxable Value: | = | $239,880 | |
Taxing Jurisdiction
| Owner: | SANDOVAL JAVIER C | | |
| % Ownership: | 100.0000000000% | | |
| Total Value: | $239,880 | | |
| Tax Area: | 1 - OL-140-F |
| CERFD | CURRENT EXPENSE REFUND 010 | 0.0000000000 | $239,880 | $239,880 | $0.00 | | |
| CURREXP | CURRENT EXPENSE 010 | 1.0175366760 | $239,880 | $239,880 | $244.09 | | |
| HUMNSERV | HUMAN SERVICES 119 | 0.0250000000 | $239,880 | $239,880 | $6.00 | | |
| SLDREL | SOLDIERS RELIEF 121 | 0.0155990005 | $239,880 | $239,880 | $3.74 | | |
| EMERGSER | EMS 147 | 0.3792580840 | $239,880 | $239,880 | $90.98 | | |
| EMSRFD | EMS REFUND 147 | 0.0000000000 | $239,880 | $239,880 | $0.00 | | |
| PORTRFD | PORT REFUND 640 | 0.0000000000 | $239,880 | $239,880 | $0.00 | | |
| PORTWWGEN | PORT OF WW 640 | 0.2460186015 | $239,880 | $239,880 | $59.01 | | |
| SD140BOND | SD #140 BOND 764 | 0.8342371393 | $239,880 | $239,880 | $200.12 | | |
| SD140GEN | SD #140 GENERAL 760 | 2.0646500647 | $239,880 | $239,880 | $495.27 | | |
| ST2 | STATE SCHOOL PART 2 600 | 0.8131451643 | $239,880 | $239,880 | $195.06 | | |
| STATESCHL | STATE SCHOOL 600 | 1.5158548041 | $239,880 | $239,880 | $363.62 | | |
| STREFUND | STATE REFUND LEVY 603 | 0.0000000000 | $239,880 | $239,880 | $0.00 | | |
| CWWBOND | C OF WW BOND 643 | 0.2760494372 | $239,880 | $239,880 | $66.22 | | |
| CWWGEN | CITY OF WW 631 | 1.6100204973 | $239,880 | $239,880 | $386.21 | | |
| CWWRFD | CITY OF WALLA WALLA REFUND 631 | 0.0000000000 | $239,880 | $239,880 | $0.00 | | |
| | Total Tax Rate: | 8.7973694689 | | | | | |
| | | | | Taxes w/Current Exemptions: | $2,110.32 | | |
| | | | | Taxes w/o Exemptions: | $2,110.32 | | |
Improvement / Building
| Improvement #1: | RESIDENTIAL | State Code: | 11 | 1029.0 sqft | Value: | $203,880 |
| Exterior Wall: | SIDING | Heating/Cooling: | STOVE-NO HEAT | | Number of Bathrooms: | 1 | Number of Bedrooms: | 3 | | Plumbing: | 7 | Roof Covering: | COMP SHINGLE |
|
| | Type | Description | Class CD | Sub Class CD | Year Built | Area |
| | MA | Main Area | 1 | 20 | 1905 | 1029.0 |
| | SI1 | SITE IMPROVEMENT | 1 | 20 | 1905 | 1.0 |
| | DTG | Detached Garage | 1 | 20 | 1905 | 360.0 |
| | OSP | Open | 1 | 20 | 1905 | 42.0 |
| | WOD | Wood Deck | 1 | 20 | 1905 | 75.0 |
| | CAB | REC CABIN | 1 | 20 | 1905 | 288.0 |
Sketch
Property Image
Land
| 1 | RES 1 | Converted: Residential | 0.1033 | 4500.00 | 0.00 | 0.00 | 1.00 | $36,000 | $0 |
Roll Value History
| 2026 | N/A | N/A | N/A | N/A | N/A |
| 2025 | $194,380 | $45,000 | $0 | $239,380 | $239,380 |
| 2024 | $203,880 | $36,000 | $0 | $239,880 | $239,880 |
| 2023 | $203,880 | $36,000 | $0 | $239,880 | $239,880 |
| 2022 | $203,880 | $28,130 | $0 | $232,010 | $232,010 |
| 2021 | $145,630 | $28,130 | $0 | $173,760 | $173,760 |
| 2020 | $107,870 | $28,130 | $0 | $136,000 | $136,000 |
| 2019 | $107,870 | $28,130 | $0 | $136,000 | $136,000 |
| 2018 | $102,800 | $27,000 | $0 | $129,800 | $31,900 |
| 2017 | $85,670 | $27,000 | $0 | $112,670 | $31,900 |
| 2016 | $77,880 | $27,000 | $0 | $104,880 | $31,900 |
| 2015 | $64,900 | $27,000 | $0 | $91,900 | $31,900 |
| 2014 | $64,900 | $27,000 | $0 | $91,900 | $31,900 |
| 2013 | $64,900 | $27,000 | $0 | $91,900 | $31,900 |
| 2012 | $64,900 | $27,000 | $0 | $0 | $0 |
| 2011 | $64,900 | $27,000 | $0 | $0 | $0 |
| 2010 | $64,900 | $27,000 | $0 | $0 | $0 |
| 2009 | $80,500 | $27,000 | $0 | $0 | $0 |
| 2008 | $80,500 | $27,000 | $0 | $0 | $0 |
| 2007 | $65,800 | $9,000 | $0 | $0 | $0 |
Deed and Sales History
| 1 | 07/24/2019 | QCD | QUIT CLAIM DEED | CERVANTES CATALINA | SANDOVAL JAVIER C | | | $0.00 | 137351 | 2019-05429 |
| 2 | 05/08/2015 | QCD | QUIT CLAIM DEED | CERVANTES CATALINA | CERVANTES CATALINA | | | $0.00 | 127930 | 2015-03904 |
| 3 | 04/13/1990 | WARRANTY D | WARRANTY DEED | | | | | $15,000.00 | 0 | 1829-002443 |
Payout Agreement
| No payout information available.. |