Property
Account |
| Property ID: | 10763 | Abbreviated Legal Description: | HENDERSON S 108' OF LOT 11 |
| Parcel Number: | 360729680018 | Agent Code: | |
| Type: | Real | | |
| Tax Area: | 1 - OL-140-F | Land Use Code | 11 |
| Open Space: | N | DFL | N |
| Historic Property: | N | Remodel Property: | N |
| Multi-Family Redevelopment: | N | | |
| Township: | 7 | Section: | 29 |
| Range: | 36 |
Location |
| Address: | 124 ORCHARD ST WA 99362 | Mapsco: | |
| Neighborhood: | Fair Res | Map ID: | |
| Neighborhood CD: | 612011 |
Owner |
| Name: | YOST LISA ANNE | Owner ID: | 67495 |
| Mailing Address: | 124 ORCHARD ST WALLA WALLA, WA 99362 | % Ownership: | 100.0000000000% |
| | | Exemptions: | SNR/DSBL |
Taxes and Assessment Details
Property Tax Information as of
04/19/2026
Click on "Statement Details" to expand or collapse a tax statement.
* Please enter a valid date ** Please enter a valid date *
Statement Details |
| | TOTAL: | $0.00 | $0.00 | $0.00 | $0.00 | $0.00 | $0.00 |
|
| | $0.00 | $0.00 | $0.00 | $0.00 | $0.00 | $0.00 |
Values
| (+) Improvement Homesite Value: | + | $187,560 | |
| (+) Improvement Non-Homesite Value: | + | $0 | |
| (+) Land Homesite Value: | + | $51,840 | |
| (+) Land Non-Homesite Value: | + | $0 | |
| (+) Curr Use (HS): | + | $0 | $0 |
| (+) Curr Use (NHS): | + | $0 | $0 |
| | | -------------------------- | |
| (=) Market Value: | = | $239,400 | |
| (–) Productivity Loss: | – | $0 | |
| | | -------------------------- | |
| (=) Subtotal: | = | $239,400 | |
| (+) Senior Appraised Value: | + | $144,700 | |
| (+) Non-Senior Appraised Value: | + | $0 | |
| | | -------------------------- | |
| (=) Total Appraised Value: | = | $144,700 | |
| (–) Senior Exemption Loss: | – | $86,820 | |
| (–) Exemption Loss: | – | $0 | |
| | | -------------------------- | |
| (=) Taxable Value: | = | $57,880 | |
Taxing Jurisdiction
| Owner: | YOST LISA ANNE | | |
| % Ownership: | 100.0000000000% | | |
| Total Value: | $239,400 | | |
| Tax Area: | 1 - OL-140-F |
| CERFD | CURRENT EXPENSE REFUND 010 | 0.0000000000 | $239,400 | $57,880 | $0.00 | | |
| CURREXP | CURRENT EXPENSE 010 | 1.0175366760 | $239,400 | $57,880 | $58.90 | | |
| HUMNSERV | HUMAN SERVICES 119 | 0.0250000000 | $239,400 | $57,880 | $1.45 | | |
| SLDREL | SOLDIERS RELIEF 121 | 0.0155990005 | $239,400 | $57,880 | $0.90 | | |
| EMERGSER | EMS 147 | 0.3792580840 | $239,400 | $57,880 | $21.95 | | |
| EMSRFD | EMS REFUND 147 | 0.0000000000 | $239,400 | $57,880 | $0.00 | | |
| PORTRFD | PORT REFUND 640 | 0.0000000000 | $239,400 | $57,880 | $0.00 | | |
| PORTWWGEN | PORT OF WW 640 | 0.2460186015 | $239,400 | $57,880 | $14.24 | | |
| SD140BOND | SD #140 BOND 764 | 0.0000000000 | $239,400 | $0 | $0.00 | | |
| SD140GEN | SD #140 GENERAL 760 | 0.0000000000 | $239,400 | $0 | $0.00 | | |
| ST2 | STATE SCHOOL PART 2 600 | 0.0000000000 | $239,400 | $0 | $0.00 | | |
| STATESCHL | STATE SCHOOL 600 | 1.5158548041 | $239,400 | $57,880 | $87.74 | | |
| STREFUND | STATE REFUND LEVY 603 | 0.0000000000 | $239,400 | $57,880 | $0.00 | | |
| CWWBOND | C OF WW BOND 643 | 0.0000000000 | $239,400 | $0 | $0.00 | | |
| CWWGEN | CITY OF WW 631 | 1.6100204973 | $239,400 | $57,880 | $93.19 | | |
| CWWRFD | CITY OF WALLA WALLA REFUND 631 | 0.0000000000 | $239,400 | $57,880 | $0.00 | | |
| | Total Tax Rate: | 4.8092876634 | | | | | |
| | | | | Taxes w/Current Exemptions: | $278.37 | | |
| | | | | Taxes w/o Exemptions: | $2,106.11 | | |
Improvement / Building
| Improvement #1: | RESIDENTIAL | State Code: | 11 | 1176.0 sqft | Value: | $187,560 |
| Exterior Wall: | CONCRETE BLOCK | Heating/Cooling: | WARM & COOLED AIR | | Number of Bathrooms: | 1 | Number of Bedrooms: | 2 | | Plumbing: | 7 | Roof Covering: | COMP SHINGLE |
|
| | Type | Description | Class CD | Sub Class CD | Year Built | Area |
| | MA | Main Area | 1 | 25 | 1948 | 1176.0 |
| | SI1 | SITE IMPROVEMENT | 1 | 25 | 1948 | 1.0 |
| | CPCS | CARPORT/SHED OR FLAT ROOF | 1 | 25 | 1948 | 252.0 |
| | PRC | PORCH W STEPS, ROOF,CEILED | 1 | 25 | 1948 | 40.0 |
| | CPC | COVERED CARPORT/PATIO | 1 | 25 | 1948 | 128.0 |
Sketch
Property Image
Land
| 1 | RES 1 | Converted: Residential | 0.1488 | 6480.00 | 0.00 | 0.00 | 1.00 | $51,840 | $0 |
Roll Value History
| 2026 | N/A | N/A | N/A | N/A | N/A |
| 2025 | $196,560 | $64,800 | $0 | $261,360 | $57,880 |
| 2024 | $187,560 | $51,840 | $0 | $239,400 | $57,880 |
| 2023 | $187,560 | $51,840 | $0 | $239,400 | $57,880 |
| 2022 | $187,560 | $40,500 | $0 | $228,060 | $57,880 |
| 2021 | $125,040 | $40,500 | $0 | $165,540 | $57,880 |
| 2020 | $104,200 | $40,500 | $0 | $144,700 | $57,880 |
| 2019 | $104,200 | $40,500 | $0 | $144,700 | $144,700 |
| 2018 | $105,840 | $38,900 | $0 | $144,740 | $144,740 |
| 2017 | $100,800 | $38,900 | $0 | $139,700 | $139,700 |
| 2016 | $84,000 | $38,900 | $0 | $122,900 | $122,900 |
| 2015 | $84,000 | $38,900 | $0 | $122,900 | $122,900 |
| 2014 | $70,000 | $38,900 | $0 | $108,900 | $108,900 |
| 2013 | $70,000 | $38,900 | $0 | $108,900 | $108,900 |
| 2012 | $70,000 | $38,900 | $0 | $0 | $0 |
| 2011 | $70,000 | $38,900 | $0 | $0 | $0 |
| 2010 | $70,000 | $38,900 | $0 | $0 | $0 |
| 2009 | $82,100 | $38,900 | $0 | $0 | $0 |
| 2008 | $82,100 | $38,900 | $0 | $0 | $0 |
| 2007 | $59,300 | $13,000 | $0 | $0 | $0 |
Deed and Sales History
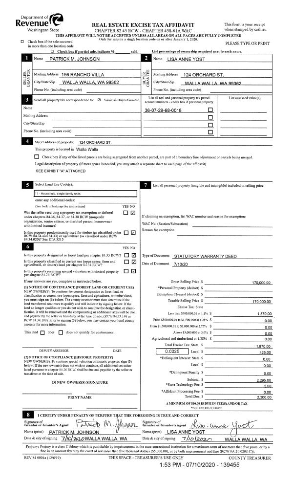
| 1 | 07/10/2020 | SWD | STATUTORY WARRANTY DEED | JOHNSON PATRICK M | YOST LISA ANNE | | | $170,000.00 | 139455 | 2020-06598 |
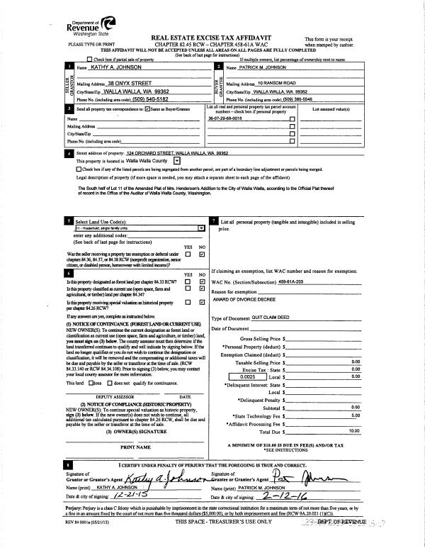
| 2 | 02/12/2016 | QCD | QUIT CLAIM DEED | JOHNSON PATRICK M & KATHY A | JOHNSON PATRICK M | | | $0.00 | 129689 | 2016-01162 |
| 3 | 10/04/2006 | WARRANTY D | WARRANTY DEED | ANDERSON, PATRICIA G | JOHNSON, PATRICK M & KATHY A | | | $121,275.00 | 111387 | 2006-11987 |
| 4 | 05/21/1999 | WARRANTY D | WARRANTY DEED | | | | | $72,092.00 | 92808 | 2849-906236 |
Payout Agreement
| No payout information available.. |