Property
Account |
| Property ID: | 10757 | Abbreviated Legal Description: | HENDERSON S1/2 OF LOT 10 |
| Parcel Number: | 360729680010 | Agent Code: | |
| Type: | Real | | |
| Tax Area: | 1 - OL-140-F | Land Use Code | 11 |
| Open Space: | N | DFL | N |
| Historic Property: | N | Remodel Property: | N |
| Multi-Family Redevelopment: | N | | |
| Township: | 7 | Section: | 29 |
| Range: | 36 |
Location |
| Address: | 230 ORCHARD ST WA 99362 | Mapsco: | |
| Neighborhood: | Fair Res | Map ID: | |
| Neighborhood CD: | 612011 |
Owner |
| Name: | FILAN DALE | Owner ID: | 71953 |
| Mailing Address: | 1130 S WILBUR AVE WALLA WALLA, WA 99362 | % Ownership: | 100.0000000000% |
| | | Exemptions: | |
Taxes and Assessment Details
Property Tax Information as of
02/21/2026
Click on "Statement Details" to expand or collapse a tax statement.
* Please enter a valid date ** Please enter a valid date *
Statement Details |
| | TOTAL: | $0.00 | $0.00 | $0.00 | $0.00 | $0.00 | $0.00 |
|
| | $0.00 | $0.00 | $0.00 | $0.00 | $0.00 | $0.00 |
Values
| (+) Improvement Homesite Value: | + | $0 | |
| (+) Improvement Non-Homesite Value: | + | $117,660 | |
| (+) Land Homesite Value: | + | $0 | |
| (+) Land Non-Homesite Value: | + | $51,840 | |
| (+) Curr Use (HS): | + | $0 | $0 |
| (+) Curr Use (NHS): | + | $0 | $0 |
| | | -------------------------- | |
| (=) Market Value: | = | $169,500 | |
| (–) Productivity Loss: | – | $0 | |
| | | -------------------------- | |
| (=) Subtotal: | = | $169,500 | |
| (+) Senior Appraised Value: | + | $0 | |
| (+) Non-Senior Appraised Value: | + | $169,500 | |
| | | -------------------------- | |
| (=) Total Appraised Value: | = | $169,500 | |
| (–) Senior Exemption Loss: | – | $0 | |
| (–) Exemption Loss: | – | $0 | |
| | | -------------------------- | |
| (=) Taxable Value: | = | $169,500 | |
Taxing Jurisdiction
| Owner: | FILAN DALE | | |
| % Ownership: | 100.0000000000% | | |
| Total Value: | $169,500 | | |
| Tax Area: | 1 - OL-140-F |
| CERFD | CURRENT EXPENSE REFUND 010 | 0.0000000000 | $169,500 | $169,500 | $0.00 | | |
| CURREXP | CURRENT EXPENSE 010 | 1.0175366760 | $169,500 | $169,500 | $172.47 | | |
| HUMNSERV | HUMAN SERVICES 119 | 0.0250000000 | $169,500 | $169,500 | $4.24 | | |
| SLDREL | SOLDIERS RELIEF 121 | 0.0155990005 | $169,500 | $169,500 | $2.64 | | |
| EMERGSER | EMS 147 | 0.3792580840 | $169,500 | $169,500 | $64.28 | | |
| EMSRFD | EMS REFUND 147 | 0.0000000000 | $169,500 | $169,500 | $0.00 | | |
| PORTRFD | PORT REFUND 640 | 0.0000000000 | $169,500 | $169,500 | $0.00 | | |
| PORTWWGEN | PORT OF WW 640 | 0.2460186015 | $169,500 | $169,500 | $41.70 | | |
| SD140BOND | SD #140 BOND 764 | 0.8342371393 | $169,500 | $169,500 | $141.40 | | |
| SD140GEN | SD #140 GENERAL 760 | 2.0646500647 | $169,500 | $169,500 | $349.96 | | |
| ST2 | STATE SCHOOL PART 2 600 | 0.8131451643 | $169,500 | $169,500 | $137.83 | | |
| STATESCHL | STATE SCHOOL 600 | 1.5158548041 | $169,500 | $169,500 | $256.94 | | |
| STREFUND | STATE REFUND LEVY 603 | 0.0000000000 | $169,500 | $169,500 | $0.00 | | |
| CWWBOND | C OF WW BOND 643 | 0.2760494372 | $169,500 | $169,500 | $46.79 | | |
| CWWGEN | CITY OF WW 631 | 1.6100204973 | $169,500 | $169,500 | $272.90 | | |
| CWWRFD | CITY OF WALLA WALLA REFUND 631 | 0.0000000000 | $169,500 | $169,500 | $0.00 | | |
| | Total Tax Rate: | 8.7973694689 | | | | | |
| | | | | Taxes w/Current Exemptions: | $1,491.15 | | |
| | | | | Taxes w/o Exemptions: | $1,491.15 | | |
Improvement / Building
| Improvement #1: | RESIDENTIAL | State Code: | 11 | 752.0 sqft | Value: | $117,660 |
| Exterior Wall: | STUCCO | Heating/Cooling: | BASEBOARD ELECTRIC | | Number of Bathrooms: | 1 | Number of Bedrooms: | 2 | | Plumbing: | 7 | Roof Covering: | COMP SHINGLE |
|
| | Type | Description | Class CD | Sub Class CD | Year Built | Area |
| | MA | Main Area | 1 | 25 | 1946 | 752.0 |
| | SI1 | SITE IMPROVEMENT | 1 | 25 | 1946 | 1.0 |
| | BASE | BASEMENT | 1 | 25 | 1946 | 100.0 |
| | DTG | Detached Garage | 1 | 25 | 1946 | 240.0 |
| | RPO | OPEN PORCH W/ROOF | 1 | 25 | 1946 | 24.0 |
Sketch
Property Image
Land
| 1 | RES 1 | Converted: Residential | 0.1488 | 6480.00 | 0.00 | 0.00 | 1.00 | $51,840 | $0 |
Roll Value History
| 2026 | N/A | N/A | N/A | N/A | N/A |
| 2025 | $162,240 | $64,800 | $0 | $227,040 | $227,040 |
| 2024 | $117,660 | $51,840 | $0 | $169,500 | $169,500 |
| 2023 | $117,660 | $51,840 | $0 | $169,500 | $169,500 |
| 2022 | $117,660 | $40,500 | $0 | $158,160 | $158,160 |
| 2021 | $106,960 | $40,500 | $0 | $147,460 | $147,460 |
| 2020 | $76,400 | $40,500 | $0 | $116,900 | $116,900 |
| 2019 | $76,400 | $40,500 | $0 | $116,900 | $116,900 |
| 2018 | $78,040 | $38,900 | $0 | $116,940 | $116,940 |
| 2017 | $50,030 | $38,900 | $0 | $88,930 | $88,930 |
| 2016 | $45,480 | $38,900 | $0 | $84,380 | $84,380 |
| 2015 | $37,900 | $38,900 | $0 | $76,800 | $76,800 |
| 2014 | $37,900 | $38,900 | $0 | $76,800 | $76,800 |
| 2013 | $37,900 | $38,900 | $0 | $76,800 | $76,800 |
| 2012 | $51,500 | $38,900 | $0 | $0 | $0 |
| 2011 | $51,500 | $38,900 | $0 | $0 | $0 |
| 2010 | $51,500 | $38,900 | $0 | $0 | $0 |
| 2009 | $61,500 | $38,900 | $0 | $0 | $0 |
| 2008 | $61,500 | $38,900 | $0 | $0 | $0 |
| 2007 | $40,800 | $13,000 | $0 | $0 | $0 |
Deed and Sales History
| 1 | 04/11/2025 | QCD | QUIT CLAIM DEED | FILAN CHRISTINA LYNN & TIFFANY KRISTIN FILAN | FILAN DALE B & TYLER J FILAN | | | | 149216 | 2025-01914 |
| 2 | 04/11/2025 | QCD | QUIT CLAIM DEED | FILAN DALE | FILAN DALE B & TYLER J FILAN | | | | 149215 | 2025-01913 |
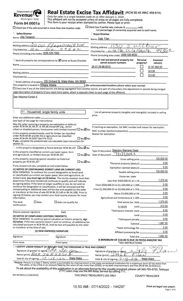
| 3 | 07/14/2022 | SWD | STATUTORY WARRANTY DEED | TERGESON ADA | FILAN DALE | | | $125,000.00 | 144297 | 2022-05973 |
| 4 | 07/14/2022 | LOPA | LACK OF PROBATE AFFIDAVIT | TERGESON NORMAN A & ADA | TERGESON ADA | | | $0.00 | 144296 | 2022-05972 |
| 5 | 10/28/2003 | WARRANTY D | WARRANTY DEED | OHLER, WESLEY D | TERGESON, NORMAN A & ADA | | | $68,000.00 | 103378 | 2003-16680 |
| 6 | 04/19/1999 | WARRANTY D | WARRANTY DEED | | | | | $40,000.00 | 92582 | 2829-904723 |
Payout Agreement
| No payout information available.. |