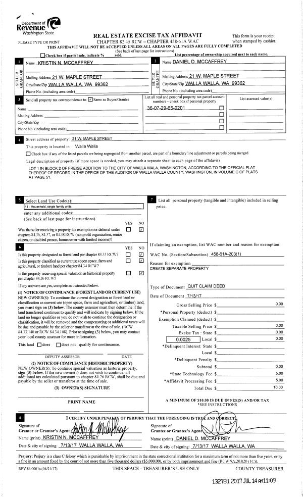
Property
Account |
| Property ID: | 10735 | Abbreviated Legal Description: | FREISE LOT 1 BLK 2 |
| Parcel Number: | 360729650201 | Agent Code: | |
| Type: | Real | | |
| Tax Area: | 1 - OL-140-F | Land Use Code | 11 |
| Open Space: | N | DFL | N |
| Historic Property: | N | Remodel Property: | N |
| Multi-Family Redevelopment: | N | | |
| Township: | 7 | Section: | 29 |
| Range: | 36 |
Location |
| Address: | 21 W MAPLE ST WA 99362 | Mapsco: | |
| Neighborhood: | A Res | Map ID: | |
| Neighborhood CD: | 613011 |
Owner |
| Name: | MCCAFFREY DANIEL D | Owner ID: | 61448 |
| Mailing Address: | 21 W MAPLE ST WALLA WALLA, WA 99362 | % Ownership: | 100.0000000000% |
| | | Exemptions: | |
Taxes and Assessment Details
Values
| (+) Improvement Homesite Value: | + | $0 | |
| (+) Improvement Non-Homesite Value: | + | $382,740 | |
| (+) Land Homesite Value: | + | $0 | |
| (+) Land Non-Homesite Value: | + | $64,800 | |
| (+) Curr Use (HS): | + | $0 | $0 |
| (+) Curr Use (NHS): | + | $0 | $0 |
| | | -------------------------- | |
| (=) Market Value: | = | $447,540 | |
| (–) Productivity Loss: | – | $0 | |
| | | -------------------------- | |
| (=) Subtotal: | = | $447,540 | |
| (+) Senior Appraised Value: | + | $0 | |
| (+) Non-Senior Appraised Value: | + | $447,540 | |
| | | -------------------------- | |
| (=) Total Appraised Value: | = | $447,540 | |
| (–) Senior Exemption Loss: | – | $0 | |
| (–) Exemption Loss: | – | $0 | |
| | | -------------------------- | |
| (=) Taxable Value: | = | $447,540 | |
Taxing Jurisdiction
| Owner: | MCCAFFREY DANIEL D | | |
| % Ownership: | 100.0000000000% | | |
| Total Value: | $447,540 | | |
| Tax Area: | 1 - OL-140-F |
| CERFD | CURRENT EXPENSE REFUND 010 | 0.0000000000 | $447,540 | $447,540 | $0.00 | | |
| CURREXP | CURRENT EXPENSE 010 | 1.0175366760 | $447,540 | $447,540 | $455.39 | | |
| HUMNSERV | HUMAN SERVICES 119 | 0.0250000000 | $447,540 | $447,540 | $11.19 | | |
| SLDREL | SOLDIERS RELIEF 121 | 0.0155990005 | $447,540 | $447,540 | $6.98 | | |
| EMERGSER | EMS 147 | 0.3792580840 | $447,540 | $447,540 | $169.73 | | |
| EMSRFD | EMS REFUND 147 | 0.0000000000 | $447,540 | $447,540 | $0.00 | | |
| PORTRFD | PORT REFUND 640 | 0.0000000000 | $447,540 | $447,540 | $0.00 | | |
| PORTWWGEN | PORT OF WW 640 | 0.2460186015 | $447,540 | $447,540 | $110.10 | | |
| SD140BOND | SD #140 BOND 764 | 0.8342371393 | $447,540 | $447,540 | $373.35 | | |
| SD140GEN | SD #140 GENERAL 760 | 2.0646500647 | $447,540 | $447,540 | $924.01 | | |
| ST2 | STATE SCHOOL PART 2 600 | 0.8131451643 | $447,540 | $447,540 | $363.91 | | |
| STATESCHL | STATE SCHOOL 600 | 1.5158548041 | $447,540 | $447,540 | $678.41 | | |
| STREFUND | STATE REFUND LEVY 603 | 0.0000000000 | $447,540 | $447,540 | $0.00 | | |
| CWWBOND | C OF WW BOND 643 | 0.2760494372 | $447,540 | $447,540 | $123.54 | | |
| CWWGEN | CITY OF WW 631 | 1.6100204973 | $447,540 | $447,540 | $720.55 | | |
| CWWRFD | CITY OF WALLA WALLA REFUND 631 | 0.0000000000 | $447,540 | $447,540 | $0.00 | | |
| | Total Tax Rate: | 8.7973694689 | | | | | |
| | | | | Taxes w/Current Exemptions: | $3,937.16 | | |
| | | | | Taxes w/o Exemptions: | $3,937.16 | | |
Improvement / Building
| Improvement #1: | RESIDENTIAL | State Code: | 11 | 2139.0 sqft | Value: | $382,740 |
| Exterior Wall: | VINYL | Heating/Cooling: | WARM & COOLED AIR | | Number of Bathrooms: | 3 | Number of Bedrooms: | 5 | | Plumbing: | 13 | Roof Covering: | COMP SHINGLE |
|
| | Type | Description | Class CD | Sub Class CD | Year Built | Area |
| | MA | Main Area | 4 | 30 | 1895 | 2139.0 |
| | UPFL | Upper Floor (included in main area) | 4 | 30 | 1895 | 750.0 |
| | SI1 | SITE IMPROVEMENT | 4 | 30 | 1895 | 2.0 |
| | BASE | BASEMENT | 4 | 30 | 1895 | 1300.0 |
| | BPF | BASEMENT -PARTITIONED FINISH | 4 | 30 | 1895 | 1300.0 |
| | CPCS | CARPORT/SHED OR FLAT ROOF | 4 | 30 | 1895 | 234.0 |
| | RPO | OPEN PORCH W/ROOF | 4 | 30 | 1895 | 190.0 |
| | RPO | OPEN PORCH W/ROOF | 4 | 30 | 1895 | 96.0 |
Sketch
Property Image
Land
| 1 | RES 1 | Converted: Residential | 0.1653 | 7200.00 | 0.00 | 0.00 | 1.00 | $64,800 | $0 |
Roll Value History
| 2026 | N/A | N/A | N/A | N/A | N/A |
| 2025 | $360,380 | $72,000 | $0 | $432,380 | $432,380 |
| 2024 | $382,740 | $64,800 | $0 | $447,540 | $447,540 |
| 2023 | $382,740 | $64,800 | $0 | $447,540 | $447,540 |
| 2022 | $332,820 | $52,200 | $0 | $385,020 | $385,020 |
| 2021 | $277,350 | $52,200 | $0 | $329,550 | $329,550 |
| 2020 | $184,900 | $52,200 | $0 | $237,100 | $237,100 |
| 2019 | $184,900 | $52,200 | $0 | $237,100 | $237,100 |
| 2018 | $151,980 | $43,200 | $0 | $195,180 | $195,180 |
| 2017 | $144,740 | $43,200 | $0 | $187,940 | $187,940 |
| 2016 | $170,280 | $43,200 | $0 | $213,480 | $213,480 |
| 2015 | $170,280 | $43,200 | $0 | $213,480 | $213,480 |
| 2014 | $154,800 | $43,200 | $0 | $198,000 | $198,000 |
| 2013 | $154,800 | $43,200 | $0 | $198,000 | $198,000 |
| 2012 | $192,800 | $43,200 | $0 | $0 | $0 |
| 2011 | $192,800 | $43,200 | $0 | $0 | $0 |
| 2010 | $192,800 | $43,200 | $0 | $0 | $0 |
| 2009 | $219,000 | $43,200 | $0 | $0 | $0 |
| 2008 | $219,000 | $43,200 | $0 | $0 | $0 |
| 2007 | $110,800 | $14,400 | $0 | $0 | $0 |
Deed and Sales History
| 1 | 07/14/2017 | QCD | QUIT CLAIM DEED | MCCAFFREY KRISTIN N | MCCAFFREY DANIEL D | | | | 132781 | 2017-05385 |
| 2 | 07/14/2017 | SWD | STATUTORY WARRANTY DEED | BRANCH JOHN | MCCAFFREY DANIEL D | | | $199,900.00 | 132780 | 2017-05384 |
| 3 | 10/14/2016 | SWD | STATUTORY WARRANTY DEED | HOUK DAVID & CYNTHIA | BRANCH JOHN | | | $175,000.00 | 131266 | 2016-08552 |
| 4 | 08/20/2004 | WARRANTY D | WARRANTY DEED | WASHINGTON MUTUAL BANK FA | HOUK, DAVID & CYNTHIA | | | $91,000.00 | 105541 | 2004-09617 |
| 5 | 04/20/2004 | QCD | QUIT CLAIM DEED | PRECIADO, BENITO & JENNIFER HA | PRECIADO, BENITO | | | | 104472 | 2004-04125 |
| 6 | 03/25/2004 | WARRANTY D | WARRANTY DEED | PROFESSIONAL FORECLOSURE CORP | WASHINGTON MUTUAL BANK FA | | | $86,005.00 | 104353 | 2004-03129 |
| 7 | 03/31/1998 | WARRANTY D | WARRANTY DEED | | | | | $85,000.00 | 90118 | 2659-803355 |
Payout Agreement
| No payout information available.. |