Property
Account |
| Property ID: | 10720 | Abbreviated Legal Description: | FOSTERS TAX 2 LOT 4 LESS SLY PTN BLK M(1) |
| Parcel Number: | 360729640110 | Agent Code: | |
| Type: | Real | | |
| Tax Area: | 1 - OL-140-F | Land Use Code | 11 |
| Open Space: | N | DFL | N |
| Historic Property: | N | Remodel Property: | N |
| Multi-Family Redevelopment: | N | | |
| Township: | 7 | Section: | 29 |
| Range: | 36 |
Location |
| Address: | 610 CATHERINE ST WA 99362 | Mapsco: | |
| Neighborhood: | G-SFR | Map ID: | |
| Neighborhood CD: | 514011 |
Owner |
| Name: | GUSTAFSSON NIKLAS | Owner ID: | 58375 |
| Mailing Address: | INGEGARD M A ROHDIN 610 CATHERINE ST WALLA WALLA, WA 99362 | % Ownership: | 100.0000000000% |
| | | Exemptions: | |
Taxes and Assessment Details
Property Tax Information as of
02/21/2026
Click on "Statement Details" to expand or collapse a tax statement.
* Please enter a valid date ** Please enter a valid date *
Statement Details |
| | TOTAL: | $0.00 | $0.00 | $0.00 | $0.00 | $0.00 | $0.00 |
|
| | $0.00 | $0.00 | $0.00 | $0.00 | $0.00 | $0.00 |
Values
| (+) Improvement Homesite Value: | + | $0 | |
| (+) Improvement Non-Homesite Value: | + | $403,530 | |
| (+) Land Homesite Value: | + | $0 | |
| (+) Land Non-Homesite Value: | + | $39,680 | |
| (+) Curr Use (HS): | + | $0 | $0 |
| (+) Curr Use (NHS): | + | $0 | $0 |
| | | -------------------------- | |
| (=) Market Value: | = | $443,210 | |
| (–) Productivity Loss: | – | $0 | |
| | | -------------------------- | |
| (=) Subtotal: | = | $443,210 | |
| (+) Senior Appraised Value: | + | $0 | |
| (+) Non-Senior Appraised Value: | + | $443,210 | |
| | | -------------------------- | |
| (=) Total Appraised Value: | = | $443,210 | |
| (–) Senior Exemption Loss: | – | $0 | |
| (–) Exemption Loss: | – | $0 | |
| | | -------------------------- | |
| (=) Taxable Value: | = | $443,210 | |
Taxing Jurisdiction
| Owner: | GUSTAFSSON NIKLAS | | |
| % Ownership: | 100.0000000000% | | |
| Total Value: | $443,210 | | |
| Tax Area: | 1 - OL-140-F |
| CERFD | CURRENT EXPENSE REFUND 010 | 0.0000000000 | $443,210 | $443,210 | $0.00 | | |
| CURREXP | CURRENT EXPENSE 010 | 1.0175366760 | $443,210 | $443,210 | $450.98 | | |
| HUMNSERV | HUMAN SERVICES 119 | 0.0250000000 | $443,210 | $443,210 | $11.08 | | |
| SLDREL | SOLDIERS RELIEF 121 | 0.0155990005 | $443,210 | $443,210 | $6.91 | | |
| EMERGSER | EMS 147 | 0.3792580840 | $443,210 | $443,210 | $168.09 | | |
| EMSRFD | EMS REFUND 147 | 0.0000000000 | $443,210 | $443,210 | $0.00 | | |
| PORTRFD | PORT REFUND 640 | 0.0000000000 | $443,210 | $443,210 | $0.00 | | |
| PORTWWGEN | PORT OF WW 640 | 0.2460186015 | $443,210 | $443,210 | $109.04 | | |
| SD140BOND | SD #140 BOND 764 | 0.8342371393 | $443,210 | $443,210 | $369.74 | | |
| SD140GEN | SD #140 GENERAL 760 | 2.0646500647 | $443,210 | $443,210 | $915.07 | | |
| ST2 | STATE SCHOOL PART 2 600 | 0.8131451643 | $443,210 | $443,210 | $360.39 | | |
| STATESCHL | STATE SCHOOL 600 | 1.5158548041 | $443,210 | $443,210 | $671.84 | | |
| STREFUND | STATE REFUND LEVY 603 | 0.0000000000 | $443,210 | $443,210 | $0.00 | | |
| CWWBOND | C OF WW BOND 643 | 0.2760494372 | $443,210 | $443,210 | $122.35 | | |
| CWWGEN | CITY OF WW 631 | 1.6100204973 | $443,210 | $443,210 | $713.58 | | |
| CWWRFD | CITY OF WALLA WALLA REFUND 631 | 0.0000000000 | $443,210 | $443,210 | $0.00 | | |
| | Total Tax Rate: | 8.7973694689 | | | | | |
| | | | | Taxes w/Current Exemptions: | $3,899.07 | | |
| | | | | Taxes w/o Exemptions: | $3,899.07 | | |
Improvement / Building
| Improvement #1: | RESIDENTIAL | State Code: | 11 | 1408.0 sqft | Value: | $403,530 |
| Exterior Wall: | SIDING | Heating/Cooling: | WARM & COOLED AIR | | Number of Bathrooms: | 2 | Number of Bedrooms: | 3 | | Plumbing: | 10 | Roof Covering: | COMP SHINGLE |
|
| | Type | Description | Class CD | Sub Class CD | Year Built | Area |
| | MA | Main Area | 1 | 45 | 1920 | 1408.0 |
| | SI1 | SITE IMPROVEMENT | 1 | 45 | 1920 | 3.0 |
| | BASE | BASEMENT | 1 | 45 | 1920 | 1408.0 |
| | BPF | BASEMENT -PARTITIONED FINISH | 1 | 45 | 1920 | 1408.0 |
| | DTG | Detached Garage | 1 | 45 | 1920 | 320.0 |
| | WOD | Wood Deck | 1 | 45 | 1920 | 500.0 |
| | S1F | Single One Story Fireplace | 1 | 45 | 1920 | 1.0 |
| | RCD | WOOD DECK W/ROOF, CEILED | 1 | 45 | 1920 | 108.0 |
Sketch
Property Image
Land
| 1 | RES 1 | Converted: Residential | 0.1256 | 5473.00 | 0.00 | 0.00 | 1.00 | $39,680 | $0 |
Roll Value History
| 2026 | N/A | N/A | N/A | N/A | N/A |
| 2025 | $519,550 | $60,200 | $0 | $579,750 | $579,750 |
| 2024 | $399,650 | $60,200 | $0 | $459,850 | $459,850 |
| 2023 | $403,530 | $39,680 | $0 | $443,210 | $443,210 |
| 2022 | $366,850 | $39,680 | $0 | $406,530 | $406,530 |
| 2021 | $333,500 | $39,680 | $0 | $373,180 | $373,180 |
| 2020 | $303,180 | $39,680 | $0 | $342,860 | $342,860 |
| 2019 | $303,180 | $39,680 | $0 | $342,860 | $342,860 |
| 2018 | $288,740 | $39,680 | $0 | $328,420 | $328,420 |
| 2017 | $302,080 | $21,900 | $0 | $323,980 | $323,980 |
| 2016 | $287,690 | $21,900 | $0 | $309,590 | $309,590 |
| 2015 | $221,300 | $21,900 | $0 | $243,200 | $243,200 |
| 2014 | $221,300 | $21,900 | $0 | $243,200 | $243,200 |
| 2013 | $221,300 | $21,900 | $0 | $243,200 | $243,200 |
| 2012 | $221,300 | $21,900 | $0 | $0 | $0 |
| 2011 | $221,300 | $21,900 | $0 | $0 | $0 |
| 2010 | $209,700 | $21,900 | $0 | $0 | $0 |
| 2009 | $235,400 | $21,900 | $0 | $0 | $0 |
| 2008 | $224,500 | $32,800 | $0 | $0 | $0 |
| 2007 | $111,500 | $10,900 | $0 | $0 | $0 |
Deed and Sales History
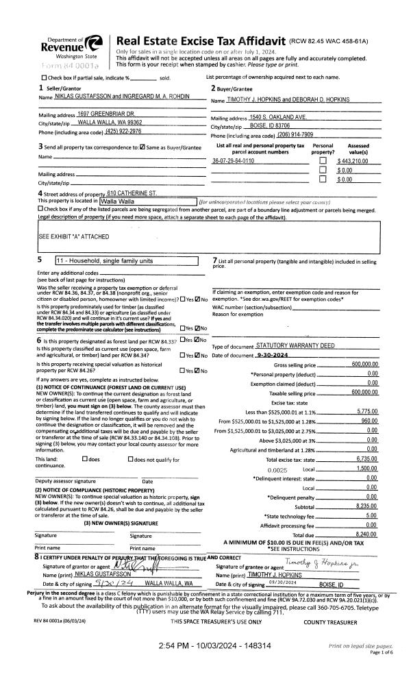
| 1 | 10/03/2024 | SWD | STATUTORY WARRANTY DEED | GUSTAFSSON NIKLAS | HOPKINS TIMOTHY J & DEBORAH D | | | $600,000.00 | 148314 | 2024-05759 |
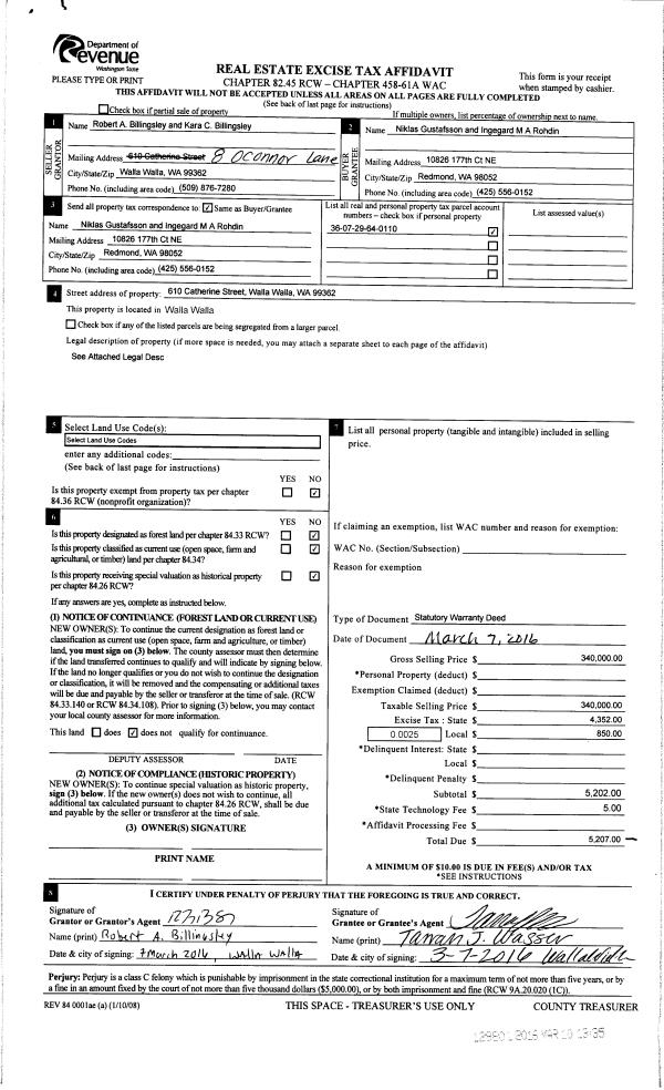
| 2 | 03/10/2016 | SWD | STATUTORY WARRANTY DEED | BILLINGSLEY ROBERT A & KARA C | GUSTAFSSON NIKLAS | | | $340,000.00 | 129801 | 2016-01846 |
| 3 | 07/21/2005 | WARRANTY D | WARRANTY DEED | CRAWFORD, PETER B & MILDRED | BILLINGSLEY, ROBERT A & KARA C | | | $255,225.00 | 108015 | 2005-08854 |
| 4 | 06/28/2002 | WARRANTY D | WARRANTY DEED | | | | | $120,000.00 | 99817 | 2002-0007415 |
Payout Agreement
| No payout information available.. |