Property
Account |
| Property ID: | 1071 | Abbreviated Legal Description: | MT VIEW REPLAT PARCEL #16 |
| Parcel Number: | 360733540316 | Agent Code: | |
| Type: | Real | | |
| Tax Area: | 1 - OL-140-F | Land Use Code | 11 |
| Open Space: | N | DFL | N |
| Historic Property: | N | Remodel Property: | N |
| Multi-Family Redevelopment: | N | | |
| Township: | 7 | Section: | 33 |
| Range: | 36 |
Location |
| Address: | 786 WAUNA VISTA DR WA 99362 | Mapsco: | |
| Neighborhood: | G Res | Map ID: | |
| Neighborhood CD: | 614011 |
Owner |
| Name: | TAYLOR BARBARA K | Owner ID: | 68417 |
| Mailing Address: | 786 WAUNA VISTA DR WALLA WALLA, WA 99362 | % Ownership: | 100.0000000000% |
| | | Exemptions: | |
Taxes and Assessment Details
Property Tax Information as of
02/21/2026
Click on "Statement Details" to expand or collapse a tax statement.
* Please enter a valid date ** Please enter a valid date *
Statement Details |
| | TOTAL: | $0.00 | $0.00 | $0.00 | $0.00 | $0.00 | $0.00 |
|
| | $0.00 | $0.00 | $0.00 | $0.00 | $0.00 | $0.00 |
Values
| (+) Improvement Homesite Value: | + | $0 | |
| (+) Improvement Non-Homesite Value: | + | $371,900 | |
| (+) Land Homesite Value: | + | $0 | |
| (+) Land Non-Homesite Value: | + | $122,660 | |
| (+) Curr Use (HS): | + | $0 | $0 |
| (+) Curr Use (NHS): | + | $0 | $0 |
| | | -------------------------- | |
| (=) Market Value: | = | $494,560 | |
| (–) Productivity Loss: | – | $0 | |
| | | -------------------------- | |
| (=) Subtotal: | = | $494,560 | |
| (+) Senior Appraised Value: | + | $0 | |
| (+) Non-Senior Appraised Value: | + | $494,560 | |
| | | -------------------------- | |
| (=) Total Appraised Value: | = | $494,560 | |
| (–) Senior Exemption Loss: | – | $0 | |
| (–) Exemption Loss: | – | $0 | |
| | | -------------------------- | |
| (=) Taxable Value: | = | $494,560 | |
Taxing Jurisdiction
| Owner: | TAYLOR BARBARA K | | |
| % Ownership: | 100.0000000000% | | |
| Total Value: | $494,560 | | |
| Tax Area: | 1 - OL-140-F |
| CERFD | CURRENT EXPENSE REFUND 010 | 0.0000000000 | $494,560 | $494,560 | $0.00 | | |
| CURREXP | CURRENT EXPENSE 010 | 1.0175366760 | $494,560 | $494,560 | $503.23 | | |
| HUMNSERV | HUMAN SERVICES 119 | 0.0250000000 | $494,560 | $494,560 | $12.36 | | |
| SLDREL | SOLDIERS RELIEF 121 | 0.0155990005 | $494,560 | $494,560 | $7.71 | | |
| EMERGSER | EMS 147 | 0.3792580840 | $494,560 | $494,560 | $187.57 | | |
| EMSRFD | EMS REFUND 147 | 0.0000000000 | $494,560 | $494,560 | $0.00 | | |
| PORTRFD | PORT REFUND 640 | 0.0000000000 | $494,560 | $494,560 | $0.00 | | |
| PORTWWGEN | PORT OF WW 640 | 0.2460186015 | $494,560 | $494,560 | $121.67 | | |
| SD140BOND | SD #140 BOND 764 | 0.8342371393 | $494,560 | $494,560 | $412.58 | | |
| SD140GEN | SD #140 GENERAL 760 | 2.0646500647 | $494,560 | $494,560 | $1,021.09 | | |
| ST2 | STATE SCHOOL PART 2 600 | 0.8131451643 | $494,560 | $494,560 | $402.15 | | |
| STATESCHL | STATE SCHOOL 600 | 1.5158548041 | $494,560 | $494,560 | $749.68 | | |
| STREFUND | STATE REFUND LEVY 603 | 0.0000000000 | $494,560 | $494,560 | $0.00 | | |
| CWWBOND | C OF WW BOND 643 | 0.2760494372 | $494,560 | $494,560 | $136.52 | | |
| CWWGEN | CITY OF WW 631 | 1.6100204973 | $494,560 | $494,560 | $796.25 | | |
| CWWRFD | CITY OF WALLA WALLA REFUND 631 | 0.0000000000 | $494,560 | $494,560 | $0.00 | | |
| | Total Tax Rate: | 8.7973694689 | | | | | |
| | | | | Taxes w/Current Exemptions: | $4,350.81 | | |
| | | | | Taxes w/o Exemptions: | $4,350.81 | | |
Improvement / Building
| Improvement #1: | RESIDENTIAL | State Code: | 11 | 2183.0 sqft | Value: | $371,900 |
| Exterior Wall: | SIDING | Heating/Cooling: | HEAT PUMP | | Number of Bathrooms: | 3 | Number of Bedrooms: | 3 | | Plumbing: | 12 | Roof Covering: | COMP SHINGLE |
|
| | Type | Description | Class CD | Sub Class CD | Year Built | Area |
| | MA | Main Area | 3 | 40 | 1985 | 2183.0 |
| | SI1 | SITE IMPROVEMENT | 3 | 40 | 1985 | 4.0 |
| | BASE | BASEMENT | 3 | 40 | 1985 | 961.0 |
| | UPFL | Upper Floor (included in main area) | 3 | 40 | 1985 | 1222.0 |
| | BPF | BASEMENT -PARTITIONED FINISH | 3 | 40 | 1985 | 961.0 |
| | ATG | Attached Garage | 3 | 40 | 1985 | 1766.0 |
| | OSP | Open | 3 | 40 | 1985 | 32.0 |
| | S2F | Single 2S Fireplace | 3 | 40 | 1985 | 1.0 |
| | CPC | COVERED CARPORT/PATIO | 3 | 40 | 1985 | 248.0 |
Sketch
Property Image
Land
| 1 | RES 1 | Converted: Residential | 0.3388 | 14760.00 | 0.00 | 0.00 | 1.00 | $122,660 | $0 |
Roll Value History
| 2026 | N/A | N/A | N/A | N/A | N/A |
| 2025 | $431,050 | $146,270 | $0 | $577,320 | $577,320 |
| 2024 | $427,680 | $122,660 | $0 | $550,340 | $550,340 |
| 2023 | $371,900 | $122,660 | $0 | $494,560 | $494,560 |
| 2022 | $371,900 | $100,810 | $0 | $472,710 | $472,710 |
| 2021 | $297,520 | $100,810 | $0 | $398,330 | $398,330 |
| 2020 | $258,710 | $100,810 | $0 | $359,520 | $359,520 |
| 2019 | $258,710 | $100,810 | $0 | $359,520 | $359,520 |
| 2018 | $260,600 | $51,200 | $0 | $311,800 | $311,800 |
| 2017 | $260,600 | $51,200 | $0 | $311,800 | $311,800 |
| 2016 | $260,600 | $51,200 | $0 | $311,800 | $311,800 |
| 2015 | $260,600 | $51,200 | $0 | $311,800 | $311,800 |
| 2014 | $260,600 | $51,200 | $0 | $311,800 | $311,800 |
| 2013 | $260,600 | $51,200 | $0 | $311,800 | $311,800 |
| 2012 | $260,600 | $51,200 | $0 | $0 | $0 |
| 2011 | $260,600 | $51,200 | $0 | $0 | $0 |
| 2010 | $260,600 | $51,200 | $0 | $0 | $0 |
| 2009 | $295,200 | $51,200 | $0 | $0 | $0 |
| 2008 | $295,200 | $51,200 | $0 | $0 | $0 |
| 2007 | $285,900 | $28,700 | $0 | $0 | $0 |
Deed and Sales History
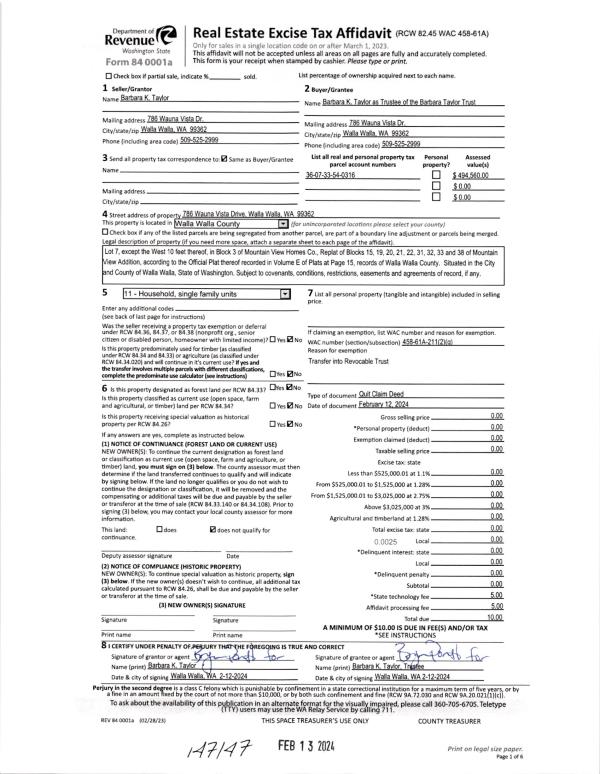
| 1 | 02/13/2024 | QCD | QUIT CLAIM DEED | TAYLOR BARBARA K | TAYLOR BARBARA TRUST | | | | 147147 | 2024-00783 |
| 2 | 11/20/2020 | QCD | QUIT CLAIM DEED | TAYLOR BARBARA K 50% | TAYLOR BARBARA K | | | $200,000.00 | 140387 | 2020-12279 |
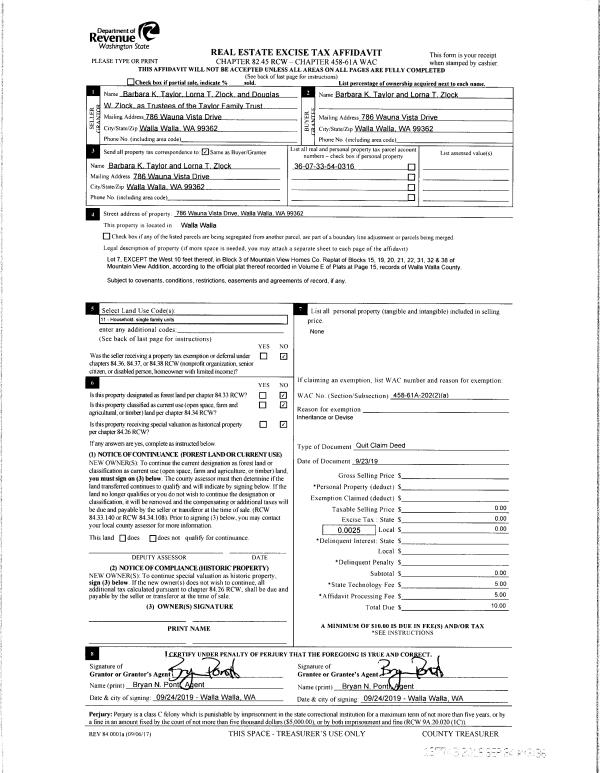
| 3 | 09/23/2019 | QCD | QUIT CLAIM DEED | TAYLOR FAMILY TRST AGREEMENT | TAYLOR BARBARA K 50% | | | $0.00 | 137743 | 2019-07555 |
| 4 | 10/02/2002 | WARRANTY D | WARRANTY DEED | FRANK, GEORGE | TAYLOR FAMILY TRST AGREEMENT | | | $325,000.00 | 100492 | 2002-11065 |
| 5 | 04/28/1983 | WARRANTY D | WARRANTY DEED | | | | | $15,000.00 | 0 | 1378-302826 |
Payout Agreement
| No payout information available.. |