Property
Account |
| Property ID: | 10705 | Abbreviated Legal Description: | FAIRVIEW W 60' OF LOTS 15 & 16 BLK 2 |
| Parcel Number: | 360729630219 | Agent Code: | |
| Type: | Real | | |
| Tax Area: | 1 - OL-140-F | Land Use Code | 11 |
| Open Space: | N | DFL | N |
| Historic Property: | N | Remodel Property: | N |
| Multi-Family Redevelopment: | N | | |
| Township: | 7 | Section: | 29 |
| Range: | 36 |
Location |
| Address: | 1305 SINGLETON WAY WA 99362 | Mapsco: | |
| Neighborhood: | G Res | Map ID: | |
| Neighborhood CD: | 614011 |
Owner |
| Name: | KEGLEY PATRICIA ANN | Owner ID: | 69561 |
| Mailing Address: | 1305 SINGLETON WAY WALLA WALLA, WA 99362 | % Ownership: | 100.0000000000% |
| | | Exemptions: | |
Taxes and Assessment Details
Property Tax Information as of
02/21/2026
Click on "Statement Details" to expand or collapse a tax statement.
* Please enter a valid date ** Please enter a valid date *
Statement Details |
| | TOTAL: | $0.00 | $0.00 | $0.00 | $0.00 | $0.00 | $0.00 |
|
| | $0.00 | $0.00 | $0.00 | $0.00 | $0.00 | $0.00 |
Values
| (+) Improvement Homesite Value: | + | $0 | |
| (+) Improvement Non-Homesite Value: | + | $335,080 | |
| (+) Land Homesite Value: | + | $0 | |
| (+) Land Non-Homesite Value: | + | $60,000 | |
| (+) Curr Use (HS): | + | $0 | $0 |
| (+) Curr Use (NHS): | + | $0 | $0 |
| | | -------------------------- | |
| (=) Market Value: | = | $395,080 | |
| (–) Productivity Loss: | – | $0 | |
| | | -------------------------- | |
| (=) Subtotal: | = | $395,080 | |
| (+) Senior Appraised Value: | + | $0 | |
| (+) Non-Senior Appraised Value: | + | $395,080 | |
| | | -------------------------- | |
| (=) Total Appraised Value: | = | $395,080 | |
| (–) Senior Exemption Loss: | – | $0 | |
| (–) Exemption Loss: | – | $0 | |
| | | -------------------------- | |
| (=) Taxable Value: | = | $395,080 | |
Taxing Jurisdiction
| Owner: | KEGLEY PATRICIA ANN | | |
| % Ownership: | 100.0000000000% | | |
| Total Value: | $395,080 | | |
| Tax Area: | 1 - OL-140-F |
| CERFD | CURRENT EXPENSE REFUND 010 | 0.0000000000 | $395,080 | $395,080 | $0.00 | | |
| CURREXP | CURRENT EXPENSE 010 | 1.0175366760 | $395,080 | $395,080 | $402.01 | | |
| HUMNSERV | HUMAN SERVICES 119 | 0.0250000000 | $395,080 | $395,080 | $9.88 | | |
| SLDREL | SOLDIERS RELIEF 121 | 0.0155990005 | $395,080 | $395,080 | $6.16 | | |
| EMERGSER | EMS 147 | 0.3792580840 | $395,080 | $395,080 | $149.84 | | |
| EMSRFD | EMS REFUND 147 | 0.0000000000 | $395,080 | $395,080 | $0.00 | | |
| PORTRFD | PORT REFUND 640 | 0.0000000000 | $395,080 | $395,080 | $0.00 | | |
| PORTWWGEN | PORT OF WW 640 | 0.2460186015 | $395,080 | $395,080 | $97.20 | | |
| SD140BOND | SD #140 BOND 764 | 0.8342371393 | $395,080 | $395,080 | $329.59 | | |
| SD140GEN | SD #140 GENERAL 760 | 2.0646500647 | $395,080 | $395,080 | $815.70 | | |
| ST2 | STATE SCHOOL PART 2 600 | 0.8131451643 | $395,080 | $395,080 | $321.26 | | |
| STATESCHL | STATE SCHOOL 600 | 1.5158548041 | $395,080 | $395,080 | $598.88 | | |
| STREFUND | STATE REFUND LEVY 603 | 0.0000000000 | $395,080 | $395,080 | $0.00 | | |
| CWWBOND | C OF WW BOND 643 | 0.2760494372 | $395,080 | $395,080 | $109.06 | | |
| CWWGEN | CITY OF WW 631 | 1.6100204973 | $395,080 | $395,080 | $636.09 | | |
| CWWRFD | CITY OF WALLA WALLA REFUND 631 | 0.0000000000 | $395,080 | $395,080 | $0.00 | | |
| | Total Tax Rate: | 8.7973694689 | | | | | |
| | | | | Taxes w/Current Exemptions: | $3,475.67 | | |
| | | | | Taxes w/o Exemptions: | $3,475.67 | | |
Improvement / Building
| Improvement #1: | RESIDENTIAL | State Code: | 11 | 1560.0 sqft | Value: | $335,080 |
| Exterior Wall: | PLYWOOD | Heating/Cooling: | WARM & COOLED AIR | | Number of Bathrooms: | 2 | Number of Bedrooms: | 3 | | Plumbing: | 10 | Roof Covering: | COMP SHINGLE |
|
| | Type | Description | Class CD | Sub Class CD | Year Built | Area |
| | MA | Main Area | 1 | 35 | 1969 | 1560.0 |
| | SI1 | SITE IMPROVEMENT | 1 | 35 | 1969 | 1.5 |
| | ATG | Attached Garage | 1 | 35 | 1969 | 336.0 |
| | WOD | Wood Deck | 1 | 35 | 1969 | 96.0 |
| | S1F | Single One Story Fireplace | 1 | 35 | 1969 | 1.0 |
| | RPC | OPEN PORCH W/ROOF , CEILED | 1 | 35 | 1969 | 96.0 |
Sketch
Property Image
Land
| 1 | RES 1 | Converted: Residential | 0.1377 | 6000.00 | 0.00 | 0.00 | 1.00 | $60,000 | $0 |
Roll Value History
| 2026 | N/A | N/A | N/A | N/A | N/A |
| 2025 | $322,620 | $72,000 | $0 | $394,620 | $394,620 |
| 2024 | $335,080 | $60,000 | $0 | $395,080 | $395,080 |
| 2023 | $335,080 | $60,000 | $0 | $395,080 | $395,080 |
| 2022 | $319,130 | $49,500 | $0 | $368,630 | $368,630 |
| 2021 | $303,930 | $49,500 | $0 | $353,430 | $353,430 |
| 2020 | $184,200 | $49,500 | $0 | $233,700 | $233,700 |
| 2019 | $184,200 | $49,500 | $0 | $233,700 | $233,700 |
| 2018 | $176,030 | $36,000 | $0 | $212,030 | $212,030 |
| 2017 | $160,020 | $36,000 | $0 | $196,020 | $196,020 |
| 2016 | $145,480 | $36,000 | $0 | $181,480 | $181,480 |
| 2015 | $126,500 | $36,000 | $0 | $162,500 | $162,500 |
| 2014 | $126,500 | $36,000 | $0 | $162,500 | $162,500 |
| 2013 | $126,500 | $36,000 | $0 | $162,500 | $162,500 |
| 2012 | $126,500 | $36,000 | $0 | $0 | $0 |
| 2011 | $126,500 | $36,000 | $0 | $0 | $0 |
| 2010 | $126,500 | $36,000 | $0 | $0 | $0 |
| 2009 | $144,500 | $36,000 | $0 | $0 | $0 |
| 2008 | $144,500 | $36,000 | $0 | $0 | $0 |
| 2007 | $108,800 | $12,000 | $0 | $0 | $0 |
Deed and Sales History
| 1 | | QCD | QUIT CLAIM DEED | KEGLEY STANLEY K & PATRICIA A | KEGLEY PATRICIA ANN | | | | 141754 | 2021-07324 |
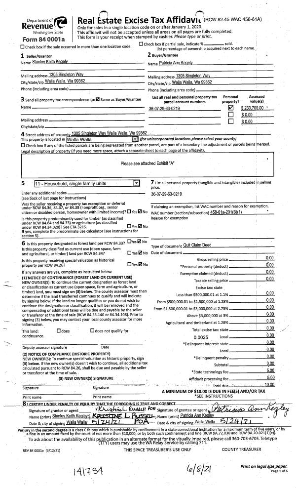
| 2 | 05/24/2021 | QCD | QUIT CLAIM DEED | KEGLEY STANLEY K & PATRICIA A | KEGLEY PATRICIA ANN | | | $0.00 | 141754 | 2021-06970 |
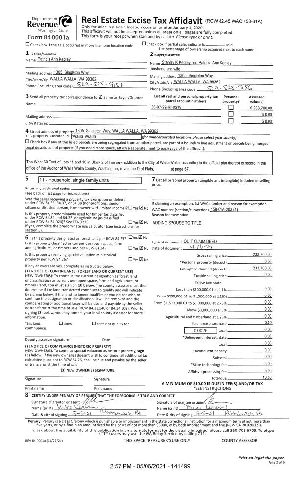
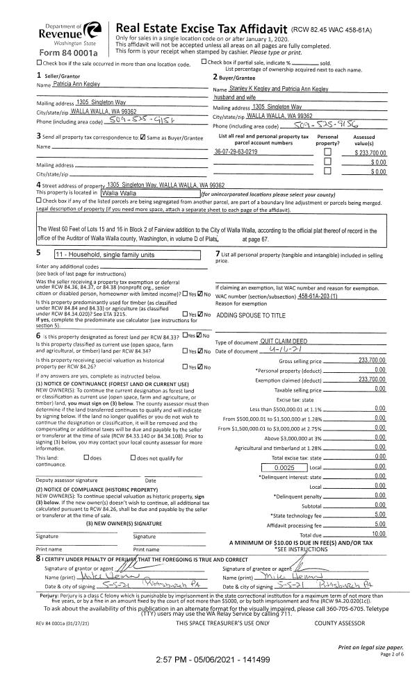
| 3 | 04/14/2021 | QCD | QUIT CLAIM DEED | KEGLEY PATRICIA ANN | KEGLEY STANLEY K & PATRICIA A | | | $0.00 | 141499 | 2021-05403 |
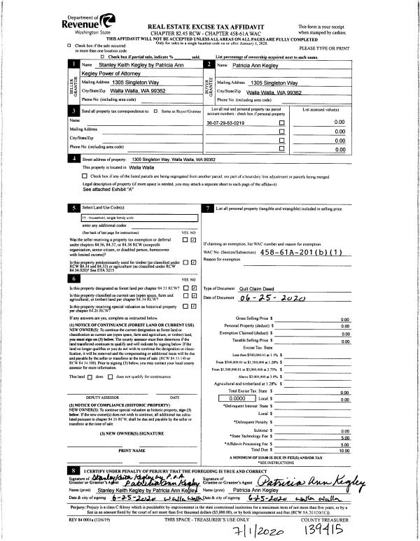
| 4 | 06/25/2020 | QCD | QUIT CLAIM DEED | KEGLEY STANLEY K & PATTI A | KEGLEY PATRICIA ANN | | | $0.00 | 139415 | 2020-06185 |
| 5 | 08/25/2015 | QCD | QUIT CLAIM DEED | KEGLEY STANLEY K & PATRICIA A | KEGLEY STANLEY K & PATTI A | | | $0.00 | 128767 | 2015-07926 |
| 6 | 08/20/1985 | WARRANTY D | WARRANTY DEED | | | | | $58,500.00 | 0 | 1528-505743 |
Payout Agreement
| No payout information available.. |