Property
Account |
| Property ID: | 10704 | Abbreviated Legal Description: | FAIRVIEW LOTS 1 TO 8 BLK 2 LESS TAX 1, 6, & 7 PLUS VAC ALLEY LESSLAND SOLD |
| Parcel Number: | 360729630201 | Agent Code: | |
| Type: | Real | | |
| Tax Area: | 1 - OL-140-F | Land Use Code | 11 |
| Open Space: | N | DFL | N |
| Historic Property: | N | Remodel Property: | N |
| Multi-Family Redevelopment: | N | | |
| Township: | 7 | Section: | 29 |
| Range: | 36 |
Location |
| Address: | 212 BRYANT AVE WA 99362 | Mapsco: | |
| Neighborhood: | G Res | Map ID: | |
| Neighborhood CD: | 614011 |
Owner |
| Name: | EDMUNDS JAMES & ROBIN CHEYNEY | Owner ID: | 66454 |
| Mailing Address: | 6219 41ST AVE NE SEATTLE, WA 98115-7507 | % Ownership: | 100.0000000000% |
| | | Exemptions: | |
Taxes and Assessment Details
Values
| (+) Improvement Homesite Value: | + | $0 | |
| (+) Improvement Non-Homesite Value: | + | $621,890 | |
| (+) Land Homesite Value: | + | $0 | |
| (+) Land Non-Homesite Value: | + | $138,860 | |
| (+) Curr Use (HS): | + | $0 | $0 |
| (+) Curr Use (NHS): | + | $0 | $0 |
| | | -------------------------- | |
| (=) Market Value: | = | $760,750 | |
| (–) Productivity Loss: | – | $0 | |
| | | -------------------------- | |
| (=) Subtotal: | = | $760,750 | |
| (+) Senior Appraised Value: | + | $0 | |
| (+) Non-Senior Appraised Value: | + | $760,750 | |
| | | -------------------------- | |
| (=) Total Appraised Value: | = | $760,750 | |
| (–) Senior Exemption Loss: | – | $0 | |
| (–) Exemption Loss: | – | $0 | |
| | | -------------------------- | |
| (=) Taxable Value: | = | $760,750 | |
Taxing Jurisdiction
| Owner: | EDMUNDS JAMES & ROBIN CHEYNEY | | |
| % Ownership: | 100.0000000000% | | |
| Total Value: | $760,750 | | |
| Tax Area: | 1 - OL-140-F |
| CERFD | CURRENT EXPENSE REFUND 010 | 0.0000000000 | $760,750 | $760,750 | $0.00 | | |
| CURREXP | CURRENT EXPENSE 010 | 1.0175366760 | $760,750 | $760,750 | $774.09 | | |
| HUMNSERV | HUMAN SERVICES 119 | 0.0250000000 | $760,750 | $760,750 | $19.02 | | |
| SLDREL | SOLDIERS RELIEF 121 | 0.0155990005 | $760,750 | $760,750 | $11.87 | | |
| EMERGSER | EMS 147 | 0.3792580840 | $760,750 | $760,750 | $288.52 | | |
| EMSRFD | EMS REFUND 147 | 0.0000000000 | $760,750 | $760,750 | $0.00 | | |
| PORTRFD | PORT REFUND 640 | 0.0000000000 | $760,750 | $760,750 | $0.00 | | |
| PORTWWGEN | PORT OF WW 640 | 0.2460186015 | $760,750 | $760,750 | $187.16 | | |
| SD140BOND | SD #140 BOND 764 | 0.8342371393 | $760,750 | $760,750 | $634.65 | | |
| SD140GEN | SD #140 GENERAL 760 | 2.0646500647 | $760,750 | $760,750 | $1,570.68 | | |
| ST2 | STATE SCHOOL PART 2 600 | 0.8131451643 | $760,750 | $760,750 | $618.60 | | |
| STATESCHL | STATE SCHOOL 600 | 1.5158548041 | $760,750 | $760,750 | $1,153.19 | | |
| STREFUND | STATE REFUND LEVY 603 | 0.0000000000 | $760,750 | $760,750 | $0.00 | | |
| CWWBOND | C OF WW BOND 643 | 0.2760494372 | $760,750 | $760,750 | $210.00 | | |
| CWWGEN | CITY OF WW 631 | 1.6100204973 | $760,750 | $760,750 | $1,224.82 | | |
| CWWRFD | CITY OF WALLA WALLA REFUND 631 | 0.0000000000 | $760,750 | $760,750 | $0.00 | | |
| | Total Tax Rate: | 8.7973694689 | | | | | |
| | | | | Taxes w/Current Exemptions: | $6,692.60 | | |
| | | | | Taxes w/o Exemptions: | $6,692.60 | | |
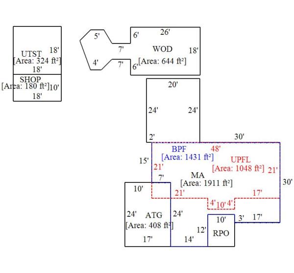
Improvement / Building
| Improvement #1: | RESIDENTIAL | State Code: | 11 | 2959.0 sqft | Value: | $621,890 |
| Exterior Wall: | SIDING | Heating/Cooling: | WARM & COOLED AIR | | Number of Bathrooms: | 2 | Number of Bedrooms: | 3 | | Plumbing: | 10 | Roof Covering: | COMP SHINGLE |
|
| | Type | Description | Class CD | Sub Class CD | Year Built | Area |
| | MA | Main Area | 4 | 50 | 1941 | 2959.0 |
| | UPFL | Upper Floor (included in main area) | 4 | 50 | 1941 | 1048.0 |
| | SI1 | SITE IMPROVEMENT | 4 | 50 | 1941 | 5.5 |
| | BASE | BASEMENT | 4 | 50 | 1941 | 1431.0 |
| | BPF | BASEMENT -PARTITIONED FINISH | 4 | 50 | 1941 | 1431.0 |
| | ATG | Attached Garage | 4 | 50 | 1941 | 408.0 |
| | RPO | OPEN PORCH W/ROOF | 4 | 50 | 1941 | 120.0 |
| | WOD | Wood Deck | 4 | 50 | 1941 | 620.0 |
| | D2F | Double 2 Story Fireplace | 4 | 50 | 1941 | 1.0 |
| | UTST | Utility Storage Shed | 4 | 50 | 1941 | 324.0 |
| | SHOP | SHOP BUILDING | 4 | 50 | 1941 | 180.0 |
Sketch
Property Image
Land
| 1 | RES 1 | Converted: Residential | 0.7362 | 32068.87 | 0.00 | 0.00 | 1.00 | $138,860 | $0 |
Roll Value History
| 2026 | N/A | N/A | N/A | N/A | N/A |
| 2025 | $599,380 | $160,350 | $0 | $759,730 | $759,730 |
| 2024 | $621,890 | $138,860 | $0 | $760,750 | $760,750 |
| 2023 | $621,890 | $138,860 | $0 | $760,750 | $760,750 |
| 2022 | $592,280 | $110,590 | $0 | $702,870 | $702,870 |
| 2021 | $564,080 | $112,240 | $0 | $676,320 | $676,320 |
| 2020 | $451,260 | $112,240 | $0 | $563,500 | $563,500 |
| 2019 | $451,260 | $112,240 | $0 | $563,500 | $563,500 |
| 2018 | $472,120 | $65,900 | $0 | $538,020 | $538,020 |
| 2017 | $429,200 | $65,900 | $0 | $495,100 | $495,100 |
| 2016 | $416,700 | $65,900 | $0 | $482,600 | $482,600 |
| 2015 | $416,700 | $65,900 | $0 | $482,600 | $482,600 |
| 2014 | $416,700 | $65,900 | $0 | $482,600 | $482,600 |
| 2013 | $416,700 | $65,900 | $0 | $482,600 | $482,600 |
| 2012 | $447,200 | $65,900 | $0 | $0 | $0 |
| 2011 | $447,200 | $65,900 | $0 | $0 | $0 |
| 2010 | $447,200 | $65,900 | $0 | $0 | $0 |
| 2009 | $477,100 | $65,900 | $0 | $0 | $0 |
| 2008 | $477,100 | $65,900 | $0 | $0 | $0 |
| 2007 | $193,300 | $26,600 | $0 | $0 | $0 |
Deed and Sales History
| 1 | 05/16/2022 | SURVEY | SURVEY | | | 14 | 33 | | 0 | 2022-04181 |
| 2 | 12/16/2019 | SWD | STATUTORY WARRANTY DEED | SIEVERTSEN CRAIG & JULIE | EDMUNDS JAMES & ROBIN CHEYNEY | | 2-PARCELS | $615,000.00 | 138252 | 2019-10373 |
|   | |
| 3 | 11/16/2005 | WARRANTY D | WARRANTY DEED | BALMER GYLE L | SIEVERTSEN CRAIG & JULIE | | | $600,000.00 | 109041 | 2005-14452 |
|   | |
| 4 | 07/15/1985 | WARRANTY D | WARRANTY DEED | | | | | $110,000.00 | 0 | 1518-504681 |
Payout Agreement
| No payout information available.. |