Property
Account |
| Property ID: | 10689 | Abbreviated Legal Description: | FAIRVIEW ADDN TAX 5 & 6 BLOCK 2 PLUS PTN VAC HOPE ST |
| Parcel Number: | 360729630225 | Agent Code: | |
| Type: | Real | | |
| Tax Area: | 1 - OL-140-F | Land Use Code | 11 |
| Open Space: | N | DFL | N |
| Historic Property: | N | Remodel Property: | N |
| Multi-Family Redevelopment: | N | | |
| Township: | 7 | Section: | 29 |
| Range: | 36 |
Location |
| Address: | 203 HOPE ST WA 99362 | Mapsco: | |
| Neighborhood: | G Res | Map ID: | |
| Neighborhood CD: | 614011 |
Owner |
| Name: | LANHAM SARA B TRUST | Owner ID: | 68149 |
| Mailing Address: | C/O ERIN PETERSON 921 11TH AVE E UNIT 2 SEATTLE, WA 98102 | % Ownership: | 100.0000000000% |
| | | Exemptions: | |
Taxes and Assessment Details
Values
| (+) Improvement Homesite Value: | + | $0 | |
| (+) Improvement Non-Homesite Value: | + | $335,670 | |
| (+) Land Homesite Value: | + | $0 | |
| (+) Land Non-Homesite Value: | + | $156,900 | |
| (+) Curr Use (HS): | + | $0 | $0 |
| (+) Curr Use (NHS): | + | $0 | $0 |
| | | -------------------------- | |
| (=) Market Value: | = | $492,570 | |
| (–) Productivity Loss: | – | $0 | |
| | | -------------------------- | |
| (=) Subtotal: | = | $492,570 | |
| (+) Senior Appraised Value: | + | $0 | |
| (+) Non-Senior Appraised Value: | + | $492,570 | |
| | | -------------------------- | |
| (=) Total Appraised Value: | = | $492,570 | |
| (–) Senior Exemption Loss: | – | $0 | |
| (–) Exemption Loss: | – | $0 | |
| | | -------------------------- | |
| (=) Taxable Value: | = | $492,570 | |
Taxing Jurisdiction
| Owner: | LANHAM SARA B TRUST | | |
| % Ownership: | 100.0000000000% | | |
| Total Value: | $492,570 | | |
| Tax Area: | 1 - OL-140-F |
| CERFD | CURRENT EXPENSE REFUND 010 | 0.0000000000 | $492,570 | $492,570 | $0.00 | | |
| CURREXP | CURRENT EXPENSE 010 | 0.9851088983 | $492,570 | $492,570 | $485.24 | | |
| HUMNSERV | HUMAN SERVICES 119 | 0.0250000000 | $492,570 | $492,570 | $12.31 | | |
| SLDREL | SOLDIERS RELIEF 121 | 0.0155990000 | $492,570 | $492,570 | $7.68 | | |
| EMERGSER | EMS 147 | 0.3676811629 | $492,570 | $492,570 | $181.11 | | |
| EMSRFD | EMS REFUND 147 | 0.0000000000 | $492,570 | $492,570 | $0.00 | | |
| PORTRFD | PORT REFUND 640 | 0.0000000000 | $492,570 | $492,570 | $0.00 | | |
| PORTWWGEN | PORT OF WW 640 | 0.2344301070 | $492,570 | $492,570 | $115.47 | | |
| SD140BOND | SD #140 BOND 764 | 0.8032434458 | $492,570 | $492,570 | $395.65 | | |
| SD140CAP | SD #140 CAP 762 | 0.3840034221 | $492,570 | $492,570 | $189.15 | | |
| SD140GEN | SD #140 GENERAL 760 | 2.4999999996 | $492,570 | $492,570 | $1,231.43 | | |
| ST2 | STATE SCHOOL PART 2 600 | 0.8853714103 | $492,570 | $492,570 | $436.11 | | |
| STATESCHL | STATE SCHOOL 600 | 1.6424571473 | $492,570 | $492,570 | $809.03 | | |
| STREFUND | STATE REFUND LEVY 603 | 0.0000000000 | $492,570 | $492,570 | $0.00 | | |
| CWWBOND | C OF WW BOND 643 | 0.2642134255 | $492,570 | $492,570 | $130.14 | | |
| CWWGEN | CITY OF WW 631 | 1.6110494978 | $492,570 | $492,570 | $793.55 | | |
| CWWRFD | CITY OF WALLA WALLA REFUND 631 | 0.0000000000 | $492,570 | $492,570 | $0.00 | | |
| | Total Tax Rate: | 9.7181575166 | | | | | |
| | | | | Taxes w/Current Exemptions: | $4,786.87 | | |
| | | | | Taxes w/o Exemptions: | $4,786.87 | | |
Improvement / Building
| Improvement #1: | RESIDENTIAL | State Code: | 11 | 1943.0 sqft | Value: | $335,670 |
| Exterior Wall: | SIDING | Foundation: | SLAB | | Heating/Cooling: | WARM & COOLED AIR | Number of Bathrooms: | 2 | | Number of Bedrooms: | 3 | Plumbing: | 9 | | Roof Covering: | COMP SHINGLE |   |   |
|
| | Type | Description | Class CD | Sub Class CD | Year Built | Area |
| | MA | Main Area | 1 | 35 | 1967 | 1943.0 |
| | SI1 | SITE IMPROVEMENT | 1 | 35 | 1967 | 5.0 |
| | RPO | OPEN PORCH W/ROOF | 1 | 35 | 1967 | 225.0 |
| | S1F | Single One Story Fireplace | 1 | 35 | 1967 | 1.0 |
| | CPC | COVERED CARPORT/PATIO | 1 | 35 | 1967 | 108.0 |
| | DTG | Detached Garage | 1 | 35 | 1967 | 528.0 |
| | CPCG | CARPORT/ GABLE ROOF | 1 | 35 | 1967 | 176.0 |
| | TOOL | TOOL SHED | 1 | 35 | 1967 | 504.0 |
Sketch
Property Image
Land
| 1 | RES 1 | Converted: Residential | 0.6330 | 27575.00 | 0.00 | 0.00 | 1.00 | $156,900 | $0 |
Roll Value History
| 2026 | N/A | N/A | N/A | N/A | N/A |
| 2025 | $335,670 | $156,900 | $0 | $492,570 | $492,570 |
| 2024 | $355,970 | $134,830 | $0 | $490,800 | $490,800 |
| 2023 | $355,970 | $134,830 | $0 | $490,800 | $490,800 |
| 2022 | $323,610 | $109,200 | $0 | $432,810 | $432,810 |
| 2021 | $281,400 | $109,200 | $0 | $390,600 | $390,600 |
| 2020 | $187,600 | $109,200 | $0 | $296,800 | $296,800 |
| 2019 | $187,600 | $109,200 | $0 | $296,800 | $296,800 |
| 2018 | $88,260 | $62,100 | $0 | $150,360 | $150,360 |
| 2017 | $88,260 | $62,100 | $0 | $150,360 | $150,360 |
| 2016 | $80,240 | $62,100 | $0 | $142,340 | $142,340 |
| 2015 | $80,240 | $62,100 | $0 | $142,340 | $142,340 |
| 2014 | $77,900 | $62,100 | $0 | $140,000 | $140,000 |
| 2013 | $77,900 | $62,100 | $0 | $140,000 | $140,000 |
| 2012 | $96,700 | $62,100 | $0 | $0 | $0 |
| 2011 | $96,700 | $62,100 | $0 | $0 | $0 |
| 2010 | $96,700 | $62,100 | $0 | $0 | $0 |
| 2009 | $114,300 | $62,100 | $0 | $0 | $0 |
| 2008 | $114,300 | $62,100 | $0 | $0 | $0 |
| 2007 | $102,800 | $23,000 | $0 | $0 | $0 |
Deed and Sales History
| 1 | 10/24/2025 | QCD | QUIT CLAIM DEED | LANHAM SARA B TRUST | PETERSON ERIN LIVING TRUST | | | | 150243 | 2025-06589 |
| 2 | 10/23/2020 | QCD | QUIT CLAIM DEED | LANHAM SARA | LANHAM SARA B TRUST | | | | 140172 | 2020-11034 |
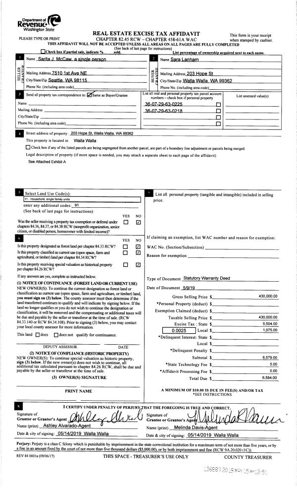
| 3 | 05/15/2019 | SWD | STATUTORY WARRANTY DEED | MC CAW SARITA J | LANHAM SARA | | 2-PARCELS | $430,000.00 | 136883 | 2019-03242 |
|   | |
| 4 | 11/07/2016 | EASE | EASEMENT | | | | | | 0 | 2016-09237 |
| 5 | 12/15/2010 | WARRANTY D | WARRANTY DEED | MC CAW WILLIAM & SARITA | MC CAW SARITA J | | | | 119459 | 2010-10347 |
Payout Agreement
| No payout information available.. |