Property
Account |
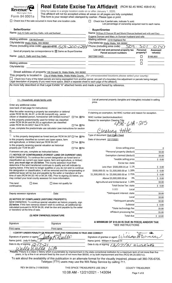
| Property ID: | 10681 | Abbreviated Legal Description: | FAIRFIELD ALL LOT 15; LOT 16 LESS ELY 15' BLK 4 |
| Parcel Number: | 360729610423 | Agent Code: | |
| Type: | Real | | |
| Tax Area: | 1 - OL-140-F | Land Use Code | 11 |
| Open Space: | N | DFL | N |
| Historic Property: | N | Remodel Property: | N |
| Multi-Family Redevelopment: | N | | |
| Township: | 7 | Section: | 29 |
| Range: | 36 |
Location |
| Address: | 136 DONALD ST WA 99362 | Mapsco: | |
| Neighborhood: | Fair Res | Map ID: | |
| Neighborhood CD: | 612011 |
Owner |
| Name: | REYES CLAUDIA & MARIO | Owner ID: | 72444 |
| Mailing Address: | 855 WALLULA AVE WALLA WALLA, WA 99362 | % Ownership: | 100.0000000000% |
| | | Exemptions: | |
Taxes and Assessment Details
Property Tax Information as of
02/21/2026
Click on "Statement Details" to expand or collapse a tax statement.
* Please enter a valid date ** Please enter a valid date *
Statement Details |
| | TOTAL: | $0.00 | $0.00 | $0.00 | $0.00 | $0.00 | $0.00 |
|
| | $0.00 | $0.00 | $0.00 | $0.00 | $0.00 | $0.00 |
Values
| (+) Improvement Homesite Value: | + | $0 | |
| (+) Improvement Non-Homesite Value: | + | $117,510 | |
| (+) Land Homesite Value: | + | $0 | |
| (+) Land Non-Homesite Value: | + | $69,770 | |
| (+) Curr Use (HS): | + | $0 | $0 |
| (+) Curr Use (NHS): | + | $0 | $0 |
| | | -------------------------- | |
| (=) Market Value: | = | $187,280 | |
| (–) Productivity Loss: | – | $0 | |
| | | -------------------------- | |
| (=) Subtotal: | = | $187,280 | |
| (+) Senior Appraised Value: | + | $0 | |
| (+) Non-Senior Appraised Value: | + | $187,280 | |
| | | -------------------------- | |
| (=) Total Appraised Value: | = | $187,280 | |
| (–) Senior Exemption Loss: | – | $0 | |
| (–) Exemption Loss: | – | $0 | |
| | | -------------------------- | |
| (=) Taxable Value: | = | $187,280 | |
Taxing Jurisdiction
| Owner: | REYES CLAUDIA & MARIO | | |
| % Ownership: | 100.0000000000% | | |
| Total Value: | $187,280 | | |
| Tax Area: | 1 - OL-140-F |
| CERFD | CURRENT EXPENSE REFUND 010 | 0.0000000000 | $187,280 | $187,280 | $0.00 | | |
| CURREXP | CURRENT EXPENSE 010 | 1.0175366760 | $187,280 | $187,280 | $190.56 | | |
| HUMNSERV | HUMAN SERVICES 119 | 0.0250000000 | $187,280 | $187,280 | $4.68 | | |
| SLDREL | SOLDIERS RELIEF 121 | 0.0155990005 | $187,280 | $187,280 | $2.92 | | |
| EMERGSER | EMS 147 | 0.3792580840 | $187,280 | $187,280 | $71.03 | | |
| EMSRFD | EMS REFUND 147 | 0.0000000000 | $187,280 | $187,280 | $0.00 | | |
| PORTRFD | PORT REFUND 640 | 0.0000000000 | $187,280 | $187,280 | $0.00 | | |
| PORTWWGEN | PORT OF WW 640 | 0.2460186015 | $187,280 | $187,280 | $46.07 | | |
| SD140BOND | SD #140 BOND 764 | 0.8342371393 | $187,280 | $187,280 | $156.24 | | |
| SD140GEN | SD #140 GENERAL 760 | 2.0646500647 | $187,280 | $187,280 | $386.67 | | |
| ST2 | STATE SCHOOL PART 2 600 | 0.8131451643 | $187,280 | $187,280 | $152.29 | | |
| STATESCHL | STATE SCHOOL 600 | 1.5158548041 | $187,280 | $187,280 | $283.89 | | |
| STREFUND | STATE REFUND LEVY 603 | 0.0000000000 | $187,280 | $187,280 | $0.00 | | |
| CWWBOND | C OF WW BOND 643 | 0.2760494372 | $187,280 | $187,280 | $51.70 | | |
| CWWGEN | CITY OF WW 631 | 1.6100204973 | $187,280 | $187,280 | $301.52 | | |
| CWWRFD | CITY OF WALLA WALLA REFUND 631 | 0.0000000000 | $187,280 | $187,280 | $0.00 | | |
| | Total Tax Rate: | 8.7973694689 | | | | | |
| | | | | Taxes w/Current Exemptions: | $1,647.57 | | |
| | | | | Taxes w/o Exemptions: | $1,647.57 | | |
Improvement / Building
| Improvement #1: | RESIDENTIAL | State Code: | 11 | 1160.0 sqft | Value: | $117,510 |
| Exterior Wall: | SIDING | Heating/Cooling: | FORCED AIR | | Number of Bathrooms: | 1 | Number of Bedrooms: | 3 | | Plumbing: | 7 | Roof Covering: | COMP SHINGLE |
|
| | Type | Description | Class CD | Sub Class CD | Year Built | Area |
| | MA | Main Area | 1 | 25 | 1940 | 1160.0 |
| | SI1 | SITE IMPROVEMENT | 1 | 25 | 1940 | 1.0 |
| | BASE | BASEMENT | 1 | 25 | 1940 | 400.0 |
| | RPS | PORCH W/STEPS,ROOF | 1 | 25 | 1940 | 25.0 |
| | RPO | OPEN PORCH W/ROOF | 1 | 25 | 1940 | 153.0 |
| | TOOL | TOOL SHED | 1 | 25 | 1940 | 1.0 |
Sketch
Property Image
Land
| 1 | RES 1 | Converted: Residential | 0.2790 | 12155.00 | 0.00 | 0.00 | 1.00 | $69,770 | $0 |
Roll Value History
| 2026 | N/A | N/A | N/A | N/A | N/A |
| 2025 | $281,530 | $87,640 | $0 | $369,170 | $369,170 |
| 2024 | $129,260 | $69,770 | $0 | $199,030 | $199,030 |
| 2023 | $117,510 | $69,770 | $0 | $187,280 | $187,280 |
| 2022 | $167,870 | $54,940 | $0 | $222,810 | $222,810 |
| 2021 | $111,910 | $54,940 | $0 | $166,850 | $166,850 |
| 2020 | $93,260 | $54,940 | $0 | $148,200 | $148,200 |
| 2019 | $93,260 | $54,940 | $0 | $148,200 | $148,200 |
| 2018 | $85,940 | $49,000 | $0 | $134,940 | $134,940 |
| 2017 | $85,940 | $49,000 | $0 | $134,940 | $134,940 |
| 2016 | $78,130 | $49,000 | $0 | $127,130 | $127,130 |
| 2015 | $78,130 | $49,000 | $0 | $127,130 | $127,130 |
| 2014 | $60,100 | $49,000 | $0 | $109,100 | $109,100 |
| 2013 | $60,100 | $49,000 | $0 | $109,100 | $109,100 |
| 2012 | $65,800 | $49,000 | $0 | $0 | $0 |
| 2011 | $65,800 | $49,000 | $0 | $0 | $0 |
| 2010 | $65,800 | $49,000 | $0 | $0 | $0 |
| 2009 | $78,600 | $49,000 | $0 | $0 | $0 |
| 2008 | $78,600 | $49,000 | $0 | $0 | $0 |
| 2007 | $58,600 | $20,600 | $0 | $0 | $0 |
Deed and Sales History
| 1 | 09/09/2022 | SWD | STATUTORY WARRANTY DEED | DUNCAN WILLIAM & MURIEL | REYES CLAUDIA & MARIO | | | $190,000.00 | 144660 | 2022-07536 |
| 2 | 12/17/2021 | QCD | QUIT CLAIM DEED | GALLO JUDY K | DUNCAN WILLIAM & MURIEL | | | $0.00 | 143094 | 2021-14915 |
| 3 | 03/30/2012 | QCD | QUIT CLAIM DEED | DUNCAN, DONNA D | GALLO, JUDY K | | | | 121598 | 2012-02561 |
| 4 | 12/01/1963 | QCD | QUIT CLAIM DEED | | | | | $8,533.00 | 0 | 1448-403646 |
Payout Agreement
| No payout information available.. |