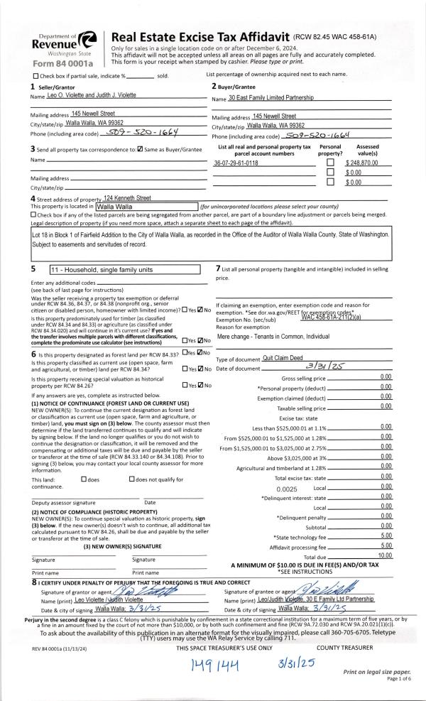
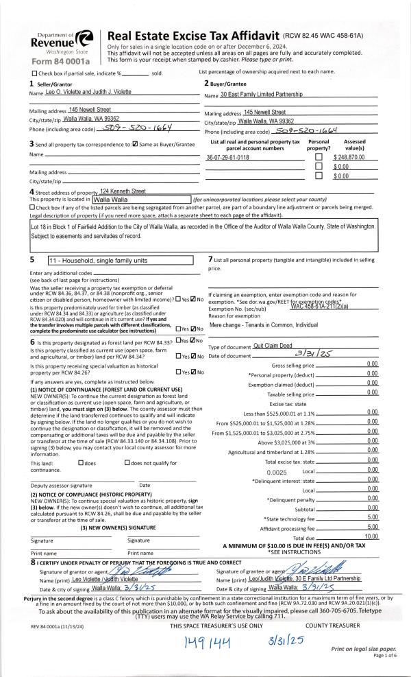
Property
Account |
| Property ID: | 10664 | Abbreviated Legal Description: | FAIRFIELD LOT 18 BLK 1 |
| Parcel Number: | 360729610118 | Agent Code: | |
| Type: | Real | | |
| Tax Area: | 1 - OL-140-F | Land Use Code | 11 |
| Open Space: | N | DFL | N |
| Historic Property: | N | Remodel Property: | N |
| Multi-Family Redevelopment: | N | | |
| Township: | 7 | Section: | 29 |
| Range: | 36 |
Location |
| Address: | 124 KENNETH ST WA 99362 | Mapsco: | |
| Neighborhood: | Fair Res | Map ID: | |
| Neighborhood CD: | 612011 |
Owner |
| Name: | VIOLETTE LEO O & JUDITH J | Owner ID: | 7945 |
| Mailing Address: | 145 NEWELL ST WALLA WALLA, WA 99362 | % Ownership: | 100.0000000000% |
| | | Exemptions: | |
Taxes and Assessment Details
Values
| (+) Improvement Homesite Value: | + | $0 | |
| (+) Improvement Non-Homesite Value: | + | $181,590 | |
| (+) Land Homesite Value: | + | $0 | |
| (+) Land Non-Homesite Value: | + | $57,200 | |
| (+) Curr Use (HS): | + | $0 | $0 |
| (+) Curr Use (NHS): | + | $0 | $0 |
| | | -------------------------- | |
| (=) Market Value: | = | $238,790 | |
| (–) Productivity Loss: | – | $0 | |
| | | -------------------------- | |
| (=) Subtotal: | = | $238,790 | |
| (+) Senior Appraised Value: | + | $0 | |
| (+) Non-Senior Appraised Value: | + | $238,790 | |
| | | -------------------------- | |
| (=) Total Appraised Value: | = | $238,790 | |
| (–) Senior Exemption Loss: | – | $0 | |
| (–) Exemption Loss: | – | $0 | |
| | | -------------------------- | |
| (=) Taxable Value: | = | $238,790 | |
Taxing Jurisdiction
| Owner: | VIOLETTE LEO O & JUDITH J | | |
| % Ownership: | 100.0000000000% | | |
| Total Value: | $238,790 | | |
| Tax Area: | 1 - OL-140-F |
| CERFD | CURRENT EXPENSE REFUND 010 | 0.0000000000 | $238,790 | $238,790 | $0.00 | | |
| CURREXP | CURRENT EXPENSE 010 | 1.0175366760 | $238,790 | $238,790 | $242.98 | | |
| HUMNSERV | HUMAN SERVICES 119 | 0.0250000000 | $238,790 | $238,790 | $5.97 | | |
| SLDREL | SOLDIERS RELIEF 121 | 0.0155990005 | $238,790 | $238,790 | $3.72 | | |
| EMERGSER | EMS 147 | 0.3792580840 | $238,790 | $238,790 | $90.56 | | |
| EMSRFD | EMS REFUND 147 | 0.0000000000 | $238,790 | $238,790 | $0.00 | | |
| PORTRFD | PORT REFUND 640 | 0.0000000000 | $238,790 | $238,790 | $0.00 | | |
| PORTWWGEN | PORT OF WW 640 | 0.2460186015 | $238,790 | $238,790 | $58.75 | | |
| SD140BOND | SD #140 BOND 764 | 0.8342371393 | $238,790 | $238,790 | $199.21 | | |
| SD140GEN | SD #140 GENERAL 760 | 2.0646500647 | $238,790 | $238,790 | $493.02 | | |
| ST2 | STATE SCHOOL PART 2 600 | 0.8131451643 | $238,790 | $238,790 | $194.17 | | |
| STATESCHL | STATE SCHOOL 600 | 1.5158548041 | $238,790 | $238,790 | $361.97 | | |
| STREFUND | STATE REFUND LEVY 603 | 0.0000000000 | $238,790 | $238,790 | $0.00 | | |
| CWWBOND | C OF WW BOND 643 | 0.2760494372 | $238,790 | $238,790 | $65.92 | | |
| CWWGEN | CITY OF WW 631 | 1.6100204973 | $238,790 | $238,790 | $384.46 | | |
| CWWRFD | CITY OF WALLA WALLA REFUND 631 | 0.0000000000 | $238,790 | $238,790 | $0.00 | | |
| | Total Tax Rate: | 8.7973694689 | | | | | |
| | | | | Taxes w/Current Exemptions: | $2,100.73 | | |
| | | | | Taxes w/o Exemptions: | $2,100.73 | | |
Improvement / Building
| Improvement #1: | RESIDENTIAL | State Code: | 11 | 884.0 sqft | Value: | $181,590 |
| Exterior Wall: | METAL/STEEL | Heating/Cooling: | WARM & COOLED AIR | | Number of Bathrooms: | 2 | Number of Bedrooms: | 3 | | Plumbing: | 9 | Roof Covering: | COMP SHINGLE |
|
| | Type | Description | Class CD | Sub Class CD | Year Built | Area |
| | MA | Main Area | 1 | 25 | 1952 | 884.0 |
| | SI1 | SITE IMPROVEMENT | 1 | 25 | 1952 | 1.5 |
| | BASE | BASEMENT | 1 | 25 | 1952 | 884.0 |
| | BPF | BASEMENT -PARTITIONED FINISH | 1 | 25 | 1952 | 800.0 |
| | DTG | Detached Garage | 1 | 25 | 1952 | 440.0 |
| | RPS | PORCH W/STEPS,ROOF | 1 | 25 | 1952 | 36.0 |
Sketch
Property Image
Land
| 1 | RES 1 | Converted: Residential | 0.1641 | 7150.00 | 0.00 | 0.00 | 1.00 | $57,200 | $0 |
Roll Value History
| 2026 | N/A | N/A | N/A | N/A | N/A |
| 2025 | $196,520 | $71,500 | $0 | $268,020 | $268,020 |
| 2024 | $190,670 | $57,200 | $0 | $247,870 | $247,870 |
| 2023 | $181,590 | $57,200 | $0 | $238,790 | $238,790 |
| 2022 | $181,590 | $44,690 | $0 | $226,280 | $226,280 |
| 2021 | $129,710 | $44,690 | $0 | $174,400 | $174,400 |
| 2020 | $129,710 | $44,690 | $0 | $174,400 | $174,400 |
| 2019 | $129,710 | $44,690 | $0 | $174,400 | $174,400 |
| 2018 | $92,860 | $42,900 | $0 | $135,760 | $135,760 |
| 2017 | $92,860 | $42,900 | $0 | $135,760 | $135,760 |
| 2016 | $88,440 | $42,900 | $0 | $131,340 | $131,340 |
| 2015 | $88,440 | $42,900 | $0 | $131,340 | $131,340 |
| 2014 | $80,400 | $42,900 | $0 | $123,300 | $123,300 |
| 2013 | $80,400 | $42,900 | $0 | $123,300 | $123,300 |
| 2012 | $80,400 | $42,900 | $0 | $0 | $0 |
| 2011 | $80,400 | $42,900 | $0 | $0 | $0 |
| 2010 | $80,400 | $42,900 | $0 | $0 | $0 |
| 2009 | $109,300 | $42,900 | $0 | $0 | $0 |
| 2008 | $109,300 | $42,900 | $0 | $0 | $0 |
| 2007 | $72,700 | $14,300 | $0 | $0 | $0 |
Deed and Sales History
| 1 | 03/31/2025 | QCD | QUIT CLAIM DEED | VIOLETTE LEO O & JUDITH J | 30 EAST FAMILY LIMITED PARTNERSHIP | | | | 149144 | 2025-01692 |
| 2 | 06/26/2020 | SWD | STATUTORY WARRANTY DEED | LEONARD VERNA L | VIOLETTE LEO O & JUDITH J | | | $150,000.00 | 139369 | 2020-05888 |
| 3 | 09/01/1968 | WARRANTY D | WARRANTY DEED | | | | | $12,607.00 | 0 | 3280-496933 |
Payout Agreement
| No payout information available.. |