Property
Account |
| Property ID: | 10639 | Abbreviated Legal Description: | ELLIOTTS LOT 6 BLK 5 |
| Parcel Number: | 360729590506 | Agent Code: | |
| Type: | Real | | |
| Tax Area: | 1 - OL-140-F | Land Use Code | 11 |
| Open Space: | N | DFL | N |
| Historic Property: | N | Remodel Property: | N |
| Multi-Family Redevelopment: | N | | |
| Township: | 7 | Section: | 29 |
| Range: | 36 |
Location |
| Address: | 320 E CHESTNUT ST WA 99362 | Mapsco: | |
| Neighborhood: | G Res | Map ID: | |
| Neighborhood CD: | 614011 |
Owner |
| Name: | BUSH MERI | Owner ID: | 60447 |
| Mailing Address: | 320 E CHESTNUT ST WALLA WALLA, WA 99362 | % Ownership: | 100.0000000000% |
| | | Exemptions: | SNR/DSBL |
Taxes and Assessment Details
Property Tax Information as of
04/19/2026
Click on "Statement Details" to expand or collapse a tax statement.
* Please enter a valid date ** Please enter a valid date *
Statement Details |
| | TOTAL: | $0.00 | $0.00 | $0.00 | $0.00 | $0.00 | $0.00 |
|
| | $0.00 | $0.00 | $0.00 | $0.00 | $0.00 | $0.00 |
Values
| (+) Improvement Homesite Value: | + | $374,500 | |
| (+) Improvement Non-Homesite Value: | + | $0 | |
| (+) Land Homesite Value: | + | $58,500 | |
| (+) Land Non-Homesite Value: | + | $0 | |
| (+) Curr Use (HS): | + | $0 | $0 |
| (+) Curr Use (NHS): | + | $0 | $0 |
| | | -------------------------- | |
| (=) Market Value: | = | $433,000 | |
| (–) Productivity Loss: | – | $0 | |
| | | -------------------------- | |
| (=) Subtotal: | = | $433,000 | |
| (+) Senior Appraised Value: | + | $360,340 | |
| (+) Non-Senior Appraised Value: | + | $0 | |
| | | -------------------------- | |
| (=) Total Appraised Value: | = | $360,340 | |
| (–) Senior Exemption Loss: | – | $216,204 | |
| (–) Exemption Loss: | – | $0 | |
| | | -------------------------- | |
| (=) Taxable Value: | = | $144,136 | |
Taxing Jurisdiction
| Owner: | BUSH MERI | | |
| % Ownership: | 100.0000000000% | | |
| Total Value: | $433,000 | | |
| Tax Area: | 1 - OL-140-F |
| CERFD | CURRENT EXPENSE REFUND 010 | 0.0000000000 | $433,000 | $144,136 | $0.00 | | |
| CURREXP | CURRENT EXPENSE 010 | 1.0175366760 | $433,000 | $144,136 | $146.66 | | |
| HUMNSERV | HUMAN SERVICES 119 | 0.0250000000 | $433,000 | $144,136 | $3.60 | | |
| SLDREL | SOLDIERS RELIEF 121 | 0.0155990005 | $433,000 | $144,136 | $2.25 | | |
| EMERGSER | EMS 147 | 0.3792580840 | $433,000 | $144,136 | $54.66 | | |
| EMSRFD | EMS REFUND 147 | 0.0000000000 | $433,000 | $144,136 | $0.00 | | |
| PORTRFD | PORT REFUND 640 | 0.0000000000 | $433,000 | $144,136 | $0.00 | | |
| PORTWWGEN | PORT OF WW 640 | 0.2460186015 | $433,000 | $144,136 | $35.46 | | |
| SD140BOND | SD #140 BOND 764 | 0.0000000000 | $433,000 | $0 | $0.00 | | |
| SD140GEN | SD #140 GENERAL 760 | 0.0000000000 | $433,000 | $0 | $0.00 | | |
| ST2 | STATE SCHOOL PART 2 600 | 0.0000000000 | $433,000 | $0 | $0.00 | | |
| STATESCHL | STATE SCHOOL 600 | 1.5158548041 | $433,000 | $144,136 | $218.49 | | |
| STREFUND | STATE REFUND LEVY 603 | 0.0000000000 | $433,000 | $144,136 | $0.00 | | |
| CWWBOND | C OF WW BOND 643 | 0.0000000000 | $433,000 | $0 | $0.00 | | |
| CWWGEN | CITY OF WW 631 | 1.6100204973 | $433,000 | $144,136 | $232.06 | | |
| CWWRFD | CITY OF WALLA WALLA REFUND 631 | 0.0000000000 | $433,000 | $144,136 | $0.00 | | |
| | Total Tax Rate: | 4.8092876634 | | | | | |
| | | | | Taxes w/Current Exemptions: | $693.18 | | |
| | | | | Taxes w/o Exemptions: | $3,809.26 | | |
Improvement / Building
| Improvement #1: | RESIDENTIAL | State Code: | 11 | 1265.0 sqft | Value: | $374,500 |
| Exterior Wall: | SIDING | Heating/Cooling: | WARM & COOLED AIR | | Number of Bathrooms: | 2 | Number of Bedrooms: | 3 | | Plumbing: | 10 | Roof Covering: | COMP SHINGLE |
|
| | Type | Description | Class CD | Sub Class CD | Year Built | Area |
| | MA | Main Area | 1 | 35 | 1925 | 1265.0 |
| | SI1 | SITE IMPROVEMENT | 1 | 35 | 1925 | 2.0 |
| | BASE | BASEMENT | 1 | 35 | 1925 | 1092.0 |
| | BPF | BASEMENT -PARTITIONED FINISH | 1 | 35 | 1925 | 546.0 |
| | DTG | Detached Garage | 1 | 35 | 1925 | 420.0 |
| | RCD | WOOD DECK W/ROOF, CEILED | 1 | 35 | 1925 | 208.0 |
Sketch
Property Image
Land
| 1 | RES 1 | Converted: Residential | 0.1492 | 6500.00 | 0.00 | 0.00 | 1.00 | $58,500 | $0 |
Roll Value History
| 2026 | N/A | N/A | N/A | N/A | N/A |
| 2025 | $365,770 | $64,350 | $0 | $430,120 | $144,136 |
| 2024 | $374,500 | $58,500 | $0 | $433,000 | $144,136 |
| 2023 | $374,500 | $58,500 | $0 | $433,000 | $144,136 |
| 2022 | $312,080 | $48,260 | $0 | $360,340 | $144,136 |
| 2021 | $271,380 | $48,260 | $0 | $319,640 | $319,640 |
| 2020 | $193,840 | $48,260 | $0 | $242,100 | $242,100 |
| 2019 | $193,840 | $48,260 | $0 | $242,100 | $242,100 |
| 2018 | $175,210 | $39,000 | $0 | $214,210 | $214,210 |
| 2017 | $175,210 | $39,000 | $0 | $214,210 | $214,210 |
| 2016 | $159,280 | $39,000 | $0 | $198,280 | $198,280 |
| 2015 | $159,280 | $39,000 | $0 | $198,280 | $198,280 |
| 2014 | $144,800 | $39,000 | $0 | $183,800 | $183,800 |
| 2013 | $144,800 | $39,000 | $0 | $183,800 | $183,800 |
| 2012 | $142,000 | $39,000 | $0 | $0 | $0 |
| 2011 | $142,000 | $39,000 | $0 | $0 | $0 |
| 2010 | $125,500 | $39,000 | $0 | $0 | $0 |
| 2009 | $143,800 | $39,000 | $0 | $0 | $0 |
| 2008 | $143,800 | $39,000 | $0 | $0 | $0 |
| 2007 | $91,100 | $13,000 | $0 | $0 | $0 |
Deed and Sales History
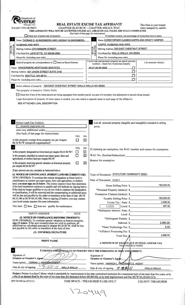
| 1 | 02/23/2017 | SWD | STATUTORY WARRANTY DEED | CAPPS CHRISTOPHER JAMES | BUSH MERI | | | $215,000.00 | 131938 | 2017-01465 |
| 2 | 07/22/2011 | WARRANTY D | WARRANTY DEED | KLINKENBERG, THOMAS D & LINDSA | CAPPS, CHRISTOPHER JAMES | | | $195,000.00 | 120449 | 2011-05712 |
| 3 | 10/20/2005 | WARRANTY D | WARRANTY DEED | PHILO, HAYES L & SUSAN L | KLINKENBERG, THOMAS D & LINDSA | | | $183,000.00 | 108809 | 2005-13132 |
| 4 | 05/25/1983 | WARRANTY D | WARRANTY DEED | | | | | $55,000.00 | 0 | 1378-303629 |
Payout Agreement
| No payout information available.. |