Property
Account |
| Property ID: | 10638 | Abbreviated Legal Description: | ELLIOTTS LOT 3 BLK 5 |
| Parcel Number: | 360729590503 | Agent Code: | |
| Type: | Real | | |
| Tax Area: | 1 - OL-140-F | Land Use Code | 11 |
| Open Space: | N | DFL | N |
| Historic Property: | N | Remodel Property: | N |
| Multi-Family Redevelopment: | N | | |
| Township: | 7 | Section: | 29 |
| Range: | 36 |
Location |
| Address: | 334 E CHESTNUT ST WA 99362 | Mapsco: | |
| Neighborhood: | G Res | Map ID: | |
| Neighborhood CD: | 614011 |
Owner |
| Name: | DICKERSON DOMINIKA M | Owner ID: | 73477 |
| Mailing Address: | 334 E CHESTNUT ST WALLA WALLA, WA 99362 | % Ownership: | 100.0000000000% |
| | | Exemptions: | |
Taxes and Assessment Details
Property Tax Information as of
02/21/2026
Click on "Statement Details" to expand or collapse a tax statement.
* Please enter a valid date ** Please enter a valid date *
Statement Details |
| | TOTAL: | $0.00 | $0.00 | $0.00 | $0.00 | $0.00 | $0.00 |
|
| | $0.00 | $0.00 | $0.00 | $0.00 | $0.00 | $0.00 |
Values
| (+) Improvement Homesite Value: | + | $0 | |
| (+) Improvement Non-Homesite Value: | + | $247,150 | |
| (+) Land Homesite Value: | + | $0 | |
| (+) Land Non-Homesite Value: | + | $58,050 | |
| (+) Curr Use (HS): | + | $0 | $0 |
| (+) Curr Use (NHS): | + | $0 | $0 |
| | | -------------------------- | |
| (=) Market Value: | = | $305,200 | |
| (–) Productivity Loss: | – | $0 | |
| | | -------------------------- | |
| (=) Subtotal: | = | $305,200 | |
| (+) Senior Appraised Value: | + | $0 | |
| (+) Non-Senior Appraised Value: | + | $305,200 | |
| | | -------------------------- | |
| (=) Total Appraised Value: | = | $305,200 | |
| (–) Senior Exemption Loss: | – | $0 | |
| (–) Exemption Loss: | – | $0 | |
| | | -------------------------- | |
| (=) Taxable Value: | = | $305,200 | |
Taxing Jurisdiction
| Owner: | DICKERSON DOMINIKA M | | |
| % Ownership: | 100.0000000000% | | |
| Total Value: | $305,200 | | |
| Tax Area: | 1 - OL-140-F |
| CERFD | CURRENT EXPENSE REFUND 010 | 0.0000000000 | $305,200 | $305,200 | $0.00 | | |
| CURREXP | CURRENT EXPENSE 010 | 1.0175366760 | $305,200 | $305,200 | $310.55 | | |
| HUMNSERV | HUMAN SERVICES 119 | 0.0250000000 | $305,200 | $305,200 | $7.63 | | |
| SLDREL | SOLDIERS RELIEF 121 | 0.0155990005 | $305,200 | $305,200 | $4.76 | | |
| EMERGSER | EMS 147 | 0.3792580840 | $305,200 | $305,200 | $115.75 | | |
| EMSRFD | EMS REFUND 147 | 0.0000000000 | $305,200 | $305,200 | $0.00 | | |
| PORTRFD | PORT REFUND 640 | 0.0000000000 | $305,200 | $305,200 | $0.00 | | |
| PORTWWGEN | PORT OF WW 640 | 0.2460186015 | $305,200 | $305,200 | $75.08 | | |
| SD140BOND | SD #140 BOND 764 | 0.8342371393 | $305,200 | $305,200 | $254.61 | | |
| SD140GEN | SD #140 GENERAL 760 | 2.0646500647 | $305,200 | $305,200 | $630.13 | | |
| ST2 | STATE SCHOOL PART 2 600 | 0.8131451643 | $305,200 | $305,200 | $248.17 | | |
| STATESCHL | STATE SCHOOL 600 | 1.5158548041 | $305,200 | $305,200 | $462.64 | | |
| STREFUND | STATE REFUND LEVY 603 | 0.0000000000 | $305,200 | $305,200 | $0.00 | | |
| CWWBOND | C OF WW BOND 643 | 0.2760494372 | $305,200 | $305,200 | $84.25 | | |
| CWWGEN | CITY OF WW 631 | 1.6100204973 | $305,200 | $305,200 | $491.38 | | |
| CWWRFD | CITY OF WALLA WALLA REFUND 631 | 0.0000000000 | $305,200 | $305,200 | $0.00 | | |
| | Total Tax Rate: | 8.7973694689 | | | | | |
| | | | | Taxes w/Current Exemptions: | $2,684.95 | | |
| | | | | Taxes w/o Exemptions: | $2,684.95 | | |
Improvement / Building
| Improvement #1: | RESIDENTIAL | State Code: | 11 | 808.0 sqft | Value: | $247,150 |
| Exterior Wall: | SIDING | Heating/Cooling: | HEAT PUMP | | Number of Bathrooms: | 2 | Number of Bedrooms: | 2 | | Plumbing: | 9 | Roof Covering: | COMP SHINGLE |
|
| | Type | Description | Class CD | Sub Class CD | Year Built | Area |
| | MA | Main Area | 1 | 35 | 1931 | 808.0 |
| | SI1 | SITE IMPROVEMENT | 1 | 35 | 1931 | 1.0 |
| | BASE | BASEMENT | 1 | 35 | 1931 | 780.0 |
| | BPF | BASEMENT -PARTITIONED FINISH | 1 | 35 | 2016 | 780.0 |
| | S1F | Single One Story Fireplace | 1 | 35 | 1931 | 1.0 |
| | RPS | PORCH W/STEPS,ROOF | 1 | 35 | 1931 | 28.0 |
| | CPC | COVERED CARPORT/PATIO | 1 | 35 | 1931 | 110.0 |
| | WDR | WOOD DECK W/ROOF | 1 | 35 | 1931 | 128.0 |
| | DTG | Detached Garage | 1 | 35 | 1931 | 216.0 |
Sketch
Property Image
Land
| 1 | RES 1 | Converted: Residential | 0.1481 | 6450.00 | 0.00 | 0.00 | 1.00 | $58,050 | $0 |
Roll Value History
| 2026 | N/A | N/A | N/A | N/A | N/A |
| 2025 | $253,440 | $63,860 | $0 | $317,300 | $317,300 |
| 2024 | $247,150 | $58,050 | $0 | $305,200 | $305,200 |
| 2023 | $247,150 | $58,050 | $0 | $305,200 | $305,200 |
| 2022 | $224,680 | $47,890 | $0 | $272,570 | $272,570 |
| 2021 | $195,370 | $47,890 | $0 | $243,260 | $243,260 |
| 2020 | $177,610 | $47,890 | $0 | $225,500 | $225,500 |
| 2019 | $177,610 | $47,890 | $0 | $225,500 | $225,500 |
| 2018 | $168,700 | $38,700 | $0 | $207,400 | $207,400 |
| 2017 | $160,670 | $38,700 | $0 | $199,370 | $199,370 |
| 2016 | $102,100 | $38,700 | $0 | $140,800 | $140,800 |
| 2015 | $102,100 | $38,700 | $0 | $140,800 | $140,800 |
| 2014 | $102,100 | $38,700 | $0 | $140,800 | $140,800 |
| 2013 | $102,100 | $38,700 | $0 | $140,800 | $140,800 |
| 2012 | $96,900 | $38,700 | $0 | $0 | $0 |
| 2011 | $96,900 | $38,700 | $0 | $0 | $0 |
| 2010 | $90,400 | $38,700 | $0 | $0 | $0 |
| 2009 | $104,700 | $38,700 | $0 | $0 | $0 |
| 2008 | $104,700 | $38,700 | $0 | $0 | $0 |
| 2007 | $64,200 | $12,900 | $0 | $0 | $0 |
Deed and Sales History
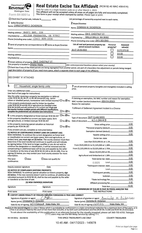
| 1 | 04/17/2023 | QCD | QUIT CLAIM DEED | DICKERSON CHRISTOPHER D & DOMINIKA M | DICKERSON DOMINIKA M | | | $0.00 | 145678 | 2023-02013 |
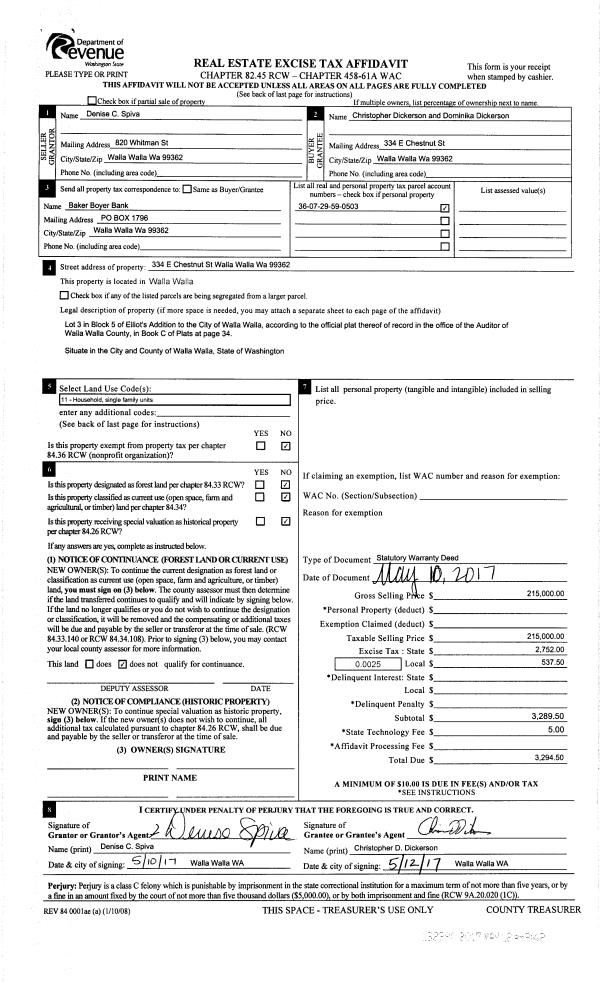
| 2 | 05/12/2017 | SWD | STATUTORY WARRANTY DEED | SHIVELL DENISE C | DICKERSON CHRISTOPHER D & DOMINIKA M | | | $215,000.00 | 132380 | 2017-03596 |
| 3 | 03/19/2010 | WARRANTY D | WARRANTY DEED | BIDDISCOMBE, JEFFREY R | SHIVELL, DENISE C | | | | 109788 | 2010-02321 |
| 4 | 03/06/2006 | WARRANTY D | WARRANTY DEED | BIDDISCOMBE, JEFF | SHIVELL, DENISE C | | | $144,000.00 | 109788 | 2006-02527 |
| 5 | 09/15/2005 | WARRANTY D | WARRANTY DEED | BLAKELY, HELEN E | BIDDISCOMBE, JEFF | | | $136,000.00 | 108487 | 2005-11442 |
| 6 | 02/24/1997 | WARRANTY D | WARRANTY DEED | | | | | $66,000.00 | 87692 | 2499-701575 |
Payout Agreement
| No payout information available.. |