| 1 | 07/30/2020 | SWD | STATUTORY WARRANTY DEED | DANIELSON LUKE A & ERIN E | HOLLENBECK MADISON C | | | $270,000.00 | 139600 | 2020-07366 |
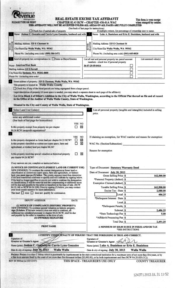
| 2 | 07/31/2013 | WARRANTY D | WARRANTY DEED | GONZALES, JOSHUA & CARRIE | DANIELSON, LUKE A & ERIN E | | | $162,500.00 | 124371 | 2013-07751 |
| 3 | 05/18/2009 | QCD | QUIT CLAIM DEED | DALY, ALBERT & DEBORAH | GONZALES, JOSHUA & CARRIE | | | | 116750 | 2009-04917 |
| 4 | 07/28/2005 | WARRANTY D | WARRANTY DEED | CONNERLY, JOHN M & MARCEE J | GONZALES, JOSHUA & CARRIE | | | $129,000.00 | 108071 | 2005-09255 |
| 5 | 06/06/2002 | WARRANTY D | WARRANTY DEED | | | | | $87,900.00 | 99666 | 2002-0006602 |