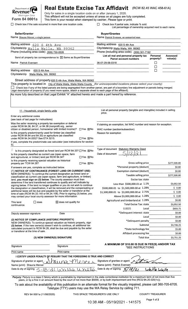
Property
Account |
| Property ID: | 10571 | Abbreviated Legal Description: | CHASE TAX 3 LOT 12 BLK 3 |
| Parcel Number: | 360729580318 | Agent Code: | |
| Type: | Real | | |
| Tax Area: | 1 - OL-140-F | Land Use Code | 11 |
| Open Space: | N | DFL | N |
| Historic Property: | N | Remodel Property: | N |
| Multi-Family Redevelopment: | N | | |
| Township: | 7 | Section: | 29 |
| Range: | 36 |
Location |
| Address: | 620 S 4TH AVE WA 99362 | Mapsco: | |
| Neighborhood: | Fair Res | Map ID: | |
| Neighborhood CD: | 612011 |
Owner |
| Name: | EVENSEN PATRICK | Owner ID: | 69420 |
| Mailing Address: | 620 S 4TH AVE WALLA WALLA, WA 99362 | % Ownership: | 100.0000000000% |
| | | Exemptions: | |
Taxes and Assessment Details
Property Tax Information as of
02/21/2026
Click on "Statement Details" to expand or collapse a tax statement.
* Please enter a valid date ** Please enter a valid date *
Statement Details |
| | TOTAL: | $0.00 | $0.00 | $0.00 | $0.00 | $0.00 | $0.00 |
|
| | $0.00 | $0.00 | $0.00 | $0.00 | $0.00 | $0.00 |
Values
| (+) Improvement Homesite Value: | + | $235,740 | |
| (+) Improvement Non-Homesite Value: | + | $0 | |
| (+) Land Homesite Value: | + | $42,080 | |
| (+) Land Non-Homesite Value: | + | $0 | |
| (+) Curr Use (HS): | + | $0 | $0 |
| (+) Curr Use (NHS): | + | $0 | $0 |
| | | -------------------------- | |
| (=) Market Value: | = | $277,820 | |
| (–) Productivity Loss: | – | $0 | |
| | | -------------------------- | |
| (=) Subtotal: | = | $277,820 | |
| (+) Senior Appraised Value: | + | $0 | |
| (+) Non-Senior Appraised Value: | + | $277,820 | |
| | | -------------------------- | |
| (=) Total Appraised Value: | = | $277,820 | |
| (–) Senior Exemption Loss: | – | $0 | |
| (–) Exemption Loss: | – | $0 | |
| | | -------------------------- | |
| (=) Taxable Value: | = | $277,820 | |
Taxing Jurisdiction
| Owner: | EVENSEN PATRICK | | |
| % Ownership: | 100.0000000000% | | |
| Total Value: | $277,820 | | |
| Tax Area: | 1 - OL-140-F |
| CERFD | CURRENT EXPENSE REFUND 010 | 0.0000000000 | $277,820 | $277,820 | $0.00 | | |
| CURREXP | CURRENT EXPENSE 010 | 1.0175366760 | $277,820 | $277,820 | $282.69 | | |
| HUMNSERV | HUMAN SERVICES 119 | 0.0250000000 | $277,820 | $277,820 | $6.95 | | |
| SLDREL | SOLDIERS RELIEF 121 | 0.0155990005 | $277,820 | $277,820 | $4.33 | | |
| EMERGSER | EMS 147 | 0.3792580840 | $277,820 | $277,820 | $105.37 | | |
| EMSRFD | EMS REFUND 147 | 0.0000000000 | $277,820 | $277,820 | $0.00 | | |
| PORTRFD | PORT REFUND 640 | 0.0000000000 | $277,820 | $277,820 | $0.00 | | |
| PORTWWGEN | PORT OF WW 640 | 0.2460186015 | $277,820 | $277,820 | $68.35 | | |
| SD140BOND | SD #140 BOND 764 | 0.8342371393 | $277,820 | $277,820 | $231.77 | | |
| SD140GEN | SD #140 GENERAL 760 | 2.0646500647 | $277,820 | $277,820 | $573.60 | | |
| ST2 | STATE SCHOOL PART 2 600 | 0.8131451643 | $277,820 | $277,820 | $225.91 | | |
| STATESCHL | STATE SCHOOL 600 | 1.5158548041 | $277,820 | $277,820 | $421.13 | | |
| STREFUND | STATE REFUND LEVY 603 | 0.0000000000 | $277,820 | $277,820 | $0.00 | | |
| CWWBOND | C OF WW BOND 643 | 0.2760494372 | $277,820 | $277,820 | $76.69 | | |
| CWWGEN | CITY OF WW 631 | 1.6100204973 | $277,820 | $277,820 | $447.30 | | |
| CWWRFD | CITY OF WALLA WALLA REFUND 631 | 0.0000000000 | $277,820 | $277,820 | $0.00 | | |
| | Total Tax Rate: | 8.7973694689 | | | | | |
| | | | | Taxes w/Current Exemptions: | $2,444.09 | | |
| | | | | Taxes w/o Exemptions: | $2,444.09 | | |
Improvement / Building
| Improvement #1: | RESIDENTIAL | State Code: | 11 | 1023.0 sqft | Value: | $235,740 |
| Exterior Wall: | METAL/STEEL | Heating/Cooling: | WARM & COOLED AIR | | Number of Bathrooms: | 1 | Number of Bedrooms: | 3 | | Plumbing: | 7 | Roof Covering: | COMP SHINGLE |
|
| | Type | Description | Class CD | Sub Class CD | Year Built | Area |
| | MA | Main Area | 1 | 25 | 1942 | 1023.0 |
| | SI1 | SITE IMPROVEMENT | 1 | 25 | 1942 | 1.0 |
| | BASE | BASEMENT | 1 | 25 | 1942 | 500.0 |
| | DTG | Detached Garage | 1 | 25 | 1942 | 280.0 |
| | CPC | COVERED CARPORT/PATIO | 1 | 25 | 1942 | 432.0 |
| | CPC | COVERED CARPORT/PATIO | 1 | 25 | 1942 | 200.0 |
| | PRC | PORCH W STEPS, ROOF,CEILED | 1 | 25 | 1942 | 24.0 |
Sketch
Property Image
Land
| 1 | RES 1 | Converted: Residential | 0.1208 | 5260.00 | 0.00 | 0.00 | 1.00 | $42,080 | $0 |
Roll Value History
| 2026 | N/A | N/A | N/A | N/A | N/A |
| 2025 | $223,620 | $52,600 | $0 | $276,220 | $276,220 |
| 2024 | $235,740 | $42,080 | $0 | $277,820 | $277,820 |
| 2023 | $235,740 | $42,080 | $0 | $277,820 | $277,820 |
| 2022 | $235,740 | $32,880 | $0 | $268,620 | $268,620 |
| 2021 | $168,380 | $32,880 | $0 | $201,260 | $201,260 |
| 2020 | $140,320 | $32,880 | $0 | $173,200 | $69,280 |
| 2019 | $140,320 | $32,880 | $0 | $173,200 | $69,280 |
| 2018 | $131,180 | $31,600 | $0 | $162,780 | $162,780 |
| 2017 | $131,180 | $31,600 | $0 | $162,780 | $162,780 |
| 2016 | $119,250 | $31,600 | $0 | $150,850 | $150,850 |
| 2015 | $119,250 | $31,600 | $0 | $150,850 | $150,850 |
| 2014 | $95,400 | $31,600 | $0 | $127,000 | $127,000 |
| 2013 | $95,400 | $31,600 | $0 | $127,000 | $127,000 |
| 2012 | $94,200 | $31,600 | $0 | $0 | $0 |
| 2011 | $94,200 | $31,600 | $0 | $0 | $0 |
| 2010 | $94,200 | $31,600 | $0 | $0 | $0 |
| 2009 | $108,200 | $31,600 | $0 | $0 | $0 |
| 2008 | $108,200 | $31,600 | $0 | $0 | $0 |
| 2007 | $73,700 | $10,500 | $0 | $0 | $0 |
Deed and Sales History
| 1 | 05/19/2021 | SWD | STATUTORY WARRANTY DEED | MERCER SHAUNA | EVENSEN PATRICK | | | $277,500.00 | 141575 | 2021-06045 |
| 2 | 05/12/2015 | SWD | STATUTORY WARRANTY DEED | PEREZ SYLVIA | MERCER SHAUNA | | | $156,000.00 | 127950 | 2015-03997 |
| 3 | 09/19/2007 | QCD | QUIT CLAIM DEED | SHERMAN, ROY | PEREZ, SYLVIA | | | | 113743 | 2007-11027 |
| 4 | 09/18/2007 | WARRANTY D | WARRANTY DEED | MACIAS, FRANCISCO | SHERMAN, ROY | | | $152,500.00 | 113736 | 2007-10983 |
| 5 | 07/10/2002 | WARRANTY D | WARRANTY DEED | | | | | $85,500.00 | 99726 | 2002-0007804 |
Payout Agreement
| No payout information available.. |