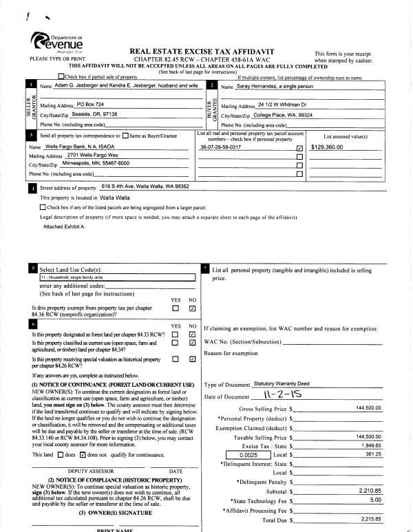
Property
Account |
| Property ID: | 10570 | Abbreviated Legal Description: | CHASE TAX 2 LOT 12 BLK 3 |
| Parcel Number: | 360729580317 | Agent Code: | |
| Type: | Real | | |
| Tax Area: | 1 - OL-140-F | Land Use Code | 11 |
| Open Space: | N | DFL | N |
| Historic Property: | N | Remodel Property: | N |
| Multi-Family Redevelopment: | N | | |
| Township: | 7 | Section: | 29 |
| Range: | 36 |
Location |
| Address: | 616 S 4TH AVE WA 99362 | Mapsco: | |
| Neighborhood: | Fair Res | Map ID: | |
| Neighborhood CD: | 612011 |
Owner |
| Name: | HERNANDEZ SARAY | Owner ID: | 57714 |
| Mailing Address: | 616 S 4TH AVE WALLA WALLA, WA 99362 | % Ownership: | 100.0000000000% |
| | | Exemptions: | |
Taxes and Assessment Details
Property Tax Information as of
02/21/2026
Click on "Statement Details" to expand or collapse a tax statement.
* Please enter a valid date ** Please enter a valid date *
Statement Details |
| | TOTAL: | $0.00 | $0.00 | $0.00 | $0.00 | $0.00 | $0.00 |
|
| | $0.00 | $0.00 | $0.00 | $0.00 | $0.00 | $0.00 |
Values
| (+) Improvement Homesite Value: | + | $0 | |
| (+) Improvement Non-Homesite Value: | + | $229,180 | |
| (+) Land Homesite Value: | + | $0 | |
| (+) Land Non-Homesite Value: | + | $42,080 | |
| (+) Curr Use (HS): | + | $0 | $0 |
| (+) Curr Use (NHS): | + | $0 | $0 |
| | | -------------------------- | |
| (=) Market Value: | = | $271,260 | |
| (–) Productivity Loss: | – | $0 | |
| | | -------------------------- | |
| (=) Subtotal: | = | $271,260 | |
| (+) Senior Appraised Value: | + | $0 | |
| (+) Non-Senior Appraised Value: | + | $271,260 | |
| | | -------------------------- | |
| (=) Total Appraised Value: | = | $271,260 | |
| (–) Senior Exemption Loss: | – | $0 | |
| (–) Exemption Loss: | – | $0 | |
| | | -------------------------- | |
| (=) Taxable Value: | = | $271,260 | |
Taxing Jurisdiction
| Owner: | HERNANDEZ SARAY | | |
| % Ownership: | 100.0000000000% | | |
| Total Value: | $271,260 | | |
| Tax Area: | 1 - OL-140-F |
| CERFD | CURRENT EXPENSE REFUND 010 | 0.0000000000 | $271,260 | $271,260 | $0.00 | | |
| CURREXP | CURRENT EXPENSE 010 | 1.0175366760 | $271,260 | $271,260 | $276.02 | | |
| HUMNSERV | HUMAN SERVICES 119 | 0.0250000000 | $271,260 | $271,260 | $6.78 | | |
| SLDREL | SOLDIERS RELIEF 121 | 0.0155990005 | $271,260 | $271,260 | $4.23 | | |
| EMERGSER | EMS 147 | 0.3792580840 | $271,260 | $271,260 | $102.88 | | |
| EMSRFD | EMS REFUND 147 | 0.0000000000 | $271,260 | $271,260 | $0.00 | | |
| PORTRFD | PORT REFUND 640 | 0.0000000000 | $271,260 | $271,260 | $0.00 | | |
| PORTWWGEN | PORT OF WW 640 | 0.2460186015 | $271,260 | $271,260 | $66.74 | | |
| SD140BOND | SD #140 BOND 764 | 0.8342371393 | $271,260 | $271,260 | $226.30 | | |
| SD140GEN | SD #140 GENERAL 760 | 2.0646500647 | $271,260 | $271,260 | $560.06 | | |
| ST2 | STATE SCHOOL PART 2 600 | 0.8131451643 | $271,260 | $271,260 | $220.57 | | |
| STATESCHL | STATE SCHOOL 600 | 1.5158548041 | $271,260 | $271,260 | $411.19 | | |
| STREFUND | STATE REFUND LEVY 603 | 0.0000000000 | $271,260 | $271,260 | $0.00 | | |
| CWWBOND | C OF WW BOND 643 | 0.2760494372 | $271,260 | $271,260 | $74.88 | | |
| CWWGEN | CITY OF WW 631 | 1.6100204973 | $271,260 | $271,260 | $436.73 | | |
| CWWRFD | CITY OF WALLA WALLA REFUND 631 | 0.0000000000 | $271,260 | $271,260 | $0.00 | | |
| | Total Tax Rate: | 8.7973694689 | | | | | |
| | | | | Taxes w/Current Exemptions: | $2,386.38 | | |
| | | | | Taxes w/o Exemptions: | $2,386.38 | | |
Improvement / Building
| Improvement #1: | RESIDENTIAL | State Code: | 11 | 1023.0 sqft | Value: | $229,180 |
| Exterior Wall: | METAL/STEEL | Heating/Cooling: | WARM & COOLED AIR | | Number of Bathrooms: | 1 | Number of Bedrooms: | 2 | | Plumbing: | 7 | Roof Covering: | COMP SHINGLE |
|
| | Type | Description | Class CD | Sub Class CD | Year Built | Area |
| | MA | Main Area | 1 | 25 | 1935 | 1023.0 |
| | SI1 | SITE IMPROVEMENT | 1 | 25 | 1935 | 1.0 |
| | BASE | BASEMENT | 1 | 25 | 1935 | 500.0 |
| | DTG | Detached Garage | 1 | 25 | 1935 | 280.0 |
| | S1F | Single One Story Fireplace | 1 | 25 | 1935 | 1.0 |
| | CPCS | CARPORT/SHED OR FLAT ROOF | 1 | 25 | 1935 | 176.0 |
Sketch
Property Image
Land
| 1 | RES 1 | Converted: Residential | 0.1208 | 5260.00 | 0.00 | 0.00 | 1.00 | $42,080 | $0 |
Roll Value History
| 2026 | N/A | N/A | N/A | N/A | N/A |
| 2025 | $223,140 | $52,600 | $0 | $275,740 | $275,740 |
| 2024 | $229,180 | $42,080 | $0 | $271,260 | $271,260 |
| 2023 | $229,180 | $42,080 | $0 | $271,260 | $271,260 |
| 2022 | $218,270 | $32,880 | $0 | $251,150 | $251,150 |
| 2021 | $155,900 | $32,880 | $0 | $188,780 | $188,780 |
| 2020 | $129,920 | $32,880 | $0 | $162,800 | $162,800 |
| 2019 | $129,920 | $32,880 | $0 | $162,800 | $162,800 |
| 2018 | $107,530 | $31,600 | $0 | $139,130 | $139,130 |
| 2017 | $107,530 | $31,600 | $0 | $139,130 | $139,130 |
| 2016 | $97,760 | $31,600 | $0 | $129,360 | $129,360 |
| 2015 | $97,760 | $31,600 | $0 | $129,360 | $129,360 |
| 2014 | $93,100 | $31,600 | $0 | $124,700 | $124,700 |
| 2013 | $93,100 | $31,600 | $0 | $124,700 | $124,700 |
| 2012 | $93,100 | $31,600 | $0 | $0 | $0 |
| 2011 | $93,100 | $31,600 | $0 | $0 | $0 |
| 2010 | $93,100 | $31,600 | $0 | $0 | $0 |
| 2009 | $107,000 | $31,600 | $0 | $0 | $0 |
| 2008 | $107,000 | $31,600 | $0 | $0 | $0 |
| 2007 | $71,700 | $10,500 | $0 | $0 | $0 |
Deed and Sales History
| 1 | 11/04/2015 | SWD | STATUTORY WARRANTY DEED | JESBERGER ADAM G | HERNANDEZ SARAY | | | $144,500.00 | 129129 | 2015-09608 |
| 2 | 03/12/2004 | WARRANTY D | WARRANTY DEED | HARDING, GENEVA | JESBERGER, ADAM G | | | $89,000.00 | 104255 | 2004-02637 |
| 3 | 11/01/1963 | WARRANTY D | WARRANTY DEED | | | | | $11,350.00 | 0 | 3080-452930 |
Payout Agreement
| No payout information available.. |