Property
Account |
| Property ID: | 10549 | Abbreviated Legal Description: | CHASE TAX 1 LOT 3 BLK 1 |
| Parcel Number: | 360729580115 | Agent Code: | |
| Type: | Real | | |
| Tax Area: | 1 - OL-140-F | Land Use Code | 11 |
| Open Space: | N | DFL | N |
| Historic Property: | N | Remodel Property: | N |
| Multi-Family Redevelopment: | N | | |
| Township: | 7 | Section: | 29 |
| Range: | 36 |
Location |
| Address: | 260 W CHESTNUT ST WA 99362 | Mapsco: | |
| Neighborhood: | Fair Inferior Res | Map ID: | |
| Neighborhood CD: | 512111 |
Owner |
| Name: | MENDOZA JESSICA & ULICES RAUL MENDOZA ORTIZ | Owner ID: | 73236 |
| Mailing Address: | 260 W CHESTNUT ST WALLA WALLA, WA 99362 | % Ownership: | 100.0000000000% |
| | | Exemptions: | |
Taxes and Assessment Details
Values
| (+) Improvement Homesite Value: | + | $0 | |
| (+) Improvement Non-Homesite Value: | + | $190,550 | |
| (+) Land Homesite Value: | + | $0 | |
| (+) Land Non-Homesite Value: | + | $26,250 | |
| (+) Curr Use (HS): | + | $0 | $0 |
| (+) Curr Use (NHS): | + | $0 | $0 |
| | | -------------------------- | |
| (=) Market Value: | = | $216,800 | |
| (–) Productivity Loss: | – | $0 | |
| | | -------------------------- | |
| (=) Subtotal: | = | $216,800 | |
| (+) Senior Appraised Value: | + | $0 | |
| (+) Non-Senior Appraised Value: | + | $216,800 | |
| | | -------------------------- | |
| (=) Total Appraised Value: | = | $216,800 | |
| (–) Senior Exemption Loss: | – | $0 | |
| (–) Exemption Loss: | – | $0 | |
| | | -------------------------- | |
| (=) Taxable Value: | = | $216,800 | |
Taxing Jurisdiction
| Owner: | MENDOZA JESSICA & ULICES RAUL MENDOZA ORTIZ | | |
| % Ownership: | 100.0000000000% | | |
| Total Value: | $216,800 | | |
| Tax Area: | 1 - OL-140-F |
| CERFD | CURRENT EXPENSE REFUND 010 | 0.0000000000 | $216,800 | $216,800 | $0.00 | | |
| CURREXP | CURRENT EXPENSE 010 | 1.0175366760 | $216,800 | $216,800 | $220.60 | | |
| HUMNSERV | HUMAN SERVICES 119 | 0.0250000000 | $216,800 | $216,800 | $5.42 | | |
| SLDREL | SOLDIERS RELIEF 121 | 0.0155990005 | $216,800 | $216,800 | $3.38 | | |
| EMERGSER | EMS 147 | 0.3792580840 | $216,800 | $216,800 | $82.22 | | |
| EMSRFD | EMS REFUND 147 | 0.0000000000 | $216,800 | $216,800 | $0.00 | | |
| PORTRFD | PORT REFUND 640 | 0.0000000000 | $216,800 | $216,800 | $0.00 | | |
| PORTWWGEN | PORT OF WW 640 | 0.2460186015 | $216,800 | $216,800 | $53.34 | | |
| SD140BOND | SD #140 BOND 764 | 0.8342371393 | $216,800 | $216,800 | $180.86 | | |
| SD140GEN | SD #140 GENERAL 760 | 2.0646500647 | $216,800 | $216,800 | $447.62 | | |
| ST2 | STATE SCHOOL PART 2 600 | 0.8131451643 | $216,800 | $216,800 | $176.29 | | |
| STATESCHL | STATE SCHOOL 600 | 1.5158548041 | $216,800 | $216,800 | $328.64 | | |
| STREFUND | STATE REFUND LEVY 603 | 0.0000000000 | $216,800 | $216,800 | $0.00 | | |
| CWWBOND | C OF WW BOND 643 | 0.2760494372 | $216,800 | $216,800 | $59.85 | | |
| CWWGEN | CITY OF WW 631 | 1.6100204973 | $216,800 | $216,800 | $349.05 | | |
| CWWRFD | CITY OF WALLA WALLA REFUND 631 | 0.0000000000 | $216,800 | $216,800 | $0.00 | | |
| | Total Tax Rate: | 8.7973694689 | | | | | |
| | | | | Taxes w/Current Exemptions: | $1,907.27 | | |
| | | | | Taxes w/o Exemptions: | $1,907.27 | | |
Improvement / Building
| Improvement #1: | RESIDENTIAL | State Code: | 11 | 1561.0 sqft | Value: | $190,550 |
| Exterior Wall: | SIDING | Heating/Cooling: | FORCED AIR | | Number of Bathrooms: | 1 | Number of Bedrooms: | 4 | | Plumbing: | 6 | Roof Covering: | COMP SHINGLE |
|
| | Type | Description | Class CD | Sub Class CD | Year Built | Area |
| | MA | Main Area | 4 | 30 | 1903 | 1561.0 |
| | UPFL | Upper Floor (included in main area) | 4 | 30 | 1903 | 520.0 |
| | SI1 | SITE IMPROVEMENT | 4 | 30 | 1903 | 1.0 |
| | BASE | BASEMENT | 4 | 30 | 1903 | 288.0 |
| | S1F | Single One Story Fireplace | 4 | 30 | 1903 | 1.0 |
| | RPS | PORCH W/STEPS,ROOF | 4 | 30 | 1903 | 45.0 |
| | UTST | Utility Storage Shed | 4 | 30 | 1903 | 216.0 |
Sketch
Property Image
Land
| 1 | RES 1 | Converted: Residential | 0.1148 | 5000.00 | 0.00 | 0.00 | 1.00 | $26,250 | $0 |
Roll Value History
| 2026 | N/A | N/A | N/A | N/A | N/A |
| 2025 | $193,380 | $45,000 | $0 | $238,380 | $238,380 |
| 2024 | $175,800 | $45,000 | $0 | $220,800 | $220,800 |
| 2023 | $190,550 | $26,250 | $0 | $216,800 | $216,800 |
| 2022 | $146,580 | $26,250 | $0 | $172,830 | $172,830 |
| 2021 | $104,700 | $26,250 | $0 | $130,950 | $130,950 |
| 2020 | $87,250 | $26,250 | $0 | $113,500 | $113,500 |
| 2019 | $87,250 | $26,250 | $0 | $113,500 | $113,500 |
| 2018 | $87,250 | $26,250 | $0 | $113,500 | $113,500 |
| 2017 | $81,400 | $30,000 | $0 | $111,400 | $111,400 |
| 2016 | $81,400 | $30,000 | $0 | $111,400 | $111,400 |
| 2015 | $81,400 | $30,000 | $0 | $111,400 | $111,400 |
| 2014 | $81,400 | $30,000 | $0 | $111,400 | $111,400 |
| 2013 | $81,400 | $30,000 | $0 | $111,400 | $111,400 |
| 2012 | $81,400 | $30,000 | $0 | $0 | $0 |
| 2011 | $81,400 | $30,000 | $0 | $0 | $0 |
| 2010 | $81,400 | $30,000 | $0 | $0 | $0 |
| 2009 | $101,000 | $30,000 | $0 | $0 | $0 |
| 2008 | $101,000 | $30,000 | $0 | $0 | $0 |
| 2007 | $66,100 | $10,000 | $0 | $0 | $0 |
Deed and Sales History
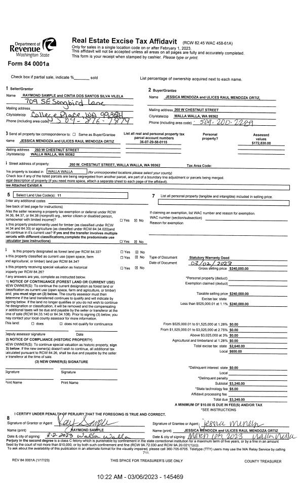
| 1 | 03/06/2023 | SWD | STATUTORY WARRANTY DEED | SAMPLE RAYMOND | MENDOZA JESSICA & ULICES RAUL MENDOZA ORTIZ | | | $240,000.00 | 145469 | 2023-01127 |
| 2 | 02/02/2021 | BARGAIN & | BARGAIN & SALE DEED | FEDERAL NATIONAL MORTGAGE ASSOC | SAMPLE RAYMOND | | | $0.00 | 140868 | 2021-01381 |
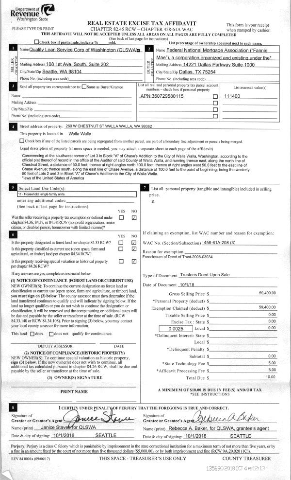
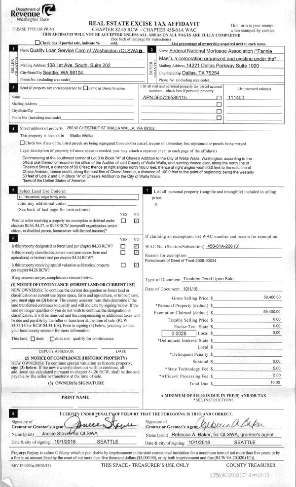
| 3 | 10/04/2018 | TRUSTEES D | TRUSTEE'S DEED | ELY JAMES L ESTATE OF | FEDERAL NATIONAL MORTGAGE ASSOC | | | $59,400.00 | 135690 | 2018-08262 |
| 4 | 02/06/1973 | WARRANTY D | WARRANTY DEED | | | | | $8,000.00 | 0 | 2052-7109 |
Payout Agreement
| No payout information available.. |