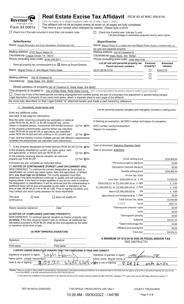
Property
Account |
| Property ID: | 10546 | Abbreviated Legal Description: | CHASE LESS ALLEY LOT 5 BLK 1 |
| Parcel Number: | 360729580105 | Agent Code: | |
| Type: | Real | | |
| Tax Area: | 1 - OL-140-F | Land Use Code | 11 |
| Open Space: | N | DFL | N |
| Historic Property: | N | Remodel Property: | N |
| Multi-Family Redevelopment: | N | | |
| Township: | 7 | Section: | 29 |
| Range: | 36 |
Location |
| Address: | 242 W CHESTNUT ST WA 99362 | Mapsco: | |
| Neighborhood: | Fair Inferior Res | Map ID: | |
| Neighborhood CD: | 512111 |
Owner |
| Name: | FLORES MIGUEL JR | Owner ID: | 72564 |
| Mailing Address: | MIGUEL FLORES AYALA 242 W CHESTNUST ST WALLA WALLA, WA 99362 | % Ownership: | 100.0000000000% |
| | | Exemptions: | |
Taxes and Assessment Details
Values
| (+) Improvement Homesite Value: | + | $0 | |
| (+) Improvement Non-Homesite Value: | + | $302,680 | |
| (+) Land Homesite Value: | + | $0 | |
| (+) Land Non-Homesite Value: | + | $36,750 | |
| (+) Curr Use (HS): | + | $0 | $0 |
| (+) Curr Use (NHS): | + | $0 | $0 |
| | | -------------------------- | |
| (=) Market Value: | = | $339,430 | |
| (–) Productivity Loss: | – | $0 | |
| | | -------------------------- | |
| (=) Subtotal: | = | $339,430 | |
| (+) Senior Appraised Value: | + | $0 | |
| (+) Non-Senior Appraised Value: | + | $339,430 | |
| | | -------------------------- | |
| (=) Total Appraised Value: | = | $339,430 | |
| (–) Senior Exemption Loss: | – | $0 | |
| (–) Exemption Loss: | – | $0 | |
| | | -------------------------- | |
| (=) Taxable Value: | = | $339,430 | |
Taxing Jurisdiction
| Owner: | FLORES MIGUEL JR | | |
| % Ownership: | 100.0000000000% | | |
| Total Value: | $339,430 | | |
| Tax Area: | 1 - OL-140-F |
| CERFD | CURRENT EXPENSE REFUND 010 | 0.0000000000 | $339,430 | $339,430 | $0.00 | | |
| CURREXP | CURRENT EXPENSE 010 | 1.0175366760 | $339,430 | $339,430 | $345.38 | | |
| HUMNSERV | HUMAN SERVICES 119 | 0.0250000000 | $339,430 | $339,430 | $8.49 | | |
| SLDREL | SOLDIERS RELIEF 121 | 0.0155990005 | $339,430 | $339,430 | $5.29 | | |
| EMERGSER | EMS 147 | 0.3792580840 | $339,430 | $339,430 | $128.73 | | |
| EMSRFD | EMS REFUND 147 | 0.0000000000 | $339,430 | $339,430 | $0.00 | | |
| PORTRFD | PORT REFUND 640 | 0.0000000000 | $339,430 | $339,430 | $0.00 | | |
| PORTWWGEN | PORT OF WW 640 | 0.2460186015 | $339,430 | $339,430 | $83.51 | | |
| SD140BOND | SD #140 BOND 764 | 0.8342371393 | $339,430 | $339,430 | $283.17 | | |
| SD140GEN | SD #140 GENERAL 760 | 2.0646500647 | $339,430 | $339,430 | $700.80 | | |
| ST2 | STATE SCHOOL PART 2 600 | 0.8131451643 | $339,430 | $339,430 | $276.01 | | |
| STATESCHL | STATE SCHOOL 600 | 1.5158548041 | $339,430 | $339,430 | $514.53 | | |
| STREFUND | STATE REFUND LEVY 603 | 0.0000000000 | $339,430 | $339,430 | $0.00 | | |
| CWWBOND | C OF WW BOND 643 | 0.2760494372 | $339,430 | $339,430 | $93.70 | | |
| CWWGEN | CITY OF WW 631 | 1.6100204973 | $339,430 | $339,430 | $546.49 | | |
| CWWRFD | CITY OF WALLA WALLA REFUND 631 | 0.0000000000 | $339,430 | $339,430 | $0.00 | | |
| | Total Tax Rate: | 8.7973694689 | | | | | |
| | | | | Taxes w/Current Exemptions: | $2,986.10 | | |
| | | | | Taxes w/o Exemptions: | $2,986.10 | | |
Improvement / Building
| Improvement #1: | RESIDENTIAL | State Code: | 11 | 1219.0 sqft | Value: | $302,680 |
| Exterior Wall: | VINYL | Heating/Cooling: | WARM & COOLED AIR | | Number of Bathrooms: | 2 | Number of Bedrooms: | 3 | | Plumbing: | 12 | Roof Covering: | COMP SHINGLE |
|
| | Type | Description | Class CD | Sub Class CD | Year Built | Area |
| | MA | Main Area | 1 | 30 | 1937 | 1219.0 |
| | SI1 | SITE IMPROVEMENT | 1 | 30 | 1937 | 1.0 |
| | BASE | BASEMENT | 1 | 30 | 1937 | 300.0 |
| | RPS | PORCH W/STEPS,ROOF | 1 | 30 | 1937 | 36.0 |
| | CPC | COVERED CARPORT/PATIO | 1 | 30 | 1937 | 384.0 |
| | DTG | Detached Garage | 1 | 30 | 1937 | 288.0 |
| | BRF | BASEMENT - REC FINISH | 1 | 30 | 1937 | 300.0 |
Sketch
Property Image
Land
| 1 | RES 1 | Converted: Residential | 0.1607 | 7000.00 | 0.00 | 0.00 | 1.00 | $36,750 | $0 |
Roll Value History
| 2026 | N/A | N/A | N/A | N/A | N/A |
| 2025 | $268,690 | $63,000 | $0 | $331,690 | $331,690 |
| 2024 | $268,690 | $63,000 | $0 | $331,690 | $331,690 |
| 2023 | $302,680 | $36,750 | $0 | $339,430 | $339,430 |
| 2022 | $275,160 | $36,750 | $0 | $311,910 | $311,910 |
| 2021 | $203,820 | $36,750 | $0 | $240,570 | $240,570 |
| 2020 | $163,060 | $36,750 | $0 | $199,810 | $199,810 |
| 2019 | $163,060 | $36,750 | $0 | $199,810 | $199,810 |
| 2018 | $116,470 | $36,750 | $0 | $153,220 | $153,220 |
| 2017 | $111,940 | $42,000 | $0 | $153,940 | $153,940 |
| 2016 | $106,610 | $42,000 | $0 | $148,610 | $148,610 |
| 2015 | $92,700 | $42,000 | $0 | $134,700 | $134,700 |
| 2014 | $92,700 | $42,000 | $0 | $134,700 | $134,700 |
| 2013 | $92,700 | $42,000 | $0 | $134,700 | $134,700 |
| 2012 | $92,700 | $42,000 | $0 | $0 | $0 |
| 2011 | $99,800 | $42,000 | $0 | $0 | $0 |
| 2010 | $76,200 | $42,000 | $0 | $0 | $0 |
| 2009 | $97,000 | $42,000 | $0 | $0 | $0 |
| 2008 | $97,000 | $42,000 | $0 | $0 | $0 |
| 2007 | $62,400 | $14,000 | $0 | $0 | $0 |
Deed and Sales History
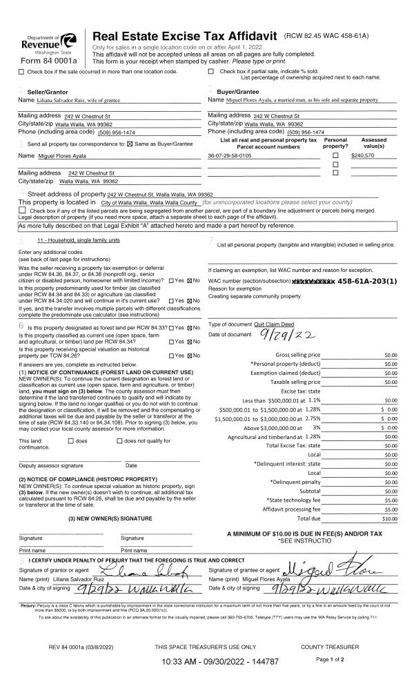
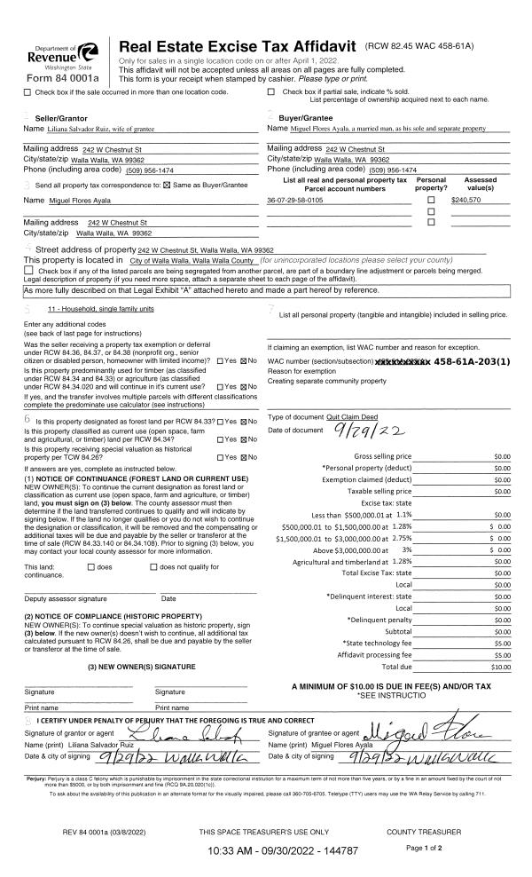
| 1 | 09/30/2022 | QCD | QUIT CLAIM DEED | FLORES AYALA MIGUEL | SALVADOR RUIZ LILIANA | | | | 144787 | 2022-08130 |
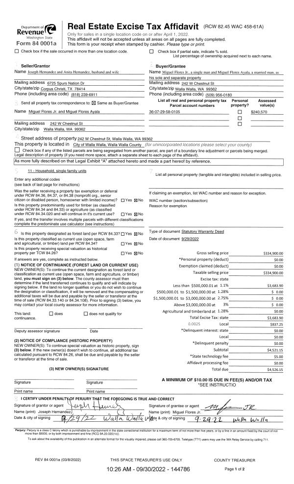
| 2 | 09/30/2022 | SWD | STATUTORY WARRANTY DEED | HERNANDEZ JOSEPH & ANITA | FLORES MIGUEL JR | | | $334,900.00 | 144786 | 2022-08129 |
| 3 | 10/19/2015 | SWD | STATUTORY WARRANTY DEED | ALBA FRANKIE RAYO | HERNANDEZ JOSEPH & ANITA | | | $153,000.00 | 129023 | 2015-09119 |
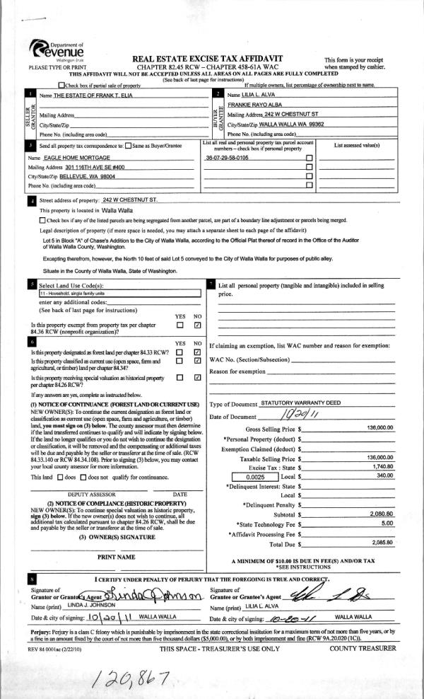
| 4 | 10/24/2011 | WARRANTY D | WARRANTY DEED | ELIA, FRANK T ESTATE OF | ALBA, FRANKIE RAYO | | | $136,000.00 | 120867 | 2011-08302 |
| 5 | 01/01/1961 | WARRANTY D | WARRANTY DEED | | | | | $0.00 | 0 | 3000-435093 |
Payout Agreement
| No payout information available.. |