Property
Account |
| Property ID: | 10543 | Abbreviated Legal Description: | CHASE LOT 1 BLK 1; LESS ALLEY |
| Parcel Number: | 360729580101 | Agent Code: | |
| Type: | Real | | |
| Tax Area: | 1 - OL-140-F | Land Use Code | 11 |
| Open Space: | N | DFL | N |
| Historic Property: | N | Remodel Property: | N |
| Multi-Family Redevelopment: | N | | |
| Township: | 7 | Section: | 29 |
| Range: | 36 |
Location |
| Address: | 439 CHASE AVE WA 99362 | Mapsco: | |
| Neighborhood: | Fair Inferior Res | Map ID: | |
| Neighborhood CD: | 512111 |
Owner |
| Name: | SOTELO VERONICA | Owner ID: | 74303 |
| Mailing Address: | 115 BUSH ST WALLA WALLA, WA 99362 | % Ownership: | 100.0000000000% |
| | | Exemptions: | |
Taxes and Assessment Details
Values
| (+) Improvement Homesite Value: | + | $0 | |
| (+) Improvement Non-Homesite Value: | + | $173,100 | |
| (+) Land Homesite Value: | + | $0 | |
| (+) Land Non-Homesite Value: | + | $31,500 | |
| (+) Curr Use (HS): | + | $0 | $0 |
| (+) Curr Use (NHS): | + | $0 | $0 |
| | | -------------------------- | |
| (=) Market Value: | = | $204,600 | |
| (–) Productivity Loss: | – | $0 | |
| | | -------------------------- | |
| (=) Subtotal: | = | $204,600 | |
| (+) Senior Appraised Value: | + | $0 | |
| (+) Non-Senior Appraised Value: | + | $204,600 | |
| | | -------------------------- | |
| (=) Total Appraised Value: | = | $204,600 | |
| (–) Senior Exemption Loss: | – | $0 | |
| (–) Exemption Loss: | – | $0 | |
| | | -------------------------- | |
| (=) Taxable Value: | = | $204,600 | |
Taxing Jurisdiction
| Owner: | SOTELO VERONICA | | |
| % Ownership: | 100.0000000000% | | |
| Total Value: | $204,600 | | |
| Tax Area: | 1 - OL-140-F |
| CERFD | CURRENT EXPENSE REFUND 010 | 0.0000000000 | $204,600 | $204,600 | $0.00 | | |
| CURREXP | CURRENT EXPENSE 010 | 1.0175366760 | $204,600 | $204,600 | $208.19 | | |
| HUMNSERV | HUMAN SERVICES 119 | 0.0250000000 | $204,600 | $204,600 | $5.12 | | |
| SLDREL | SOLDIERS RELIEF 121 | 0.0155990005 | $204,600 | $204,600 | $3.19 | | |
| EMERGSER | EMS 147 | 0.3792580840 | $204,600 | $204,600 | $77.60 | | |
| EMSRFD | EMS REFUND 147 | 0.0000000000 | $204,600 | $204,600 | $0.00 | | |
| PORTRFD | PORT REFUND 640 | 0.0000000000 | $204,600 | $204,600 | $0.00 | | |
| PORTWWGEN | PORT OF WW 640 | 0.2460186015 | $204,600 | $204,600 | $50.34 | | |
| SD140BOND | SD #140 BOND 764 | 0.8342371393 | $204,600 | $204,600 | $170.68 | | |
| SD140GEN | SD #140 GENERAL 760 | 2.0646500647 | $204,600 | $204,600 | $422.43 | | |
| ST2 | STATE SCHOOL PART 2 600 | 0.8131451643 | $204,600 | $204,600 | $166.37 | | |
| STATESCHL | STATE SCHOOL 600 | 1.5158548041 | $204,600 | $204,600 | $310.14 | | |
| STREFUND | STATE REFUND LEVY 603 | 0.0000000000 | $204,600 | $204,600 | $0.00 | | |
| CWWBOND | C OF WW BOND 643 | 0.2760494372 | $204,600 | $204,600 | $56.48 | | |
| CWWGEN | CITY OF WW 631 | 1.6100204973 | $204,600 | $204,600 | $329.41 | | |
| CWWRFD | CITY OF WALLA WALLA REFUND 631 | 0.0000000000 | $204,600 | $204,600 | $0.00 | | |
| | Total Tax Rate: | 8.7973694689 | | | | | |
| | | | | Taxes w/Current Exemptions: | $1,799.95 | | |
| | | | | Taxes w/o Exemptions: | $1,799.95 | | |
Improvement / Building
| Improvement #1: | RESIDENTIAL | State Code: | 11 | 927.0 sqft | Value: | $173,100 |
| Exterior Wall: | STUCCO | Heating/Cooling: | FLOOR FURNACE | | Number of Bathrooms: | 1 | Number of Bedrooms: | 2 | | Plumbing: | 6 | Roof Covering: | COMP SHINGLE |
|
| | Type | Description | Class CD | Sub Class CD | Year Built | Area |
| | MA | Main Area | 1 | 20 | 1895 | 927.0 |
| | SI1 | SITE IMPROVEMENT | 1 | 20 | 1895 | 1.0 |
| | RPO | OPEN PORCH W/ROOF | 1 | 20 | 1895 | 25.0 |
Sketch
Property Image
Land
| 1 | RES 1 | Converted: Residential | 0.1377 | 6000.00 | 0.00 | 0.00 | 1.00 | $31,500 | $0 |
Roll Value History
| 2026 | N/A | N/A | N/A | N/A | N/A |
| 2025 | $199,300 | $54,000 | $0 | $253,300 | $253,300 |
| 2024 | $199,300 | $54,000 | $0 | $253,300 | $253,300 |
| 2023 | $173,100 | $31,500 | $0 | $204,600 | $204,600 |
| 2022 | $133,160 | $31,500 | $0 | $164,660 | $164,660 |
| 2021 | $106,520 | $31,500 | $0 | $138,020 | $138,020 |
| 2020 | $71,020 | $31,500 | $0 | $102,520 | $102,520 |
| 2019 | $71,020 | $31,500 | $0 | $102,520 | $102,520 |
| 2018 | $64,560 | $31,500 | $0 | $96,060 | $96,060 |
| 2017 | $41,400 | $36,000 | $0 | $77,400 | $77,400 |
| 2016 | $41,400 | $36,000 | $0 | $77,400 | $77,400 |
| 2015 | $41,400 | $36,000 | $0 | $77,400 | $77,400 |
| 2014 | $41,400 | $36,000 | $0 | $77,400 | $77,400 |
| 2013 | $41,400 | $36,000 | $0 | $77,400 | $77,400 |
| 2012 | $41,400 | $36,000 | $0 | $0 | $0 |
| 2011 | $41,400 | $36,000 | $0 | $0 | $0 |
| 2010 | $41,400 | $36,000 | $0 | $0 | $0 |
| 2009 | $55,000 | $36,000 | $0 | $0 | $0 |
| 2008 | $55,000 | $36,000 | $0 | $0 | $0 |
| 2007 | $54,000 | $12,000 | $0 | $0 | $0 |
Deed and Sales History
| 1 | 02/18/2025 | SWD | STATUTORY WARRANTY DEED | SOTELO LISSET | SOTELO JOCELYN | | | $190,000.00 | 148936 | 2025-00828 |
| 2 | 08/29/2024 | QCD | QUIT CLAIM DEED | SOTELO VERONICA | SOTELO LISSET | | | | 148114 | 2024-04882 |
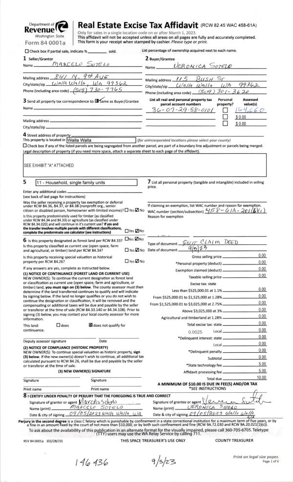
| 3 | 09/05/2023 | QCD | QUIT CLAIM DEED | SOTELO MARCELO | SOTELO VERONICA | | | | 146436 | 2023-05153 |
| 4 | 08/30/2023 | QCD | QUIT CLAIM DEED | SOTELO MARCELO & ERICKA G NAVARRO | SOTELO MARCELO | | | | 0 | 2023-05022 |
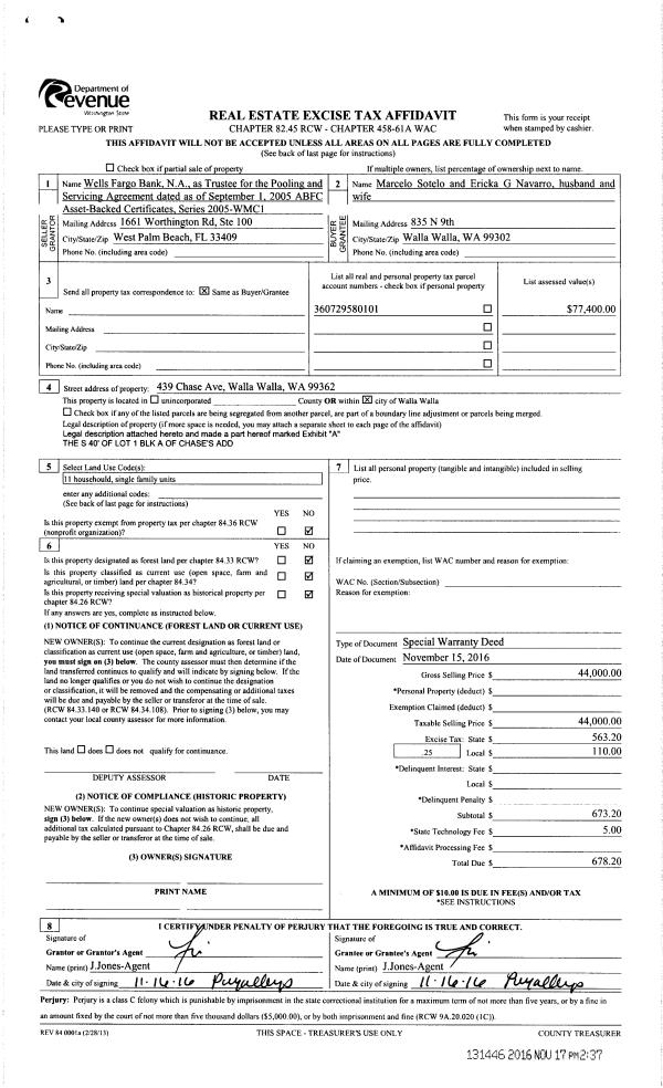
| 5 | 11/17/2016 | SWP | Special Warranty Deed | WELLS FARGO BANK NA | SOTELO MARCELO & ERICKA G NAVARRO | | | $44,000.00 | 131446 | 2016-09509 |
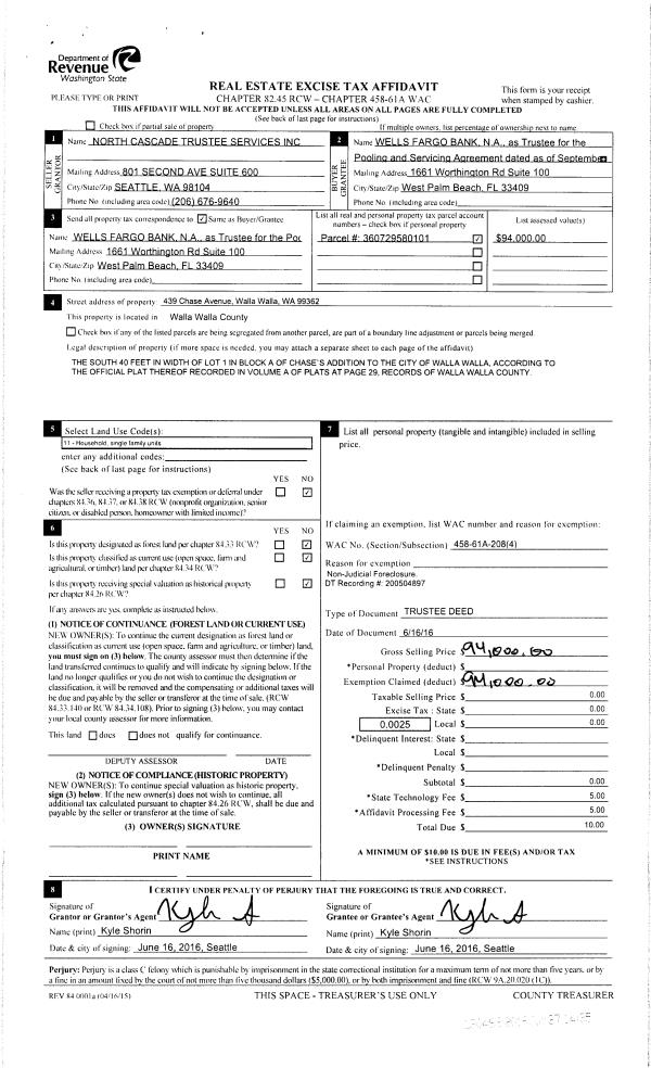
| 6 | 06/27/2016 | TRUSTEES D | TRUSTEE'S DEED | BECKTEL LYNDEN J | WELLS FARGO BANK NA | | | $94,000.00 | 130498 | 2016-04943 |
| 7 | 04/28/2005 | WARRANTY D | WARRANTY DEED | CROCKETT, CLARA M HENDRICKSON | BECKTEL, LYNDEN J | | | $91,000.00 | 107359 | 2005-04896 |
| 8 | 11/17/1978 | WARRANTY D | WARRANTY DEED | | | | | $21,500.00 | 0 | 9378-10081 |
Payout Agreement
| No payout information available.. |