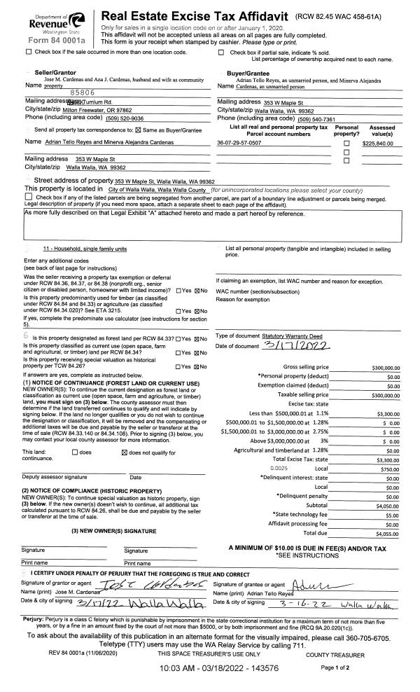
Property
Account |
| Property ID: | 10538 | Abbreviated Legal Description: | CHAPMAN & BOYER W 38' OF LOTS 1 & 2 BLK 5; LOT 7 & 8 BLK 5 |
| Parcel Number: | 360729570507 | Agent Code: | |
| Type: | Real | | |
| Tax Area: | 1 - OL-140-F | Land Use Code | 11 |
| Open Space: | N | DFL | N |
| Historic Property: | N | Remodel Property: | N |
| Multi-Family Redevelopment: | N | | |
| Township: | 7 | Section: | 29 |
| Range: | 36 |
Location |
| Address: | 353 W MAPLE ST WA 99362 | Mapsco: | |
| Neighborhood: | Fair Res | Map ID: | |
| Neighborhood CD: | 612011 |
Owner |
| Name: | REYES ADRIAN TELLO | Owner ID: | 71263 |
| Mailing Address: | MINERVA ALEJANDRA CARDENAS 353 W MAPLE ST WALLA WALLA, WA 99362 | % Ownership: | 100.0000000000% |
| | | Exemptions: | |
Taxes and Assessment Details
Values
| (+) Improvement Homesite Value: | + | $0 | |
| (+) Improvement Non-Homesite Value: | + | $240,860 | |
| (+) Land Homesite Value: | + | $0 | |
| (+) Land Non-Homesite Value: | + | $68,700 | |
| (+) Curr Use (HS): | + | $0 | $0 |
| (+) Curr Use (NHS): | + | $0 | $0 |
| | | -------------------------- | |
| (=) Market Value: | = | $309,560 | |
| (–) Productivity Loss: | – | $0 | |
| | | -------------------------- | |
| (=) Subtotal: | = | $309,560 | |
| (+) Senior Appraised Value: | + | $0 | |
| (+) Non-Senior Appraised Value: | + | $309,560 | |
| | | -------------------------- | |
| (=) Total Appraised Value: | = | $309,560 | |
| (–) Senior Exemption Loss: | – | $0 | |
| (–) Exemption Loss: | – | $0 | |
| | | -------------------------- | |
| (=) Taxable Value: | = | $309,560 | |
Taxing Jurisdiction
| Owner: | REYES ADRIAN TELLO | | |
| % Ownership: | 100.0000000000% | | |
| Total Value: | $309,560 | | |
| Tax Area: | 1 - OL-140-F |
| CERFD | CURRENT EXPENSE REFUND 010 | 0.0000000000 | $309,560 | $309,560 | $0.00 | | |
| CURREXP | CURRENT EXPENSE 010 | 1.0175366760 | $309,560 | $309,560 | $314.99 | | |
| HUMNSERV | HUMAN SERVICES 119 | 0.0250000000 | $309,560 | $309,560 | $7.74 | | |
| SLDREL | SOLDIERS RELIEF 121 | 0.0155990005 | $309,560 | $309,560 | $4.83 | | |
| EMERGSER | EMS 147 | 0.3792580840 | $309,560 | $309,560 | $117.40 | | |
| EMSRFD | EMS REFUND 147 | 0.0000000000 | $309,560 | $309,560 | $0.00 | | |
| PORTRFD | PORT REFUND 640 | 0.0000000000 | $309,560 | $309,560 | $0.00 | | |
| PORTWWGEN | PORT OF WW 640 | 0.2460186015 | $309,560 | $309,560 | $76.16 | | |
| SD140BOND | SD #140 BOND 764 | 0.8342371393 | $309,560 | $309,560 | $258.25 | | |
| SD140GEN | SD #140 GENERAL 760 | 2.0646500647 | $309,560 | $309,560 | $639.13 | | |
| ST2 | STATE SCHOOL PART 2 600 | 0.8131451643 | $309,560 | $309,560 | $251.72 | | |
| STATESCHL | STATE SCHOOL 600 | 1.5158548041 | $309,560 | $309,560 | $469.25 | | |
| STREFUND | STATE REFUND LEVY 603 | 0.0000000000 | $309,560 | $309,560 | $0.00 | | |
| CWWBOND | C OF WW BOND 643 | 0.2760494372 | $309,560 | $309,560 | $85.45 | | |
| CWWGEN | CITY OF WW 631 | 1.6100204973 | $309,560 | $309,560 | $498.40 | | |
| CWWRFD | CITY OF WALLA WALLA REFUND 631 | 0.0000000000 | $309,560 | $309,560 | $0.00 | | |
| | Total Tax Rate: | 8.7973694689 | | | | | |
| | | | | Taxes w/Current Exemptions: | $2,723.32 | | |
| | | | | Taxes w/o Exemptions: | $2,723.32 | | |
Improvement / Building
| Improvement #1: | RESIDENTIAL | State Code: | 11 | 1548.0 sqft | Value: | $240,860 |
| Exterior Wall: | HARDBOARD | Heating/Cooling: | WARM & COOLED AIR | | Number of Bathrooms: | 1 | Number of Bedrooms: | 3 | | Plumbing: | 7 | Roof Covering: | COMP SHINGLE |
|
| | Type | Description | Class CD | Sub Class CD | Year Built | Area |
| | MA | Main Area | 2 | 30 | 1885 | 1548.0 |
| | UPFL | Upper Floor (included in main area) | 2 | 30 | 1885 | 630.0 |
| | SI1 | SITE IMPROVEMENT | 2 | 30 | 1885 | 1.0 |
| | BASE | BASEMENT | 2 | 30 | 1885 | 630.0 |
| | DTG | Detached Garage | 2 | 30 | 1885 | 520.0 |
| | RPO | OPEN PORCH W/ROOF | 2 | 30 | 1885 | 50.0 |
| | CPC | COVERED CARPORT/PATIO | 2 | 30 | 2010 | 360.0 |
| | SWP | Solid Wall Porch | 2 | 25 | 1885 | 108.0 |
Sketch
Property Image
Land
| 1 | RES 1 | Converted: Residential | 0.2296 | 10000.00 | 0.00 | 0.00 | 1.00 | $68,700 | $0 |
Roll Value History
| 2026 | N/A | N/A | N/A | N/A | N/A |
| 2025 | $224,100 | $86,100 | $0 | $310,200 | $310,200 |
| 2024 | $264,940 | $68,700 | $0 | $333,640 | $333,640 |
| 2023 | $240,860 | $68,700 | $0 | $309,560 | $309,560 |
| 2022 | $240,860 | $53,800 | $0 | $294,660 | $294,660 |
| 2021 | $172,040 | $53,800 | $0 | $225,840 | $225,840 |
| 2020 | $156,400 | $53,800 | $0 | $210,200 | $210,200 |
| 2019 | $156,400 | $53,800 | $0 | $210,200 | $210,200 |
| 2018 | $128,350 | $47,100 | $0 | $175,450 | $175,450 |
| 2017 | $122,240 | $47,100 | $0 | $169,340 | $169,340 |
| 2016 | $111,130 | $47,100 | $0 | $158,230 | $158,230 |
| 2015 | $111,130 | $47,100 | $0 | $158,230 | $158,230 |
| 2014 | $88,900 | $47,100 | $0 | $136,000 | $136,000 |
| 2013 | $88,900 | $47,100 | $0 | $136,000 | $136,000 |
| 2012 | $88,900 | $47,100 | $0 | $0 | $0 |
| 2011 | $88,900 | $47,100 | $0 | $0 | $0 |
| 2010 | $81,000 | $47,100 | $0 | $0 | $0 |
| 2009 | $95,200 | $47,100 | $0 | $0 | $0 |
| 2008 | $95,200 | $47,100 | $0 | $0 | $0 |
| 2007 | $50,000 | $20,000 | $0 | $0 | $0 |
Deed and Sales History
| 1 | 03/18/2022 | SWD | STATUTORY WARRANTY DEED | CARDENAS JOSE M & ANA | REYES ADRIAN TELLO | | | $300,000.00 | 143576 | 2022-02282 |
| 2 | 02/13/2006 | WARRANTY D | WARRANTY DEED | WASHINGTON, LULA BELLE LIV TST | CARDENAS, JOSE M & ANA | | | $128,000.00 | 109655 | 2006-01701 |
| 3 | 04/03/1979 | WARRANTY D | WARRANTY DEED | | | | | $10,000.00 | 0 | 1017-903082 |
Payout Agreement
| No payout information available.. |