Property
Account |
| Property ID: | 10521 | Abbreviated Legal Description: | CHABOTS 2ND TAX 8 |
| Parcel Number: | 360729560025 | Agent Code: | |
| Type: | Real | | |
| Tax Area: | 1 - OL-140-F | Land Use Code | 12 |
| Open Space: | N | DFL | N |
| Historic Property: | N | Remodel Property: | N |
| Multi-Family Redevelopment: | N | | |
| Township: | 7 | Section: | 29 |
| Range: | 36 |
Location |
| Address: | 330 S 4TH AVE WA 99362 | Mapsco: | |
| Neighborhood: | Fair Inferior Res Aprt | Map ID: | |
| Neighborhood CD: | 512121 |
Owner |
| Name: | WILKINSON ESTATE LLC | Owner ID: | 67846 |
| Mailing Address: | 710 LYNCH LN YAKIMA, WA 98903 | % Ownership: | 100.0000000000% |
| | | Exemptions: | |
Taxes and Assessment Details
Property Tax Information as of
02/21/2026
Click on "Statement Details" to expand or collapse a tax statement.
* Please enter a valid date ** Please enter a valid date *
Statement Details |
| | TOTAL: | $0.00 | $0.00 | $0.00 | $0.00 | $0.00 | $0.00 |
|
| | $0.00 | $0.00 | $0.00 | $0.00 | $0.00 | $0.00 |
Values
| (+) Improvement Homesite Value: | + | $0 | |
| (+) Improvement Non-Homesite Value: | + | $261,000 | |
| (+) Land Homesite Value: | + | $0 | |
| (+) Land Non-Homesite Value: | + | $78,100 | |
| (+) Curr Use (HS): | + | $0 | $0 |
| (+) Curr Use (NHS): | + | $0 | $0 |
| | | -------------------------- | |
| (=) Market Value: | = | $339,100 | |
| (–) Productivity Loss: | – | $0 | |
| | | -------------------------- | |
| (=) Subtotal: | = | $339,100 | |
| (+) Senior Appraised Value: | + | $0 | |
| (+) Non-Senior Appraised Value: | + | $339,100 | |
| | | -------------------------- | |
| (=) Total Appraised Value: | = | $339,100 | |
| (–) Senior Exemption Loss: | – | $0 | |
| (–) Exemption Loss: | – | $0 | |
| | | -------------------------- | |
| (=) Taxable Value: | = | $339,100 | |
Taxing Jurisdiction
| Owner: | WILKINSON ESTATE LLC | | |
| % Ownership: | 100.0000000000% | | |
| Total Value: | $339,100 | | |
| Tax Area: | 1 - OL-140-F |
| CERFD | CURRENT EXPENSE REFUND 010 | 0.0000000000 | $339,100 | $339,100 | $0.00 | | |
| CURREXP | CURRENT EXPENSE 010 | 0.9851088983 | $339,100 | $339,100 | $334.05 | | |
| HUMNSERV | HUMAN SERVICES 119 | 0.0250000000 | $339,100 | $339,100 | $8.48 | | |
| SLDREL | SOLDIERS RELIEF 121 | 0.0155990000 | $339,100 | $339,100 | $5.29 | | |
| EMERGSER | EMS 147 | 0.3676811629 | $339,100 | $339,100 | $124.68 | | |
| EMSRFD | EMS REFUND 147 | 0.0000000000 | $339,100 | $339,100 | $0.00 | | |
| PORTRFD | PORT REFUND 640 | 0.0000000000 | $339,100 | $339,100 | $0.00 | | |
| PORTWWGEN | PORT OF WW 640 | 0.2344301070 | $339,100 | $339,100 | $79.50 | | |
| SD140BOND | SD #140 BOND 764 | 0.8032434458 | $339,100 | $339,100 | $272.38 | | |
| SD140CAP | SD #140 CAP 762 | 0.3840034221 | $339,100 | $339,100 | $130.22 | | |
| SD140GEN | SD #140 GENERAL 760 | 2.4999999996 | $339,100 | $339,100 | $847.75 | | |
| ST2 | STATE SCHOOL PART 2 600 | 0.8853714103 | $339,100 | $339,100 | $300.23 | | |
| STATESCHL | STATE SCHOOL 600 | 1.6424571473 | $339,100 | $339,100 | $556.96 | | |
| STREFUND | STATE REFUND LEVY 603 | 0.0000000000 | $339,100 | $339,100 | $0.00 | | |
| CWWBOND | C OF WW BOND 643 | 0.2642134255 | $339,100 | $339,100 | $89.59 | | |
| CWWGEN | CITY OF WW 631 | 1.6110494978 | $339,100 | $339,100 | $546.31 | | |
| CWWRFD | CITY OF WALLA WALLA REFUND 631 | 0.0000000000 | $339,100 | $339,100 | $0.00 | | |
| | Total Tax Rate: | 9.7181575166 | | | | | |
| | | | | Taxes w/Current Exemptions: | $3,295.44 | | |
| | | | | Taxes w/o Exemptions: | $3,295.44 | | |
Improvement / Building
| Improvement #1: | RESIDENTIAL | State Code: | 12 | 3019.0 sqft | Value: | $261,000 |
| Exterior Wall: | SIDING | Heating/Cooling: | BASEBOARD ELECTRIC | | Number of Bathrooms: | 6 | Number of Bedrooms: | 6 | | Plumbing: | 24 | Roof Covering: | COMP SHINGLE |
|
| | Type | Description | Class CD | Sub Class CD | Year Built | Area |
| | MA | Main Area | 2 | 35 | 1900 | 3019.0 |
| | UPFL | Upper Floor (included in main area) | 2 | 35 | 1900 | 993.0 |
| | SI1 | SITE IMPROVEMENT | 2 | 35 | 1900 | 2.0 |
| | SWP | Solid Wall Porch | 2 | 35 | 1900 | 21.0 |
| | SWP | Solid Wall Porch | 2 | 35 | 1900 | 24.0 |
| | RPO | OPEN PORCH W/ROOF | 2 | 35 | 1900 | 84.0 |
| | BLW | WOOD BALCONIES | 2 | 35 | 1900 | 84.0 |
Sketch
Property Image
Land
| 1 | RES 1 | Converted: Residential | 0.2898 | 12622.00 | 0.00 | 0.00 | 1.00 | $78,100 | $0 |
Roll Value History
| 2026 | N/A | N/A | N/A | N/A | N/A |
| 2025 | $261,000 | $78,100 | $0 | $339,100 | $339,100 |
| 2024 | $261,000 | $78,100 | $0 | $339,100 | $339,100 |
| 2023 | $272,050 | $53,140 | $0 | $325,190 | $325,190 |
| 2022 | $272,050 | $53,140 | $0 | $325,190 | $325,190 |
| 2021 | $170,030 | $53,140 | $0 | $223,170 | $223,170 |
| 2020 | $170,030 | $53,140 | $0 | $223,170 | $223,170 |
| 2019 | $170,030 | $53,140 | $0 | $223,170 | $223,170 |
| 2018 | $170,030 | $53,140 | $0 | $223,170 | $223,170 |
| 2017 | $180,410 | $49,400 | $0 | $229,810 | $229,810 |
| 2016 | $164,010 | $49,400 | $0 | $213,410 | $213,410 |
| 2015 | $164,010 | $49,400 | $0 | $213,410 | $213,410 |
| 2014 | $156,200 | $49,400 | $0 | $205,600 | $205,600 |
| 2013 | $156,200 | $49,400 | $0 | $205,600 | $205,600 |
| 2012 | $156,200 | $49,400 | $0 | $0 | $0 |
| 2011 | $156,200 | $49,400 | $0 | $0 | $0 |
| 2010 | $87,700 | $49,400 | $0 | $0 | $0 |
| 2009 | $102,900 | $49,400 | $0 | $0 | $0 |
| 2008 | $102,900 | $49,400 | $0 | $0 | $0 |
| 2007 | $29,500 | $31,600 | $0 | $0 | $0 |
Deed and Sales History
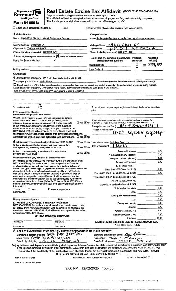
| 1 | 12/03/2025 | QCD | QUIT CLAIM DEED | GARRISON KAYLA ROSE | GARRISON BENJAMIN A | | | $0.00 | 150455 | 2025-07423 |
| 2 | 12/03/2025 | SWD | STATUTORY WARRANTY DEED | WILKINSON ESTATE LLC | GARRISON BENJAMIN A | | | $550,000.00 | 150454 | 2025-07422 |
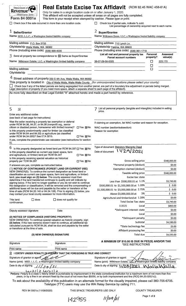
| 3 | 11/29/2021 | SWD | STATUTORY WARRANTY DEED | M3D LLC | WILKINSON ESTATE LLC | | | $340,000.00 | 142955 | 2021-14083 |
| 4 | 12/15/2017 | REAL ESTAT | REAL ESTATE CONTRACT | 330 FAMILY LTD PTNR | M3D LLC | | | $207,819.00 | 133804 | 2017-10089 |
| 5 | 01/09/1992 | WARRANTY D | WARRANTY DEED | | | | | $716,000.00 | 0 | 1939-200199 |
|   | |
Payout Agreement
| No payout information available.. |