Property
Account |
| Property ID: | 10518 | Abbreviated Legal Description: | CHABOTS 2ND LOT 17 |
| Parcel Number: | 360729560017 | Agent Code: | |
| Type: | Real | | |
| Tax Area: | 1 - OL-140-F | Land Use Code | 13 |
| Open Space: | N | DFL | N |
| Historic Property: | N | Remodel Property: | N |
| Multi-Family Redevelopment: | N | | |
| Township: | 7 | Section: | 29 |
| Range: | 36 |
Location |
| Address: | 339 CHASE AVE WA 99362 | Mapsco: | |
| Neighborhood: | Fair Inferior Res Aprt | Map ID: | |
| Neighborhood CD: | 512121 |
Owner |
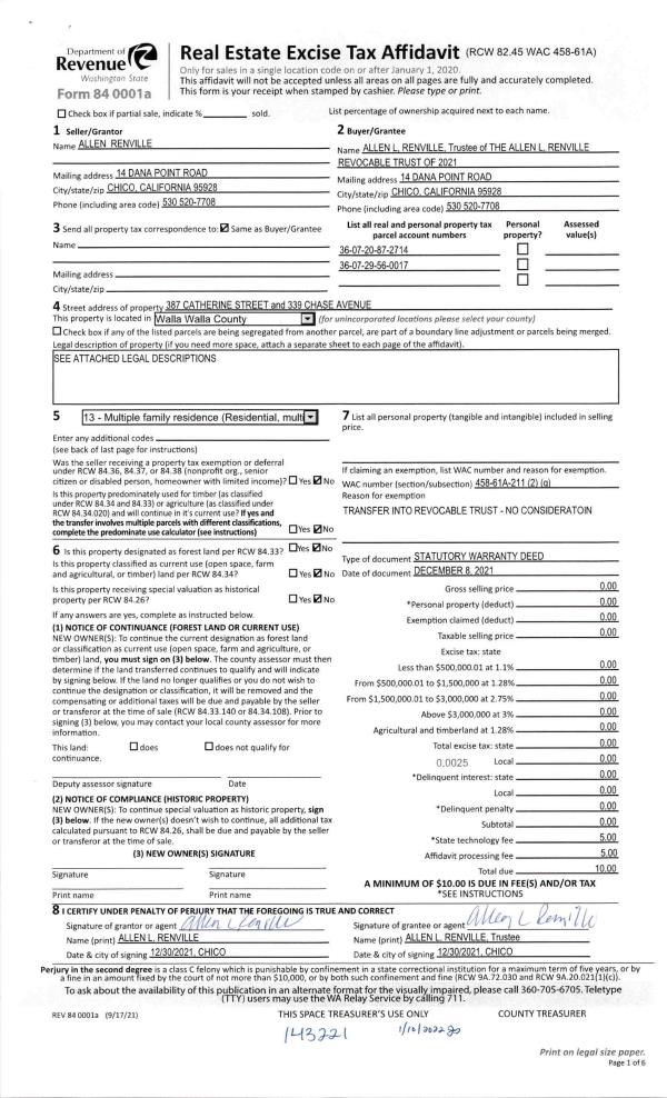
| Name: | ALLEN L RENVILLE REVOCABLE TRUST | Owner ID: | 70984 |
| Mailing Address: | 14 DANA POINT RD CHICO, CA 95928 | % Ownership: | 100.0000000000% |
| | | Exemptions: | |
Taxes and Assessment Details
Values
| (+) Improvement Homesite Value: | + | $0 | |
| (+) Improvement Non-Homesite Value: | + | $412,560 | |
| (+) Land Homesite Value: | + | $0 | |
| (+) Land Non-Homesite Value: | + | $39,400 | |
| (+) Curr Use (HS): | + | $0 | $0 |
| (+) Curr Use (NHS): | + | $0 | $0 |
| | | -------------------------- | |
| (=) Market Value: | = | $451,960 | |
| (–) Productivity Loss: | – | $0 | |
| | | -------------------------- | |
| (=) Subtotal: | = | $451,960 | |
| (+) Senior Appraised Value: | + | $0 | |
| (+) Non-Senior Appraised Value: | + | $451,960 | |
| | | -------------------------- | |
| (=) Total Appraised Value: | = | $451,960 | |
| (–) Senior Exemption Loss: | – | $0 | |
| (–) Exemption Loss: | – | $0 | |
| | | -------------------------- | |
| (=) Taxable Value: | = | $451,960 | |
Taxing Jurisdiction
| Owner: | ALLEN L RENVILLE REVOCABLE TRUST | | |
| % Ownership: | 100.0000000000% | | |
| Total Value: | $451,960 | | |
| Tax Area: | 1 - OL-140-F |
| CERFD | CURRENT EXPENSE REFUND 010 | 0.0000000000 | $451,960 | $451,960 | $0.00 | | |
| CURREXP | CURRENT EXPENSE 010 | 1.0175366760 | $451,960 | $451,960 | $459.89 | | |
| HUMNSERV | HUMAN SERVICES 119 | 0.0250000000 | $451,960 | $451,960 | $11.30 | | |
| SLDREL | SOLDIERS RELIEF 121 | 0.0155990005 | $451,960 | $451,960 | $7.05 | | |
| EMERGSER | EMS 147 | 0.3792580840 | $451,960 | $451,960 | $171.41 | | |
| EMSRFD | EMS REFUND 147 | 0.0000000000 | $451,960 | $451,960 | $0.00 | | |
| PORTRFD | PORT REFUND 640 | 0.0000000000 | $451,960 | $451,960 | $0.00 | | |
| PORTWWGEN | PORT OF WW 640 | 0.2460186015 | $451,960 | $451,960 | $111.19 | | |
| SD140BOND | SD #140 BOND 764 | 0.8342371393 | $451,960 | $451,960 | $377.04 | | |
| SD140GEN | SD #140 GENERAL 760 | 2.0646500647 | $451,960 | $451,960 | $933.14 | | |
| ST2 | STATE SCHOOL PART 2 600 | 0.8131451643 | $451,960 | $451,960 | $367.51 | | |
| STATESCHL | STATE SCHOOL 600 | 1.5158548041 | $451,960 | $451,960 | $685.11 | | |
| STREFUND | STATE REFUND LEVY 603 | 0.0000000000 | $451,960 | $451,960 | $0.00 | | |
| CWWBOND | C OF WW BOND 643 | 0.2760494372 | $451,960 | $451,960 | $124.76 | | |
| CWWGEN | CITY OF WW 631 | 1.6100204973 | $451,960 | $451,960 | $727.66 | | |
| CWWRFD | CITY OF WALLA WALLA REFUND 631 | 0.0000000000 | $451,960 | $451,960 | $0.00 | | |
| | Total Tax Rate: | 8.7973694689 | | | | | |
| | | | | Taxes w/Current Exemptions: | $3,976.06 | | |
| | | | | Taxes w/o Exemptions: | $3,976.06 | | |
Improvement / Building
| Improvement #1: | RESIDENTIAL | State Code: | 13 | 4884.0 sqft | Value: | $412,560 |
| Exterior Wall: | HARDBOARD | Heating/Cooling: | BASEBOARD ELECTRIC | | Number of Bathrooms: | 6 | Number of Bedrooms: | 12 | | Plumbing: | 30 | Roof Covering: | COMP SHINGLE |
|
| | Type | Description | Class CD | Sub Class CD | Year Built | Area |
| | MA | Main Area | 2 | 30 | 1977 | 4884.0 |
| | UPFL | Upper Floor (included in main area) | 2 | 30 | 1977 | 2442.0 |
| | SI1 | SITE IMPROVEMENT | 2 | 30 | 1977 | 8.0 |
| | BASE | BASEMENT | 2 | 30 | 1977 | 667.0 |
| | BPF | BASEMENT -PARTITIONED FINISH | 2 | 30 | 1977 | 667.0 |
| | S1F | Single One Story Fireplace | 2 | 30 | 1977 | 2.0 |
| | BLW | WOOD BALCONIES | 2 | 30 | 1977 | 60.0 |
| | BLW | WOOD BALCONIES | 2 | 30 | 1977 | 450.0 |
| | EWS | EXT WOOD STAIRS | 2 | 30 | 1977 | 1.0 |
Sketch
Property Image
Land
| 1 | RES 1 | Converted: Residential | 0.1722 | 7500.00 | 0.00 | 0.00 | 1.00 | $39,400 | $0 |
Roll Value History
| 2026 | N/A | N/A | N/A | N/A | N/A |
| 2025 | $420,900 | $67,500 | $0 | $488,400 | $488,400 |
| 2024 | $407,000 | $67,500 | $0 | $474,500 | $474,500 |
| 2023 | $412,560 | $39,400 | $0 | $451,960 | $451,960 |
| 2022 | $412,560 | $39,400 | $0 | $451,960 | $451,960 |
| 2021 | $343,800 | $39,400 | $0 | $383,200 | $383,200 |
| 2020 | $343,800 | $39,400 | $0 | $383,200 | $383,200 |
| 2019 | $291,900 | $39,380 | $0 | $331,280 | $331,280 |
| 2018 | $278,000 | $39,380 | $0 | $317,380 | $317,380 |
| 2017 | $257,950 | $45,000 | $0 | $302,950 | $302,950 |
| 2016 | $234,500 | $45,000 | $0 | $279,500 | $279,500 |
| 2015 | $234,500 | $45,000 | $0 | $279,500 | $279,500 |
| 2014 | $234,500 | $45,000 | $0 | $279,500 | $279,500 |
| 2013 | $234,500 | $45,000 | $0 | $279,500 | $279,500 |
| 2012 | $234,500 | $45,000 | $0 | $0 | $0 |
| 2011 | $234,500 | $45,000 | $0 | $0 | $0 |
| 2010 | $234,500 | $45,000 | $0 | $0 | $0 |
| 2009 | $265,600 | $45,000 | $0 | $0 | $0 |
| 2008 | $265,600 | $45,000 | $0 | $0 | $0 |
| 2007 | $204,600 | $18,800 | $0 | $0 | $0 |
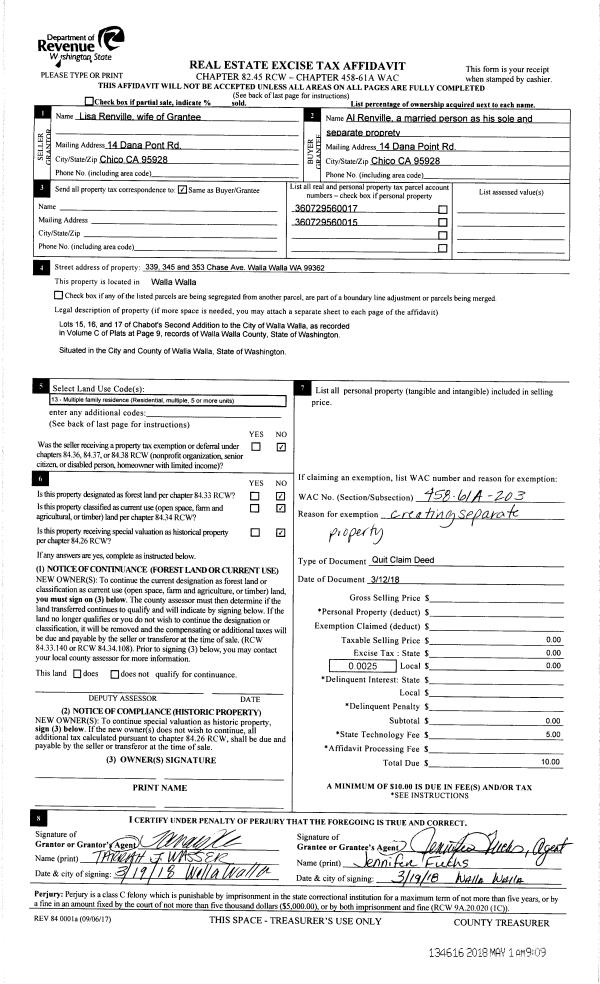
Deed and Sales History
| 1 | 12/08/2021 | SWD | STATUTORY WARRANTY DEED | RENVILLE ALLEN | ALLEN L RENVILLE REVOCABLE TRUST | 2 PARCELS | | $0.00 | 143221 | 2022-00320 |
| 2 | 05/01/2018 | QCD | QUIT CLAIM DEED | RENVILLE LISA | RENVILLE ALLEN | | 2-PARCLES | | 134616 | 2018-03415 |
| 3 | 04/30/2018 | SWP | Special Warranty Deed | WW UNIVERSITY CHARITABLE REMAINDER UNITRUST | RENVILLE ALLEN | | 2-PARCELS | $723,000.00 | 134614 | 2018-03411 |
|   | |
| 4 | 02/09/2017 | QCD | QUIT CLAIM DEED | WONG YEW-CHONG & LILY | WW UNIVERSITY CHARITABLE REMAINDER UNITRUST | | | $0.00 | 131982 | 2017-01739 |
| 5 | 01/06/1994 | WARRANTY D | WARRANTY DEED | | | | | $340,000.00 | 80825 | 2159-400263 |
|   | |
Payout Agreement
| No payout information available.. |