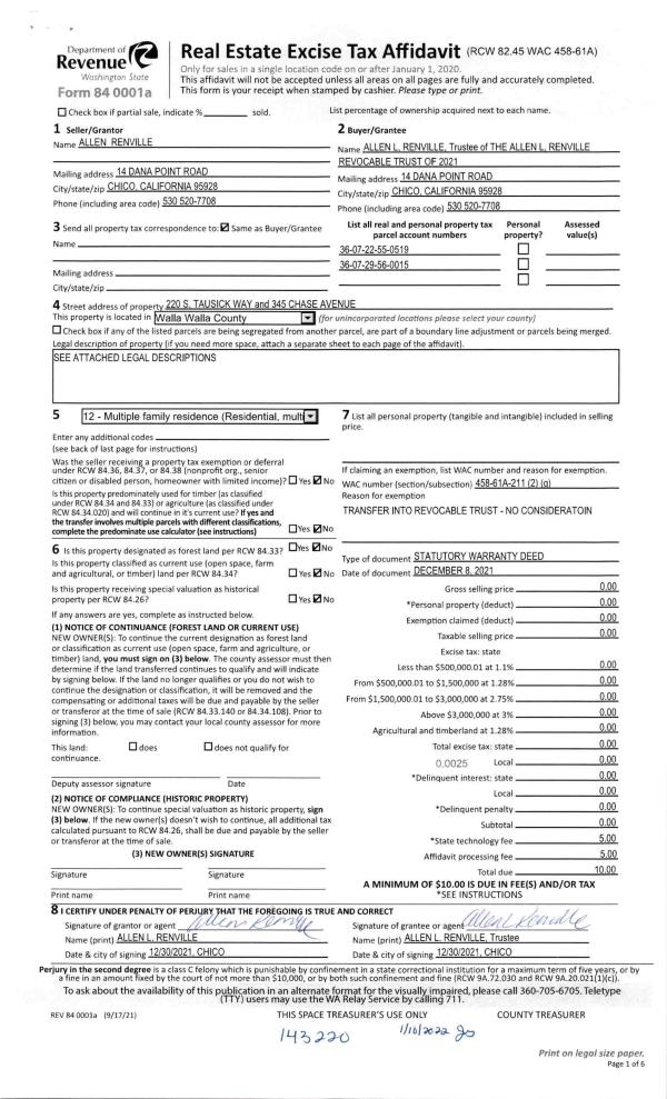
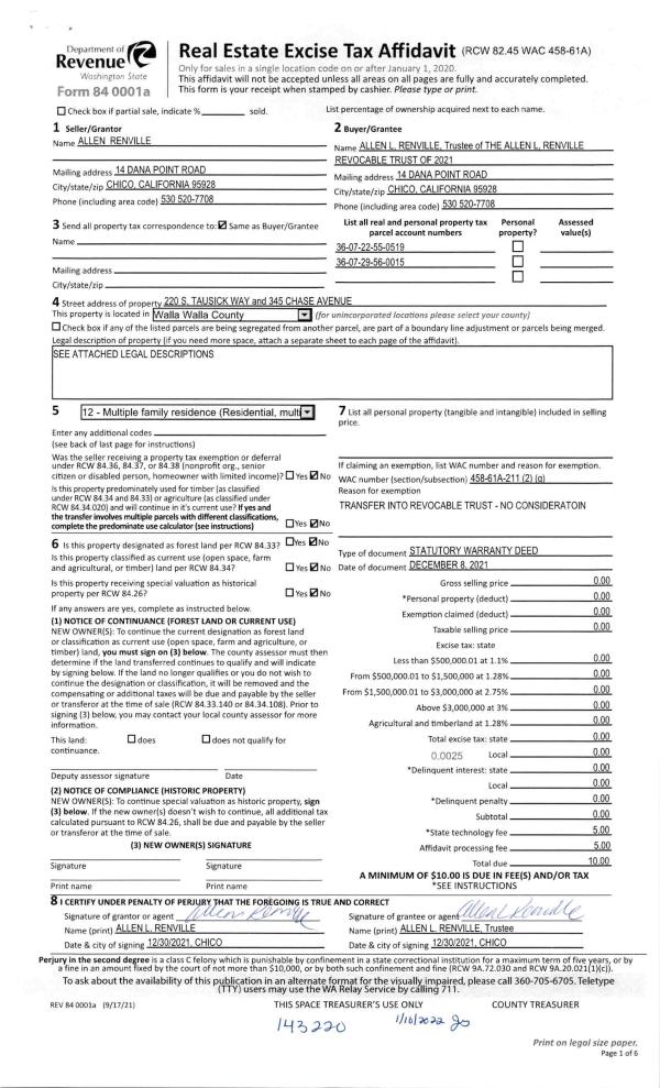
Property
Account |
| Property ID: | 10517 | Abbreviated Legal Description: | CHABOTS 2ND LOTS 15 & 16 |
| Parcel Number: | 360729560015 | Agent Code: | |
| Type: | Real | | |
| Tax Area: | 1 - OL-140-F | Land Use Code | 13 |
| Open Space: | N | DFL | N |
| Historic Property: | N | Remodel Property: | N |
| Multi-Family Redevelopment: | N | | |
| Township: | 7 | Section: | 29 |
| Range: | 36 |
Location |
| Address: | 345 CHASE AVE WA 99362 | Mapsco: | |
| Neighborhood: | Fair Inferior Multi Res | Map ID: | |
| Neighborhood CD: | 512181 |
Owner |
| Name: | ALLEN L RENVILLE REVOCABLE TRUST | Owner ID: | 70984 |
| Mailing Address: | 14 DANA POINT RD CHICO, CA 95928 | % Ownership: | 100.0000000000% |
| | | Exemptions: | |
Taxes and Assessment Details
Property Tax Information as of
02/21/2026
Click on "Statement Details" to expand or collapse a tax statement.
* Please enter a valid date ** Please enter a valid date *
Statement Details |
| | TOTAL: | $0.00 | $0.00 | $0.00 | $0.00 | $0.00 | $0.00 |
|
| | $0.00 | $0.00 | $0.00 | $0.00 | $0.00 | $0.00 |
Values
| (+) Improvement Homesite Value: | + | $0 | |
| (+) Improvement Non-Homesite Value: | + | $445,950 | |
| (+) Land Homesite Value: | + | $0 | |
| (+) Land Non-Homesite Value: | + | $53,700 | |
| (+) Curr Use (HS): | + | $0 | $0 |
| (+) Curr Use (NHS): | + | $0 | $0 |
| | | -------------------------- | |
| (=) Market Value: | = | $499,650 | |
| (–) Productivity Loss: | – | $0 | |
| | | -------------------------- | |
| (=) Subtotal: | = | $499,650 | |
| (+) Senior Appraised Value: | + | $0 | |
| (+) Non-Senior Appraised Value: | + | $499,650 | |
| | | -------------------------- | |
| (=) Total Appraised Value: | = | $499,650 | |
| (–) Senior Exemption Loss: | – | $0 | |
| (–) Exemption Loss: | – | $0 | |
| | | -------------------------- | |
| (=) Taxable Value: | = | $499,650 | |
Taxing Jurisdiction
| Owner: | ALLEN L RENVILLE REVOCABLE TRUST | | |
| % Ownership: | 100.0000000000% | | |
| Total Value: | $499,650 | | |
| Tax Area: | 1 - OL-140-F |
| CERFD | CURRENT EXPENSE REFUND 010 | 0.0000000000 | $499,650 | $499,650 | $0.00 | | |
| CURREXP | CURRENT EXPENSE 010 | 1.0175366760 | $499,650 | $499,650 | $508.41 | | |
| HUMNSERV | HUMAN SERVICES 119 | 0.0250000000 | $499,650 | $499,650 | $12.49 | | |
| SLDREL | SOLDIERS RELIEF 121 | 0.0155990005 | $499,650 | $499,650 | $7.79 | | |
| EMERGSER | EMS 147 | 0.3792580840 | $499,650 | $499,650 | $189.50 | | |
| EMSRFD | EMS REFUND 147 | 0.0000000000 | $499,650 | $499,650 | $0.00 | | |
| PORTRFD | PORT REFUND 640 | 0.0000000000 | $499,650 | $499,650 | $0.00 | | |
| PORTWWGEN | PORT OF WW 640 | 0.2460186015 | $499,650 | $499,650 | $122.92 | | |
| SD140BOND | SD #140 BOND 764 | 0.8342371393 | $499,650 | $499,650 | $416.83 | | |
| SD140GEN | SD #140 GENERAL 760 | 2.0646500647 | $499,650 | $499,650 | $1,031.60 | | |
| ST2 | STATE SCHOOL PART 2 600 | 0.8131451643 | $499,650 | $499,650 | $406.29 | | |
| STATESCHL | STATE SCHOOL 600 | 1.5158548041 | $499,650 | $499,650 | $757.40 | | |
| STREFUND | STATE REFUND LEVY 603 | 0.0000000000 | $499,650 | $499,650 | $0.00 | | |
| CWWBOND | C OF WW BOND 643 | 0.2760494372 | $499,650 | $499,650 | $137.93 | | |
| CWWGEN | CITY OF WW 631 | 1.6100204973 | $499,650 | $499,650 | $804.45 | | |
| CWWRFD | CITY OF WALLA WALLA REFUND 631 | 0.0000000000 | $499,650 | $499,650 | $0.00 | | |
| | Total Tax Rate: | 8.7973694689 | | | | | |
| | | | | Taxes w/Current Exemptions: | $4,395.61 | | |
| | | | | Taxes w/o Exemptions: | $4,395.61 | | |
Improvement / Building
| Improvement #1: | RESIDENTIAL | State Code: | 13 | 1432.0 sqft | Value: | $129,430 |
| Exterior Wall: | HARDBOARD | Heating/Cooling: | BASEBOARD ELECTRIC | | Number of Bathrooms: | 1.5 | Number of Bedrooms: | 3 | | Plumbing: | 7 | Roof Covering: | COMP SHINGLE |
|
| | Type | Description | Class CD | Sub Class CD | Year Built | Area |
| | MA | Main Area | 1 | 30 | 1900 | 1432.0 |
| | RPO | OPEN PORCH W/ROOF | 1 | 30 | 1900 | 120.0 |
| | OSP | Open | 1 | 30 | 1900 | 160.0 |
| | SI1 | SITE IMPROVEMENT | 1 | 30 | 1900 | 5.0 |
| Improvement #2: | RESIDENTIAL | State Code: | 13 | 3016.0 sqft | Value: | $316,520 |
| Exterior Wall: | HARDBOARD | Heating/Cooling: | BASEBOARD ELECTRIC | | Number of Bathrooms: | 4 | Number of Bedrooms: | 8 | | Plumbing: | 24 | Roof Covering: | COMP SHINGLE |
|
| | Type | Description | Class CD | Sub Class CD | Year Built | Area |
| | MA | Main Area | 2 | 30 | 1977 | 3016.0 |
| | UPFL | Upper Floor (included in main area) | 2 | 30 | 1977 | 1508.0 |
| | SI1 | SITE IMPROVEMENT | 2 | 30 | 1977 | 6.0 |
| | BLW | WOOD BALCONIES | 2 | 30 | 1977 | 435.0 |
| | DTG | Detached Garage | 2 | 30 | 1977 | 864.0 |
| | BON4 | BONUS RM DET/REC OR APT FINISH | 2 | 30 | 1977 | 569.0 |
| | HVAC | HEAT/AC SYSTEM | 2 | 30 | 1977 | 569.0 |
| | APP | APPLIANCE ALLOWANCE | 2 | 30 | 1977 | 1.0 |
| | FBAT | FULL BATH | 2 | 30 | 1977 | 1.0 |
| | FIXT | AVERAGE FIXTURE | 2 | 30 | 1977 | 3.0 |
| | PRKSTLA | PARK STALL AVERAGE | 1 | 30 | 1977 | 12.0 |
Sketch
Property Image
Land
| 1 | RES 1 | Converted: Residential | 0.3444 | 15000.00 | 0.00 | 0.00 | 1.00 | $53,700 | $0 |
Roll Value History
| 2026 | N/A | N/A | N/A | N/A | N/A |
| 2025 | $383,800 | $90,000 | $0 | $473,800 | $473,800 |
| 2024 | $389,400 | $79,100 | $0 | $468,500 | $468,500 |
| 2023 | $445,950 | $53,700 | $0 | $499,650 | $499,650 |
| 2022 | $405,400 | $53,700 | $0 | $459,100 | $459,100 |
| 2021 | $311,850 | $53,700 | $0 | $365,550 | $365,550 |
| 2020 | $297,000 | $53,700 | $0 | $350,700 | $350,700 |
| 2019 | $250,640 | $53,700 | $0 | $304,340 | $304,340 |
| 2018 | $238,700 | $53,700 | $0 | $292,400 | $292,400 |
| 2017 | $192,200 | $51,400 | $0 | $243,600 | $243,600 |
| 2016 | $192,200 | $51,400 | $0 | $243,600 | $243,600 |
| 2015 | $192,200 | $51,400 | $0 | $243,600 | $243,600 |
| 2014 | $192,200 | $51,400 | $0 | $243,600 | $243,600 |
| 2013 | $192,200 | $51,400 | $0 | $243,600 | $243,600 |
| 2012 | $192,200 | $51,400 | $0 | $0 | $0 |
| 2011 | $192,200 | $51,400 | $0 | $0 | $0 |
| 2010 | $192,200 | $51,400 | $0 | $0 | $0 |
| 2009 | $219,200 | $51,400 | $0 | $0 | $0 |
| 2008 | $219,200 | $51,400 | $0 | $0 | $0 |
| 2007 | $153,700 | $37,500 | $0 | $0 | $0 |
Deed and Sales History
| 1 | 12/08/2021 | SWD | STATUTORY WARRANTY DEED | RENVILLE ALLEN | ALLEN L RENVILLE REVOCABLE TRUST | 2 PARCELS | | $0.00 | 143220 | 2022-00320 |
| 2 | 05/01/2018 | QCD | QUIT CLAIM DEED | RENVILLE LISA | RENVILLE ALLEN | | 2-PARCELS | | 134616 | 2018-03415 |
| 3 | 04/30/2018 | SWP | Special Warranty Deed | WW UNIVERSITY CHARITABLE REMAINDER UNITRUST | RENVILLE ALLEN | | 2-PARCELS | $723,000.00 | 134614 | 2018-03411 |
|   | |
| 4 | 02/09/2017 | QCD | QUIT CLAIM DEED | WONG YEW-CHONG & LILY | WW UNIVERSITY CHARITABLE REMAINDER UNITRUST | | | $0.00 | 131982 | 2017-01739 |
| 5 | 01/06/1994 | WARRANTY D | WARRANTY DEED | | | | | $340,000.00 | 80825 | 2159-400263 |
|   | |
Payout Agreement
| No payout information available.. |