Property
Account |
| Property ID: | 10510 | Abbreviated Legal Description: | CHABOTS LESS TAX 4 LOT 7 BLK 17 |
| Parcel Number: | 360729551707 | Agent Code: | |
| Type: | Real | | |
| Tax Area: | 1 - OL-140-F | Land Use Code | 11 |
| Open Space: | N | DFL | N |
| Historic Property: | N | Remodel Property: | N |
| Multi-Family Redevelopment: | N | | |
| Township: | 7 | Section: | 29 |
| Range: | 36 |
Location |
| Address: | 122 W BIRCH ST WA 99362 | Mapsco: | |
| Neighborhood: | Fair Inferior Res | Map ID: | |
| Neighborhood CD: | 512111 |
Owner |
| Name: | ROSALES LAURA | Owner ID: | 57679 |
| Mailing Address: | 122 W BIRCH ST WALLA WALLA, WA 99362 | % Ownership: | 100.0000000000% |
| | | Exemptions: | |
Taxes and Assessment Details
Values
| (+) Improvement Homesite Value: | + | $0 | |
| (+) Improvement Non-Homesite Value: | + | $292,930 | |
| (+) Land Homesite Value: | + | $0 | |
| (+) Land Non-Homesite Value: | + | $33,080 | |
| (+) Curr Use (HS): | + | $0 | $0 |
| (+) Curr Use (NHS): | + | $0 | $0 |
| | | -------------------------- | |
| (=) Market Value: | = | $326,010 | |
| (–) Productivity Loss: | – | $0 | |
| | | -------------------------- | |
| (=) Subtotal: | = | $326,010 | |
| (+) Senior Appraised Value: | + | $0 | |
| (+) Non-Senior Appraised Value: | + | $326,010 | |
| | | -------------------------- | |
| (=) Total Appraised Value: | = | $326,010 | |
| (–) Senior Exemption Loss: | – | $0 | |
| (–) Exemption Loss: | – | $0 | |
| | | -------------------------- | |
| (=) Taxable Value: | = | $326,010 | |
Taxing Jurisdiction
| Owner: | ROSALES LAURA | | |
| % Ownership: | 100.0000000000% | | |
| Total Value: | $326,010 | | |
| Tax Area: | 1 - OL-140-F |
| CERFD | CURRENT EXPENSE REFUND 010 | 0.0000000000 | $326,010 | $326,010 | $0.00 | | |
| CURREXP | CURRENT EXPENSE 010 | 1.0175366760 | $326,010 | $326,010 | $331.73 | | |
| HUMNSERV | HUMAN SERVICES 119 | 0.0250000000 | $326,010 | $326,010 | $8.15 | | |
| SLDREL | SOLDIERS RELIEF 121 | 0.0155990005 | $326,010 | $326,010 | $5.09 | | |
| EMERGSER | EMS 147 | 0.3792580840 | $326,010 | $326,010 | $123.64 | | |
| EMSRFD | EMS REFUND 147 | 0.0000000000 | $326,010 | $326,010 | $0.00 | | |
| PORTRFD | PORT REFUND 640 | 0.0000000000 | $326,010 | $326,010 | $0.00 | | |
| PORTWWGEN | PORT OF WW 640 | 0.2460186015 | $326,010 | $326,010 | $80.20 | | |
| SD140BOND | SD #140 BOND 764 | 0.8342371393 | $326,010 | $326,010 | $271.97 | | |
| SD140GEN | SD #140 GENERAL 760 | 2.0646500647 | $326,010 | $326,010 | $673.10 | | |
| ST2 | STATE SCHOOL PART 2 600 | 0.8131451643 | $326,010 | $326,010 | $265.09 | | |
| STATESCHL | STATE SCHOOL 600 | 1.5158548041 | $326,010 | $326,010 | $494.18 | | |
| STREFUND | STATE REFUND LEVY 603 | 0.0000000000 | $326,010 | $326,010 | $0.00 | | |
| CWWBOND | C OF WW BOND 643 | 0.2760494372 | $326,010 | $326,010 | $89.99 | | |
| CWWGEN | CITY OF WW 631 | 1.6100204973 | $326,010 | $326,010 | $524.88 | | |
| CWWRFD | CITY OF WALLA WALLA REFUND 631 | 0.0000000000 | $326,010 | $326,010 | $0.00 | | |
| | Total Tax Rate: | 8.7973694689 | | | | | |
| | | | | Taxes w/Current Exemptions: | $2,868.02 | | |
| | | | | Taxes w/o Exemptions: | $2,868.02 | | |
Improvement / Building
| Improvement #1: | RESIDENTIAL | State Code: | 11 | 1644.0 sqft | Value: | $292,930 |
| Exterior Wall: | SIDING | Heating/Cooling: | WARM & COOLED AIR | | Number of Bathrooms: | 2 | Number of Bedrooms: | 2 | | Plumbing: | 12 | Roof Covering: | COMP SHINGLE |
|
| | Type | Description | Class CD | Sub Class CD | Year Built | Area |
| | MA | Main Area | 1 | 30 | 1900 | 1644.0 |
| | SI1 | SITE IMPROVEMENT | 1 | 30 | 0 | 1.0 |
| | BASE | BASEMENT | 1 | 30 | 1900 | 216.0 |
| | WDR | WOOD DECK W/ROOF | 1 | 30 | 1900 | 96.0 |
| | DTG | Detached Garage | 1 | 30 | 1900 | 504.0 |
| | GIF | GARAGE INTERIOR FINISH | 1 | 30 | 1900 | 504.0 |
| | FBAT | FULL BATH | 1 | 30 | 1900 | 1.0 |
| | FIXT | AVERAGE FIXTURE | 1 | 30 | 1900 | 5.0 |
| | APP | APPLIANCE ALLOWANCE | 4 | 30 | 1900 | 2.0 |
Sketch
Property Image
Land
| 1 | RES 1 | Converted: Residential | 0.1446 | 6300.00 | 0.00 | 0.00 | 1.00 | $33,080 | $0 |
Roll Value History
| 2026 | N/A | N/A | N/A | N/A | N/A |
| 2025 | $292,000 | $56,700 | $0 | $348,700 | $348,700 |
| 2024 | $292,000 | $56,700 | $0 | $348,700 | $348,700 |
| 2023 | $292,930 | $33,080 | $0 | $326,010 | $326,010 |
| 2022 | $254,730 | $33,080 | $0 | $287,810 | $287,810 |
| 2021 | $210,320 | $33,080 | $0 | $243,400 | $243,400 |
| 2020 | $161,790 | $33,080 | $0 | $194,870 | $194,870 |
| 2019 | $161,790 | $33,080 | $0 | $194,870 | $194,870 |
| 2018 | $124,450 | $33,080 | $0 | $157,530 | $157,530 |
| 2017 | $93,960 | $37,800 | $0 | $131,760 | $131,760 |
| 2016 | $93,960 | $37,800 | $0 | $131,760 | $131,760 |
| 2015 | $66,360 | $37,800 | $0 | $104,160 | $104,160 |
| 2014 | $110,600 | $37,800 | $0 | $148,400 | $148,400 |
| 2013 | $110,600 | $37,800 | $0 | $148,400 | $148,400 |
| 2012 | $110,600 | $37,800 | $0 | $0 | $0 |
| 2011 | $110,600 | $37,800 | $0 | $0 | $0 |
| 2010 | $110,600 | $37,800 | $0 | $0 | $0 |
| 2009 | $110,600 | $37,800 | $0 | $0 | $0 |
| 2008 | $110,600 | $37,800 | $0 | $0 | $0 |
| 2007 | $52,700 | $15,800 | $0 | $0 | $0 |
Deed and Sales History
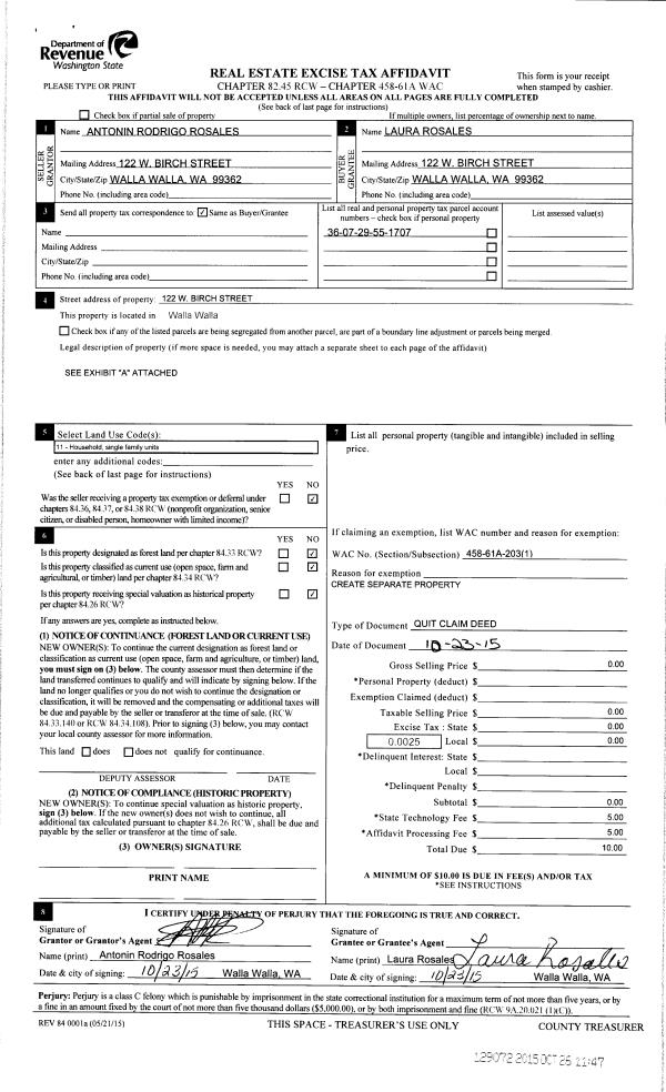
| 1 | 10/23/2015 | QCD | QUIT CLAIM DEED | ROSALES ANTONIN RODRIGO & LAURA | ROSALES LAURA | | | | 129072 | 2015-09343 |
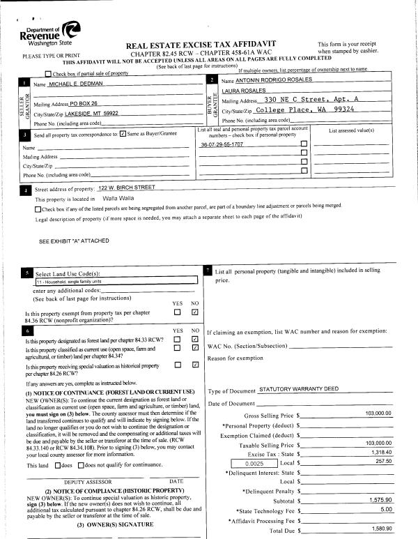
| 2 | 01/28/2015 | SWD | STATUTORY WARRANTY DEED | DEDMAN MICHAEL E | ROSALES ANTONIN RODRIGO & LAURA | | | $103,000.00 | 127339 | 2015-00698 |
| 3 | 03/09/2004 | WARRANTY D | WARRANTY DEED | MENDOZA, MANUEL ESTATE | DEDMAN, MICHAEL E | | | $60,000.00 | 104219 | 2004-02477 |
| 4 | 11/15/1993 | WARRANTY D | WARRANTY DEED | | | | | $40,000.00 | 80493 | 2139-311967 |
Payout Agreement
| No payout information available.. |