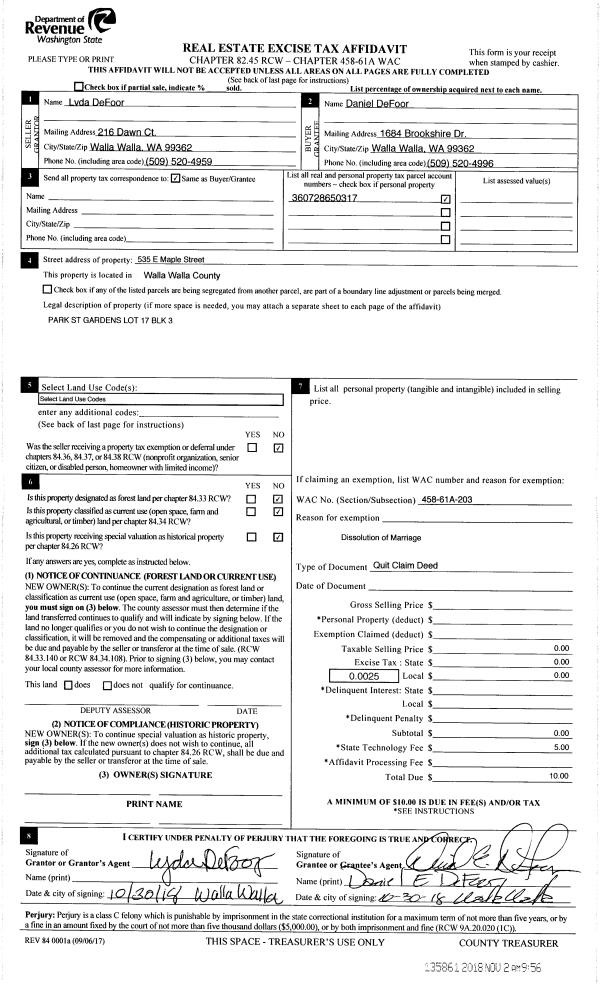
Property
Account |
| Property ID: | 10489 | Abbreviated Legal Description: | PARK ST GARDENS LOT 17 BLK 3 |
| Parcel Number: | 360728650317 | Agent Code: | |
| Type: | Real | | |
| Tax Area: | 1 - OL-140-F | Land Use Code | 11 |
| Open Space: | N | DFL | N |
| Historic Property: | N | Remodel Property: | N |
| Multi-Family Redevelopment: | N | | |
| Township: | 7 | Section: | 28 |
| Range: | 36 |
Location |
| Address: | 535 E MAPLE ST WA 99362 | Mapsco: | |
| Neighborhood: | A Res | Map ID: | |
| Neighborhood CD: | 613011 |
Owner |
| Name: | DE FOOR DANIEL | Owner ID: | 64237 |
| Mailing Address: | PO BOX 2498 WALLA WALLA, WA 99362 | % Ownership: | 100.0000000000% |
| | | Exemptions: | |
Taxes and Assessment Details
Property Tax Information as of
02/21/2026
Click on "Statement Details" to expand or collapse a tax statement.
* Please enter a valid date ** Please enter a valid date *
Statement Details |
| | TOTAL: | $0.00 | $0.00 | $0.00 | $0.00 | $0.00 | $0.00 |
|
| | $0.00 | $0.00 | $0.00 | $0.00 | $0.00 | $0.00 |
Values
| (+) Improvement Homesite Value: | + | $0 | |
| (+) Improvement Non-Homesite Value: | + | $168,550 | |
| (+) Land Homesite Value: | + | $0 | |
| (+) Land Non-Homesite Value: | + | $70,000 | |
| (+) Curr Use (HS): | + | $0 | $0 |
| (+) Curr Use (NHS): | + | $0 | $0 |
| | | -------------------------- | |
| (=) Market Value: | = | $238,550 | |
| (–) Productivity Loss: | – | $0 | |
| | | -------------------------- | |
| (=) Subtotal: | = | $238,550 | |
| (+) Senior Appraised Value: | + | $0 | |
| (+) Non-Senior Appraised Value: | + | $238,550 | |
| | | -------------------------- | |
| (=) Total Appraised Value: | = | $238,550 | |
| (–) Senior Exemption Loss: | – | $0 | |
| (–) Exemption Loss: | – | $0 | |
| | | -------------------------- | |
| (=) Taxable Value: | = | $238,550 | |
Taxing Jurisdiction
| Owner: | DE FOOR DANIEL | | |
| % Ownership: | 100.0000000000% | | |
| Total Value: | $238,550 | | |
| Tax Area: | 1 - OL-140-F |
| CERFD | CURRENT EXPENSE REFUND 010 | 0.0000000000 | $238,550 | $238,550 | $0.00 | | |
| CURREXP | CURRENT EXPENSE 010 | 1.0175366760 | $238,550 | $238,550 | $242.73 | | |
| HUMNSERV | HUMAN SERVICES 119 | 0.0250000000 | $238,550 | $238,550 | $5.96 | | |
| SLDREL | SOLDIERS RELIEF 121 | 0.0155990005 | $238,550 | $238,550 | $3.72 | | |
| EMERGSER | EMS 147 | 0.3792580840 | $238,550 | $238,550 | $90.47 | | |
| EMSRFD | EMS REFUND 147 | 0.0000000000 | $238,550 | $238,550 | $0.00 | | |
| PORTRFD | PORT REFUND 640 | 0.0000000000 | $238,550 | $238,550 | $0.00 | | |
| PORTWWGEN | PORT OF WW 640 | 0.2460186015 | $238,550 | $238,550 | $58.69 | | |
| SD140BOND | SD #140 BOND 764 | 0.8342371393 | $238,550 | $238,550 | $199.01 | | |
| SD140GEN | SD #140 GENERAL 760 | 2.0646500647 | $238,550 | $238,550 | $492.52 | | |
| ST2 | STATE SCHOOL PART 2 600 | 0.8131451643 | $238,550 | $238,550 | $193.98 | | |
| STATESCHL | STATE SCHOOL 600 | 1.5158548041 | $238,550 | $238,550 | $361.61 | | |
| STREFUND | STATE REFUND LEVY 603 | 0.0000000000 | $238,550 | $238,550 | $0.00 | | |
| CWWBOND | C OF WW BOND 643 | 0.2760494372 | $238,550 | $238,550 | $65.85 | | |
| CWWGEN | CITY OF WW 631 | 1.6100204973 | $238,550 | $238,550 | $384.07 | | |
| CWWRFD | CITY OF WALLA WALLA REFUND 631 | 0.0000000000 | $238,550 | $238,550 | $0.00 | | |
| | Total Tax Rate: | 8.7973694689 | | | | | |
| | | | | Taxes w/Current Exemptions: | $2,098.61 | | |
| | | | | Taxes w/o Exemptions: | $2,098.61 | | |
Improvement / Building
| Improvement #1: | RESIDENTIAL | State Code: | 11 | 998.0 sqft | Value: | $168,550 |
| Exterior Wall: | SIDING | Heating/Cooling: | FLOOR FURNACE | | Number of Bathrooms: | 1 | Number of Bedrooms: | 2 | | Plumbing: | 7 | Roof Covering: | COMP SHINGLE |
|
| | Type | Description | Class CD | Sub Class CD | Year Built | Area |
| | MA | Main Area | 1 | 30 | 1921 | 998.0 |
| | SI1 | SITE IMPROVEMENT | 1 | 30 | 1921 | 1.0 |
| | BASE | BASEMENT | 1 | 30 | 1921 | 132.0 |
| | RPS | PORCH W/STEPS,ROOF | 1 | 30 | 1921 | 84.0 |
| | SWP | Solid Wall Porch | 1 | 30 | 1921 | 108.0 |
| | CPC | COVERED CARPORT/PATIO | 1 | 30 | 1921 | 360.0 |
| | WOD | Wood Deck | 1 | 30 | 1921 | 315.0 |
| | DTG | Detached Garage | 1 | 30 | 1921 | 288.0 |
Sketch
Property Image
Land
| 1 | RES 1 | Converted: Residential | 0.1377 | 6000.00 | 0.00 | 0.00 | 1.00 | $70,000 | $0 |
Roll Value History
| 2026 | N/A | N/A | N/A | N/A | N/A |
| 2025 | $175,970 | $66,000 | $0 | $241,970 | $241,970 |
| 2024 | $168,550 | $70,000 | $0 | $238,550 | $238,550 |
| 2023 | $168,550 | $70,000 | $0 | $238,550 | $238,550 |
| 2022 | $177,420 | $55,000 | $0 | $232,420 | $232,420 |
| 2021 | $136,480 | $55,000 | $0 | $191,480 | $191,480 |
| 2020 | $109,180 | $55,000 | $0 | $164,180 | $164,180 |
| 2019 | $109,180 | $55,000 | $0 | $164,180 | $164,180 |
| 2018 | $98,860 | $36,000 | $0 | $134,860 | $134,860 |
| 2017 | $98,860 | $36,000 | $0 | $134,860 | $134,860 |
| 2016 | $89,870 | $36,000 | $0 | $125,870 | $125,870 |
| 2015 | $89,870 | $36,000 | $0 | $125,870 | $125,870 |
| 2014 | $81,700 | $36,000 | $0 | $117,700 | $117,700 |
| 2013 | $81,700 | $36,000 | $0 | $117,700 | $117,700 |
| 2012 | $81,700 | $36,000 | $0 | $0 | $0 |
| 2011 | $81,700 | $36,000 | $0 | $0 | $0 |
| 2010 | $76,100 | $36,000 | $0 | $0 | $0 |
| 2009 | $88,500 | $36,000 | $0 | $0 | $0 |
| 2008 | $88,500 | $36,000 | $0 | $0 | $0 |
| 2007 | $58,300 | $18,000 | $0 | $0 | $0 |
Deed and Sales History
| 1 | 10/30/2018 | QCD | QUIT CLAIM DEED | DEFOOR DANIEL E & LYDA S | DE FOOR DANIEL | | | $0.00 | 135861 | 2018-09082 |
| 2 | 05/19/2004 | WARRANTY D | WARRANTY DEED | ROBANSKE, CHASTITY | DEFOOR, DANIEL E & LYDA S | | | $102,000.00 | 104790 | 2004-05401 |
| 3 | 11/20/1998 | WARRANTY D | WARRANTY DEED | | | | | $70,000.00 | 91665 | 2769-813430 |
Payout Agreement
| No payout information available.. |