Property
Account |
| Property ID: | 10452 | Abbreviated Legal Description: | BARRONS WLY 42 1/2' OF LOT 6 BLK 11 AND TRACT |
| Parcel Number: | 360729521106 | Agent Code: | |
| Type: | Real | | |
| Tax Area: | 1 - OL-140-F | Land Use Code | 11 |
| Open Space: | N | DFL | N |
| Historic Property: | N | Remodel Property: | N |
| Multi-Family Redevelopment: | N | | |
| Township: | 7 | Section: | 29 |
| Range: | 36 |
Location |
| Address: | 528 WILLOW ST WA 99362 | Mapsco: | |
| Neighborhood: | F SFR | Map ID: | |
| Neighborhood CD: | 512011 |
Owner |
| Name: | GAMEZ HILDA SANCHEZ FERNANDEZ | Owner ID: | 63205 |
| Mailing Address: | VANESSA FERNANDEZ 528 WILLOW ST WALLA WALLA, WA 99362 | % Ownership: | 100.0000000000% |
| | | Exemptions: | |
Taxes and Assessment Details
Values
| (+) Improvement Homesite Value: | + | $0 | |
| (+) Improvement Non-Homesite Value: | + | $201,520 | |
| (+) Land Homesite Value: | + | $0 | |
| (+) Land Non-Homesite Value: | + | $28,350 | |
| (+) Curr Use (HS): | + | $0 | $0 |
| (+) Curr Use (NHS): | + | $0 | $0 |
| | | -------------------------- | |
| (=) Market Value: | = | $229,870 | |
| (–) Productivity Loss: | – | $0 | |
| | | -------------------------- | |
| (=) Subtotal: | = | $229,870 | |
| (+) Senior Appraised Value: | + | $0 | |
| (+) Non-Senior Appraised Value: | + | $229,870 | |
| | | -------------------------- | |
| (=) Total Appraised Value: | = | $229,870 | |
| (–) Senior Exemption Loss: | – | $0 | |
| (–) Exemption Loss: | – | $0 | |
| | | -------------------------- | |
| (=) Taxable Value: | = | $229,870 | |
Taxing Jurisdiction
| Owner: | GAMEZ HILDA SANCHEZ FERNANDEZ | | |
| % Ownership: | 100.0000000000% | | |
| Total Value: | $229,870 | | |
| Tax Area: | 1 - OL-140-F |
| CERFD | CURRENT EXPENSE REFUND 010 | 0.0000000000 | $229,870 | $229,870 | $0.00 | | |
| CURREXP | CURRENT EXPENSE 010 | 1.0175366760 | $229,870 | $229,870 | $233.90 | | |
| HUMNSERV | HUMAN SERVICES 119 | 0.0250000000 | $229,870 | $229,870 | $5.75 | | |
| SLDREL | SOLDIERS RELIEF 121 | 0.0155990005 | $229,870 | $229,870 | $3.59 | | |
| EMERGSER | EMS 147 | 0.3792580840 | $229,870 | $229,870 | $87.18 | | |
| EMSRFD | EMS REFUND 147 | 0.0000000000 | $229,870 | $229,870 | $0.00 | | |
| PORTRFD | PORT REFUND 640 | 0.0000000000 | $229,870 | $229,870 | $0.00 | | |
| PORTWWGEN | PORT OF WW 640 | 0.2460186015 | $229,870 | $229,870 | $56.55 | | |
| SD140BOND | SD #140 BOND 764 | 0.8342371393 | $229,870 | $229,870 | $191.77 | | |
| SD140GEN | SD #140 GENERAL 760 | 2.0646500647 | $229,870 | $229,870 | $474.60 | | |
| ST2 | STATE SCHOOL PART 2 600 | 0.8131451643 | $229,870 | $229,870 | $186.92 | | |
| STATESCHL | STATE SCHOOL 600 | 1.5158548041 | $229,870 | $229,870 | $348.45 | | |
| STREFUND | STATE REFUND LEVY 603 | 0.0000000000 | $229,870 | $229,870 | $0.00 | | |
| CWWBOND | C OF WW BOND 643 | 0.2760494372 | $229,870 | $229,870 | $63.46 | | |
| CWWGEN | CITY OF WW 631 | 1.6100204973 | $229,870 | $229,870 | $370.10 | | |
| CWWRFD | CITY OF WALLA WALLA REFUND 631 | 0.0000000000 | $229,870 | $229,870 | $0.00 | | |
| | Total Tax Rate: | 8.7973694689 | | | | | |
| | | | | Taxes w/Current Exemptions: | $2,022.27 | | |
| | | | | Taxes w/o Exemptions: | $2,022.27 | | |
Improvement / Building
| Improvement #1: | RESIDENTIAL | State Code: | 11 | 1020.0 sqft | Value: | $201,520 |
| Exterior Wall: | SIDING | Heating/Cooling: | HEAT PUMP | | Number of Bathrooms: | 1 | Number of Bedrooms: | 3 | | Plumbing: | 6 | Roof Covering: | COMP SHINGLE |
|
| | Type | Description | Class CD | Sub Class CD | Year Built | Area |
| | MA | Main Area | 1 | 25 | 1895 | 1020.0 |
| | SI1 | SITE IMPROVEMENT | 1 | 25 | 1895 | 1.0 |
| | RPS | PORCH W/STEPS,ROOF | 1 | 25 | 1895 | 48.0 |
| | DTG | Detached Garage | 1 | 25 | 1895 | 336.0 |
Sketch
Property Image
Land
| 1 | RES 1 | Converted: Residential | 0.1240 | 5400.00 | 0.00 | 0.00 | 1.00 | $28,350 | $0 |
Roll Value History
| 2026 | N/A | N/A | N/A | N/A | N/A |
| 2025 | $246,900 | $48,600 | $0 | $295,500 | $295,500 |
| 2024 | $246,900 | $48,600 | $0 | $295,500 | $295,500 |
| 2023 | $201,520 | $28,350 | $0 | $229,870 | $229,870 |
| 2022 | $183,200 | $28,350 | $0 | $211,550 | $211,550 |
| 2021 | $146,560 | $28,350 | $0 | $174,910 | $174,910 |
| 2020 | $122,140 | $28,350 | $0 | $150,490 | $150,490 |
| 2019 | $122,140 | $28,350 | $0 | $150,490 | $150,490 |
| 2018 | $116,320 | $28,350 | $0 | $144,670 | $144,670 |
| 2017 | $43,200 | $32,400 | $0 | $75,600 | $75,600 |
| 2016 | $43,200 | $32,400 | $0 | $75,600 | $75,600 |
| 2015 | $43,200 | $32,400 | $0 | $75,600 | $75,600 |
| 2014 | $43,200 | $32,400 | $0 | $75,600 | $75,600 |
| 2013 | $43,200 | $32,400 | $0 | $75,600 | $75,600 |
| 2012 | $69,300 | $32,400 | $0 | $0 | $0 |
| 2011 | $69,300 | $32,400 | $0 | $0 | $0 |
| 2010 | $69,300 | $32,400 | $0 | $0 | $0 |
| 2009 | $87,200 | $32,400 | $0 | $0 | $0 |
| 2008 | $87,200 | $32,400 | $0 | $0 | $0 |
| 2007 | $65,700 | $10,800 | $0 | $0 | $0 |
Deed and Sales History
| 1 | 05/21/2018 | SWD | STATUTORY WARRANTY DEED | CHRISTENSEN STANLEY D | GAMEZ HILDA SANCHEZ FERNANDEZ | | | $170,000.00 | 134755 | 2018-04012 |
| 2 | 05/21/2018 | QCD | QUIT CLAIM DEED | CHRISTENSEN DEBRA L | CHRISTENSEN STANLEY D | | | | 134756 | 2018-04011 |
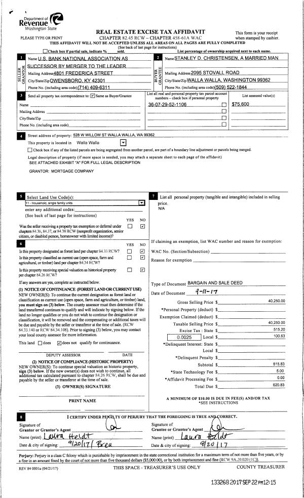
| 3 | 09/22/2017 | BARGAIN & | BARGAIN & SALE DEED | US BANK NA | CHRISTENSEN STANLEY D | | | $40,250.00 | 133268 | 2017-07486 |
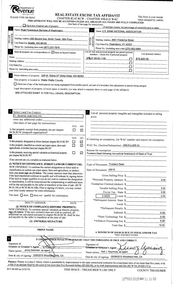
| 4 | 05/11/2015 | TRUSTEES D | TRUSTEE'S DEED | RATHBUN LEE R & ELIZABETH | US BANK NA | | | $50,317.00 | 127933 | 2015-03966 |
| 5 | 10/07/1996 | WARRANTY D | WARRANTY DEED | | | | | $61,000.00 | 86994 | 2459-610127 |
Payout Agreement
| No payout information available.. |