Property
Account |
| Property ID: | 10450 | Abbreviated Legal Description: | BARRONS LOT 3 BLK 10 & TRACT |
| Parcel Number: | 360729521003 | Agent Code: | |
| Type: | Real | | |
| Tax Area: | 1 - OL-140-F | Land Use Code | 11 |
| Open Space: | N | DFL | N |
| Historic Property: | N | Remodel Property: | N |
| Multi-Family Redevelopment: | N | | |
| Township: | 7 | Section: | 29 |
| Range: | 36 |
Location |
| Address: | 613 W BIRCH ST WA 99362 | Mapsco: | |
| Neighborhood: | F SFR | Map ID: | |
| Neighborhood CD: | 512011 |
Owner |
| Name: | EMIG CYNTHIA GAIL & CARL E | Owner ID: | 71797 |
| Mailing Address: | 613 W BIRCH ST WALLA WALLA, WA 99362 | % Ownership: | 100.0000000000% |
| | | Exemptions: | |
Taxes and Assessment Details
Values
| (+) Improvement Homesite Value: | + | $0 | |
| (+) Improvement Non-Homesite Value: | + | $155,370 | |
| (+) Land Homesite Value: | + | $0 | |
| (+) Land Non-Homesite Value: | + | $40,950 | |
| (+) Curr Use (HS): | + | $0 | $0 |
| (+) Curr Use (NHS): | + | $0 | $0 |
| | | -------------------------- | |
| (=) Market Value: | = | $196,320 | |
| (–) Productivity Loss: | – | $0 | |
| | | -------------------------- | |
| (=) Subtotal: | = | $196,320 | |
| (+) Senior Appraised Value: | + | $0 | |
| (+) Non-Senior Appraised Value: | + | $196,320 | |
| | | -------------------------- | |
| (=) Total Appraised Value: | = | $196,320 | |
| (–) Senior Exemption Loss: | – | $0 | |
| (–) Exemption Loss: | – | $0 | |
| | | -------------------------- | |
| (=) Taxable Value: | = | $196,320 | |
Taxing Jurisdiction
| Owner: | EMIG CYNTHIA GAIL & CARL E | | |
| % Ownership: | 100.0000000000% | | |
| Total Value: | $196,320 | | |
| Tax Area: | 1 - OL-140-F |
| CERFD | CURRENT EXPENSE REFUND 010 | 0.0000000000 | $196,320 | $196,320 | $0.00 | | |
| CURREXP | CURRENT EXPENSE 010 | 1.0175366760 | $196,320 | $196,320 | $199.76 | | |
| HUMNSERV | HUMAN SERVICES 119 | 0.0250000000 | $196,320 | $196,320 | $4.91 | | |
| SLDREL | SOLDIERS RELIEF 121 | 0.0155990005 | $196,320 | $196,320 | $3.06 | | |
| EMERGSER | EMS 147 | 0.3792580840 | $196,320 | $196,320 | $74.46 | | |
| EMSRFD | EMS REFUND 147 | 0.0000000000 | $196,320 | $196,320 | $0.00 | | |
| PORTRFD | PORT REFUND 640 | 0.0000000000 | $196,320 | $196,320 | $0.00 | | |
| PORTWWGEN | PORT OF WW 640 | 0.2460186015 | $196,320 | $196,320 | $48.30 | | |
| SD140BOND | SD #140 BOND 764 | 0.8342371393 | $196,320 | $196,320 | $163.78 | | |
| SD140GEN | SD #140 GENERAL 760 | 2.0646500647 | $196,320 | $196,320 | $405.33 | | |
| ST2 | STATE SCHOOL PART 2 600 | 0.8131451643 | $196,320 | $196,320 | $159.64 | | |
| STATESCHL | STATE SCHOOL 600 | 1.5158548041 | $196,320 | $196,320 | $297.59 | | |
| STREFUND | STATE REFUND LEVY 603 | 0.0000000000 | $196,320 | $196,320 | $0.00 | | |
| CWWBOND | C OF WW BOND 643 | 0.2760494372 | $196,320 | $196,320 | $54.19 | | |
| CWWGEN | CITY OF WW 631 | 1.6100204973 | $196,320 | $196,320 | $316.08 | | |
| CWWRFD | CITY OF WALLA WALLA REFUND 631 | 0.0000000000 | $196,320 | $196,320 | $0.00 | | |
| | Total Tax Rate: | 8.7973694689 | | | | | |
| | | | | Taxes w/Current Exemptions: | $1,727.10 | | |
| | | | | Taxes w/o Exemptions: | $1,727.10 | | |
Improvement / Building
| Improvement #1: | RESIDENTIAL | State Code: | 11 | 840.0 sqft | Value: | $155,370 |
| Exterior Wall: | SIDING | Foundation: | POST & PIER | | Heating/Cooling: | WARM & COOLED AIR | Number of Bathrooms: | 1 | | Number of Bedrooms: | 2 | Plumbing: | 6 | | Roof Covering: | COMP SHINGLE |   |   |
|
| | Type | Description | Class CD | Sub Class CD | Year Built | Area |
| | MA | Main Area | 1 | 25 | 1915 | 840.0 |
| | SI1 | SITE IMPROVEMENT | 1 | 25 | 1915 | 1.0 |
| | WDR | WOOD DECK W/ROOF | 1 | 25 | 1915 | 102.0 |
| | OSP | Open | 1 | 25 | 1915 | 212.0 |
| | UTST | Utility Storage Shed | 1 | 25 | 1915 | 260.0 |
| | DTG | Detached Garage | 1 | 25 | 1915 | 312.0 |
| | BNV | BUILDING NO VALUE | 1 | 25 | 1915 | 40.0 |
Sketch
Property Image
Land
| 1 | RES 1 | Converted: Residential | 0.1791 | 7800.00 | 0.00 | 0.00 | 1.00 | $40,950 | $0 |
Roll Value History
| 2026 | N/A | N/A | N/A | N/A | N/A |
| 2025 | $168,400 | $70,200 | $0 | $238,600 | $238,600 |
| 2024 | $168,400 | $70,200 | $0 | $238,600 | $238,600 |
| 2023 | $155,370 | $40,950 | $0 | $196,320 | $196,320 |
| 2022 | $155,370 | $40,950 | $0 | $196,320 | $196,320 |
| 2021 | $70,620 | $40,950 | $0 | $111,570 | $111,570 |
| 2020 | $58,850 | $40,950 | $0 | $99,800 | $99,800 |
| 2019 | $58,850 | $40,950 | $0 | $99,800 | $99,800 |
| 2018 | $56,050 | $40,950 | $0 | $97,000 | $97,000 |
| 2017 | $42,680 | $45,300 | $0 | $87,980 | $87,980 |
| 2016 | $38,800 | $45,300 | $0 | $84,100 | $84,100 |
| 2015 | $38,800 | $45,300 | $0 | $84,100 | $84,100 |
| 2014 | $38,800 | $45,300 | $0 | $84,100 | $84,100 |
| 2013 | $38,800 | $45,300 | $0 | $84,100 | $84,100 |
| 2012 | $55,300 | $45,300 | $0 | $0 | $0 |
| 2011 | $55,300 | $45,300 | $0 | $0 | $0 |
| 2010 | $55,300 | $45,300 | $0 | $0 | $0 |
| 2009 | $73,100 | $45,300 | $0 | $0 | $0 |
| 2008 | $73,100 | $45,300 | $0 | $0 | $0 |
| 2007 | $47,500 | $15,600 | $0 | $0 | $0 |
Deed and Sales History
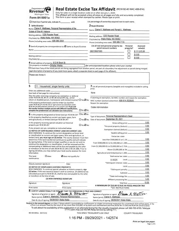
| 1 | 06/10/2022 | SWD | STATUTORY WARRANTY DEED | COLIN MIGUEL | EMIG CYNTHIA GAIL & CARL E | | | $239,000.00 | 144125 | 2022-04973 |
| 2 | 09/29/2021 | SWD | STATUTORY WARRANTY DEED | MATTHEWS RONALD L & ELAINE K | COLIN MIGUEL | | | $183,000.00 | 142575 | 2021-11917 |
| 3 | 09/29/2021 | DPR | DEED OF PERSONAL REPRESENTATIVE | HABERER ELNA M ESTATE OF | MATTHEWS RONALD L & ELAINE K | | | $0.00 | 142574 | 2021-11916 |
| 4 | 01/01/1978 | WARRANTY D | WARRANTY DEED | | | | | $0.00 | 0 | 1969-203134 |
Payout Agreement
| No payout information available.. |