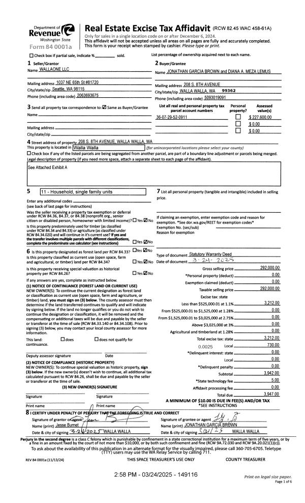
Property
Account |
| Property ID: | 10449 | Abbreviated Legal Description: | BARRONS S 50' OF E 50' OF LOT 1 BLK 9 |
| Parcel Number: | 360729520911 | Agent Code: | |
| Type: | Real | | |
| Tax Area: | 1 - OL-140-F | Land Use Code | 11 |
| Open Space: | N | DFL | N |
| Historic Property: | N | Remodel Property: | N |
| Multi-Family Redevelopment: | N | | |
| Township: | 7 | Section: | 29 |
| Range: | 36 |
Location |
| Address: | 208 S 8TH AVE WA 99362 | Mapsco: | |
| Neighborhood: | F SFR | Map ID: | |
| Neighborhood CD: | 512011 |
Owner |
| Name: | WALLAONE LLC | Owner ID: | 38953 |
| Mailing Address: | 1037 NE 65TH ST #81720 SEATTLE, WA 98115 | % Ownership: | 100.0000000000% |
| | | Exemptions: | |
Taxes and Assessment Details
Property Tax Information as of
02/21/2026
Click on "Statement Details" to expand or collapse a tax statement.
* Please enter a valid date ** Please enter a valid date *
Statement Details |
| | TOTAL: | $0.00 | $0.00 | $0.00 | $0.00 | $0.00 | $0.00 |
|
| | $0.00 | $0.00 | $0.00 | $0.00 | $0.00 | $0.00 |
Values
| (+) Improvement Homesite Value: | + | $0 | |
| (+) Improvement Non-Homesite Value: | + | $197,810 | |
| (+) Land Homesite Value: | + | $0 | |
| (+) Land Non-Homesite Value: | + | $13,650 | |
| (+) Curr Use (HS): | + | $0 | $0 |
| (+) Curr Use (NHS): | + | $0 | $0 |
| | | -------------------------- | |
| (=) Market Value: | = | $211,460 | |
| (–) Productivity Loss: | – | $0 | |
| | | -------------------------- | |
| (=) Subtotal: | = | $211,460 | |
| (+) Senior Appraised Value: | + | $0 | |
| (+) Non-Senior Appraised Value: | + | $211,460 | |
| | | -------------------------- | |
| (=) Total Appraised Value: | = | $211,460 | |
| (–) Senior Exemption Loss: | – | $0 | |
| (–) Exemption Loss: | – | $0 | |
| | | -------------------------- | |
| (=) Taxable Value: | = | $211,460 | |
Taxing Jurisdiction
| Owner: | WALLAONE LLC | | |
| % Ownership: | 100.0000000000% | | |
| Total Value: | $211,460 | | |
| Tax Area: | 1 - OL-140-F |
| CERFD | CURRENT EXPENSE REFUND 010 | 0.0000000000 | $211,460 | $211,460 | $0.00 | | |
| CURREXP | CURRENT EXPENSE 010 | 1.0175366760 | $211,460 | $211,460 | $215.17 | | |
| HUMNSERV | HUMAN SERVICES 119 | 0.0250000000 | $211,460 | $211,460 | $5.29 | | |
| SLDREL | SOLDIERS RELIEF 121 | 0.0155990005 | $211,460 | $211,460 | $3.30 | | |
| EMERGSER | EMS 147 | 0.3792580840 | $211,460 | $211,460 | $80.20 | | |
| EMSRFD | EMS REFUND 147 | 0.0000000000 | $211,460 | $211,460 | $0.00 | | |
| PORTRFD | PORT REFUND 640 | 0.0000000000 | $211,460 | $211,460 | $0.00 | | |
| PORTWWGEN | PORT OF WW 640 | 0.2460186015 | $211,460 | $211,460 | $52.02 | | |
| SD140BOND | SD #140 BOND 764 | 0.8342371393 | $211,460 | $211,460 | $176.41 | | |
| SD140GEN | SD #140 GENERAL 760 | 2.0646500647 | $211,460 | $211,460 | $436.59 | | |
| ST2 | STATE SCHOOL PART 2 600 | 0.8131451643 | $211,460 | $211,460 | $171.95 | | |
| STATESCHL | STATE SCHOOL 600 | 1.5158548041 | $211,460 | $211,460 | $320.54 | | |
| STREFUND | STATE REFUND LEVY 603 | 0.0000000000 | $211,460 | $211,460 | $0.00 | | |
| CWWBOND | C OF WW BOND 643 | 0.2760494372 | $211,460 | $211,460 | $58.37 | | |
| CWWGEN | CITY OF WW 631 | 1.6100204973 | $211,460 | $211,460 | $340.45 | | |
| CWWRFD | CITY OF WALLA WALLA REFUND 631 | 0.0000000000 | $211,460 | $211,460 | $0.00 | | |
| | Total Tax Rate: | 8.7973694689 | | | | | |
| | | | | Taxes w/Current Exemptions: | $1,860.29 | | |
| | | | | Taxes w/o Exemptions: | $1,860.29 | | |
Improvement / Building
| Improvement #1: | RESIDENTIAL | State Code: | 11 | 728.0 sqft | Value: | $197,810 |
| Exterior Wall: | VINYL | Heating/Cooling: | FORCED AIR | | Number of Bathrooms: | 1 | Number of Bedrooms: | 2 | | Plumbing: | 6 | Roof Covering: | COMP SHINGLE |
|
| | Type | Description | Class CD | Sub Class CD | Year Built | Area |
| | MA | Main Area | 1 | 25 | 1918 | 728.0 |
| | SI1 | SITE IMPROVEMENT | 1 | 25 | 1918 | 1.0 |
| | BASE | BASEMENT | 1 | 25 | 1918 | 546.0 |
| | RPS | PORCH W/STEPS,ROOF | 1 | 25 | 1918 | 50.0 |
| | CPC | COVERED CARPORT/PATIO | 1 | 25 | 1918 | 384.0 |
Sketch
Property Image
Land
| 1 | RES 1 | Converted: Residential | 0.0597 | 2600.00 | 0.00 | 0.00 | 1.00 | $13,650 | $0 |
Roll Value History
| 2026 | N/A | N/A | N/A | N/A | N/A |
| 2025 | $245,040 | $23,400 | $0 | $268,440 | $268,440 |
| 2024 | $204,200 | $23,400 | $0 | $227,600 | $227,600 |
| 2023 | $197,810 | $13,650 | $0 | $211,460 | $211,460 |
| 2022 | $172,010 | $13,650 | $0 | $185,660 | $185,660 |
| 2021 | $110,980 | $13,650 | $0 | $124,630 | $124,630 |
| 2020 | $73,980 | $13,650 | $0 | $87,630 | $87,630 |
| 2019 | $73,980 | $13,650 | $0 | $87,630 | $87,630 |
| 2018 | $70,460 | $13,650 | $0 | $84,110 | $84,110 |
| 2017 | $64,020 | $15,600 | $0 | $79,620 | $79,620 |
| 2016 | $58,200 | $15,600 | $0 | $73,800 | $73,800 |
| 2015 | $58,200 | $15,600 | $0 | $73,800 | $73,800 |
| 2014 | $58,200 | $15,600 | $0 | $73,800 | $73,800 |
| 2013 | $58,200 | $15,600 | $0 | $73,800 | $73,800 |
| 2012 | $58,200 | $15,600 | $0 | $0 | $0 |
| 2011 | $58,200 | $15,600 | $0 | $0 | $0 |
| 2010 | $71,200 | $15,600 | $0 | $0 | $0 |
| 2009 | $86,500 | $15,600 | $0 | $0 | $0 |
| 2008 | $86,500 | $15,600 | $0 | $0 | $0 |
| 2007 | $47,400 | $5,200 | $0 | $0 | $0 |
Deed and Sales History
| 1 | 03/24/2025 | SWD | STATUTORY WARRANTY DEED | WALLAONE LLC | BROWN JONATHAN GARCIA | | | $292,000.00 | 149116 | 2025-01544 |
| 2 | 07/28/2004 | QCD | QUIT CLAIM DEED | KONGORSKI, KENNETH D & CYNTHIA | WALLAONE LLC | | | | 105351 | 2004-08544 |
| 3 | 06/02/2004 | WARRANTY D | WARRANTY DEED | AMDOR, ROBERT C & KATHLEEN F | KONGORSKI, KENNETH D & CYNTHIA | | | $56,300.00 | 104905 | 2004-06007 |
| 4 | 07/29/1982 | WARRANTY D | WARRANTY DEED | | | | | $28,000.00 | 0 | 1338-205422 |
Payout Agreement
| No payout information available.. |