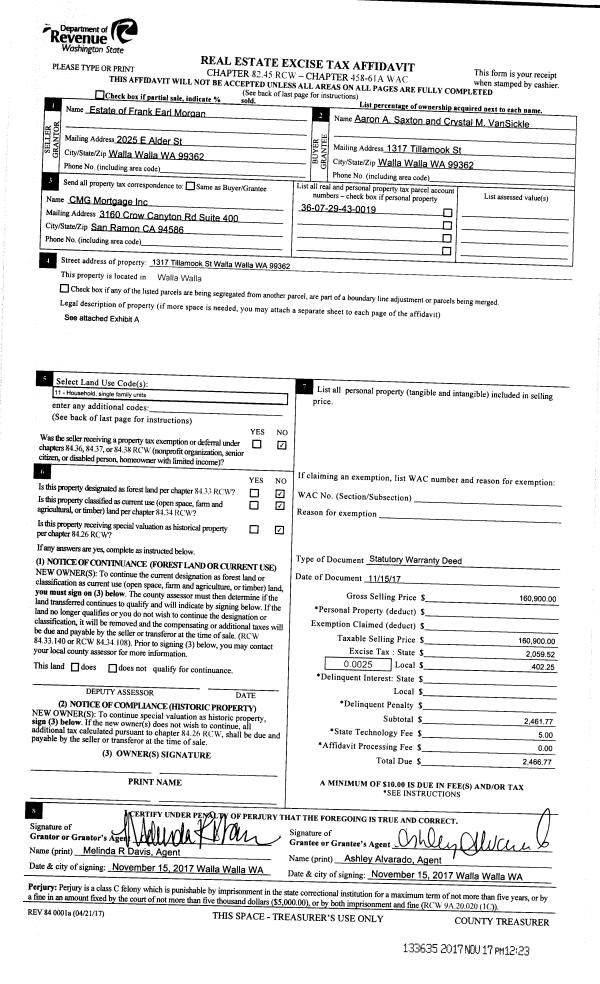
Property
Account |
| Property ID: | 10395 | Abbreviated Legal Description: | 29-7-36 TAX 104E |
| Parcel Number: | 360729430019 | Agent Code: | |
| Type: | Real | | |
| Tax Area: | 1 - OL-140-F | Land Use Code | 11 |
| Open Space: | N | DFL | N |
| Historic Property: | N | Remodel Property: | N |
| Multi-Family Redevelopment: | N | | |
| Township: | 7 | Section: | 29 |
| Range: | 36 |
Location |
| Address: | 1317 TILLAMOOK ST WA 99362 | Mapsco: | |
| Neighborhood: | A Res | Map ID: | |
| Neighborhood CD: | 613011 |
Owner |
| Name: | SAXTON AARON A | Owner ID: | 62139 |
| Mailing Address: | CRYSTAL M VANSICKLE 1317 TILLAMOOK ST WALLA WALLA, WA 99362 | % Ownership: | 100.0000000000% |
| | | Exemptions: | |
Taxes and Assessment Details
Property Tax Information as of
02/21/2026
Click on "Statement Details" to expand or collapse a tax statement.
* Please enter a valid date ** Please enter a valid date *
Statement Details |
| | TOTAL: | $0.00 | $0.00 | $0.00 | $0.00 | $0.00 | $0.00 |
|
| | $0.00 | $0.00 | $0.00 | $0.00 | $0.00 | $0.00 |
Values
| (+) Improvement Homesite Value: | + | $227,730 | |
| (+) Improvement Non-Homesite Value: | + | $0 | |
| (+) Land Homesite Value: | + | $70,200 | |
| (+) Land Non-Homesite Value: | + | $0 | |
| (+) Curr Use (HS): | + | $0 | $0 |
| (+) Curr Use (NHS): | + | $0 | $0 |
| | | -------------------------- | |
| (=) Market Value: | = | $297,930 | |
| (–) Productivity Loss: | – | $0 | |
| | | -------------------------- | |
| (=) Subtotal: | = | $297,930 | |
| (+) Senior Appraised Value: | + | $0 | |
| (+) Non-Senior Appraised Value: | + | $297,930 | |
| | | -------------------------- | |
| (=) Total Appraised Value: | = | $297,930 | |
| (–) Senior Exemption Loss: | – | $0 | |
| (–) Exemption Loss: | – | $0 | |
| | | -------------------------- | |
| (=) Taxable Value: | = | $297,930 | |
Taxing Jurisdiction
| Owner: | SAXTON AARON A | | |
| % Ownership: | 100.0000000000% | | |
| Total Value: | $297,930 | | |
| Tax Area: | 1 - OL-140-F |
| CERFD | CURRENT EXPENSE REFUND 010 | 0.0000000000 | $297,930 | $297,930 | $0.00 | | |
| CURREXP | CURRENT EXPENSE 010 | 1.0175366760 | $297,930 | $297,930 | $303.15 | | |
| HUMNSERV | HUMAN SERVICES 119 | 0.0250000000 | $297,930 | $297,930 | $7.45 | | |
| SLDREL | SOLDIERS RELIEF 121 | 0.0155990005 | $297,930 | $297,930 | $4.65 | | |
| EMERGSER | EMS 147 | 0.3792580840 | $297,930 | $297,930 | $112.99 | | |
| EMSRFD | EMS REFUND 147 | 0.0000000000 | $297,930 | $297,930 | $0.00 | | |
| PORTRFD | PORT REFUND 640 | 0.0000000000 | $297,930 | $297,930 | $0.00 | | |
| PORTWWGEN | PORT OF WW 640 | 0.2460186015 | $297,930 | $297,930 | $73.30 | | |
| SD140BOND | SD #140 BOND 764 | 0.8342371393 | $297,930 | $297,930 | $248.54 | | |
| SD140GEN | SD #140 GENERAL 760 | 2.0646500647 | $297,930 | $297,930 | $615.12 | | |
| ST2 | STATE SCHOOL PART 2 600 | 0.8131451643 | $297,930 | $297,930 | $242.26 | | |
| STATESCHL | STATE SCHOOL 600 | 1.5158548041 | $297,930 | $297,930 | $451.62 | | |
| STREFUND | STATE REFUND LEVY 603 | 0.0000000000 | $297,930 | $297,930 | $0.00 | | |
| CWWBOND | C OF WW BOND 643 | 0.2760494372 | $297,930 | $297,930 | $82.24 | | |
| CWWGEN | CITY OF WW 631 | 1.6100204973 | $297,930 | $297,930 | $479.67 | | |
| CWWRFD | CITY OF WALLA WALLA REFUND 631 | 0.0000000000 | $297,930 | $297,930 | $0.00 | | |
| | Total Tax Rate: | 8.7973694689 | | | | | |
| | | | | Taxes w/Current Exemptions: | $2,620.99 | | |
| | | | | Taxes w/o Exemptions: | $2,620.99 | | |
Improvement / Building
| Improvement #1: | RESIDENTIAL | State Code: | 11 | 823.0 sqft | Value: | $227,730 |
| Exterior Wall: | SIDING | Heating/Cooling: | FORCED AIR | | Number of Bathrooms: | 1 | Number of Bedrooms: | 2 | | Plumbing: | 7 | Roof Covering: | COMP SHINGLE |
|
| | Type | Description | Class CD | Sub Class CD | Year Built | Area |
| | MA | Main Area | 1 | 25 | 1950 | 823.0 |
| | SI1 | SITE IMPROVEMENT | 1 | 25 | 1950 | 1.0 |
| | BASE | BASEMENT | 1 | 25 | 1950 | 412.0 |
| | CPCS | CARPORT/SHED OR FLAT ROOF | 1 | 25 | 1950 | 206.0 |
| | RPS | PORCH W/STEPS,ROOF | 1 | 25 | 1950 | 42.0 |
Sketch
Property Image
Land
| 1 | RES 1 | Converted: Residential | 0.1791 | 7800.00 | 0.00 | 0.00 | 1.00 | $70,200 | $0 |
Roll Value History
| 2026 | N/A | N/A | N/A | N/A | N/A |
| 2025 | $223,980 | $85,800 | $0 | $309,780 | $309,780 |
| 2024 | $227,730 | $70,200 | $0 | $297,930 | $297,930 |
| 2023 | $227,730 | $70,200 | $0 | $297,930 | $297,930 |
| 2022 | $216,890 | $56,550 | $0 | $273,440 | $273,440 |
| 2021 | $139,930 | $56,550 | $0 | $196,480 | $196,480 |
| 2020 | $103,650 | $56,550 | $0 | $160,200 | $160,200 |
| 2019 | $103,650 | $56,550 | $0 | $160,200 | $160,200 |
| 2018 | $77,990 | $45,300 | $0 | $123,290 | $123,290 |
| 2017 | $77,990 | $45,300 | $0 | $123,290 | $123,290 |
| 2016 | $74,280 | $45,300 | $0 | $119,580 | $42,880 |
| 2015 | $74,280 | $45,300 | $0 | $119,580 | $42,880 |
| 2014 | $61,900 | $45,300 | $0 | $107,200 | $42,880 |
| 2013 | $61,900 | $45,300 | $0 | $107,200 | $107,200 |
| 2012 | $61,900 | $45,300 | $0 | $0 | $0 |
| 2011 | $61,900 | $45,300 | $0 | $0 | $0 |
| 2010 | $61,900 | $45,300 | $0 | $0 | $0 |
| 2009 | $73,800 | $45,300 | $0 | $0 | $0 |
| 2008 | $73,800 | $45,300 | $0 | $0 | $0 |
| 2007 | $56,900 | $15,600 | $0 | $0 | $0 |
Deed and Sales History
| 1 | 11/17/2017 | SWD | STATUTORY WARRANTY DEED | MORGAN FRANK E ESTATE OF | SAXTON AARON A | | | $160,900.00 | 133635 | 2017-09279 |
| 2 | 12/08/1980 | WARRANTY D | WARRANTY DEED | | | | | $36,500.00 | 0 | 1258-009702 |
Payout Agreement
| No payout information available.. |