Property
Account |
| Property ID: | 10393 | Abbreviated Legal Description: | 29-7-36 TAX 60P |
| Parcel Number: | 360729430014 | Agent Code: | |
| Type: | Real | | |
| Tax Area: | 1 - OL-140-F | Land Use Code | 11 |
| Open Space: | N | DFL | N |
| Historic Property: | N | Remodel Property: | N |
| Multi-Family Redevelopment: | N | | |
| Township: | 7 | Section: | 29 |
| Range: | 36 |
Location |
| Address: | 41 NATCHES ST WA 99362 | Mapsco: | |
| Neighborhood: | A Res | Map ID: | |
| Neighborhood CD: | 613011 |
Owner |
| Name: | DONALDSON RICHARD & CATHERINE | Owner ID: | 58031 |
| Mailing Address: | 41 NATCHES ST WALLA WALLA, WA 99362 | % Ownership: | 100.0000000000% |
| | | Exemptions: | |
Taxes and Assessment Details
Values
| (+) Improvement Homesite Value: | + | $0 | |
| (+) Improvement Non-Homesite Value: | + | $340,060 | |
| (+) Land Homesite Value: | + | $0 | |
| (+) Land Non-Homesite Value: | + | $102,870 | |
| (+) Curr Use (HS): | + | $0 | $0 |
| (+) Curr Use (NHS): | + | $0 | $0 |
| | | -------------------------- | |
| (=) Market Value: | = | $442,930 | |
| (–) Productivity Loss: | – | $0 | |
| | | -------------------------- | |
| (=) Subtotal: | = | $442,930 | |
| (+) Senior Appraised Value: | + | $0 | |
| (+) Non-Senior Appraised Value: | + | $442,930 | |
| | | -------------------------- | |
| (=) Total Appraised Value: | = | $442,930 | |
| (–) Senior Exemption Loss: | – | $0 | |
| (–) Exemption Loss: | – | $0 | |
| | | -------------------------- | |
| (=) Taxable Value: | = | $442,930 | |
Taxing Jurisdiction
| Owner: | DONALDSON RICHARD & CATHERINE | | |
| % Ownership: | 100.0000000000% | | |
| Total Value: | $442,930 | | |
| Tax Area: | 1 - OL-140-F |
| CERFD | CURRENT EXPENSE REFUND 010 | 0.0000000000 | $442,930 | $442,930 | $0.00 | | |
| CURREXP | CURRENT EXPENSE 010 | 1.0175366760 | $442,930 | $442,930 | $450.70 | | |
| HUMNSERV | HUMAN SERVICES 119 | 0.0250000000 | $442,930 | $442,930 | $11.07 | | |
| SLDREL | SOLDIERS RELIEF 121 | 0.0155990005 | $442,930 | $442,930 | $6.91 | | |
| EMERGSER | EMS 147 | 0.3792580840 | $442,930 | $442,930 | $167.98 | | |
| EMSRFD | EMS REFUND 147 | 0.0000000000 | $442,930 | $442,930 | $0.00 | | |
| PORTRFD | PORT REFUND 640 | 0.0000000000 | $442,930 | $442,930 | $0.00 | | |
| PORTWWGEN | PORT OF WW 640 | 0.2460186015 | $442,930 | $442,930 | $108.97 | | |
| SD140BOND | SD #140 BOND 764 | 0.8342371393 | $442,930 | $442,930 | $369.51 | | |
| SD140GEN | SD #140 GENERAL 760 | 2.0646500647 | $442,930 | $442,930 | $914.50 | | |
| ST2 | STATE SCHOOL PART 2 600 | 0.8131451643 | $442,930 | $442,930 | $360.17 | | |
| STATESCHL | STATE SCHOOL 600 | 1.5158548041 | $442,930 | $442,930 | $671.42 | | |
| STREFUND | STATE REFUND LEVY 603 | 0.0000000000 | $442,930 | $442,930 | $0.00 | | |
| CWWBOND | C OF WW BOND 643 | 0.2760494372 | $442,930 | $442,930 | $122.27 | | |
| CWWGEN | CITY OF WW 631 | 1.6100204973 | $442,930 | $442,930 | $713.13 | | |
| CWWRFD | CITY OF WALLA WALLA REFUND 631 | 0.0000000000 | $442,930 | $442,930 | $0.00 | | |
| | Total Tax Rate: | 8.7973694689 | | | | | |
| | | | | Taxes w/Current Exemptions: | $3,896.63 | | |
| | | | | Taxes w/o Exemptions: | $3,896.63 | | |
Improvement / Building
| Improvement #1: | RESIDENTIAL | State Code: | 11 | 1332.0 sqft | Value: | $340,060 |
| Exterior Wall: | PLYWOOD | Heating/Cooling: | WARM & COOLED AIR | | Number of Bathrooms: | 3 | Number of Bedrooms: | 3 | | Plumbing: | 13 | Roof Covering: | COMP SHINGLE |
|
| | Type | Description | Class CD | Sub Class CD | Year Built | Area |
| | MA | Main Area | 1 | 30 | 1963 | 1332.0 |
| | SI1 | SITE IMPROVEMENT | 1 | 30 | 1963 | 3.0 |
| | BASE | BASEMENT | 1 | 30 | 1963 | 1332.0 |
| | BPF | BASEMENT -PARTITIONED FINISH | 1 | 30 | 1963 | 1100.0 |
| | ATG | Attached Garage | 1 | 30 | 1963 | 583.0 |
| | RPO | OPEN PORCH W/ROOF | 1 | 30 | 1963 | 8.0 |
| | WOD | Wood Deck | 1 | 30 | 1963 | 132.0 |
| | D2F | Double 2 Story Fireplace | 1 | 30 | 1963 | 1.0 |
| | UTST | Utility Storage Shed | 1 | 30 | 1963 | 66.0 |
| | UTST | Utility Storage Shed | 1 | 30 | 1963 | 120.0 |
Sketch
Property Image
Land
| 1 | RES 1 | Converted: Residential | 0.6400 | 27878.00 | 0.00 | 0.00 | 1.00 | $102,870 | $0 |
Roll Value History
| 2026 | N/A | N/A | N/A | N/A | N/A |
| 2025 | $321,780 | $126,010 | $0 | $447,790 | $447,790 |
| 2024 | $340,060 | $102,870 | $0 | $442,930 | $442,930 |
| 2023 | $340,060 | $102,870 | $0 | $442,930 | $442,930 |
| 2022 | $283,390 | $81,680 | $0 | $365,070 | $365,070 |
| 2021 | $246,420 | $81,680 | $0 | $328,100 | $328,100 |
| 2020 | $224,020 | $81,680 | $0 | $305,700 | $305,700 |
| 2019 | $224,020 | $81,680 | $0 | $305,700 | $305,700 |
| 2018 | $219,860 | $62,300 | $0 | $282,160 | $282,160 |
| 2017 | $219,860 | $62,300 | $0 | $282,160 | $282,160 |
| 2016 | $191,180 | $62,300 | $0 | $253,480 | $253,480 |
| 2015 | $173,800 | $62,300 | $0 | $236,100 | $236,100 |
| 2014 | $173,800 | $62,300 | $0 | $236,100 | $236,100 |
| 2013 | $173,800 | $62,300 | $0 | $236,100 | $236,100 |
| 2012 | $173,800 | $62,300 | $0 | $0 | $0 |
| 2011 | $173,800 | $62,300 | $0 | $0 | $0 |
| 2010 | $173,800 | $62,300 | $0 | $0 | $0 |
| 2009 | $200,000 | $62,300 | $0 | $0 | $0 |
| 2008 | $200,000 | $62,300 | $0 | $0 | $0 |
| 2007 | $161,400 | $39,800 | $0 | $0 | $0 |
Deed and Sales History
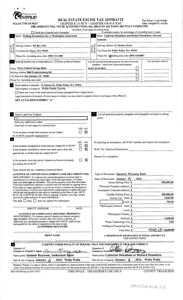
| 1 | 01/06/2016 | SWD | STATUTORY WARRANTY DEED | FIELDING INVESTMENTS INC | DONALDSON RICHARD & CATHERINE | | | $300,000.00 | 129462 | 2016-00106 |
| 2 | 07/25/2014 | TRUSTEES D | TRUSTEE'S DEED | JUTZ PATRICK J | FIELDING INVESTMENTS INC | | | $176,595.00 | 126315 | 2014-05257 |
| 3 | 04/13/2007 | QCD | QUIT CLAIM DEED | JUTZ, PATRICK J | JUTZ, PATRICK J | | | | 112611 | 2007-04134 |
| 4 | 07/28/2003 | WARRANTY D | WARRANTY DEED | GONZALES, IRENE | JUTZ, PATRICK J | | | $259,900.00 | 102656 | 2003-11174 |
| 5 | 03/17/2000 | WARRANTY D | WARRANTY DEED | | | | | $210,000.00 | 94726 | 2960-002627 |
Payout Agreement
| No payout information available.. |