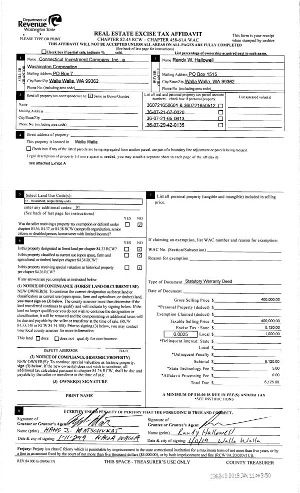
Property
Account |
| Property ID: | 10384 | Abbreviated Legal Description: | 29-7-36 S 1/2 OF TAX 125A & 125 |
| Parcel Number: | 360729420135 | Agent Code: | |
| Type: | Real | | |
| Tax Area: | 1 - OL-140-F | Land Use Code | 11 |
| Open Space: | N | DFL | N |
| Historic Property: | N | Remodel Property: | N |
| Multi-Family Redevelopment: | N | | |
| Township: | 7 | Section: | 29 |
| Range: | 36 |
Location |
| Address: | 1070 ST JOHN ST WA 99362 | Mapsco: | |
| Neighborhood: | A Res | Map ID: | |
| Neighborhood CD: | 613011 |
Owner |
| Name: | HALLOWELL JOSH | Owner ID: | 66139 |
| Mailing Address: | 225 WOODLAND AVE WALLA WALLA, WA 99362 | % Ownership: | 100.0000000000% |
| | | Exemptions: | |
Taxes and Assessment Details
Property Tax Information as of
02/21/2026
Click on "Statement Details" to expand or collapse a tax statement.
* Please enter a valid date ** Please enter a valid date *
Statement Details |
| | TOTAL: | $0.00 | $0.00 | $0.00 | $0.00 | $0.00 | $0.00 |
|
| | $0.00 | $0.00 | $0.00 | $0.00 | $0.00 | $0.00 |
Values
| (+) Improvement Homesite Value: | + | N/A | |
| (+) Improvement Non-Homesite Value: | + | N/A | |
| (+) Land Homesite Value: | + | N/A | |
| (+) Land Non-Homesite Value: | + | N/A | Ag / Timber Use Value |
| (+) Curr Use (HS): | + | N/A | N/A |
| (+) Curr Use (NHS): | + | N/A | N/A |
| | | -------------------------- | |
| (=) Market Value: | = | N/A | |
| (–) Productivity Loss: | – | N/A | |
| | | -------------------------- | |
| (=) Subtotal: | = | N/A | |
| (+) Senior Appraised Value: | + | N/A | |
| (+) Non-Senior Appraised Value: | + | N/A | |
| | | -------------------------- | |
| (=) Total Appraised Value: | = | N/A | |
| (–) Senior Exemption Loss: | – | N/A | |
| (–) Exemption Loss: | – | N/A | |
| | | -------------------------- | |
| (=) Taxable Value: | = | N/A | |
Taxing Jurisdiction
| Owner: | HALLOWELL JOSH | | |
| % Ownership: | 100.0000000000% | | |
| Total Value: | N/A | | |
| Tax Area: | 1 - OL-140-F |
| CERFD | CURRENT EXPENSE REFUND 010 | N/A | N/A | N/A | N/A | | |
| CURREXP | CURRENT EXPENSE 010 | N/A | N/A | N/A | N/A | | |
| HUMNSERV | HUMAN SERVICES 119 | N/A | N/A | N/A | N/A | | |
| SLDREL | SOLDIERS RELIEF 121 | N/A | N/A | N/A | N/A | | |
| EMERGSER | EMS 147 | N/A | N/A | N/A | N/A | | |
| EMSRFD | EMS REFUND 147 | N/A | N/A | N/A | N/A | | |
| PORTRFD | PORT REFUND 640 | N/A | N/A | N/A | N/A | | |
| PORTWWGEN | PORT OF WW 640 | N/A | N/A | N/A | N/A | | |
| SD140BOND | SD #140 BOND 764 | N/A | N/A | N/A | N/A | | |
| SD140GEN | SD #140 GENERAL 760 | N/A | N/A | N/A | N/A | | |
| ST2 | STATE SCHOOL PART 2 600 | N/A | N/A | N/A | N/A | | |
| STATESCHL | STATE SCHOOL 600 | N/A | N/A | N/A | N/A | | |
| STREFUND | STATE REFUND LEVY 603 | N/A | N/A | N/A | N/A | | |
| CWWBOND | C OF WW BOND 643 | N/A | N/A | N/A | N/A | | |
| CWWGEN | CITY OF WW 631 | N/A | N/A | N/A | N/A | | |
| CWWRFD | CITY OF WALLA WALLA REFUND 631 | N/A | N/A | N/A | N/A | | |
| | Total Tax Rate: | N/A | | | | | |
| | | | | Taxes w/Current Exemptions: | N/A | | |
| | | | | Taxes w/o Exemptions: | N/A | | |
Improvement / Building
| Improvement #1: | RESIDENTIAL | State Code: | 11 | 1058.0 sqft | Value: | N/A |
| Exterior Wall: | SIDING | Heating/Cooling: | FLOOR FURNACE | | Number of Bathrooms: | 1 | Number of Bedrooms: | 3 | | Plumbing: | 7 | Roof Covering: | COMP SHINGLE |
|
| | Type | Description | Class CD | Sub Class CD | Year Built | Area |
| | MA | Main Area | 1 | 25 | 1950 | 1058.0 |
| | SI1 | SITE IMPROVEMENT | 1 | 25 | 1950 | 1.0 |
| | DTG | Detached Garage | 1 | 25 | 1950 | 280.0 |
| | OSP | Open | 1 | 25 | 1950 | 12.0 |
| | WDR | WOOD DECK W/ROOF | 1 | 25 | 1950 | 78.0 |
Sketch
Property Image
Land
| 1 | RES 1 | Converted: Residential | 0.1492 | 6500.00 | 0.00 | 0.00 | 1.00 | N/A | N/A |
Roll Value History
| 2026 | N/A | N/A | N/A | N/A | N/A |
| 2025 | $130,000 | $71,500 | $0 | $201,500 | $201,500 |
| 2024 | $71,840 | $58,500 | $0 | $130,340 | $130,340 |
| 2023 | $71,840 | $58,500 | $0 | $130,340 | $130,340 |
| 2022 | $71,840 | $47,130 | $0 | $118,970 | $118,970 |
| 2021 | $59,870 | $47,130 | $0 | $107,000 | $107,000 |
| 2020 | $59,870 | $47,130 | $0 | $107,000 | $107,000 |
| 2019 | $59,870 | $47,130 | $0 | $107,000 | $107,000 |
| 2018 | $93,690 | $39,000 | $0 | $132,690 | $132,690 |
| 2017 | $89,230 | $39,000 | $0 | $128,230 | $128,230 |
| 2016 | $74,360 | $39,000 | $0 | $113,360 | $113,360 |
| 2015 | $74,360 | $39,000 | $0 | $113,360 | $113,360 |
| 2014 | $67,600 | $39,000 | $0 | $106,600 | $106,600 |
| 2013 | $67,600 | $39,000 | $0 | $106,600 | $106,600 |
| 2012 | $67,600 | $39,000 | $0 | $0 | $0 |
| 2011 | $67,600 | $39,000 | $0 | $0 | $0 |
| 2010 | $67,600 | $39,000 | $0 | $0 | $0 |
| 2009 | $79,400 | $39,000 | $0 | $0 | $0 |
| 2008 | $79,400 | $39,000 | $0 | $0 | $0 |
| 2007 | $59,300 | $13,000 | $0 | $0 | $0 |
Deed and Sales History
| 1 | 10/23/2019 | SWD | STATUTORY WARRANTY DEED | HALLOWELL RANDY W | HALLOWELL JOSH | | | $64,000.00 | 137924 | 2019-08516 |
| 2 | 01/11/2019 | SWD | STATUTORY WARRANTY DEED | CONNECTICUT INVESTMENT CO | HALLOWELL RANDY W | | 5-PARCELS | $400,000.00 | 136243 | 2019-00259 |
|   | |
| 3 | 07/30/1970 | WARRANTY D | WARRANTY DEED | | | | | $4,500.00 | 0 | 3370-509250 |
Payout Agreement
| No payout information available.. |