Property
Account |
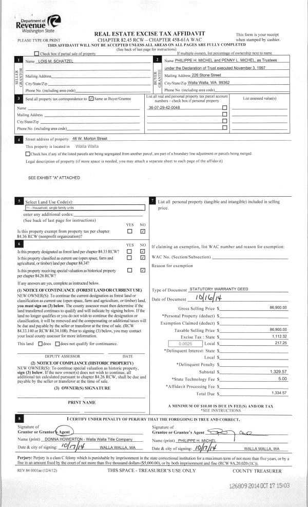
| Property ID: | 10353 | Abbreviated Legal Description: | 29-7-36 TAX 175B |
| Parcel Number: | 360729420048 | Agent Code: | |
| Type: | Real | | |
| Tax Area: | 1 - OL-140-F | Land Use Code | 11 |
| Open Space: | N | DFL | N |
| Historic Property: | N | Remodel Property: | N |
| Multi-Family Redevelopment: | N | | |
| Township: | 7 | Section: | 29 |
| Range: | 36 |
Location |
| Address: | 49 W MORTON ST WA 99362 | Mapsco: | |
| Neighborhood: | A Res | Map ID: | |
| Neighborhood CD: | 613011 |
Owner |
| Name: | ALTERMANN SUSANNE | Owner ID: | 56827 |
| Mailing Address: | 1982 WALLULA AVE WALLA WALLA, WA 99362 | % Ownership: | 100.0000000000% |
| | | Exemptions: | |
Taxes and Assessment Details
Property Tax Information as of
02/21/2026
Click on "Statement Details" to expand or collapse a tax statement.
* Please enter a valid date ** Please enter a valid date *
Statement Details |
| | TOTAL: | $0.00 | $0.00 | $0.00 | $0.00 | $0.00 | $0.00 |
|
| | $0.00 | $0.00 | $0.00 | $0.00 | $0.00 | $0.00 |
Values
| (+) Improvement Homesite Value: | + | $0 | |
| (+) Improvement Non-Homesite Value: | + | $238,290 | |
| (+) Land Homesite Value: | + | $0 | |
| (+) Land Non-Homesite Value: | + | $66,780 | |
| (+) Curr Use (HS): | + | $0 | $0 |
| (+) Curr Use (NHS): | + | $0 | $0 |
| | | -------------------------- | |
| (=) Market Value: | = | $305,070 | |
| (–) Productivity Loss: | – | $0 | |
| | | -------------------------- | |
| (=) Subtotal: | = | $305,070 | |
| (+) Senior Appraised Value: | + | $0 | |
| (+) Non-Senior Appraised Value: | + | $305,070 | |
| | | -------------------------- | |
| (=) Total Appraised Value: | = | $305,070 | |
| (–) Senior Exemption Loss: | – | $0 | |
| (–) Exemption Loss: | – | $0 | |
| | | -------------------------- | |
| (=) Taxable Value: | = | $305,070 | |
Taxing Jurisdiction
| Owner: | ALTERMANN SUSANNE | | |
| % Ownership: | 100.0000000000% | | |
| Total Value: | $305,070 | | |
| Tax Area: | 1 - OL-140-F |
| CERFD | CURRENT EXPENSE REFUND 010 | 0.0000000000 | $305,070 | $305,070 | $0.00 | | |
| CURREXP | CURRENT EXPENSE 010 | 1.0175366760 | $305,070 | $305,070 | $310.42 | | |
| HUMNSERV | HUMAN SERVICES 119 | 0.0250000000 | $305,070 | $305,070 | $7.63 | | |
| SLDREL | SOLDIERS RELIEF 121 | 0.0155990005 | $305,070 | $305,070 | $4.76 | | |
| EMERGSER | EMS 147 | 0.3792580840 | $305,070 | $305,070 | $115.70 | | |
| EMSRFD | EMS REFUND 147 | 0.0000000000 | $305,070 | $305,070 | $0.00 | | |
| PORTRFD | PORT REFUND 640 | 0.0000000000 | $305,070 | $305,070 | $0.00 | | |
| PORTWWGEN | PORT OF WW 640 | 0.2460186015 | $305,070 | $305,070 | $75.05 | | |
| SD140BOND | SD #140 BOND 764 | 0.8342371393 | $305,070 | $305,070 | $254.50 | | |
| SD140GEN | SD #140 GENERAL 760 | 2.0646500647 | $305,070 | $305,070 | $629.86 | | |
| ST2 | STATE SCHOOL PART 2 600 | 0.8131451643 | $305,070 | $305,070 | $248.07 | | |
| STATESCHL | STATE SCHOOL 600 | 1.5158548041 | $305,070 | $305,070 | $462.44 | | |
| STREFUND | STATE REFUND LEVY 603 | 0.0000000000 | $305,070 | $305,070 | $0.00 | | |
| CWWBOND | C OF WW BOND 643 | 0.2760494372 | $305,070 | $305,070 | $84.21 | | |
| CWWGEN | CITY OF WW 631 | 1.6100204973 | $305,070 | $305,070 | $491.17 | | |
| CWWRFD | CITY OF WALLA WALLA REFUND 631 | 0.0000000000 | $305,070 | $305,070 | $0.00 | | |
| | Total Tax Rate: | 8.7973694689 | | | | | |
| | | | | Taxes w/Current Exemptions: | $2,683.81 | | |
| | | | | Taxes w/o Exemptions: | $2,683.81 | | |
Improvement / Building
| Improvement #1: | RESIDENTIAL | State Code: | 11 | 1186.0 sqft | Value: | $238,290 |
| Exterior Wall: | SIDING | Heating/Cooling: | FORCED AIR | | Number of Bathrooms: | 1 | Number of Bedrooms: | 2 | | Plumbing: | 8 | Roof Covering: | COMP SHINGLE |
|
| | Type | Description | Class CD | Sub Class CD | Year Built | Area |
| | MA | Main Area | 1 | 25 | 1950 | 1186.0 |
| | SI1 | SITE IMPROVEMENT | 1 | 25 | 1950 | 1.0 |
| | ATG | Attached Garage | 1 | 25 | 1950 | 276.0 |
| | RPS | PORCH W/STEPS,ROOF | 1 | 25 | 1950 | 96.0 |
| | RPS | PORCH W/STEPS,ROOF | 1 | 25 | 1950 | 25.0 |
Sketch
Property Image
Land
| 1 | RES 1 | Converted: Residential | 0.1703 | 7420.00 | 0.00 | 0.00 | 1.00 | $66,780 | $0 |
Roll Value History
| 2026 | N/A | N/A | N/A | N/A | N/A |
| 2025 | $229,590 | $81,620 | $0 | $311,210 | $311,210 |
| 2024 | $238,290 | $66,780 | $0 | $305,070 | $305,070 |
| 2023 | $238,290 | $66,780 | $0 | $305,070 | $305,070 |
| 2022 | $198,580 | $53,800 | $0 | $252,380 | $252,380 |
| 2021 | $165,480 | $53,800 | $0 | $219,280 | $219,280 |
| 2020 | $118,200 | $53,800 | $0 | $172,000 | $172,000 |
| 2019 | $118,200 | $53,800 | $0 | $172,000 | $172,000 |
| 2018 | $102,210 | $44,500 | $0 | $146,710 | $146,710 |
| 2017 | $97,340 | $44,500 | $0 | $141,840 | $141,840 |
| 2016 | $81,120 | $44,500 | $0 | $125,620 | $125,620 |
| 2015 | $81,120 | $44,500 | $0 | $125,620 | $125,620 |
| 2014 | $67,600 | $44,500 | $0 | $112,100 | $112,100 |
| 2013 | $67,600 | $44,500 | $0 | $112,100 | $112,100 |
| 2012 | $67,600 | $44,500 | $0 | $0 | $0 |
| 2011 | $67,600 | $44,500 | $0 | $0 | $0 |
| 2010 | $67,600 | $44,500 | $0 | $0 | $0 |
| 2009 | $80,000 | $44,500 | $0 | $0 | $0 |
| 2008 | $80,000 | $44,500 | $0 | $0 | $0 |
| 2007 | $70,100 | $14,800 | $0 | $0 | $0 |
Deed and Sales History
| 1 | 06/19/2015 | SWD | STATUTORY WARRANTY DEED | MICHEL PHILIPPE H & PENNY L | ALTERMANN SUSANNE | | | $128,000.00 | 128203 | 2015-05182 |
| 2 | 10/17/2014 | SWD | STATUTORY WARRANTY DEED | SCHATZEL LOIS | MICHEL PHILIPPE H & PENNY L | | | $86,900.00 | 126809 | 2014-07615 |
| 3 | 01/01/1955 | WARRANTY D | WARRANTY DEED | | | | | $0.00 | 0 | 2730-379066 |
Payout Agreement
| No payout information available.. |