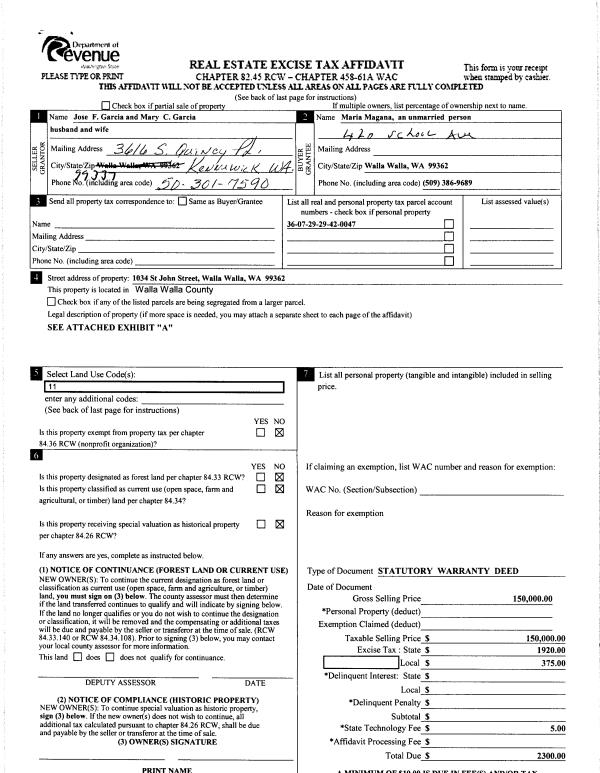
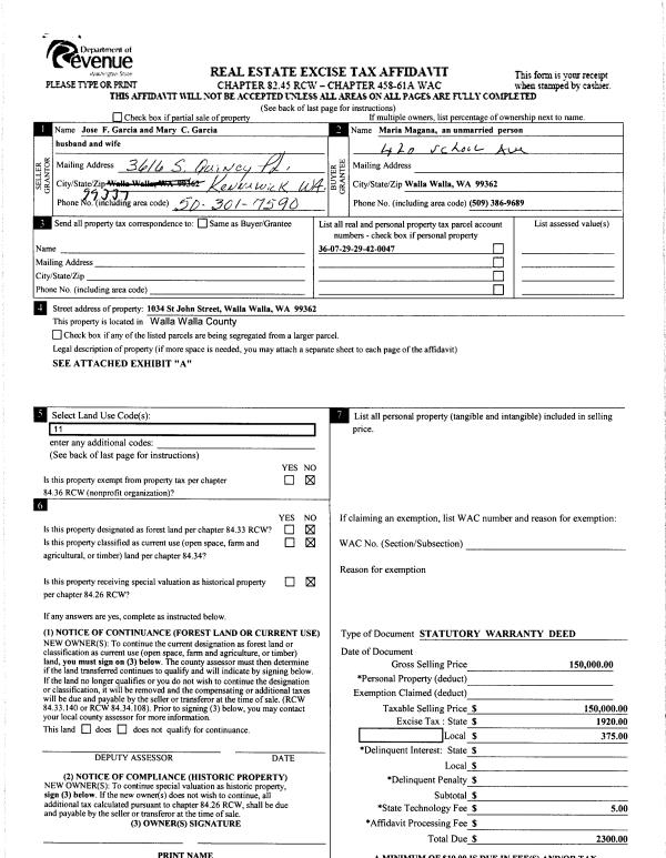
Property
Account |
| Property ID: | 10352 | Abbreviated Legal Description: | 29-7-36 TAX 175A |
| Parcel Number: | 360729420047 | Agent Code: | |
| Type: | Real | | |
| Tax Area: | 1 - OL-140-F | Land Use Code | 11 |
| Open Space: | N | DFL | N |
| Historic Property: | N | Remodel Property: | N |
| Multi-Family Redevelopment: | N | | |
| Township: | 7 | Section: | 29 |
| Range: | 36 |
Location |
| Address: | 1034 ST JOHN ST WA 99362 | Mapsco: | |
| Neighborhood: | A Res | Map ID: | |
| Neighborhood CD: | 613011 |
Owner |
| Name: | MAGANA MARIA | Owner ID: | 55827 |
| Mailing Address: | 1034 ST JOHN ST WALLA WALLA, WA 99362 | % Ownership: | 100.0000000000% |
| | | Exemptions: | |
Taxes and Assessment Details
Property Tax Information as of
02/21/2026
Click on "Statement Details" to expand or collapse a tax statement.
* Please enter a valid date ** Please enter a valid date *
Statement Details |
| | TOTAL: | $0.00 | $0.00 | $0.00 | $0.00 | $0.00 | $0.00 |
|
| | $0.00 | $0.00 | $0.00 | $0.00 | $0.00 | $0.00 |
Values
| (+) Improvement Homesite Value: | + | $0 | |
| (+) Improvement Non-Homesite Value: | + | $374,150 | |
| (+) Land Homesite Value: | + | $0 | |
| (+) Land Non-Homesite Value: | + | $58,500 | |
| (+) Curr Use (HS): | + | $0 | $0 |
| (+) Curr Use (NHS): | + | $0 | $0 |
| | | -------------------------- | |
| (=) Market Value: | = | $432,650 | |
| (–) Productivity Loss: | – | $0 | |
| | | -------------------------- | |
| (=) Subtotal: | = | $432,650 | |
| (+) Senior Appraised Value: | + | $0 | |
| (+) Non-Senior Appraised Value: | + | $432,650 | |
| | | -------------------------- | |
| (=) Total Appraised Value: | = | $432,650 | |
| (–) Senior Exemption Loss: | – | $0 | |
| (–) Exemption Loss: | – | $0 | |
| | | -------------------------- | |
| (=) Taxable Value: | = | $432,650 | |
Taxing Jurisdiction
| Owner: | MAGANA MARIA | | |
| % Ownership: | 100.0000000000% | | |
| Total Value: | $432,650 | | |
| Tax Area: | 1 - OL-140-F |
| CERFD | CURRENT EXPENSE REFUND 010 | 0.0000000000 | $432,650 | $432,650 | $0.00 | | |
| CURREXP | CURRENT EXPENSE 010 | 1.0175366760 | $432,650 | $432,650 | $440.24 | | |
| HUMNSERV | HUMAN SERVICES 119 | 0.0250000000 | $432,650 | $432,650 | $10.82 | | |
| SLDREL | SOLDIERS RELIEF 121 | 0.0155990005 | $432,650 | $432,650 | $6.75 | | |
| EMERGSER | EMS 147 | 0.3792580840 | $432,650 | $432,650 | $164.09 | | |
| EMSRFD | EMS REFUND 147 | 0.0000000000 | $432,650 | $432,650 | $0.00 | | |
| PORTRFD | PORT REFUND 640 | 0.0000000000 | $432,650 | $432,650 | $0.00 | | |
| PORTWWGEN | PORT OF WW 640 | 0.2460186015 | $432,650 | $432,650 | $106.44 | | |
| SD140BOND | SD #140 BOND 764 | 0.8342371393 | $432,650 | $432,650 | $360.93 | | |
| SD140GEN | SD #140 GENERAL 760 | 2.0646500647 | $432,650 | $432,650 | $893.27 | | |
| ST2 | STATE SCHOOL PART 2 600 | 0.8131451643 | $432,650 | $432,650 | $351.81 | | |
| STATESCHL | STATE SCHOOL 600 | 1.5158548041 | $432,650 | $432,650 | $655.83 | | |
| STREFUND | STATE REFUND LEVY 603 | 0.0000000000 | $432,650 | $432,650 | $0.00 | | |
| CWWBOND | C OF WW BOND 643 | 0.2760494372 | $432,650 | $432,650 | $119.43 | | |
| CWWGEN | CITY OF WW 631 | 1.6100204973 | $432,650 | $432,650 | $696.58 | | |
| CWWRFD | CITY OF WALLA WALLA REFUND 631 | 0.0000000000 | $432,650 | $432,650 | $0.00 | | |
| | Total Tax Rate: | 8.7973694689 | | | | | |
| | | | | Taxes w/Current Exemptions: | $3,806.19 | | |
| | | | | Taxes w/o Exemptions: | $3,806.19 | | |
Improvement / Building
| Improvement #1: | RESIDENTIAL | State Code: | 11 | 1366.0 sqft | Value: | $374,150 |
| Exterior Wall: | PLYWOOD | Heating/Cooling: | WARM & COOLED AIR | | Number of Bathrooms: | 1 | Number of Bedrooms: | 2 | | Plumbing: | 7 | Roof Covering: | COMP SHINGLE |
|
| | Type | Description | Class CD | Sub Class CD | Year Built | Area |
| | MA | Main Area | 1 | 25 | 1950 | 1366.0 |
| | SI1 | SITE IMPROVEMENT | 1 | 25 | 1950 | 1.5 |
| | BASE | BASEMENT | 1 | 25 | 1950 | 822.0 |
| | DTG | Detached Garage | 1 | 25 | 1950 | 576.0 |
| | RPS | PORCH W/STEPS,ROOF | 1 | 25 | 1950 | 90.0 |
| | WDR | WOOD DECK W/ROOF | 1 | 25 | 1950 | 180.0 |
Sketch
Property Image
Land
| 1 | RES 1 | Converted: Residential | 0.1492 | 6500.00 | 0.00 | 0.00 | 1.00 | $58,500 | $0 |
Roll Value History
| 2026 | N/A | N/A | N/A | N/A | N/A |
| 2025 | $299,930 | $71,500 | $0 | $371,430 | $371,430 |
| 2024 | $374,150 | $58,500 | $0 | $432,650 | $432,650 |
| 2023 | $374,150 | $58,500 | $0 | $432,650 | $432,650 |
| 2022 | $356,330 | $47,130 | $0 | $403,460 | $403,460 |
| 2021 | $197,960 | $47,130 | $0 | $245,090 | $245,090 |
| 2020 | $158,370 | $47,130 | $0 | $205,500 | $205,500 |
| 2019 | $158,370 | $47,130 | $0 | $205,500 | $205,500 |
| 2018 | $123,240 | $39,000 | $0 | $162,240 | $162,240 |
| 2017 | $123,240 | $39,000 | $0 | $162,240 | $162,240 |
| 2016 | $112,040 | $39,000 | $0 | $151,040 | $151,040 |
| 2015 | $112,040 | $39,000 | $0 | $151,040 | $151,040 |
| 2014 | $106,700 | $39,000 | $0 | $145,700 | $145,700 |
| 2013 | $106,700 | $39,000 | $0 | $145,700 | $145,700 |
| 2012 | $106,700 | $39,000 | $0 | $0 | $0 |
| 2011 | $106,700 | $39,000 | $0 | $0 | $0 |
| 2010 | $106,700 | $39,000 | $0 | $0 | $0 |
| 2009 | $122,900 | $39,000 | $0 | $0 | $0 |
| 2008 | $122,900 | $39,000 | $0 | $0 | $0 |
| 2007 | $102,200 | $13,000 | $0 | $0 | $0 |
Deed and Sales History
| 1 | 12/03/2014 | SWD | STATUTORY WARRANTY DEED | GARCIA JOSE F | MAGANA MARIA | | | $150,000.00 | 127044 | 2014-08750 |
| 2 | 11/12/1976 | WARRANTY D | WARRANTY DEED | | | | | $23,500.00 | 0 | 5005-59328 |
Payout Agreement
| No payout information available.. |