Property
Account |
| Property ID: | 10351 | Abbreviated Legal Description: | 29-7-36 TAX 175 |
| Parcel Number: | 360729420046 | Agent Code: | |
| Type: | Real | | |
| Tax Area: | 1 - OL-140-F | Land Use Code | 11 |
| Open Space: | N | DFL | N |
| Historic Property: | N | Remodel Property: | N |
| Multi-Family Redevelopment: | N | | |
| Township: | 7 | Section: | 29 |
| Range: | 36 |
Location |
| Address: | 1052 ST JOHN ST WA 99362 | Mapsco: | |
| Neighborhood: | A Res | Map ID: | |
| Neighborhood CD: | 613011 |
Owner |
| Name: | DUGAN-CULTON DYLAN & ROXANNE H MASON | Owner ID: | 67066 |
| Mailing Address: | 736 JUNIPER ST WALLA WALLA, WA 99362 | % Ownership: | 100.0000000000% |
| | | Exemptions: | |
Taxes and Assessment Details
Values
| (+) Improvement Homesite Value: | + | $0 | |
| (+) Improvement Non-Homesite Value: | + | $210,020 | |
| (+) Land Homesite Value: | + | $0 | |
| (+) Land Non-Homesite Value: | + | $58,500 | |
| (+) Curr Use (HS): | + | $0 | $0 |
| (+) Curr Use (NHS): | + | $0 | $0 |
| | | -------------------------- | |
| (=) Market Value: | = | $268,520 | |
| (–) Productivity Loss: | – | $0 | |
| | | -------------------------- | |
| (=) Subtotal: | = | $268,520 | |
| (+) Senior Appraised Value: | + | $0 | |
| (+) Non-Senior Appraised Value: | + | $268,520 | |
| | | -------------------------- | |
| (=) Total Appraised Value: | = | $268,520 | |
| (–) Senior Exemption Loss: | – | $0 | |
| (–) Exemption Loss: | – | $0 | |
| | | -------------------------- | |
| (=) Taxable Value: | = | $268,520 | |
Taxing Jurisdiction
| Owner: | DUGAN-CULTON DYLAN & ROXANNE H MASON | | |
| % Ownership: | 100.0000000000% | | |
| Total Value: | $268,520 | | |
| Tax Area: | 1 - OL-140-F |
| CERFD | CURRENT EXPENSE REFUND 010 | 0.0000000000 | $268,520 | $268,520 | $0.00 | | |
| CURREXP | CURRENT EXPENSE 010 | 1.0175366760 | $268,520 | $268,520 | $273.23 | | |
| HUMNSERV | HUMAN SERVICES 119 | 0.0250000000 | $268,520 | $268,520 | $6.71 | | |
| SLDREL | SOLDIERS RELIEF 121 | 0.0155990005 | $268,520 | $268,520 | $4.19 | | |
| EMERGSER | EMS 147 | 0.3792580840 | $268,520 | $268,520 | $101.84 | | |
| EMSRFD | EMS REFUND 147 | 0.0000000000 | $268,520 | $268,520 | $0.00 | | |
| PORTRFD | PORT REFUND 640 | 0.0000000000 | $268,520 | $268,520 | $0.00 | | |
| PORTWWGEN | PORT OF WW 640 | 0.2460186015 | $268,520 | $268,520 | $66.06 | | |
| SD140BOND | SD #140 BOND 764 | 0.8342371393 | $268,520 | $268,520 | $224.01 | | |
| SD140GEN | SD #140 GENERAL 760 | 2.0646500647 | $268,520 | $268,520 | $554.40 | | |
| ST2 | STATE SCHOOL PART 2 600 | 0.8131451643 | $268,520 | $268,520 | $218.35 | | |
| STATESCHL | STATE SCHOOL 600 | 1.5158548041 | $268,520 | $268,520 | $407.04 | | |
| STREFUND | STATE REFUND LEVY 603 | 0.0000000000 | $268,520 | $268,520 | $0.00 | | |
| CWWBOND | C OF WW BOND 643 | 0.2760494372 | $268,520 | $268,520 | $74.12 | | |
| CWWGEN | CITY OF WW 631 | 1.6100204973 | $268,520 | $268,520 | $432.32 | | |
| CWWRFD | CITY OF WALLA WALLA REFUND 631 | 0.0000000000 | $268,520 | $268,520 | $0.00 | | |
| | Total Tax Rate: | 8.7973694689 | | | | | |
| | | | | Taxes w/Current Exemptions: | $2,362.27 | | |
| | | | | Taxes w/o Exemptions: | $2,362.27 | | |
Improvement / Building
| Improvement #1: | RESIDENTIAL | State Code: | 11 | 779.0 sqft | Value: | $210,020 |
| Exterior Wall: | SIDING | Heating/Cooling: | HEAT PUMP | | Number of Bathrooms: | 2 | Number of Bedrooms: | 2 | | Plumbing: | 9 | Roof Covering: | COMP SHINGLE |
|
| | Type | Description | Class CD | Sub Class CD | Year Built | Area |
| | MA | Main Area | 1 | 25 | 1960 | 779.0 |
| | SI1 | SITE IMPROVEMENT | 1 | 25 | 1960 | 1.0 |
| | DTG | Detached Garage | 1 | 25 | 1960 | 528.0 |
| | RPS | PORCH W/STEPS,ROOF | 1 | 25 | 1960 | 30.0 |
| | BRW | BREEZEWAY | 1 | 25 | 1960 | 75.0 |
| | DTG | Detached Garage | 1 | 25 | 1960 | 288.0 |
Sketch
Property Image
Land
| 1 | RES 1 | Converted: Residential | 0.1492 | 6500.00 | 0.00 | 0.00 | 1.00 | $58,500 | $0 |
Roll Value History
| 2026 | N/A | N/A | N/A | N/A | N/A |
| 2025 | $198,460 | $71,500 | $0 | $269,960 | $269,960 |
| 2024 | $210,020 | $58,500 | $0 | $268,520 | $268,520 |
| 2023 | $210,020 | $58,500 | $0 | $268,520 | $268,520 |
| 2022 | $200,020 | $47,130 | $0 | $247,150 | $247,150 |
| 2021 | $148,160 | $47,130 | $0 | $195,290 | $195,290 |
| 2020 | $113,970 | $47,130 | $0 | $161,100 | $161,100 |
| 2019 | $113,970 | $47,130 | $0 | $161,100 | $161,100 |
| 2018 | $101,160 | $39,000 | $0 | $140,160 | $140,160 |
| 2017 | $84,300 | $39,000 | $0 | $123,300 | $123,300 |
| 2016 | $67,440 | $39,000 | $0 | $106,440 | $106,440 |
| 2015 | $67,440 | $39,000 | $0 | $106,440 | $106,440 |
| 2014 | $56,200 | $39,000 | $0 | $95,200 | $95,200 |
| 2013 | $56,200 | $39,000 | $0 | $95,200 | $95,200 |
| 2012 | $56,200 | $39,000 | $0 | $0 | $0 |
| 2011 | $56,200 | $39,000 | $0 | $0 | $0 |
| 2010 | $73,000 | $39,000 | $0 | $0 | $0 |
| 2009 | $85,400 | $39,000 | $0 | $0 | $0 |
| 2008 | $85,400 | $39,000 | $0 | $0 | $0 |
| 2007 | $55,000 | $13,000 | $0 | $0 | $0 |
Deed and Sales History
| 1 | 04/28/2020 | SWD | STATUTORY WARRANTY DEED | ANDERSEN JEFFREY S | DUGAN-CULTON DYLAN & ROXANNE H MASON | | | $195,000.00 | 138990 | 2020-03637 |
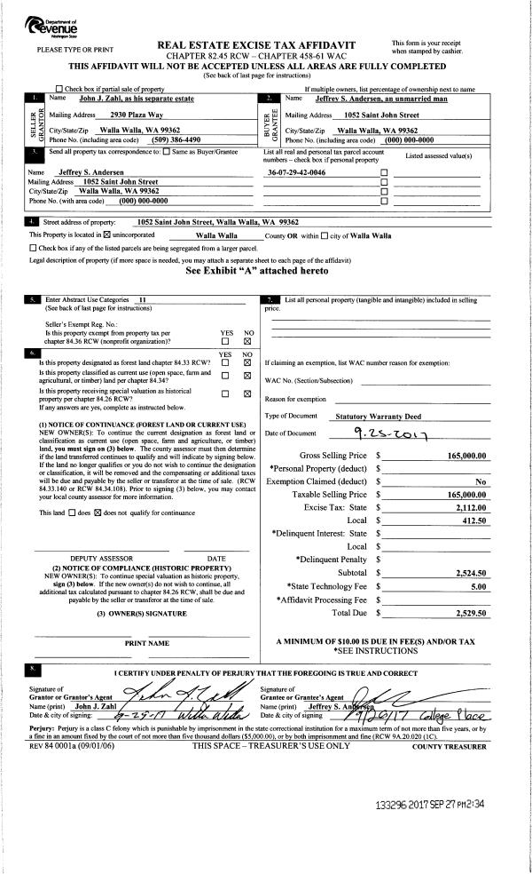
| 2 | 09/27/2017 | SWD | STATUTORY WARRANTY DEED | ZAHL JOHN J | ANDERSEN JEFFREY S | | | $165,000.00 | 133296 | 2017-07635 |
| 3 | 02/01/2008 | QCD | QUIT CLAIM DEED | ZAHL, DIANNA S | ZAHL, JOHN J | | | | 114469 | 2008-00984 |
| 4 | 10/11/1979 | WARRANTY D | WARRANTY DEED | | | | | $34,000.00 | 0 | 1127-909627 |
Payout Agreement
| No payout information available.. |