Property
Account |
| Property ID: | 10346 | Abbreviated Legal Description: | 29-7-36 TAX 142D |
| Parcel Number: | 360729420030 | Agent Code: | |
| Type: | Real | | |
| Tax Area: | 1 - OL-140-F | Land Use Code | 11 |
| Open Space: | N | DFL | N |
| Historic Property: | N | Remodel Property: | N |
| Multi-Family Redevelopment: | N | | |
| Township: | 7 | Section: | 29 |
| Range: | 36 |
Location |
| Address: | 19 W MORTON ST WA 99362 | Mapsco: | |
| Neighborhood: | A Res | Map ID: | |
| Neighborhood CD: | 613011 |
Owner |
| Name: | KERNEY FAMILY TRUST | Owner ID: | 60731 |
| Mailing Address: | DAVID C & CATHERINE L KERNEY 353 SE HIGHLAND PARK DR COLLEGE PLACE, WA 99324 | % Ownership: | 100.0000000000% |
| | | Exemptions: | |
Taxes and Assessment Details
Property Tax Information as of
02/21/2026
Click on "Statement Details" to expand or collapse a tax statement.
* Please enter a valid date ** Please enter a valid date *
Statement Details |
| | TOTAL: | $0.00 | $0.00 | $0.00 | $0.00 | $0.00 | $0.00 |
|
| | $0.00 | $0.00 | $0.00 | $0.00 | $0.00 | $0.00 |
Values
| (+) Improvement Homesite Value: | + | $0 | |
| (+) Improvement Non-Homesite Value: | + | $249,870 | |
| (+) Land Homesite Value: | + | $0 | |
| (+) Land Non-Homesite Value: | + | $54,000 | |
| (+) Curr Use (HS): | + | $0 | $0 |
| (+) Curr Use (NHS): | + | $0 | $0 |
| | | -------------------------- | |
| (=) Market Value: | = | $303,870 | |
| (–) Productivity Loss: | – | $0 | |
| | | -------------------------- | |
| (=) Subtotal: | = | $303,870 | |
| (+) Senior Appraised Value: | + | $0 | |
| (+) Non-Senior Appraised Value: | + | $303,870 | |
| | | -------------------------- | |
| (=) Total Appraised Value: | = | $303,870 | |
| (–) Senior Exemption Loss: | – | $0 | |
| (–) Exemption Loss: | – | $0 | |
| | | -------------------------- | |
| (=) Taxable Value: | = | $303,870 | |
Taxing Jurisdiction
| Owner: | KERNEY FAMILY TRUST | | |
| % Ownership: | 100.0000000000% | | |
| Total Value: | $303,870 | | |
| Tax Area: | 1 - OL-140-F |
| CERFD | CURRENT EXPENSE REFUND 010 | 0.0000000000 | $303,870 | $303,870 | $0.00 | | |
| CURREXP | CURRENT EXPENSE 010 | 1.0175366760 | $303,870 | $303,870 | $309.20 | | |
| HUMNSERV | HUMAN SERVICES 119 | 0.0250000000 | $303,870 | $303,870 | $7.60 | | |
| SLDREL | SOLDIERS RELIEF 121 | 0.0155990005 | $303,870 | $303,870 | $4.74 | | |
| EMERGSER | EMS 147 | 0.3792580840 | $303,870 | $303,870 | $115.25 | | |
| EMSRFD | EMS REFUND 147 | 0.0000000000 | $303,870 | $303,870 | $0.00 | | |
| PORTRFD | PORT REFUND 640 | 0.0000000000 | $303,870 | $303,870 | $0.00 | | |
| PORTWWGEN | PORT OF WW 640 | 0.2460186015 | $303,870 | $303,870 | $74.76 | | |
| SD140BOND | SD #140 BOND 764 | 0.8342371393 | $303,870 | $303,870 | $253.50 | | |
| SD140GEN | SD #140 GENERAL 760 | 2.0646500647 | $303,870 | $303,870 | $627.39 | | |
| ST2 | STATE SCHOOL PART 2 600 | 0.8131451643 | $303,870 | $303,870 | $247.09 | | |
| STATESCHL | STATE SCHOOL 600 | 1.5158548041 | $303,870 | $303,870 | $460.62 | | |
| STREFUND | STATE REFUND LEVY 603 | 0.0000000000 | $303,870 | $303,870 | $0.00 | | |
| CWWBOND | C OF WW BOND 643 | 0.2760494372 | $303,870 | $303,870 | $83.88 | | |
| CWWGEN | CITY OF WW 631 | 1.6100204973 | $303,870 | $303,870 | $489.24 | | |
| CWWRFD | CITY OF WALLA WALLA REFUND 631 | 0.0000000000 | $303,870 | $303,870 | $0.00 | | |
| | Total Tax Rate: | 8.7973694689 | | | | | |
| | | | | Taxes w/Current Exemptions: | $2,673.27 | | |
| | | | | Taxes w/o Exemptions: | $2,673.27 | | |
Improvement / Building
| Improvement #1: | RESIDENTIAL | State Code: | 11 | 900.0 sqft | Value: | $249,870 |
| Exterior Wall: | SHINGLE | Heating/Cooling: | HEAT PUMP | | Number of Bathrooms: | 1 | Number of Bedrooms: | 2 | | Plumbing: | 7 | Roof Covering: | COMP SHINGLE |
|
| | Type | Description | Class CD | Sub Class CD | Year Built | Area |
| | MA | Main Area | 1 | 30 | 1949 | 900.0 |
| | SI1 | SITE IMPROVEMENT | 1 | 30 | 1949 | 1.0 |
| | RPS | PORCH W/STEPS,ROOF | 1 | 30 | 1949 | 25.0 |
| | CPC | COVERED CARPORT/PATIO | 1 | 30 | 1949 | 312.0 |
| | POL3 | POLE BUILDING-CON,ELEC,INSU | 1 | 30 | 1949 | 576.0 |
Sketch
Property Image
Land
| 1 | RES 1 | Converted: Residential | 0.1377 | 6000.00 | 0.00 | 0.00 | 1.00 | $54,000 | $0 |
Roll Value History
| 2026 | N/A | N/A | N/A | N/A | N/A |
| 2025 | $236,340 | $66,000 | $0 | $302,340 | $302,340 |
| 2024 | $249,870 | $54,000 | $0 | $303,870 | $303,870 |
| 2023 | $249,870 | $54,000 | $0 | $303,870 | $303,870 |
| 2022 | $199,900 | $43,500 | $0 | $243,400 | $243,400 |
| 2021 | $153,770 | $43,500 | $0 | $197,270 | $197,270 |
| 2020 | $113,900 | $43,500 | $0 | $157,400 | $157,400 |
| 2019 | $113,900 | $43,500 | $0 | $157,400 | $157,400 |
| 2018 | $103,310 | $36,000 | $0 | $139,310 | $139,310 |
| 2017 | $98,390 | $36,000 | $0 | $134,390 | $134,390 |
| 2016 | $85,560 | $36,000 | $0 | $121,560 | $121,560 |
| 2015 | $85,560 | $36,000 | $0 | $121,560 | $121,560 |
| 2014 | $74,400 | $36,000 | $0 | $110,400 | $110,400 |
| 2013 | $74,400 | $36,000 | $0 | $110,400 | $110,400 |
| 2012 | $75,600 | $36,000 | $0 | $0 | $0 |
| 2011 | $70,300 | $36,000 | $0 | $0 | $0 |
| 2010 | $70,300 | $36,000 | $0 | $0 | $0 |
| 2009 | $82,100 | $36,000 | $0 | $0 | $0 |
| 2008 | $82,100 | $36,000 | $0 | $0 | $0 |
| 2007 | $54,800 | $12,000 | $0 | $0 | $0 |
Deed and Sales History
| 1 | 04/19/2017 | SWD | STATUTORY WARRANTY DEED | WOLFRAM BENJAMIN S | KERNEY FAMILY TRUST | | | $0.00 | 132231 | 2017-02949 |
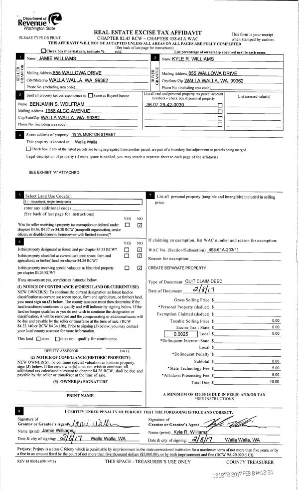
| 2 | 02/08/2017 | QCD | QUIT CLAIM DEED | WILLIAMS JAMIE | WILLIAMS KYLE R | | | | 131878 | 2017-01036 |
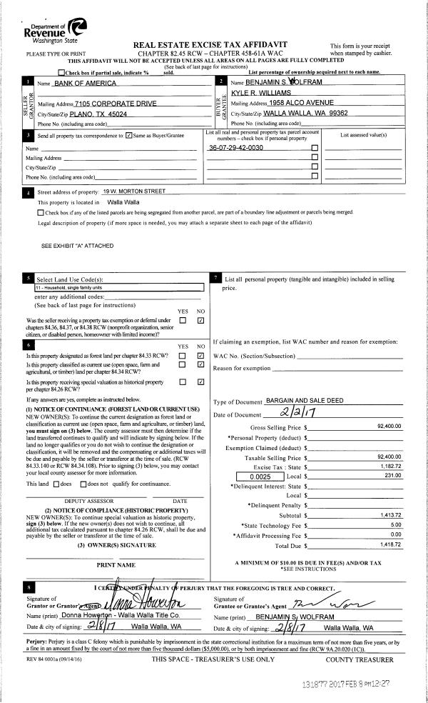
| 3 | 02/08/2017 | BARGAIN & | BARGAIN & SALE DEED | BANK OF AMERICA | WOLFRAM BENJAMIN S | | | $92,400.00 | 131877 | 2017-01035 |
| 4 | 11/17/2016 | TRUSTEES D | TRUSTEE'S DEED | RECHLIN BETTIE | BANK OF AMERICA | | | $92,400.00 | 131445 | 2016-09508 |
| 5 | 07/13/2010 | WARRANTY D | WARRANTY DEED | CAMPANELLI, JEANNE ESTATE OF | RECHLIN, BETTIE | | | $114,000.00 | 118746 | 2010-05351 |
| 6 | 08/01/1967 | WARRANTY D | WARRANTY DEED | | | | | $11,500.00 | 0 | 3230-488386 |
Payout Agreement
| No payout information available.. |