Property
Account |
| Property ID: | 10314 | Abbreviated Legal Description: | TABLEROCK SUBD LOT 49 |
| Parcel Number: | 360604580049 | Agent Code: | |
| Type: | Real | | |
| Tax Area: | 5 - OL-140 | Land Use Code | 11 |
| Open Space: | N | DFL | N |
| Historic Property: | N | Remodel Property: | N |
| Multi-Family Redevelopment: | N | | |
| Township: | 6 | Section: | 4 |
| Range: | 36 |
Location |
| Address: | 52 THUNDER RIDGE RD WA 99362 | Mapsco: | |
| Neighborhood: | VG Res Rural/City Inf | Map ID: | |
| Neighborhood CD: | 615012 |
Owner |
| Name: | HUBBARD REECE & AMBER | Owner ID: | 43453 |
| Mailing Address: | 52 THUNDER RIDGE RD WALLA WALLA, WA 99362 | % Ownership: | 100.0000000000% |
| | | Exemptions: | |
Taxes and Assessment Details
Property Tax Information as of
02/21/2026
Click on "Statement Details" to expand or collapse a tax statement.
* Please enter a valid date ** Please enter a valid date *
Statement Details |
| | TOTAL: | $0.00 | $0.00 | $0.00 | $0.00 | $0.00 | $0.00 |
|
| | $0.00 | $0.00 | $0.00 | $0.00 | $0.00 | $0.00 |
Values
| (+) Improvement Homesite Value: | + | $0 | |
| (+) Improvement Non-Homesite Value: | + | $568,220 | |
| (+) Land Homesite Value: | + | $0 | |
| (+) Land Non-Homesite Value: | + | $120,000 | |
| (+) Curr Use (HS): | + | $0 | $0 |
| (+) Curr Use (NHS): | + | $0 | $0 |
| | | -------------------------- | |
| (=) Market Value: | = | $688,220 | |
| (–) Productivity Loss: | – | $0 | |
| | | -------------------------- | |
| (=) Subtotal: | = | $688,220 | |
| (+) Senior Appraised Value: | + | $0 | |
| (+) Non-Senior Appraised Value: | + | $688,220 | |
| | | -------------------------- | |
| (=) Total Appraised Value: | = | $688,220 | |
| (–) Senior Exemption Loss: | – | $0 | |
| (–) Exemption Loss: | – | $0 | |
| | | -------------------------- | |
| (=) Taxable Value: | = | $688,220 | |
Taxing Jurisdiction
| Owner: | HUBBARD REECE & AMBER | | |
| % Ownership: | 100.0000000000% | | |
| Total Value: | $688,220 | | |
| Tax Area: | 5 - OL-140 |
| CERFD | CURRENT EXPENSE REFUND 010 | 0.0000000000 | $688,220 | $688,220 | $0.00 | | |
| CURREXP | CURRENT EXPENSE 010 | 1.0175366760 | $688,220 | $688,220 | $700.29 | | |
| HUMNSERV | HUMAN SERVICES 119 | 0.0250000000 | $688,220 | $688,220 | $17.21 | | |
| SLDREL | SOLDIERS RELIEF 121 | 0.0155990005 | $688,220 | $688,220 | $10.74 | | |
| EMERGSER | EMS 147 | 0.3792580840 | $688,220 | $688,220 | $261.01 | | |
| EMSRFD | EMS REFUND 147 | 0.0000000000 | $688,220 | $688,220 | $0.00 | | |
| PORTRFD | PORT REFUND 640 | 0.0000000000 | $688,220 | $688,220 | $0.00 | | |
| PORTWWGEN | PORT OF WW 640 | 0.2460186015 | $688,220 | $688,220 | $169.31 | | |
| SD140BOND | SD #140 BOND 764 | 0.8342371393 | $688,220 | $688,220 | $574.14 | | |
| SD140GEN | SD #140 GENERAL 760 | 2.0646500647 | $688,220 | $688,220 | $1,420.93 | | |
| ST2 | STATE SCHOOL PART 2 600 | 0.8131451643 | $688,220 | $688,220 | $559.62 | | |
| STATESCHL | STATE SCHOOL 600 | 1.5158548041 | $688,220 | $688,220 | $1,043.24 | | |
| STREFUND | STATE REFUND LEVY 603 | 0.0000000000 | $688,220 | $688,220 | $0.00 | | |
| CWWBOND | C OF WW BOND 643 | 0.2760494372 | $688,220 | $688,220 | $189.98 | | |
| CWWGEN | CITY OF WW 631 | 1.6100204973 | $688,220 | $688,220 | $1,108.05 | | |
| CWWRFD | CITY OF WALLA WALLA REFUND 631 | 0.0000000000 | $688,220 | $688,220 | $0.00 | | |
| | Total Tax Rate: | 8.7973694689 | | | | | |
| | | | | Taxes w/Current Exemptions: | $6,054.52 | | |
| | | | | Taxes w/o Exemptions: | $6,054.52 | | |
Improvement / Building
| Improvement #1: | RESIDENTIAL | State Code: | 11 | 2677.0 sqft | Value: | $568,220 |
| Exterior Wall: | SIDING | Heating/Cooling: | HEAT PUMP | | Number of Bathrooms: | 2.5 | Number of Bedrooms: | 4 | | Plumbing: | 13 | Roof Covering: | COMP SHINGLE |
|
| | Type | Description | Class CD | Sub Class CD | Year Built | Area |
| | MA | Main Area | 4 | 45 | 2012 | 2677.0 |
| | SI1 | SITE IMPROVEMENT | 4 | 45 | 2012 | 4.0 |
| | UPFL | Upper Floor (included in main area) | 4 | 45 | 2012 | 1141.0 |
| | ATG | Attached Garage | 4 | 45 | 2012 | 726.0 |
| | GFP | GAS FIREPLACE | 4 | 45 | 2012 | 1.0 |
| | RPC | OPEN PORCH W/ROOF , CEILED | 4 | 45 | 2012 | 169.0 |
| | RPC | OPEN PORCH W/ROOF , CEILED | 4 | 45 | 2012 | 30.0 |
Sketch
Property Image
Land
| 1 | RES 1 | Converted: Residential | 0.2500 | 10890.00 | 0.00 | 0.00 | 1.00 | $120,000 | $0 |
Roll Value History
| 2026 | N/A | N/A | N/A | N/A | N/A |
| 2025 | $554,740 | $180,000 | $0 | $734,740 | $734,740 |
| 2024 | $568,220 | $120,000 | $0 | $688,220 | $688,220 |
| 2023 | $568,220 | $120,000 | $0 | $688,220 | $688,220 |
| 2022 | $516,560 | $95,000 | $0 | $611,560 | $611,560 |
| 2021 | $382,640 | $95,000 | $0 | $477,640 | $477,640 |
| 2020 | $306,110 | $95,000 | $0 | $401,110 | $401,110 |
| 2019 | $306,110 | $95,000 | $0 | $401,110 | $401,110 |
| 2018 | $315,080 | $50,000 | $0 | $365,080 | $365,080 |
| 2017 | $315,080 | $50,000 | $0 | $365,080 | $365,080 |
| 2016 | $286,440 | $50,000 | $0 | $336,440 | $336,440 |
| 2015 | $286,440 | $50,000 | $0 | $336,440 | $336,440 |
| 2014 | $272,800 | $50,000 | $0 | $322,800 | $322,800 |
| 2013 | $272,800 | $50,000 | $0 | $322,800 | $322,800 |
| 2012 | $0 | $55,000 | $0 | $0 | $0 |
| 2011 | $0 | $70,000 | $0 | $0 | $0 |
| 2010 | $0 | $70,000 | $0 | $0 | $0 |
| 2009 | $0 | $70,000 | $0 | $0 | $0 |
| 2008 | $0 | $70,000 | $0 | $0 | $0 |
| 2007 | $0 | $1,900 | $0 | $0 | $0 |
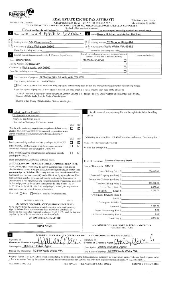
Deed and Sales History
| 1 | 07/23/2019 | SWD | STATUTORY WARRANTY DEED | LOVRAK JON G | HUBBARD REECE & AMBER | | | $410,000.00 | 137335 | 2019-05386 |
| 2 | 01/27/2017 | DPR | DEED OF PERSONAL REPRESENTATIVE | LOVRAK JON & ELISA | LOVRAK JON G | | | $0.00 | 131822 | 2017-00708 |
| 3 | 02/22/2012 | WARRANTY D | WARRANTY DEED | STOLZ, VALERIE | LOVRAK, JON & ELISA | | | $46,900.00 | 121415 | 2012-01474 |
| 4 | 02/01/2012 | WARRANTY D | WARRANTY DEED | STOLZ, MARCEL & VALERIE | STOLZ, VALERIE | | | $0.00 | 0 | 2012-00913 |
| 5 | 05/07/2004 | WARRANTY D | WARRANTY DEED | GATEWOOD, W PAUL | STOLZ, MARCEL & VALERIE | | | $54,900.00 | 104699 | 2004-04905 |
Payout Agreement
| No payout information available.. |