Property
Account |
| Property ID: | 10307 | Abbreviated Legal Description: | LUTCHERS LOT 5 BLK 5 |
| Parcel Number: | 360721640505 | Agent Code: | |
| Type: | Real | | |
| Tax Area: | 1 - OL-140-F | Land Use Code | 11 |
| Open Space: | N | DFL | N |
| Historic Property: | N | Remodel Property: | N |
| Multi-Family Redevelopment: | N | | |
| Township: | 7 | Section: | 21 |
| Range: | 36 |
Location |
| Address: | 415 CEDAR ST WA 99362 | Mapsco: | |
| Neighborhood: | A-Inferior SFR | Map ID: | |
| Neighborhood CD: | 513111 |
Owner |
| Name: | LOPEZ DIEGO GEOVANI GARCIA | Owner ID: | 65778 |
| Mailing Address: | RITA GUADALUPE TRUJILLO LOPEZ 415 CEDAR ST WALLA WALLA, WA 99362 | % Ownership: | 100.0000000000% |
| | | Exemptions: | |
Taxes and Assessment Details
Values
| (+) Improvement Homesite Value: | + | N/A | |
| (+) Improvement Non-Homesite Value: | + | N/A | |
| (+) Land Homesite Value: | + | N/A | |
| (+) Land Non-Homesite Value: | + | N/A | Ag / Timber Use Value |
| (+) Curr Use (HS): | + | N/A | N/A |
| (+) Curr Use (NHS): | + | N/A | N/A |
| | | -------------------------- | |
| (=) Market Value: | = | N/A | |
| (–) Productivity Loss: | – | N/A | |
| | | -------------------------- | |
| (=) Subtotal: | = | N/A | |
| (+) Senior Appraised Value: | + | N/A | |
| (+) Non-Senior Appraised Value: | + | N/A | |
| | | -------------------------- | |
| (=) Total Appraised Value: | = | N/A | |
| (–) Senior Exemption Loss: | – | N/A | |
| (–) Exemption Loss: | – | N/A | |
| | | -------------------------- | |
| (=) Taxable Value: | = | N/A | |
Taxing Jurisdiction
| Owner: | LOPEZ DIEGO GEOVANI GARCIA | | |
| % Ownership: | 100.0000000000% | | |
| Total Value: | N/A | | |
| Tax Area: | 1 - OL-140-F |
| CERFD | CURRENT EXPENSE REFUND 010 | N/A | N/A | N/A | N/A | | |
| CURREXP | CURRENT EXPENSE 010 | N/A | N/A | N/A | N/A | | |
| HUMNSERV | HUMAN SERVICES 119 | N/A | N/A | N/A | N/A | | |
| SLDREL | SOLDIERS RELIEF 121 | N/A | N/A | N/A | N/A | | |
| EMERGSER | EMS 147 | N/A | N/A | N/A | N/A | | |
| EMSRFD | EMS REFUND 147 | N/A | N/A | N/A | N/A | | |
| PORTRFD | PORT REFUND 640 | N/A | N/A | N/A | N/A | | |
| PORTWWGEN | PORT OF WW 640 | N/A | N/A | N/A | N/A | | |
| SD140BOND | SD #140 BOND 764 | N/A | N/A | N/A | N/A | | |
| SD140GEN | SD #140 GENERAL 760 | N/A | N/A | N/A | N/A | | |
| ST2 | STATE SCHOOL PART 2 600 | N/A | N/A | N/A | N/A | | |
| STATESCHL | STATE SCHOOL 600 | N/A | N/A | N/A | N/A | | |
| STREFUND | STATE REFUND LEVY 603 | N/A | N/A | N/A | N/A | | |
| CWWBOND | C OF WW BOND 643 | N/A | N/A | N/A | N/A | | |
| CWWGEN | CITY OF WW 631 | N/A | N/A | N/A | N/A | | |
| CWWRFD | CITY OF WALLA WALLA REFUND 631 | N/A | N/A | N/A | N/A | | |
| | Total Tax Rate: | N/A | | | | | |
| | | | | Taxes w/Current Exemptions: | N/A | | |
| | | | | Taxes w/o Exemptions: | N/A | | |
Improvement / Building
| Improvement #1: | RESIDENTIAL | State Code: | 11 | 1656.0 sqft | Value: | N/A |
| Exterior Wall: | VINYL | Heating/Cooling: | FLOOR FURNACE | | Number of Bathrooms: | 3 | Number of Bedrooms: | 5 | | Plumbing: | 6 | Roof Covering: | COMP SHINGLE |
|
| | Type | Description | Class CD | Sub Class CD | Year Built | Area |
| | MA | Main Area | 1 | 25 | 1935 | 1656.0 |
| | SI1 | SITE IMPROVEMENT | 1 | 25 | 1935 | 1.0 |
| | RPS | PORCH W/STEPS,ROOF | 1 | 25 | 1935 | 72.0 |
| | CPCD | CARPORT/DIRT FLOOR | 1 | 25 | 1935 | 414.0 |
| | WOD | Wood Deck | 1 | 25 | 1935 | 310.0 |
Sketch
Property Image
Land
| 1 | RES 1 | Converted: Residential | 0.1514 | 6597.00 | 0.00 | 0.00 | 1.00 | N/A | N/A |
Roll Value History
| 2026 | N/A | N/A | N/A | N/A | N/A |
| 2025 | $239,810 | $65,970 | $0 | $305,780 | $305,780 |
| 2024 | $220,010 | $65,970 | $0 | $285,980 | $285,980 |
| 2023 | $231,980 | $41,230 | $0 | $273,210 | $273,210 |
| 2022 | $161,300 | $41,230 | $0 | $202,530 | $202,530 |
| 2021 | $100,820 | $41,230 | $0 | $142,050 | $142,050 |
| 2020 | $61,100 | $41,230 | $0 | $102,330 | $102,330 |
| 2019 | $61,100 | $41,230 | $0 | $102,330 | $102,330 |
| 2018 | $47,000 | $41,230 | $0 | $88,230 | $88,230 |
| 2017 | $51,100 | $26,400 | $0 | $77,500 | $77,500 |
| 2016 | $51,100 | $26,400 | $0 | $77,500 | $77,500 |
| 2015 | $51,100 | $26,400 | $0 | $77,500 | $77,500 |
| 2014 | $50,100 | $26,400 | $0 | $76,500 | $76,500 |
| 2013 | $50,100 | $26,400 | $0 | $76,500 | $76,500 |
| 2012 | $52,800 | $26,400 | $0 | $0 | $0 |
| 2011 | $52,800 | $26,400 | $0 | $0 | $0 |
| 2010 | $52,800 | $26,400 | $0 | $0 | $0 |
| 2009 | $61,600 | $26,400 | $0 | $0 | $0 |
| 2008 | $61,600 | $26,400 | $0 | $0 | $0 |
| 2007 | $61,600 | $26,400 | $0 | $0 | $0 |
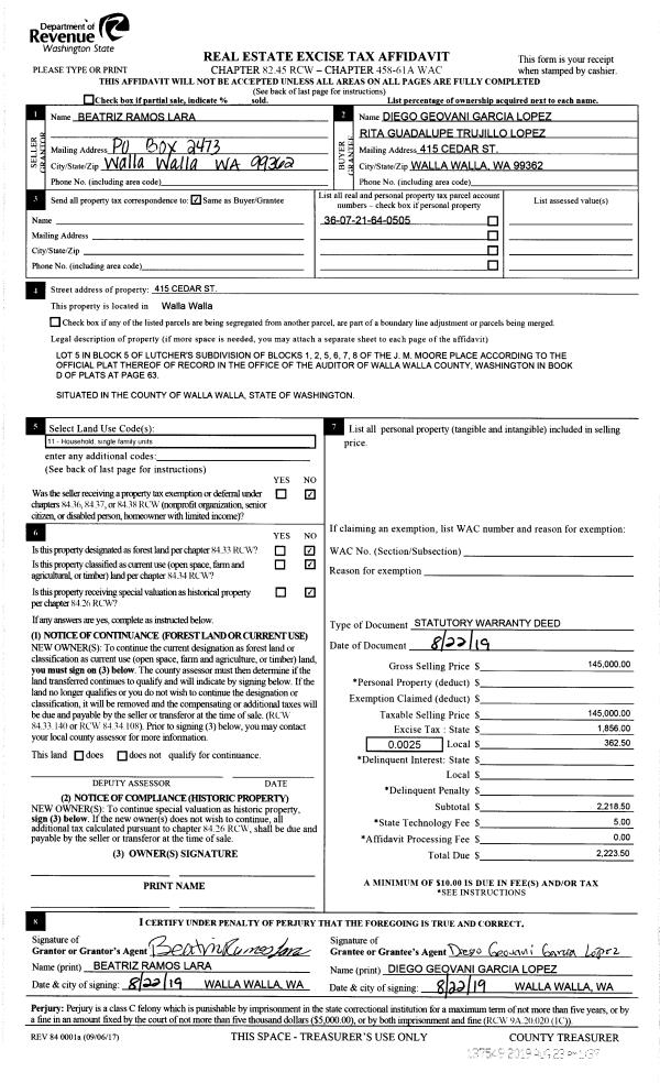
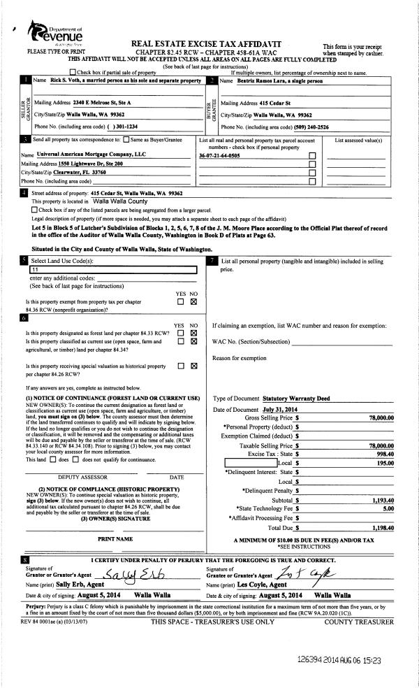
Deed and Sales History
| 1 | 08/23/2019 | SWD | STATUTORY WARRANTY DEED | LARA BEATRIZ RAMOS | LOPEZ DIEGO GEOVANI GARCIA | | | $145,000.00 | 137549 | 2019-06515 |
| 2 | 08/06/2014 | SWD | STATUTORY WARRANTY DEED | VOTH RICK S | LARA BEATRIZ RAMOS | | | $78,000.00 | 126394 | 2014-05602 |
| 3 | 05/30/2014 | QCD | QUIT CLAIM DEED | TITUS CREEK LLC | VOTH RICK S | 2-PARCELS | | | 125995 | 2014-03725 |
| 4 | 06/04/2014 | QCD | QUIT CLAIM DEED | | TITUS CREEK LLC | | | | 0 | 2014-03811 |
| 5 | 06/01/2004 | WARRANTY D | WARRANTY DEED | HUI, KEN F | TITUS CREEK LLC | | | $103,000.00 | 104899 | 2004-05985 |
|   | |
| 6 | 06/16/1982 | WARRANTY D | WARRANTY DEED | | | | | $90,000.00 | 57464 | 1338-203803 |
Payout Agreement
| No payout information available.. |