Property
Account |
| Property ID: | 10302 | Abbreviated Legal Description: | 27-7-36 TAX 35A |
| Parcel Number: | 360727330034 | Agent Code: | |
| Type: | Real | | |
| Tax Area: | 105 - 140-F-4 | Land Use Code | 11 |
| Open Space: | N | DFL | N |
| Historic Property: | N | Remodel Property: | N |
| Multi-Family Redevelopment: | N | | |
| Township: | 7 | Section: | 27 |
| Range: | 36 |
Location |
| Address: | 1495 SHELTON RD WA 99362 | Mapsco: | |
| Neighborhood: | G Res Rural/City Inf | Map ID: | |
| Neighborhood CD: | 614012 |
Owner |
| Name: | HARMON GRETCHEN JANE | Owner ID: | 74082 |
| Mailing Address: | 1495 SHELTON RD WALLA WALLA, WA 99362 | % Ownership: | 100.0000000000% |
| | | Exemptions: | SNR/DSBL |
Taxes and Assessment Details
Values
| (+) Improvement Homesite Value: | + | $257,590 | |
| (+) Improvement Non-Homesite Value: | + | $0 | |
| (+) Land Homesite Value: | + | $126,050 | |
| (+) Land Non-Homesite Value: | + | $0 | |
| (+) Curr Use (HS): | + | $0 | $0 |
| (+) Curr Use (NHS): | + | $0 | $0 |
| | | -------------------------- | |
| (=) Market Value: | = | $383,640 | |
| (–) Productivity Loss: | – | $0 | |
| | | -------------------------- | |
| (=) Subtotal: | = | $383,640 | |
| (+) Senior Appraised Value: | + | $360,770 | |
| (+) Non-Senior Appraised Value: | + | $0 | |
| | | -------------------------- | |
| (=) Total Appraised Value: | = | $360,770 | |
| (–) Senior Exemption Loss: | – | $216,462 | |
| (–) Exemption Loss: | – | $0 | |
| | | -------------------------- | |
| (=) Taxable Value: | = | $144,308 | |
Taxing Jurisdiction
| Owner: | HARMON GRETCHEN JANE | | |
| % Ownership: | 100.0000000000% | | |
| Total Value: | $383,640 | | |
| Tax Area: | 105 - 140-F-4 |
| CERFD | CURRENT EXPENSE REFUND 010 | 0.0000000000 | $383,640 | $144,308 | $0.00 | | |
| CURREXP | CURRENT EXPENSE 010 | 1.0175366760 | $383,640 | $144,308 | $299.88 | | |
| HUMNSERV | HUMAN SERVICES 119 | 0.0250000000 | $383,640 | $144,308 | $7.37 | | |
| SLDREL | SOLDIERS RELIEF 121 | 0.0155990005 | $383,640 | $144,308 | $4.60 | | |
| EMERGSER | EMS 147 | 0.3792580840 | $383,640 | $144,308 | $111.77 | | |
| EMSRFD | EMS REFUND 147 | 0.0000000000 | $383,640 | $144,308 | $0.00 | | |
| FD4EXP | FD #4 EXPENSE 686 | 0.8836993059 | $383,640 | $144,308 | $260.43 | | |
| RLBRFD | RURAL LIBRARY REFUND 623 | 0.0000000000 | $383,640 | $144,308 | $0.00 | | |
| RURALLIB | RURAL LIBRARY 623 | 0.3710609029 | $383,640 | $144,308 | $109.35 | | |
| PORTRFD | PORT REFUND 640 | 0.0000000000 | $383,640 | $144,308 | $0.00 | | |
| PORTWWGEN | PORT OF WW 640 | 0.2460186015 | $383,640 | $144,308 | $72.50 | | |
| SD140BOND | SD #140 BOND 764 | 0.0000000000 | $383,640 | $0 | $201.12 | | |
| SD140GEN | SD #140 GENERAL 760 | 0.0000000000 | $383,640 | $0 | $497.76 | | |
| ST2 | STATE SCHOOL PART 2 600 | 0.0000000000 | $383,640 | $0 | $196.04 | | |
| STATESCHL | STATE SCHOOL 600 | 1.5158548041 | $383,640 | $144,308 | $446.73 | | |
| STREFUND | STATE REFUND LEVY 603 | 0.0000000000 | $383,640 | $144,308 | $0.00 | | |
| COROAD | COUNTY ROAD 115 | 1.6549953990 | $383,640 | $144,308 | $487.74 | | |
| CRPRD | COUNTY ROAD REFUND 115 | 0.0000000000 | $383,640 | $144,308 | $0.00 | | |
| | Total Tax Rate: | 6.1090227739 | | | | | |
| | | | | Taxes w/Current Exemptions: | $2,695.29 | | |
| | | | | Taxes w/o Exemptions: | $3,767.74 | | |
Improvement / Building
| Improvement #1: | RESIDENTIAL | State Code: | 11 | 1144.0 sqft | Value: | $257,590 |
| Exterior Wall: | METAL/STEEL | Heating/Cooling: | WARM & COOLED AIR | | Number of Bathrooms: | 2 | Number of Bedrooms: | 2 | | Plumbing: | 9 | Roof Covering: | COMP SHINGLE |
|
| | Type | Description | Class CD | Sub Class CD | Year Built | Area |
| | MA | Main Area | 1 | 30 | 1967 | 1144.0 |
| | SI1 | SITE IMPROVEMENT | 1 | 30 | 1967 | 1.5 |
| | BASE | BASEMENT | 1 | 30 | 1967 | 1144.0 |
| | D2F | Double 2 Story Fireplace | 1 | 30 | 1967 | 1.0 |
| | RPS | PORCH W/STEPS,ROOF | 1 | 30 | 1967 | 40.0 |
Sketch
Property Image
Land
| 1 | RES 1 | Converted: Residential | 0.4200 | 18295.00 | 0.00 | 0.00 | 1.00 | $126,050 | $0 |
Roll Value History
| 2026 | N/A | N/A | N/A | N/A | N/A |
| 2025 | $261,160 | $149,100 | $0 | $410,260 | $410,260 |
| 2024 | $257,590 | $126,050 | $0 | $383,640 | $383,640 |
| 2023 | $257,590 | $126,050 | $0 | $383,640 | $144,308 |
| 2022 | $257,590 | $103,180 | $0 | $360,770 | $144,308 |
| 2021 | $198,140 | $103,180 | $0 | $301,320 | $301,320 |
| 2020 | $141,530 | $103,180 | $0 | $244,710 | $244,710 |
| 2019 | $141,530 | $103,180 | $0 | $244,710 | $244,710 |
| 2018 | $128,200 | $54,200 | $0 | $182,400 | $182,400 |
| 2017 | $122,100 | $54,200 | $0 | $176,300 | $176,300 |
| 2016 | $116,280 | $54,200 | $0 | $170,480 | $170,480 |
| 2015 | $110,750 | $54,200 | $0 | $164,950 | $164,950 |
| 2014 | $96,300 | $54,200 | $0 | $150,500 | $150,500 |
| 2013 | $96,300 | $54,200 | $0 | $150,500 | $150,500 |
| 2012 | $104,000 | $54,200 | $0 | $0 | $0 |
| 2011 | $104,000 | $54,200 | $0 | $0 | $0 |
| 2010 | $104,000 | $54,200 | $0 | $0 | $0 |
| 2009 | $121,600 | $54,200 | $0 | $0 | $0 |
| 2008 | $121,600 | $54,200 | $0 | $0 | $0 |
| 2007 | $77,600 | $31,700 | $0 | $0 | $0 |
Deed and Sales History
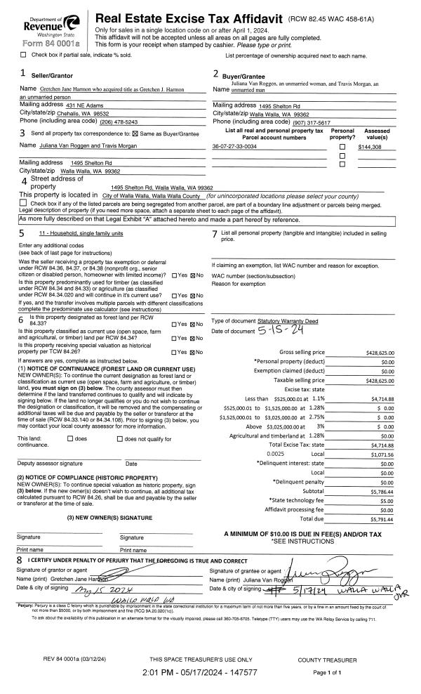
| 1 | 05/17/2024 | SWD | STATUTORY WARRANTY DEED | HARMON GRETCHEN JANE | VAN ROGGEN JULIANA | | | $428,625.00 | 147577 | 2024-02645 |
| 2 | 07/19/2023 | QCD | QUIT CLAIM DEED | HARMON GRETCHEN J & MARK A WOGSLAND | HARMON GRETCHEN JANE | | | $0.00 | 146171 | 2023-04076 |
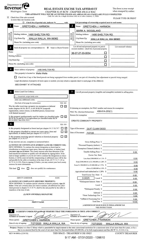
| 3 | 07/31/2020 | QCD | QUIT CLAIM DEED | HARMON GRETCHEN J | HARMON GRETCHEN J & MARK A WOGSLAND | | | | 139610 | 2020-07413 |
| 4 | 04/14/2004 | WARRANTY D | WARRANTY DEED | DECCIO, TINA L | HARMON, GRETCHEN J | | | $145,000.00 | 104503 | 2004-03932 |
| 5 | 02/01/1993 | WARRANTY D | WARRANTY DEED | | | | | $83,000.00 | 78472 | 2039-301024 |
Payout Agreement
| No payout information available.. |