Property
Account |
| Property ID: | 10293 | Abbreviated Legal Description: | 29-7-36 TAX 92C |
| Parcel Number: | 360729420010 | Agent Code: | |
| Type: | Real | | |
| Tax Area: | 1 - OL-140-F | Land Use Code | 11 |
| Open Space: | N | DFL | N |
| Historic Property: | N | Remodel Property: | N |
| Multi-Family Redevelopment: | N | | |
| Township: | 7 | Section: | 29 |
| Range: | 36 |
Location |
| Address: | 1117 S 3RD AVE WA 99362 | Mapsco: | |
| Neighborhood: | A Res | Map ID: | |
| Neighborhood CD: | 613011 |
Owner |
| Name: | ROBERTSON BROOKE DELMAS | Owner ID: | 62025 |
| Mailing Address: | 1117 S 3RD AVE WALLA WALLA, WA 99362 | % Ownership: | 100.0000000000% |
| | | Exemptions: | |
Taxes and Assessment Details
Values
| (+) Improvement Homesite Value: | + | $0 | |
| (+) Improvement Non-Homesite Value: | + | $253,880 | |
| (+) Land Homesite Value: | + | $0 | |
| (+) Land Non-Homesite Value: | + | $54,000 | |
| (+) Curr Use (HS): | + | $0 | $0 |
| (+) Curr Use (NHS): | + | $0 | $0 |
| | | -------------------------- | |
| (=) Market Value: | = | $307,880 | |
| (–) Productivity Loss: | – | $0 | |
| | | -------------------------- | |
| (=) Subtotal: | = | $307,880 | |
| (+) Senior Appraised Value: | + | $0 | |
| (+) Non-Senior Appraised Value: | + | $307,880 | |
| | | -------------------------- | |
| (=) Total Appraised Value: | = | $307,880 | |
| (–) Senior Exemption Loss: | – | $0 | |
| (–) Exemption Loss: | – | $0 | |
| | | -------------------------- | |
| (=) Taxable Value: | = | $307,880 | |
Taxing Jurisdiction
| Owner: | ROBERTSON BROOKE DELMAS | | |
| % Ownership: | 100.0000000000% | | |
| Total Value: | $307,880 | | |
| Tax Area: | 1 - OL-140-F |
| CERFD | CURRENT EXPENSE REFUND 010 | 0.0000000000 | $307,880 | $307,880 | $0.00 | | |
| CURREXP | CURRENT EXPENSE 010 | 1.0175366760 | $307,880 | $307,880 | $313.28 | | |
| HUMNSERV | HUMAN SERVICES 119 | 0.0250000000 | $307,880 | $307,880 | $7.70 | | |
| SLDREL | SOLDIERS RELIEF 121 | 0.0155990005 | $307,880 | $307,880 | $4.80 | | |
| EMERGSER | EMS 147 | 0.3792580840 | $307,880 | $307,880 | $116.77 | | |
| EMSRFD | EMS REFUND 147 | 0.0000000000 | $307,880 | $307,880 | $0.00 | | |
| PORTRFD | PORT REFUND 640 | 0.0000000000 | $307,880 | $307,880 | $0.00 | | |
| PORTWWGEN | PORT OF WW 640 | 0.2460186015 | $307,880 | $307,880 | $75.74 | | |
| SD140BOND | SD #140 BOND 764 | 0.8342371393 | $307,880 | $307,880 | $256.84 | | |
| SD140GEN | SD #140 GENERAL 760 | 2.0646500647 | $307,880 | $307,880 | $635.66 | | |
| ST2 | STATE SCHOOL PART 2 600 | 0.8131451643 | $307,880 | $307,880 | $250.35 | | |
| STATESCHL | STATE SCHOOL 600 | 1.5158548041 | $307,880 | $307,880 | $466.70 | | |
| STREFUND | STATE REFUND LEVY 603 | 0.0000000000 | $307,880 | $307,880 | $0.00 | | |
| CWWBOND | C OF WW BOND 643 | 0.2760494372 | $307,880 | $307,880 | $84.99 | | |
| CWWGEN | CITY OF WW 631 | 1.6100204973 | $307,880 | $307,880 | $495.69 | | |
| CWWRFD | CITY OF WALLA WALLA REFUND 631 | 0.0000000000 | $307,880 | $307,880 | $0.00 | | |
| | Total Tax Rate: | 8.7973694689 | | | | | |
| | | | | Taxes w/Current Exemptions: | $2,708.52 | | |
| | | | | Taxes w/o Exemptions: | $2,708.52 | | |
Improvement / Building
| Improvement #1: | RESIDENTIAL | State Code: | 11 | 1070.0 sqft | Value: | $253,880 |
| Exterior Wall: | SHINGLE | Heating/Cooling: | WARM & COOLED AIR | | Number of Bathrooms: | 1 | Number of Bedrooms: | 2 | | Plumbing: | 7 | Roof Covering: | COMP SHINGLE |
|
| | Type | Description | Class CD | Sub Class CD | Year Built | Area |
| | MA | Main Area | 1 | 25 | 1950 | 1070.0 |
| | SI1 | SITE IMPROVEMENT | 1 | 25 | 1950 | 1.0 |
| | DTG | Detached Garage | 1 | 25 | 1950 | 836.0 |
| | RPS | PORCH W/STEPS,ROOF | 1 | 25 | 1950 | 35.0 |
| | S1F | Single One Story Fireplace | 1 | 25 | 1950 | 1.0 |
| | RPS | PORCH W/STEPS,ROOF | 1 | 25 | 1950 | 9.0 |
Sketch
Property Image
Land
| 1 | RES 1 | Converted: Residential | 0.1377 | 6000.00 | 0.00 | 0.00 | 1.00 | $54,000 | $0 |
Roll Value History
| 2026 | N/A | N/A | N/A | N/A | N/A |
| 2025 | $266,410 | $66,000 | $0 | $332,410 | $332,410 |
| 2024 | $253,880 | $54,000 | $0 | $307,880 | $307,880 |
| 2023 | $253,880 | $54,000 | $0 | $307,880 | $307,880 |
| 2022 | $241,790 | $43,500 | $0 | $285,290 | $285,290 |
| 2021 | $166,750 | $43,500 | $0 | $210,250 | $210,250 |
| 2020 | $133,400 | $43,500 | $0 | $176,900 | $176,900 |
| 2019 | $133,400 | $43,500 | $0 | $176,900 | $176,900 |
| 2018 | $111,200 | $36,000 | $0 | $147,200 | $147,200 |
| 2017 | $101,090 | $36,000 | $0 | $137,090 | $137,090 |
| 2016 | $84,240 | $36,000 | $0 | $120,240 | $120,240 |
| 2015 | $84,240 | $36,000 | $0 | $120,240 | $120,240 |
| 2014 | $70,200 | $36,000 | $0 | $106,200 | $106,200 |
| 2013 | $70,200 | $36,000 | $0 | $106,200 | $106,200 |
| 2012 | $75,800 | $36,000 | $0 | $0 | $0 |
| 2011 | $75,800 | $36,000 | $0 | $0 | $0 |
| 2010 | $75,800 | $36,000 | $0 | $0 | $0 |
| 2009 | $88,200 | $36,000 | $0 | $0 | $0 |
| 2008 | $88,200 | $36,000 | $0 | $0 | $0 |
| 2007 | $76,200 | $12,000 | $0 | $0 | $0 |
Deed and Sales History
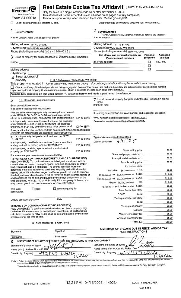
| 1 | 04/15/2025 | QCD | QUIT CLAIM DEED | CUELLAR ANDREW ROMO | FLORES FLOR M CASTILLO | | | | 149234 | 2025-01991 |
| 2 | 04/15/2025 | SWD | STATUTORY WARRANTY DEED | ROBERTSON BROOKE DELMAS | FLORES FLOR M CASTILLO | | | $359,000.00 | 149233 | 2025-01990 |
| 3 | 07/22/2022 | QCD | QUIT CLAIM DEED | ROBERTSON MATTHEW VINCENT | ROBERTSON BROOKE DELMAS | | | | 144344 | 2022-06159 |
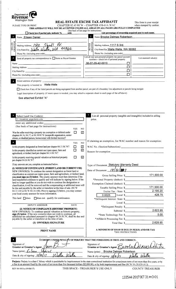
| 4 | 10/31/2017 | SWD | STATUTORY WARRANTY DEED | DANIEL EILEEN L | ROBERTSON BROOKE DELMAS | | | $171,500.00 | 133544 | 2017-08777 |
| 5 | 01/16/2009 | WARRANTY D | WARRANTY DEED | MC CUBBINS, ROBERT L ESTATE OF | MC CUBBINS, L D | | | | 116205 | 2009-00403 |
| 6 | 01/16/2009 | QCD | QUIT CLAIM DEED | MC CUBBINS, L D | DANIEL, EILEEN L | | | | 116204 | 2009-00404 |
| 7 | 01/16/2009 | QCD | QUIT CLAIM DEED | MASON, PATRICIA | DANIEL, EILEEN L | | | | 116206 | 2009-00405 |
| 8 | 02/23/2007 | WARRANTY D | WARRANTY DEED | PHILPOT, JENNIFER | MC CUBBINS, ROBERT L | | | | 0 | CC #05-3-00297-7 |
| 9 | 02/20/2007 | QCD | QUIT CLAIM DEED | PHILPOT-MC CUBBINS, JENNIFER | MC CUBBINS, ROBERT L | | | | 112265 | 2007-01986 |
| 10 | 05/19/1978 | QCD | QUIT CLAIM DEED | | | | | $37,500.00 | 0 | 1929-107439 |
Payout Agreement
| No payout information available.. |