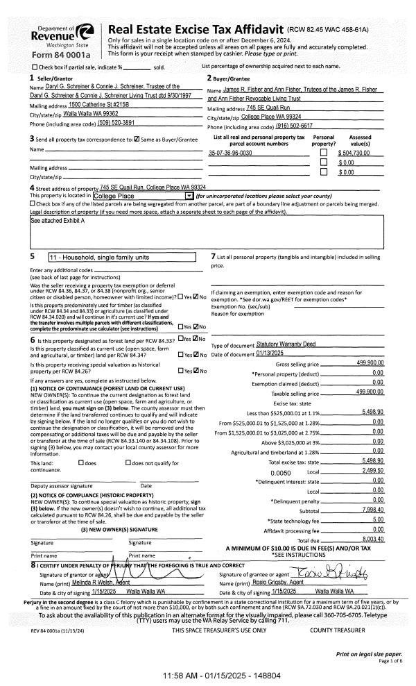
Property
Account |
| Property ID: | 1029 | Abbreviated Legal Description: | VILLAGES OF GARRISON CRK PHASE VI LOT 103 |
| Parcel Number: | 350736960030 | Agent Code: | |
| Type: | Real | | |
| Tax Area: | 77 - CP-250-F | Land Use Code | 11 |
| Open Space: | N | DFL | N |
| Historic Property: | N | Remodel Property: | N |
| Multi-Family Redevelopment: | N | | |
| Township: | 7 | Section: | 36 |
| Range: | 35 |
Location |
| Address: | 745 SE QUAIL RUN WA 99324 | Mapsco: | |
| Neighborhood: | G SFR | Map ID: | |
| Neighborhood CD: | 114011 |
Owner |
| Name: | SCHREINER LIVING TRUST | Owner ID: | 13585 |
| Mailing Address: | 1500 CATHERINE ST APT 215B WALLA WALLA, WA 99362 | % Ownership: | 100.0000000000% |
| | | Exemptions: | |
Taxes and Assessment Details
Property Tax Information as of
04/19/2026
Click on "Statement Details" to expand or collapse a tax statement.
* Please enter a valid date ** Please enter a valid date *
Statement Details |
| | TOTAL: | $0.00 | $0.00 | $0.00 | $0.00 | $0.00 | $0.00 |
|
| | $0.00 | $0.00 | $0.00 | $0.00 | $0.00 | $0.00 |
Values
| (+) Improvement Homesite Value: | + | $0 | |
| (+) Improvement Non-Homesite Value: | + | $429,370 | |
| (+) Land Homesite Value: | + | $0 | |
| (+) Land Non-Homesite Value: | + | $75,000 | |
| (+) Curr Use (HS): | + | $0 | $0 |
| (+) Curr Use (NHS): | + | $0 | $0 |
| | | -------------------------- | |
| (=) Market Value: | = | $504,370 | |
| (–) Productivity Loss: | – | $0 | |
| | | -------------------------- | |
| (=) Subtotal: | = | $504,370 | |
| (+) Senior Appraised Value: | + | $0 | |
| (+) Non-Senior Appraised Value: | + | $504,370 | |
| | | -------------------------- | |
| (=) Total Appraised Value: | = | $504,370 | |
| (–) Senior Exemption Loss: | – | $0 | |
| (–) Exemption Loss: | – | $0 | |
| | | -------------------------- | |
| (=) Taxable Value: | = | $504,370 | |
Taxing Jurisdiction
| Owner: | SCHREINER LIVING TRUST | | |
| % Ownership: | 100.0000000000% | | |
| Total Value: | $504,370 | | |
| Tax Area: | 77 - CP-250-F |
| CERFD | CURRENT EXPENSE REFUND 010 | 0.0000000000 | $504,370 | $504,370 | $0.00 | | |
| CURREXP | CURRENT EXPENSE 010 | 1.0175366760 | $504,370 | $504,370 | $513.21 | | |
| HUMNSERV | HUMAN SERVICES 119 | 0.0250000000 | $504,370 | $504,370 | $12.61 | | |
| SLDREL | SOLDIERS RELIEF 121 | 0.0155990005 | $504,370 | $504,370 | $7.87 | | |
| COLLPLBOND | C OF CP BOND 644 | 0.4374241808 | $504,370 | $504,370 | $220.62 | | |
| COLLPLGEN | CITY OF CP 632 | 1.4453819216 | $504,370 | $504,370 | $729.01 | | |
| EMERGSER | EMS 147 | 0.3792580840 | $504,370 | $504,370 | $191.29 | | |
| EMSRFD | EMS REFUND 147 | 0.0000000000 | $504,370 | $504,370 | $0.00 | | |
| RURALLIB | RURAL LIBRARY 623 | 0.3710609029 | $504,370 | $504,370 | $187.15 | | |
| PORTRFD | PORT REFUND 640 | 0.0000000000 | $504,370 | $504,370 | $0.00 | | |
| PORTWWGEN | PORT OF WW 640 | 0.2460186015 | $504,370 | $504,370 | $124.08 | | |
| SD250BOND | SD #250 BOND 773 | 1.4560608159 | $504,370 | $504,370 | $734.39 | | |
| SD250GEN | SD #250 GENERAL 770 | 2.3880724087 | $504,370 | $504,370 | $1,204.47 | | |
| ST2 | STATE SCHOOL PART 2 600 | 0.8131451643 | $504,370 | $504,370 | $410.13 | | |
| STATESCHL | STATE SCHOOL 600 | 1.5158548041 | $504,370 | $504,370 | $764.55 | | |
| STREFUND | STATE REFUND LEVY 603 | 0.0000000000 | $504,370 | $504,370 | $0.00 | | |
| | Total Tax Rate: | 10.1104125603 | | | | | |
| | | | | Taxes w/Current Exemptions: | $5,099.38 | | |
| | | | | Taxes w/o Exemptions: | $5,099.38 | | |
Improvement / Building
| Improvement #1: | RESIDENTIAL | State Code: | 11 | 1824.0 sqft | Value: | $429,370 |
| Exterior Wall: | PLYWOOD | Heating/Cooling: | WARM & COOLED AIR | | Number of Bathrooms: | 2 | Number of Bedrooms: | 4 | | Plumbing: | 10 | Roof Covering: | COMP SHINGLE |
|
| | Type | Description | Class CD | Sub Class CD | Year Built | Area |
| | MA | Main Area | 1 | 40 | 2001 | 1824.0 |
| | SI1 | SITE IMPROVEMENT | 1 | 40 | 0 | 3.0 |
| | ATG | Attached Garage | 1 | 40 | 2001 | 682.0 |
| | RPC | OPEN PORCH W/ROOF , CEILED | 1 | 40 | 2001 | 60.0 |
| | RPC | OPEN PORCH W/ROOF , CEILED | 1 | 40 | 2001 | 124.0 |
| | GFP | GAS FIREPLACE | 1 | 40 | 2001 | 1.0 |
Sketch
Property Image
Land
| 1 | RES 1 | Converted: Residential | 0.1552 | 6761.00 | 0.00 | 0.00 | 1.00 | $75,000 | $0 |
Roll Value History
| 2026 | N/A | N/A | N/A | N/A | N/A |
| 2025 | $364,960 | $135,000 | $0 | $499,960 | $499,960 |
| 2024 | $429,370 | $75,000 | $0 | $504,370 | $504,370 |
| 2023 | $429,370 | $75,000 | $0 | $504,370 | $504,370 |
| 2022 | $408,920 | $75,000 | $0 | $483,920 | $483,920 |
| 2021 | $327,140 | $75,000 | $0 | $402,140 | $402,140 |
| 2020 | $261,710 | $75,000 | $0 | $336,710 | $336,710 |
| 2019 | $271,710 | $65,000 | $0 | $336,710 | $336,710 |
| 2018 | $217,370 | $65,000 | $0 | $282,370 | $282,370 |
| 2017 | $207,020 | $65,000 | $0 | $272,020 | $272,020 |
| 2016 | $197,160 | $65,000 | $0 | $262,160 | $262,160 |
| 2015 | $179,240 | $65,000 | $0 | $244,240 | $244,240 |
| 2014 | $170,700 | $65,000 | $0 | $235,700 | $235,700 |
| 2013 | $170,700 | $65,000 | $0 | $235,700 | $235,700 |
| 2012 | $205,900 | $65,000 | $0 | $0 | $0 |
| 2011 | $195,500 | $65,000 | $0 | $0 | $0 |
| 2010 | $195,500 | $65,000 | $0 | $0 | $0 |
| 2009 | $209,200 | $65,000 | $0 | $0 | $0 |
| 2008 | $159,100 | $35,000 | $0 | $0 | $0 |
| 2007 | $159,100 | $35,000 | $0 | $0 | $0 |
Deed and Sales History
| 1 | 01/15/2025 | SWD | STATUTORY WARRANTY DEED | SCHREINER LIVING TRUST | JAMES R FISHER & ANN FISHER | | | $499,900.00 | 148804 | 2025-00231 |
| 2 | 06/30/2014 | SWD | STATUTORY WARRANTY DEED | WINDEMUTH TIMOTHY M & CHERI | SCHREINER LIVING TRUST | | | $261,000.00 | 126176 | 2014-04545 |
| 3 | 06/29/2005 | WARRANTY D | WARRANTY DEED | CASTOLDI, KENNETH M & YVONNE G | WINDEMUTH, TIMOTHY M & CHERI | | | $288,600.00 | 107829 | 2005-07855 |
| 4 | 08/26/2002 | WARRANTY D | WARRANTY DEED | PHASE FIVE DEVELOPMENT LLC | CASTOLDI, KENNETH M & YVONNE G | | | $194,900.00 | 100233 | 2002-09565 |
Payout Agreement
| No payout information available.. |