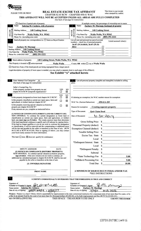
Property
Account |
| Property ID: | 10287 | Abbreviated Legal Description: | 29-7-36 TAX 68M |
| Parcel Number: | 360729340014 | Agent Code: | |
| Type: | Real | | |
| Tax Area: | 105 - 140-F-4 | Land Use Code | 11 |
| Open Space: | N | DFL | N |
| Historic Property: | N | Remodel Property: | N |
| Multi-Family Redevelopment: | N | | |
| Township: | 7 | Section: | 29 |
| Range: | 36 |
Location |
| Address: | 140 CUSHING ST WA 99362 | Mapsco: | |
| Neighborhood: | Fair Res | Map ID: | |
| Neighborhood CD: | 612011 |
Owner |
| Name: | MARANGI ZACHARY M | Owner ID: | 62166 |
| Mailing Address: | 140 CUSHING ST WALLA WALLA, WA 99362 | % Ownership: | 100.0000000000% |
| | | Exemptions: | |
Taxes and Assessment Details
Property Tax Information as of
02/21/2026
Click on "Statement Details" to expand or collapse a tax statement.
* Please enter a valid date ** Please enter a valid date *
Statement Details |
| | TOTAL: | $0.00 | $0.00 | $0.00 | $0.00 | $0.00 | $0.00 |
|
| | $0.00 | $0.00 | $0.00 | $0.00 | $0.00 | $0.00 |
Values
| (+) Improvement Homesite Value: | + | $0 | |
| (+) Improvement Non-Homesite Value: | + | $210,220 | |
| (+) Land Homesite Value: | + | $0 | |
| (+) Land Non-Homesite Value: | + | $87,760 | |
| (+) Curr Use (HS): | + | $0 | $0 |
| (+) Curr Use (NHS): | + | $0 | $0 |
| | | -------------------------- | |
| (=) Market Value: | = | $297,980 | |
| (–) Productivity Loss: | – | $0 | |
| | | -------------------------- | |
| (=) Subtotal: | = | $297,980 | |
| (+) Senior Appraised Value: | + | $0 | |
| (+) Non-Senior Appraised Value: | + | $297,980 | |
| | | -------------------------- | |
| (=) Total Appraised Value: | = | $297,980 | |
| (–) Senior Exemption Loss: | – | $0 | |
| (–) Exemption Loss: | – | $0 | |
| | | -------------------------- | |
| (=) Taxable Value: | = | $297,980 | |
Taxing Jurisdiction
| Owner: | MARANGI ZACHARY M | | |
| % Ownership: | 100.0000000000% | | |
| Total Value: | $297,980 | | |
| Tax Area: | 105 - 140-F-4 |
| CERFD | CURRENT EXPENSE REFUND 010 | 0.0000000000 | $297,980 | $297,980 | $0.00 | | |
| CURREXP | CURRENT EXPENSE 010 | 0.9851088983 | $297,980 | $297,980 | $293.54 | | |
| HUMNSERV | HUMAN SERVICES 119 | 0.0250000000 | $297,980 | $297,980 | $7.45 | | |
| SLDREL | SOLDIERS RELIEF 121 | 0.0155990000 | $297,980 | $297,980 | $4.65 | | |
| EMERGSER | EMS 147 | 0.3676811629 | $297,980 | $297,980 | $109.56 | | |
| EMSRFD | EMS REFUND 147 | 0.0000000000 | $297,980 | $297,980 | $0.00 | | |
| FD4EXP | FD #4 EXPENSE 686 | 1.2367913128 | $297,980 | $297,980 | $368.54 | | |
| RLBRFD | RURAL LIBRARY REFUND 623 | 0.0000000000 | $297,980 | $297,980 | $0.00 | | |
| RURALLIB | RURAL LIBRARY 623 | 0.3601547782 | $297,980 | $297,980 | $107.32 | | |
| PORTRFD | PORT REFUND 640 | 0.0000000000 | $297,980 | $297,980 | $0.00 | | |
| PORTWWGEN | PORT OF WW 640 | 0.2344301070 | $297,980 | $297,980 | $69.86 | | |
| SD140BOND | SD #140 BOND 764 | 0.8032434458 | $297,980 | $297,980 | $239.35 | | |
| SD140CAP | SD #140 CAP 762 | 0.3840034221 | $297,980 | $297,980 | $114.43 | | |
| SD140GEN | SD #140 GENERAL 760 | 2.4999999996 | $297,980 | $297,980 | $744.95 | | |
| ST2 | STATE SCHOOL PART 2 600 | 0.8853714103 | $297,980 | $297,980 | $263.82 | | |
| STATESCHL | STATE SCHOOL 600 | 1.6424571473 | $297,980 | $297,980 | $489.42 | | |
| STREFUND | STATE REFUND LEVY 603 | 0.0000000000 | $297,980 | $297,980 | $0.00 | | |
| COROAD | COUNTY ROAD 115 | 1.6137667997 | $297,980 | $297,980 | $480.87 | | |
| CRPRD | COUNTY ROAD REFUND 115 | 0.0000000000 | $297,980 | $297,980 | $0.00 | | |
| | Total Tax Rate: | 11.0536074840 | | | | | |
| | | | | Taxes w/Current Exemptions: | $3,293.76 | | |
| | | | | Taxes w/o Exemptions: | $3,293.76 | | |
Improvement / Building
| Improvement #1: | RESIDENTIAL | State Code: | 11 | 1377.0 sqft | Value: | $210,220 |
| Exterior Wall: | SIDING | Foundation: | SLAB | | Heating/Cooling: | WARM & COOLED AIR | Number of Bathrooms: | 1.5 | | Number of Bedrooms: | 3 | Plumbing: | 8 | | Roof Covering: | COMP SHINGLE |   |   |
|
| | Type | Description | Class CD | Sub Class CD | Year Built | Area |
| | MA | Main Area | 1 | 30 | 1948 | 1377.0 |
| | SI1 | SITE IMPROVEMENT | 1 | 30 | 1948 | 3.0 |
| | S1F | Single One Story Fireplace | 1 | 30 | 1948 | 1.0 |
| | RPC | OPEN PORCH W/ROOF , CEILED | 1 | 30 | 1948 | 318.0 |
| | CPCD | CARPORT/DIRT FLOOR | 1 | 30 | 1948 | 252.0 |
Sketch
Property Image
Land
| 1 | RES 1 | Converted: Residential | 0.2810 | 12240.00 | 0.00 | 0.00 | 1.00 | $87,760 | $0 |
Roll Value History
| 2026 | N/A | N/A | N/A | N/A | N/A |
| 2025 | $210,220 | $87,760 | $0 | $297,980 | $297,980 |
| 2024 | $226,890 | $69,770 | $0 | $296,660 | $296,660 |
| 2023 | $226,890 | $69,770 | $0 | $296,660 | $296,660 |
| 2022 | $226,890 | $54,960 | $0 | $281,850 | $281,850 |
| 2021 | $189,070 | $54,960 | $0 | $244,030 | $244,030 |
| 2020 | $145,440 | $54,960 | $0 | $200,400 | $200,400 |
| 2019 | $145,440 | $54,960 | $0 | $200,400 | $200,400 |
| 2018 | $127,530 | $49,000 | $0 | $176,530 | $176,530 |
| 2017 | $115,940 | $49,000 | $0 | $164,940 | $164,940 |
| 2016 | $35,000 | $49,000 | $0 | $84,000 | $84,000 |
| 2015 | $66,240 | $49,000 | $0 | $115,240 | $115,240 |
| 2014 | $55,200 | $49,000 | $0 | $104,200 | $104,200 |
| 2013 | $55,200 | $49,000 | $0 | $104,200 | $104,200 |
| 2012 | $53,400 | $49,000 | $0 | $0 | $0 |
| 2011 | $44,100 | $49,000 | $0 | $0 | $0 |
| 2010 | $60,500 | $49,000 | $0 | $0 | $0 |
| 2009 | $72,700 | $49,000 | $0 | $0 | $0 |
| 2008 | $72,700 | $49,000 | $0 | $0 | $0 |
| 2007 | $60,600 | $20,700 | $0 | $0 | $0 |
Deed and Sales History
| 1 | 12/01/2017 | QCD | QUIT CLAIM DEED | CORDERO SABRINA M | MARANGI ZACHARY M | | | | 133720 | 2017-09604 |
| 2 | 09/28/2017 | SWD | STATUTORY WARRANTY DEED | MCGILTON CARL HERBERT | MARANGI ZACHARY M | | 2-PARCELS | $180,000.00 | 133719 | 2017-09603 |
|   | |
| 3 | 07/29/2016 | SWD | STATUTORY WARRANTY DEED | MC TIMPENY MICHAEL B | MCGILTON CARL HERBERT | | 2-PARCELS | $85,000.00 | 130738 | 2016-06001 |
|   | |
| 4 | 01/01/1962 | QCD | QUIT CLAIM DEED | | | | | $0.00 | 0 | 1889-102186 |
Payout Agreement
| No payout information available.. |