Property
Account |
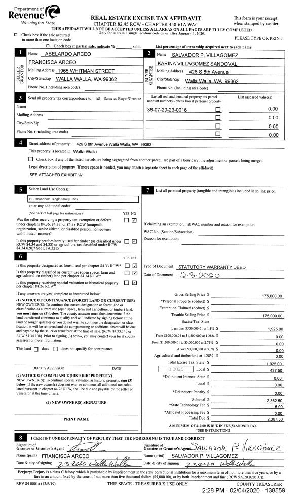
| Property ID: | 10260 | Abbreviated Legal Description: | 29-7-36 TAX 54 |
| Parcel Number: | 360729230016 | Agent Code: | |
| Type: | Real | | |
| Tax Area: | 1 - OL-140-F | Land Use Code | 11 |
| Open Space: | N | DFL | N |
| Historic Property: | N | Remodel Property: | N |
| Multi-Family Redevelopment: | N | | |
| Township: | 7 | Section: | 29 |
| Range: | 36 |
Location |
| Address: | 426 S 8TH AVE WA 99362 | Mapsco: | |
| Neighborhood: | Fair Inferior Res | Map ID: | |
| Neighborhood CD: | 512111 |
Owner |
| Name: | VILLAGOMEZ SALVADOR P | Owner ID: | 66690 |
| Mailing Address: | KARINA VILLAGOMEZ SANDOVAL 426 S 8TH AVE WALLA WALLA, WA 99362 | % Ownership: | 100.0000000000% |
| | | Exemptions: | |
Taxes and Assessment Details
Property Tax Information as of
02/21/2026
Click on "Statement Details" to expand or collapse a tax statement.
* Please enter a valid date ** Please enter a valid date *
Statement Details |
| | TOTAL: | $0.00 | $0.00 | $0.00 | $0.00 | $0.00 | $0.00 |
|
| | $0.00 | $0.00 | $0.00 | $0.00 | $0.00 | $0.00 |
Values
| (+) Improvement Homesite Value: | + | $0 | |
| (+) Improvement Non-Homesite Value: | + | $183,570 | |
| (+) Land Homesite Value: | + | $0 | |
| (+) Land Non-Homesite Value: | + | $39,380 | |
| (+) Curr Use (HS): | + | $0 | $0 |
| (+) Curr Use (NHS): | + | $0 | $0 |
| | | -------------------------- | |
| (=) Market Value: | = | $222,950 | |
| (–) Productivity Loss: | – | $0 | |
| | | -------------------------- | |
| (=) Subtotal: | = | $222,950 | |
| (+) Senior Appraised Value: | + | $0 | |
| (+) Non-Senior Appraised Value: | + | $222,950 | |
| | | -------------------------- | |
| (=) Total Appraised Value: | = | $222,950 | |
| (–) Senior Exemption Loss: | – | $0 | |
| (–) Exemption Loss: | – | $0 | |
| | | -------------------------- | |
| (=) Taxable Value: | = | $222,950 | |
Taxing Jurisdiction
| Owner: | VILLAGOMEZ SALVADOR P | | |
| % Ownership: | 100.0000000000% | | |
| Total Value: | $222,950 | | |
| Tax Area: | 1 - OL-140-F |
| CERFD | CURRENT EXPENSE REFUND 010 | 0.0000000000 | $222,950 | $222,950 | $0.00 | | |
| CURREXP | CURRENT EXPENSE 010 | 1.0175366760 | $222,950 | $222,950 | $226.86 | | |
| HUMNSERV | HUMAN SERVICES 119 | 0.0250000000 | $222,950 | $222,950 | $5.57 | | |
| SLDREL | SOLDIERS RELIEF 121 | 0.0155990005 | $222,950 | $222,950 | $3.48 | | |
| EMERGSER | EMS 147 | 0.3792580840 | $222,950 | $222,950 | $84.56 | | |
| EMSRFD | EMS REFUND 147 | 0.0000000000 | $222,950 | $222,950 | $0.00 | | |
| PORTRFD | PORT REFUND 640 | 0.0000000000 | $222,950 | $222,950 | $0.00 | | |
| PORTWWGEN | PORT OF WW 640 | 0.2460186015 | $222,950 | $222,950 | $54.85 | | |
| SD140BOND | SD #140 BOND 764 | 0.8342371393 | $222,950 | $222,950 | $185.99 | | |
| SD140GEN | SD #140 GENERAL 760 | 2.0646500647 | $222,950 | $222,950 | $460.31 | | |
| ST2 | STATE SCHOOL PART 2 600 | 0.8131451643 | $222,950 | $222,950 | $181.29 | | |
| STATESCHL | STATE SCHOOL 600 | 1.5158548041 | $222,950 | $222,950 | $337.96 | | |
| STREFUND | STATE REFUND LEVY 603 | 0.0000000000 | $222,950 | $222,950 | $0.00 | | |
| CWWBOND | C OF WW BOND 643 | 0.2760494372 | $222,950 | $222,950 | $61.55 | | |
| CWWGEN | CITY OF WW 631 | 1.6100204973 | $222,950 | $222,950 | $358.95 | | |
| CWWRFD | CITY OF WALLA WALLA REFUND 631 | 0.0000000000 | $222,950 | $222,950 | $0.00 | | |
| | Total Tax Rate: | 8.7973694689 | | | | | |
| | | | | Taxes w/Current Exemptions: | $1,961.37 | | |
| | | | | Taxes w/o Exemptions: | $1,961.37 | | |
Improvement / Building
| Improvement #1: | RESIDENTIAL | State Code: | 11 | 1288.0 sqft | Value: | $183,570 |
| Exterior Wall: | SIDING | Heating/Cooling: | FORCED AIR | | Number of Bathrooms: | 2 | Number of Bedrooms: | 2 | | Plumbing: | 9 | Roof Covering: | COMP SHINGLE |
|
| | Type | Description | Class CD | Sub Class CD | Year Built | Area |
| | MA | Main Area | 1 | 20 | 1896 | 1288.0 |
| | SI1 | SITE IMPROVEMENT | 1 | 20 | 1896 | 1.0 |
| | OPS | OPEN PORCH W/STEPS | 1 | 20 | 1896 | 40.0 |
Sketch
Property Image
Land
| 1 | RES 1 | Converted: Residential | 0.1722 | 7500.00 | 0.00 | 0.00 | 1.00 | $39,380 | $0 |
Roll Value History
| 2026 | N/A | N/A | N/A | N/A | N/A |
| 2025 | $212,650 | $67,500 | $0 | $280,150 | $280,150 |
| 2024 | $212,650 | $67,500 | $0 | $280,150 | $280,150 |
| 2023 | $183,570 | $39,380 | $0 | $222,950 | $222,950 |
| 2022 | $152,980 | $39,380 | $0 | $192,360 | $192,360 |
| 2021 | $133,020 | $39,380 | $0 | $172,400 | $172,400 |
| 2020 | $95,020 | $39,380 | $0 | $134,400 | $134,400 |
| 2019 | $95,020 | $39,380 | $0 | $134,400 | $134,400 |
| 2018 | $79,180 | $39,380 | $0 | $118,560 | $118,560 |
| 2017 | $70,510 | $45,000 | $0 | $115,510 | $115,510 |
| 2016 | $64,100 | $45,000 | $0 | $109,100 | $109,100 |
| 2015 | $64,100 | $45,000 | $0 | $109,100 | $109,100 |
| 2014 | $64,100 | $45,000 | $0 | $109,100 | $109,100 |
| 2013 | $64,100 | $45,000 | $0 | $109,100 | $109,100 |
| 2012 | $64,100 | $45,000 | $0 | $0 | $0 |
| 2011 | $64,100 | $45,000 | $0 | $0 | $0 |
| 2010 | $64,100 | $45,000 | $0 | $0 | $0 |
| 2009 | $83,400 | $45,000 | $0 | $0 | $0 |
| 2008 | $83,400 | $45,000 | $0 | $0 | $0 |
| 2007 | $65,200 | $15,000 | $0 | $0 | $0 |
Deed and Sales History
| 1 | 02/04/2020 | SWD | STATUTORY WARRANTY DEED | ARCEO ABELARDO & FRANCISCA | VILLAGOMEZ SALVADOR P | | | $175,000.00 | 138559 | 2020-01064 |
| 2 | 07/07/2003 | WARRANTY D | WARRANTY DEED | CORONADO, JOE & INA | ARCEO, ABELARDO & FRANCISCA | | | $60,000.00 | 102506 | 2003-10109 |
| 3 | 03/31/1983 | PACD | PURCHASER'S ASSG CONTRACT&DEED | | | | | $29,850.00 | 0 | 1368-302214 |
Payout Agreement
| No payout information available.. |