Property
Account |
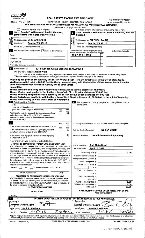
| Property ID: | 10245 | Abbreviated Legal Description: | 29-7-36 TAX 96 |
| Parcel Number: | 360729210050 | Agent Code: | |
| Type: | Real | | |
| Tax Area: | 1 - OL-140-F | Land Use Code | 12 |
| Open Space: | N | DFL | N |
| Historic Property: | N | Remodel Property: | N |
| Multi-Family Redevelopment: | N | | |
| Township: | 7 | Section: | 29 |
| Range: | 36 |
Location |
| Address: | 324 S 1ST AVE WA 99362 | Mapsco: | |
| Neighborhood: | A+ Res Duplex | Map ID: | |
| Neighborhood CD: | 513231 |
Owner |
| Name: | WILLIAMS BRENDA E | Owner ID: | 44105 |
| Mailing Address: | SUNIL P ABRAHAM 7507 27TH AVE NE SEATTLE, WA 98115 | % Ownership: | 100.0000000000% |
| | | Exemptions: | |
Taxes and Assessment Details
Property Tax Information as of
02/21/2026
Click on "Statement Details" to expand or collapse a tax statement.
* Please enter a valid date ** Please enter a valid date *
Statement Details |
| | TOTAL: | $0.00 | $0.00 | $0.00 | $0.00 | $0.00 | $0.00 |
|
| | $0.00 | $0.00 | $0.00 | $0.00 | $0.00 | $0.00 |
Values
| (+) Improvement Homesite Value: | + | $0 | |
| (+) Improvement Non-Homesite Value: | + | $363,780 | |
| (+) Land Homesite Value: | + | $0 | |
| (+) Land Non-Homesite Value: | + | $45,000 | |
| (+) Curr Use (HS): | + | $0 | $0 |
| (+) Curr Use (NHS): | + | $0 | $0 |
| | | -------------------------- | |
| (=) Market Value: | = | $408,780 | |
| (–) Productivity Loss: | – | $0 | |
| | | -------------------------- | |
| (=) Subtotal: | = | $408,780 | |
| (+) Senior Appraised Value: | + | $0 | |
| (+) Non-Senior Appraised Value: | + | $408,780 | |
| | | -------------------------- | |
| (=) Total Appraised Value: | = | $408,780 | |
| (–) Senior Exemption Loss: | – | $0 | |
| (–) Exemption Loss: | – | $0 | |
| | | -------------------------- | |
| (=) Taxable Value: | = | $408,780 | |
Taxing Jurisdiction
| Owner: | WILLIAMS BRENDA E | | |
| % Ownership: | 100.0000000000% | | |
| Total Value: | $408,780 | | |
| Tax Area: | 1 - OL-140-F |
| CERFD | CURRENT EXPENSE REFUND 010 | 0.0000000000 | $408,780 | $408,780 | $0.00 | | |
| CURREXP | CURRENT EXPENSE 010 | 1.0175366760 | $408,780 | $408,780 | $415.95 | | |
| HUMNSERV | HUMAN SERVICES 119 | 0.0250000000 | $408,780 | $408,780 | $10.22 | | |
| SLDREL | SOLDIERS RELIEF 121 | 0.0155990005 | $408,780 | $408,780 | $6.38 | | |
| EMERGSER | EMS 147 | 0.3792580840 | $408,780 | $408,780 | $155.03 | | |
| EMSRFD | EMS REFUND 147 | 0.0000000000 | $408,780 | $408,780 | $0.00 | | |
| PORTRFD | PORT REFUND 640 | 0.0000000000 | $408,780 | $408,780 | $0.00 | | |
| PORTWWGEN | PORT OF WW 640 | 0.2460186015 | $408,780 | $408,780 | $100.57 | | |
| SD140BOND | SD #140 BOND 764 | 0.8342371393 | $408,780 | $408,780 | $341.02 | | |
| SD140GEN | SD #140 GENERAL 760 | 2.0646500647 | $408,780 | $408,780 | $843.99 | | |
| ST2 | STATE SCHOOL PART 2 600 | 0.8131451643 | $408,780 | $408,780 | $332.40 | | |
| STATESCHL | STATE SCHOOL 600 | 1.5158548041 | $408,780 | $408,780 | $619.65 | | |
| STREFUND | STATE REFUND LEVY 603 | 0.0000000000 | $408,780 | $408,780 | $0.00 | | |
| CWWBOND | C OF WW BOND 643 | 0.2760494372 | $408,780 | $408,780 | $112.84 | | |
| CWWGEN | CITY OF WW 631 | 1.6100204973 | $408,780 | $408,780 | $658.14 | | |
| CWWRFD | CITY OF WALLA WALLA REFUND 631 | 0.0000000000 | $408,780 | $408,780 | $0.00 | | |
| | Total Tax Rate: | 8.7973694689 | | | | | |
| | | | | Taxes w/Current Exemptions: | $3,596.19 | | |
| | | | | Taxes w/o Exemptions: | $3,596.19 | | |
Improvement / Building
| Improvement #1: | RESIDENTIAL | State Code: | 12 | 1260.0 sqft | Value: | $363,780 |
| Exterior Wall: | SIDING | Heating/Cooling: | FORCED AIR | | Number of Bathrooms: | 2 | Number of Bedrooms: | 4 | | Plumbing: | 12 | Roof Covering: | COMP SHINGLE |
|
| | Type | Description | Class CD | Sub Class CD | Year Built | Area |
| | MA | Main Area | 1 | 30 | 1941 | 1260.0 |
| | SI1 | SITE IMPROVEMENT | 1 | 30 | 1941 | 1.5 |
| | BASE | BASEMENT | 1 | 30 | 1941 | 1260.0 |
| | BPF | BASEMENT -PARTITIONED FINISH | 1 | 30 | 1941 | 630.0 |
| | RPO | OPEN PORCH W/ROOF | 1 | 30 | 1941 | 35.0 |
| | RPO | OPEN PORCH W/ROOF | 1 | 30 | 1941 | 35.0 |
| | DTG | Detached Garage | 1 | 30 | 1941 | 400.0 |
Sketch
Property Image
Land
| 1 | RES 1 | Converted: Residential | 0.1653 | 7200.00 | 0.00 | 0.00 | 1.00 | $45,000 | $0 |
Roll Value History
| 2026 | N/A | N/A | N/A | N/A | N/A |
| 2025 | $345,100 | $64,800 | $0 | $409,900 | $409,900 |
| 2024 | $345,100 | $64,800 | $0 | $409,900 | $409,900 |
| 2023 | $363,780 | $45,000 | $0 | $408,780 | $408,780 |
| 2022 | $291,030 | $45,000 | $0 | $336,030 | $336,030 |
| 2021 | $242,520 | $45,000 | $0 | $287,520 | $287,520 |
| 2020 | $186,560 | $45,000 | $0 | $231,560 | $231,560 |
| 2019 | $186,560 | $45,000 | $0 | $231,560 | $231,560 |
| 2018 | $124,370 | $45,000 | $0 | $169,370 | $169,370 |
| 2017 | $111,000 | $43,200 | $0 | $154,200 | $154,200 |
| 2016 | $111,000 | $43,200 | $0 | $154,200 | $154,200 |
| 2015 | $111,000 | $43,200 | $0 | $154,200 | $154,200 |
| 2014 | $111,000 | $43,200 | $0 | $154,200 | $154,200 |
| 2013 | $111,000 | $43,200 | $0 | $154,200 | $154,200 |
| 2012 | $111,000 | $43,200 | $0 | $0 | $0 |
| 2011 | $111,000 | $43,200 | $0 | $0 | $0 |
| 2010 | $111,000 | $43,200 | $0 | $0 | $0 |
| 2009 | $111,000 | $43,200 | $0 | $0 | $0 |
| 2008 | $111,000 | $43,200 | $0 | $0 | $0 |
| 2007 | $73,800 | $14,400 | $0 | $0 | $0 |
Deed and Sales History
| 1 | 04/17/2018 | QCD | QUIT CLAIM DEED | WILLIAMS BRENDA E | WILLIAMS BRENDA E | | | $0.00 | 134533 | 2018-03087 |
| 2 | 05/01/2007 | WARRANTY D | WARRANTY DEED | BLIZE, DEAN W AS SEP PROPERTY | WILLIAMS, BRENDA E | | | $155,000.00 | 112725 | 2007-04842 |
| 3 | 01/04/1995 | WARRANTY D | WARRANTY DEED | | | | | $77,500.00 | 83273 | 2269-500065 |
Payout Agreement
| No payout information available.. |